Skip to main content

Architectural Internship Report Part03

Page 1

TYPE OF WORK:

11

BATHROOM DESIGN

BATHROOM DESIGN

1.DESIGN DEVELOPMENT

2. WORKING DRAWING

3. 3D-VISUALIZATION

4. GRAPHIC WORKS,SKETCHES,ILLUSTRATIONS

My involvement:

• Planning layout for watercloset.

• Working Drawing.

• Materials like flooring to select.

• Sanitary fixtures to select.

• 3D-visualization.

Softwares used:

• Auto-cad

• Sketchup

• Lumion

• Photoshop

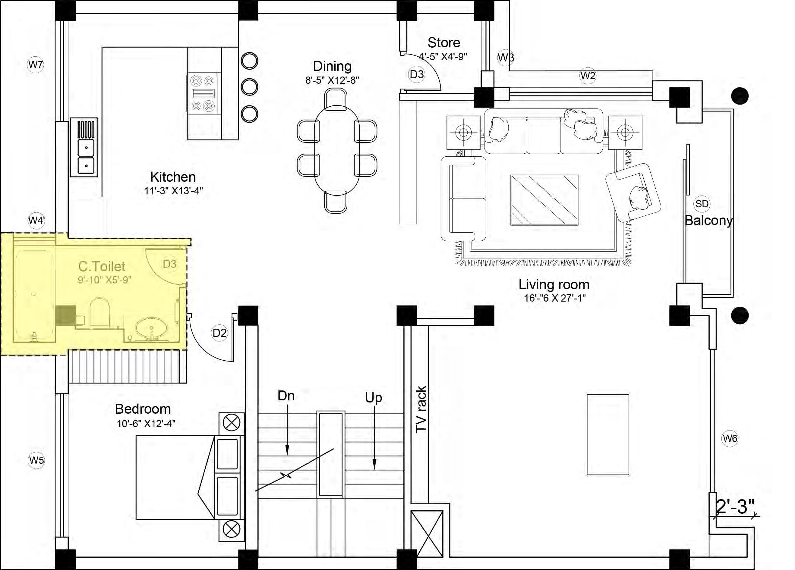
C.Toilet 9'-10" 9" depth shelf 4'-6"

Project type: Bathroom design & 3D-visualization

Location: Boudha

Working area: 75.09 Sq.ft

Client: Mr. Hem

This project Bathroom design and its 3D- visualization teaches me mainly about the building materials like flooring , clading, sanitary fixtures, wall light/ mirror light and working drawing.

ELEVATION

X5'-9"

D3 W4' A1 A1 A2 A2 A3 A3 1'-3" 2" 8" 8" 3'-3" 1' 3'-4" 2' 3'-7" 1" 1'-5" 1'-4" 1'-5" 2'-3"
• Indesign AT A1
Steps for 3D visualization 01
3D visualization and render works done in lumion
Steps for 3D visualization 02
Steps for 3D visualization 03

RESORT SHIVAPURI

TYPE OF WORK:

12

RESORT SHIVAPURI

1.DESIGN DEVELOPMENT

2. PLANNING LAYOUT

3.SITE ANALYSIS

PROJECT INTRODUCTION

Project type: Resort and Homestay

Location: Shivapuri

My involvement : Floor plan, Staff quater design, Site supervision

I mainly study the resort landscaping and done floor planning with reqiured rooms and services to built in CAD with standard dimensions as per required.

site supervision and measurements

staff
quarter design

TYPE OF WORK:

13

residence at Inaruwa

RESIDENCE AT

INARUWA

1. DESIGN DEVELOPMENT

2. SKETCHUP 3D WORK

3. CONCEPT GENERATION

4. 3D-VISUALIZTION

5. GRAPHIC WORKS,SKETCHES,ILLUSTRATIONS

Project type: Residence

My involvement : Facade design and 3d visualization

Location: Baluwatar

Client: Mr. sijan

In this project my involvement in facade design especially in the 3d visualization,and the begining of this task is done by studying the floor plans and facade ideas on the project needed.

SECOND

35' 49' 21'-0"wideroad Up Car Porch 3' 4' Shop 14'9" X 14'0" Bedroom 49' 35' Kitchen 13'1" X 10'5" 13'5" X 12'8" Toilet 7'3"X5'7" AREA - 1204.65 Sq.Ft. GROUND FLOOR PLAN Toilet 3'6" X 5'1" Dn Up Bedroom Living Room Bedroom Kitchen cum Dining Store 13'1" X 11'3" 12'3" X 15'10" 13'5" X 12'8" 20' X 13'3" 5' X 3'6" Toilet 8'6"X4'9" AREA - 1175.77 Sq.Ft. FIRST FLOOR PLAN Dn TV
M.Bedroom Bedroom Terrace Att. Toilet Puja Laundry 13'1" X 11'3" 15'5" X 12'8" Toilet 8'6"X4'9" 8'8"X5' 6'8"X4' 6'8"X4'6" AREA - 1175.80 Sq.Ft.
FLOOR PLAN 14'7"X30'2" Dn

SECOND FLOOR PLAN

CONCEPTUAL FACADE DESIGN

FIRST FLOOR PLAN

GROUND FLOOR PLAN

EXPLODED AXONOMETRIC VIEW

CONCEPTUAL FACADE DESIGN

3D VISUALIZATION
3D VISUALIZATION
RESIDENCE AT BALUWATAR TYPE OF WORK: 1.PLAN STUDY 2. STRUCTURE LAYOUT
14
residence at BALUWATAR

Project type: Residence

My involvement : longitudinal beam profile

Location: Baluwatar

Client: Dr. Sabina

In this project my involvement in structural drawing especially in the longitudinal beam profile, and the begining of this task is done by studying the floor plans and structual ideas on the project needed.

AREA -1248 Sq.Ft. GROUND FLOOR PLAN E N W S 13'-0" Wide Road 20'-6" Wide Road ROW Setback line ROW Setback line Entry gate OPTION I 11'-2" X 10'-0" GUARD. ROOM C.TOILET 5'-0" X 4'-0" Shoes FOYER 20'-8" X 14'-10" PARKING UP 25'-5" X 17'-4" LIVING TV DINING 10'-5" X 12'-10"
UP DN BALCONY KITCHEN 13'-0" X 15'-7" STORE 7'-6" X 5'-0" TOILET 4'-6" X 9'-7" Book self NEPALI KITCHEN 5'-6" X 9'-8"
AREA -1270 Sq.Ft. FIRST FLOOR PLAN OPTION I

SECOND FLOOR PLAN

AREA -1287.33 Sq.Ft.

OPTION I

SECOND FLOOR PLAN

CLOSET 6'-0" X 4'-4" A.TOILET 6'-0" X 9'-0" BALCONY DN M. BEDROOM 17'-6" X 14'-10" UP 8'-0" X7'-0" PUJA 8'-0" X6'-4" LAUNDRY COVERED OUTDOOR SPACE TERRACE
CLOSET 6'-0" X 8'-6" A.TOILET 6'-0" X 9'-0" BALCONY Living Room Below DN FAMILY SPACE BEDROOM 14'-0" X 12'-0" CLOSET 6'-10" X 5'-0" A.TOILET 8'-6" X 5'-0" M. BEDROOM 17'-0" X 14'-5" UP
UP DN 11" 11" 11" 11" 11" 11" 5'-2" 14' 4'-9" 11" 11" 11" 4'-5" 11" 11" 11" 11" 11" 11" 3'-11" 3'-11" R1'-8" R1'-6" R9'-1" 5'-2" A B 4 3 11'-5" C C A A B B Longitudinal P rofile of Beam Along Grid A-A Scale:1"=4' 1 2 2'-8" 2'-8" 3'-4" 5'-1" 4'-5" 5'-3" 5'-3" 4'-5" 8'-0" 2'-8" 3'-4" 2'-8" 5'-2" 2'-8" 2'-8" 3'-4" 5'-1" 5'-3" 2'-8" 3'-4" 2'-8" 5'-2" 2'-8" 2'-8" 3'-4" 5'-1" 4'-5" 5'-3" 4'-5" 8'-0" 3'-4" 2'-8" 5'-2" 3'-4" 3'-4" 5'-3" 3'-4" 5'-3" 2'-8" LS TMT 8Ø-6"C/C TMT 8Ø-4" C/C TMT 8Ø-4" C/C 11'-5" LS TMT 8Ø-6"C/C 11'-5" LS TMT 8Ø-6"C/C 11'-5" LS TMT 8Ø-6"C/C 11'-5" LS TMT 8Ø-6"C/C 11'-5" LS TMT 8Ø-6"C/C 11'-5" TMT 8Ø-4" C/C TMT 8Ø-4" C/C TMT 8Ø-4" C/C TMT 8Ø-4" C/C TMT 8Ø-4" C/C TMT 8Ø-4" C/C TMT 8Ø-4" C/C TMT 8Ø-4" C/C TMT 8Ø-4" C/C TMT 8Ø-4" C/C LS TMT 8Ø-6"C/C TMT 8Ø-4" C/C TMT 8Ø-4" C/C 17'-9" -16Ø Ex -16Ø Ex -16Ø Ex -16Ø Ex -16Ø Ex -16Ø Ex 4 3 2'-8" 2'-8" 5'-2" LS TMT 8Ø-6"C/C 11'-5" TMT 8Ø-4" C/C TMT 8Ø-4" C/C 3'-4" -16Ø Ex -16Ø Ex 3'-4" 2 -12Ø Ex -12Ø Ex -12Ø Ex -12Ø Ex -12Ø Ex 4'-5" 4'-5" 8'-0" LS TMT 8Ø-6"C/C TMT 8Ø-4" C/C TMT 8Ø-4" C/C 17'-9" LS TMT 8Ø-6"C/C TMT 8Ø-4" C/C TMT 8Ø-4" C/C 17'-9" 4'-5" 1'-4" 10" 1st Floor Level -16Ø TH 1-12ØTH -12Ø TH 1-16ØTH 10" Second Floor Level 2 -16Ø TH 1-12ØTH 1'-4" 10" Third Floor Level 3 -12Ø TH -12Ø TH 1'-4" -12Ø TH + 1-16ØTH 10" Top Floor Level 3 -16Ø TH -16Ø TH 1'-4" 3-16Ø Ex -16Ø Ex -16Ø Ex 3 -16Ø Ex 14'-4" 6'-5" LS TMT 8Ø-6"C/C TMT 8Ø-4" C/C 3'-6" 3'-6" TMT 8Ø-4" C/C 6'-0" LS TMT 8Ø-6"C/C TMT 8Ø-4" C/C 3'-6" 3'-6" TMT 8Ø-4" C/C 4'-2" 4'-2" -16Ø Ex 2-16Ø Ex 14'-0" Longitudinal P rofile of Beam Along Grid 3-3 & 4-4 Scale:1"=4' 4'-3" 4'-3" -16Ø Ex -16Ø Ex 14'-4" 6'-5" LS TMT 8Ø-6"C/C TMT 8Ø-4" C/C 3'-6" 3'-6" TMT 8Ø-4" C/C LS TMT 8Ø-6"C/C TMT 8Ø-4" C/C TMT 8Ø-4" C/C 14'-0" 3 A B C 3'-6" 3'-6" 6'-0" 4'-2" 4'-2" -16Ø Ex 2-16Ø Ex 4'-3" 4'-3" -16Ø Ex -16Ø Ex 14'-4" 6'-5" 2 LS TMT 8Ø-6"C/C TMT 8Ø-4" C/C 3'-6" 3'-6" TMT 8Ø-4" C/C 6'-0" LS TMT 8Ø-6"C/C TMT 8Ø-4" C/C 3'-6" 3'-6" TMT 8Ø-4" C/C 14'-0" 4'-1" -16Ø Ex 4'-3" -12Ø Ex 14'-4" 6'-5" LS TMT 8Ø-6"C/C TMT 8Ø-4" C/C 3'-6" 3'-6" TMT 8Ø-4" C/C 6'-0" LS TMT 8Ø-6"C/C TMT 8Ø-4" C/C 3'-6" 3'-6" TMT 8Ø-4" C/C 4'-2" 4'-2" -16Ø Ex 2-16Ø Ex 14'-0" 4'-3" 4'-3" -16Ø Ex -16Ø Ex 4'-1" D -16Ø Ex 9" 1st Floor Level -16Ø TH -16Ø TH 1-12ØTH 9" Second Floor Level -16Ø TH 1-12ØTH 9" Third Floor Level -12Ø TH -12Ø TH 1-16ØTH -12Ø TH 1-16ØTH Top Cover -12Ø TH -12Ø TH 9" 3rd Floor Level -12Ø TH + 1-16ØTH 9" Top Cover -12Ø TH 3 -12Ø TH B C 3'-6" 3'-6" 6'-5" LS TMT 8Ø-6"C/C TMT 8Ø-4" C/C TMT 8Ø-4" C/C 14'-4" 3'-6" 3'-6" 6'-5" 4'-3" 4'-3" -16Ø Ex LS TMT 8Ø-6"C/C TMT 8Ø-4" C/C TMT 8Ø-4" C/C 3'-6" 3'-6" 6'-5" LS TMT 8Ø-6"C/C TMT 8Ø-4" C/C TMT 8Ø-4" C/C 14'-4" 4'-3" 4'-3" -16Ø Ex -16Ø Ex -16Ø Ex 3'-6" 3'-6" 6'-5" 4'-3" 4'-3" -16Ø Ex LS TMT 8Ø-6"C/C TMT 8Ø-4" C/C TMT 8Ø-4" C/C 14'-4" -16Ø Ex 4'-3" -12Ø Ex -12Ø TH 1-16ØTH 9" Second floor level -16Ø TH 3 -16Ø TH 9" First floor level -16Ø TH 3 -16Ø TH Longitudinal P rofile of B eam A long Grid 5-5 -16Ø Ex 5'-1" Scale:1"=4' Longitudinal Profile of B eam A long Grid B-B & C-C Scale:1"=4' 1 2 2'-8" 2'-8" 3'-4" 5'-1" 4'-5" 5'-3" 5'-3" 4'-5" 8'-0" 2'-8" 3'-4" 2'-8" 5'-2" 2'-8" 2'-8" 3'-4" 5'-1" 5'-3" 2'-8" 3'-4" 2'-8" 5'-2" 2'-8" 2'-8" 3'-4" 5'-1" 4'-5" 4'-5" 8'-0" 3'-4" 2'-8" 5'-2" 3'-4" 3'-4" 5'-3" 3'-4" 5'-3" 2'-8" LS TMT 8Ø-6"C/C TMT 8Ø-4" C/C TMT 8Ø-4" C/C 11'-5" LS TMT 8Ø-6"C/C 11'-5" LS TMT 8Ø-6"C/C 11'-5" LS TMT 8Ø-6"C/C 11'-5" LS TMT 8Ø-6"C/C 11'-5" LS TMT 8Ø-6"C/C 11'-5" TMT 8Ø-4" C/C TMT 8Ø-4" C/C TMT 8Ø-4" C/C TMT 8Ø-4" C/C TMT 8Ø-4" C/C TMT 8Ø-4" C/C TMT 8Ø-4" C/C TMT 8Ø-4" C/C TMT 8Ø-4" C/C TMT 8Ø-4" C/C LS TMT 8Ø-6"C/C TMT 8Ø-4" C/C TMT 8Ø-4" C/C 17'-9" -12Ø Ex -12Ø Ex 2 -12Ø Ex -12Ø Ex -12Ø Ex -12Ø Ex 4 3 2'-8" 5'-2" LS TMT 8Ø-6"C/C 11'-5" TMT 8Ø-4" C/C TMT 8Ø-4" C/C 3'-4" -16Ø Ex 2 -16Ø Ex 3'-4" -12Ø Ex -12Ø Ex -12Ø Ex -12Ø Ex -12Ø Ex 4'-5" 4'-5" 8'-0" LS TMT 8Ø-6"C/C TMT 8Ø-4" C/C TMT 8Ø-4" C/C 17'-9" LS TMT 8Ø-6"C/C TMT 8Ø-4" C/C TMT 8Ø-4" C/C 17'-9" 3'-0" 5'-0" LS TMT 8Ø-6"C/C TMT 8Ø-4" C/C TMT 8Ø-4" C/C 5 12'-0" 3'-6" 3'-0" 3'-0" 3'-6" 5'-0" LS TMT 8Ø-6"C/C TMT 8Ø-4" C/C TMT 8Ø-4" C/C 12'-0" LS TMT 8Ø-6"C/C TMT 8Ø-4" C/C TMT 8Ø-4" C/C 12'-0" LS TMT 8Ø-6"C/C TMT 8Ø-4" C/C TMT 8Ø-4" C/C 12'-0" 3'-6" 3'-6" 3'-6" 3'-6" 3'-0" 3'-0" 5'-0" 3'-0" 3'-0" 5'-0" 2 -12Ø Ex -12Ø Ex -16Ø Ex -16Ø Ex 2 -16Ø Ex -16Ø Ex -16Ø Ex -16Ø Ex -12Ø Ex -12Ø Ex 10" Second Floor Level -16Ø TH 1-12ØTH 10" Third Floor Level -12Ø TH -12Ø TH -12Ø TH 1-16ØTH 10" Top Floor Level -12Ø TH -12Ø TH 10" First Floor Level -16Ø TH -16Ø TH 1-12ØTH 5'-3" 3 4 2'-8" 2'-8" LS TMT 8Ø-6"C/C TMT 8Ø-4" C/C TMT 8Ø-4" C/C 11'-5" 2'-8" 2'-8" LS TMT 8Ø-6"C/C TMT 8Ø-4" C/C TMT 8Ø-4" C/C 11'-5" 5'-6" Longitudinal P rofile of B eam A long Grid D-D Scale:1"=4' 5'-6" 9" 1st Floor Level -12Ø TH 3 -12Ø TH 9" 2nd Floor Level -12Ø TH -12Ø TH Support/Brickwall 152 Landing lvl. TMT 8Ø @8"C/C A TMT 12Ø @6"C/C TMT 12Ø @6"C/C Nosing chair TMT 8Ø Nosing bar 8Ø Ground floor lvl. Refer Beam Profile B TMT 12Ø @6"C/C TMT 8Ø @6"C/C 2'-8" TMT 12Ø @6"C/C TMT 12Ø @6"C/C 2'-8" TMT 12Ø @12"C/C TREAD 11" RISER 7" First Fight Section at A-A scale - 3/8"=1'-0" Second Fight Section at B-B scale - 3/8"=1'-0" TMT 12Ø @6"C/C 4 Support/Brickwall 152 Landing lvl. 3 TMT 12Ø @6"C/C Nosing chair TMT 8Ø Nosing bar 8Ø 52 Landing lvl. TMT 12Ø @6"C/C TMT 8Ø @8"C/C TMT 12Ø @6"C/C 4 52 Landing lvl. TMT 12Ø @6"C/C TMT 12Ø @6"C/C 2'-8" TMT 12Ø @6"C/C Nosing chair TMT 8Ø Nosing bar 8Ø TMT 12Ø @6"C/C A 2'-8" B Refer Beam Profile 5" Ld TMT 8Ø @6"C/C TMT 12Ø @6"C/C First floor lvl. TMT 12Ø @12"C/C Third Fight Section at C-C scale - 3/8"=1'-0" TREAD 11" RISER 7" Sill & Ltntel Band A A A A Beam Lintel Band Sill Band Scale :- 1/4"=1' Scale 1" 1'-0" 12mm Ø Nos. Stirrups 7mm Ø @ 6" c/c 3" 9" 8ø @6" c/c SCALE: 1"=1' SILL & LINTEL BAND DETAIL vertical bend (1'6") Typical Connection of main beam & seconday beam Ld 1" GAP BETWEEN BARS FOR OFFICIAL USE ONLY E N W S Plot No:- 127 Building Type:-Residential Checked By:Area Signature:Sign: Green Design Associates Pvt. Ltd. Sankhamul Tower, Sankhamul, Kathmandu Ph: 9851120343 Details:- Structure Drawing NEC Reg. No.- 11551 Civil A Date:-Jul. 2022 Owner:- Mandip Archarya Location:- Chapali, Budanilkantha Design & Drawn By:Scale 8 "=1' Except as mentioned Er. Rajan Dhingri S3 As per lal purja:- 0-11-2-0 Er. Rajan Dhingri

MARKET SURVEY

TYPE OF WORK: 1.MARKET VISIT

WALL TILES 12’’X18’’

2’X2’

BATHROOM TILES 12’’X18’’

SANITARY FIXTURES

F L O O R T I L E S

SITE VISIT

TYPE OF WORK: 1.STUDY

2.SUPERVISION

LEARNINGS

- SITE MEASUREMENT FOR PLOTTING IN CAD

- TALKING WITH CLIENTS FOR THEIR REQUIREMENTS

- STUDY OF BUILDING AROUND THE SITE

- MEASUREMENTS OF PRIMARY ROAD

SITE VISIT AT CHAPALI

SITE VISIT AT BOUDHA HEM JI RESIDENCE

LEARNINGS

- STUDY OF BUILDING FRONT FACADE FOR WORKING DRAWING

- SUPERVISION OF ROOM FOR OPENINGS AND DOOR

- STUDY OF STAIRCASE DETAILS WHILE CONSTRUCTION

LEARNINGS

- SUPERVISION WORKS FOR EVERY ROOMS WITH OPENINGS.

- DUCTS FOR LIGHT AND VENTILATION PURPOSE

SITE
VISIT AT BHANGAL

SITE VISIT AT KRITIPUR CREATIVE ACADEMY

RENOVATION PROJECT OF SCHOOL

SITE VISIT AT SANKHAMUL RESTAURANT DESIGN

FUTURE OF ARCHITECTURE

ARCHITECTURE IN DIGNTAL ENVIRONMENT NON FUNGIBLE TOKENS ( NFT )

THANK YOU

JANARDAN DAS

DEPARTMENT OF ARCHITECTURE

IOE PURWANCHAL CAMPUS

DHARAN, SUNSARI

Turn static files into dynamic content formats.

Create a flipbook
Architectural Internship Report Part03 by JANARDAN DAS - Issuu