PORTFOLIO, Jacco Rampolla

Page 1


PORTFOLIO

JACCO FRANCESCO RAMPOLLA

Rampollajf@appstate.edu

LinkedIn.com/Jaccorampolla

PROFILE

Jacco Rampolla, a recent graduate from Appalachian State University with a Bachelor of Science in Interior Design and A minor in Entrepreneurial Studies. My education from a CIDA-accredited program has provided me with a solid foundation in design principles, technical skills, and creative problemsolving.I am passionate about creating inclusive and diverse spaces that cater to a wide range of demographics. My approach to design prioritizes accessibility, functionality, and aesthetic appeal, ensuring that every space I design is welcoming and usable for all individuals, regardless of their background or abilities I aim to continue my journey in interior design by working with firms that also value diverse perspectives. I aspire to contribute to projects that make a meaningful impact on communities, ensuring that every space developed isaccessible and comfortable for everyone.

SKILLS

Autodesk Revit

Adobe InDesign

AutoCad

Adobe Photoshop

Adobe Illustrator

SketchUp

Twinmotion

Microsoft Word

JACCO RAMPOLLA

2STORYUNITS

1STORYUNITS

POOLLOUNGE

CHANGINGROOMS

COVERED

HOSPITALITY

SPRING 2024

ETTO

CONCEPT

The project is inspired by the natural beauty of geodes, with Cleave reflecting the rugged, exterior and Grotto embodying the intricate, radiant interior. As you work your way up the building, you are taken through a geode's process, experiencing the transition from the rough outer surface to the stunning inner core.

PROJECT OBJECTIVE

Grotto Rooftop and Cleave Penthouse Apartments is an innovative residential initiative utilizing the Ally Building shell in Charlotte, NC. Professors granted access to the campus floorplans and conducted an on-site visit to gain a comprehensive understanding of the space. With access to any of the 26 floors based on project needs, Grotto and Cleave maintain distinct identities while featuring interconnected concepts. Grotto Rooftop offers a unique amenity that enhances the living experience for residents and visitors alike, providing a communal space for relaxation and socializing. Though not exclusively for residents, the rooftop space enriches the overall appeal and functionality of the development. This project was created using Autodesk Revit, Twinmotion, and Adobe Photoshop, ensuring precise architectural design and visualization.

Grotto
RooftopBar&Lounge
Portfolio
Grotto & Cleave
Interior Design
Appalachian State University

LEVEL 25: REFLECTED CEILING PLAN

Grotto

&Lounge

LEVEL 25: FLOORPLAN

INTERIOR AXON

SOLAR PANELS
3FORM GLASS
Portfolio
Grotto Rooftop Interior Design

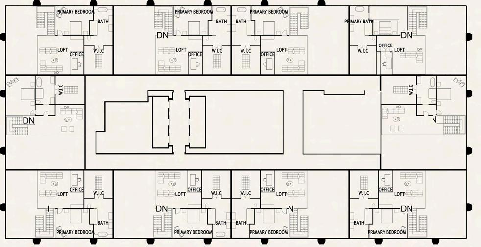
FLOOR PLANS

PROJECT OBJECTIVE

This project consisted of developing an ADA compliant home. The course objective was structured around assessing the family's lifestyle, preferences, and functional requirements, then making strategic modifications to the layout. This project shows capabilities of designing an ADA compliant space using Sketchup and Enscape.

ELEVATIONS

COLOR SCHEME

H

FIRST FLOOR (NTS) SECOND FLOOR (NTS)

HOME

OWNERS BATH OWNERS BEDROOM PATIO

OWNERS BATH

OUTDOOR

PROJECT BRIEF

The Appalachian State University Hickory Campus project is an educational design initiative aimed at enhancing the student and faculty experience through thoughtful and innovative use of space. The focus of this project is on the design and utilization of various key areas within the campus to foster a conducive environment for learning and collaboration. Professors granted exclusive access to the campus floorplans and conducted an onsite visit to gain a comprehensive understanding of the space. Leveraging Autodesk Revit, I chose an outdoor café/lounge, private offices, and indoor lounge/multiuse area as my three key areas of focus.

EDUCATION

LOUNGE

SPRING 2022

HICKORY CAMPUS

Hickory Campus Interior Design Appalachian State University

IDEX LAB

PROJECT OBJECTIVE

Collaborating with an interdisciplinary team from five different majors and two departments, we developed a A Net-Zero, Low-Carbon, Co-Housing Solution for Affordable Housing in the High Country. Divided into groups, I worked with the Sustainable Business Group and Interior Rendering Group, utilizing both SketchUp and Revit.

EXTERIOR RENDER

SITE PLAN

EXPLODED ISOMETRIC WET MODULES

REFLECTED CEILING PLAN

CIRCULATION PLAN

Attached Housing Hickory, NC 4 Buildings (12 Units ea.) Spring 2022

SECOND FLOOR

PROJECT OBJECTIVE

Our project, Parkway Commons, aimed to encapsulate the essence of the Blue Ridge Parkway, as our site plan was situated in Boone, North Carolina. Renowned for its stunning vistas, the Parkway served as our inspiration, symbolizing connection, flexibility, sustainability, and accessibility.

Together , we undertook the challenge of designing an attached housing complex that embodied the principles of sustainability and affordability, which we submitted to the 2023 Solar Decathlon Design Competition.

MEZZANINE RENDERINGS

KITCHEN RENDERINGS

HILLSIDE RESIDENCE

ELEVATIONS FLOOR PLANS

ROOMLEGEND

Bedroom

Living Room

Bathroom Storage Entry Storage

SECOND FLOOR

This project consisted of designing an ADA compliant home. The course objective was structured around assessing the family's lifestyle, preferences, and functional requirements, then making strategic modifications to the layout. The design highlights my capability of designing an ADA compliant space in Sketchup.

EAST WEST

FIRST FLOOR

EXTERIOR AXONOMETRIC

M&F BOARD

PROJECT OBJECTIVE

The prompt familiarized me with making appropriate selections commercial furniture and finishes while also attending to acoustics, concepts, and aesthetics. I developed a materials and finishes board proposal for a Burton Snow Board lobby with My selections being influenced by sustainability and affordability.

ISOLATION SPACE

FLOOR PLAN

PROJECT OBJECTIVE

This project was intended to develop skills of communication with the client. theoretically, our partner (client) was isolated due to covid-19 which tasked us with designing of a compact yet comprehensive spatial

ELEVATIONS

SAFFRON HOTEL

PROJECT OBJECTIVE

Contracted By a Turkish Holitier to design an innovative yet welcoming hotel and restaurant. The objective is to invite guests to submerge themselves in their surroundings and experience the Turkish culture through the spaces design.

The central concept of this design is inspired by saffron, a spice deeply rooted in the Turkish culture and its cuisine.

Designed using Sketchup and Enscape.

RESTAURANT

PROJECT BREIF

In response to the 11th Annual Steelcase NEXT Student Design Competition, my project, executed for NEXT ARCHITECTURE, embraced a vision of the future workplace. Approximately 11,000 SF, and located in Dallas, Texas, the design incorporated natural materials symbolizing sustainability - a shared goal of Steelcase and NEXT Architecture. Within this project is an office space that consists of a lobby/reception, a work cafe/breakroom, private offices, and two separate areas of workstations.

CONCEPT

Industrial materials will be representative of the tower's structure and bright colored finishes are symbolic of the lighting design within the tower and its infamous sunset views. All 259 LED lights must be operating in order to properly display an animation on the tower; all individual lights in unison come together to project one image in the same way a team would collaborate to execute a project or task.

FLOORPLANS

SECTION A: CAFE/WORKSTATION

SECTION B: WORKSTATION/PRIVATE OFFICES

HANDS-ON

DENTAL OFFICE: VINYL FLOORING

RESIDENTIAL: CERAMIC TILE

CARPET TILE RESIDENTIAL: HARD WOOD

PROJECT OBJECTIVE BEFORE AFTER

Having worked extensively with various materials such as vinyl, ceramic, carpet tile, hardwood, and more, I've gained hands-on experience in interpreting construction documents and adjusting to the unique installation methods needed for each flooring type. This experience extends to both commercial and residential projects, enabling me to adjust my approach to meet the specific requirements of each setting and material.

THANK YOU

Jacco Rampolla, a recent graduate from Appalachian State University with a Bachelor of Science in Interior Design and a minor in Entrepreneurial Studies. My education from a CIDAaccredited program has provided me with a solid foundation in design principles, technical skills, and creative problem-solving.

rampollajf@gmail.com

(704) 923-7268

LinkedIn.com/Jaccorampolla

JACCO RAMPOLLA

Turn static files into dynamic content formats.

Create a flipbook
Issuu converts static files into: digital portfolios, online yearbooks, online catalogs, digital photo albums and more. Sign up and create your flipbook.
PORTFOLIO, Jacco Rampolla by Jaccorampolla - Issuu