Interior Architecture Portfolio (2019-2023)

Page 1

01

CONTENTS

02

Retail Design

Flagship store for Straw Sem 9

03

Office Design

Exploration in Design: Material in Focus Sem 5 (Working Drawing Studio)

04

hOspitality Design

Designing a F & B space Sem 6

05

Office tRaining (6 mOnths)

Firm Name - Workshop INC. - Ahmedabad, India Sem 8

cafe Design

Sem 7

06 OtheRs Sem 1

Straw was founded in 2019 by Sonam about design and fine craftsmanship creative people. Straw has handcrafted and jewelry.

‘We believe that artisans, like creativity collaborate and curate products

4
stRaw flagship Semester - 9 (Retail

lagship stORe

(Retail design)

Sonam and Varun, who are passionate craftsmanship inspired by various cultures and handcrafted handbags, homedecor items jewelry.

creativity have no boundaries, therefore we products that celebrate design.’

5
Link to detailed project
6
7
8
9
10
11
12
13

the classics -

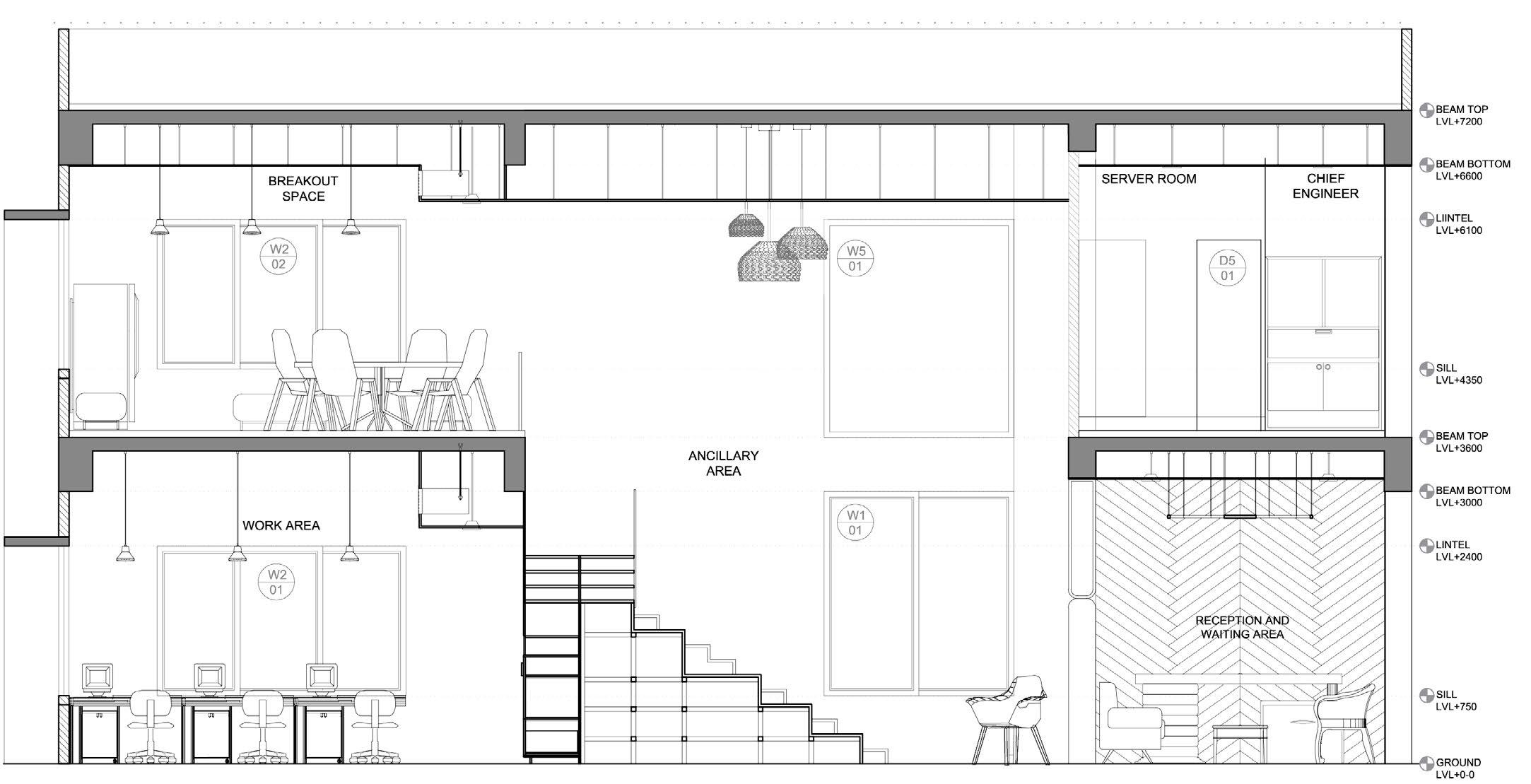
Semester - 5 (Office Design

Program: Designing an office of own intrest with producing working drawings

Radio Broadcasting is where all the creativity, The Classics is a Radio Station that engages with planning, production, preparation to the broadcasting best possible circulation throughout the spaces employees, and the radio

14

Design

RaDiO statiOn

- Working Drawing Studio)

focus on materials, logical design decisions and in the sequence of execution.

joy, and fun come together in an explosive mix. with the whole process of radio transmission from broadcasting of radio programs. The office has the which ensures easy flow of the employees, nonradio content production.

15
Link to detailed project

Co-working Space Reception Space Breakout space Circulation space

Private Workspace

16
OSB (ORIENTED STRAND BOARD)
ACOUSTIC PANELS
MINERAL FIBRE BOARD LAMINATE FLOOR ING
mateRial palette
GLASS
sectiOn aa’ layOut - gROunD flOOR
17 ReflecteD ceiling plan
fiRst flOOR

table Design

inteRnal elevatiOns

18
19

paR titiOn Design

20
21

stORage Design

22
23 Key Plan

The site is an old Portuguese mansion that is to site is a Portuguese mansion, there is a Goan experience, my idea is either to add to it or to contrast I built my concept around adding dynamic elements break the static appearance that Goan architecture of Bar + Fine dining that serves Goan cuisine and Outdoor barbeque and live music add

24 estej
Semester - 6 (Hospitality

estej

(Hospitality Design Studio)

to be converted into an F and B outlet. As the architectural style to it but, to give a different contrast it. As I went further in the design process, elements and curvy linear forms that contrast and architecture has. I propose to provide a combination and All day dinner that serves continental food. add to the experience at the restaurant.

25
Link to detailed project
26
27
28
29
30
31

Workshop Inc. is a multi-disciplinary design practice comprising of architects, designers and artists operating within the fields of architecture, interior design, products, graphics and installations. Based in Ahmedabad, the practice takes a consistent, holistic approach to spatial design and interior architecture and offers a profound understanding and interpretation of the full range of creative possibilities.

LEARNING EXPERIENCE

During my internship at Workshop Inc., I learnt about different stages of a design project, from ideation to execution. I also enhanced and improved my work efficiency.

My scope of work included:

• Ideation

• Working drawings

• Client interaction

• Co-ordination with Different agencies

• 3d modeling

• rendering

• Making presentations

32

01

Meet Makad Residence

Shela, Ahmedabad Duplex

Involved in initail Ideation

Working Drawing Execution

03

Shah Residence

Shela, Ahmedabad Duplex

Involved in initail Ideation Working Drawing Execution

02

Mrs. Nishita Residence Mumatpura, Ahmedabad Bunglow

Involved in initail Ideation Working Drawings

04

Pritesh Patel Residence Ahmedabad

Bunglow (Pooja room) Design Execution

33
inteRnship (sem 8) Link to detailed project
34 ELEVATION A ELEVATION B LIVING ROOM + DINING SPACE 7620 MM X6390 MM b a LIVING ROOM + DINING SPACE 7620 MM X6390 MM ELECTRICAL AND FALSE CEILING LAYOUT PLAN GYPSUM FALSE CEILING FINISHED IN APPROVED VENEER AT 75 MM FROM BEAM BOTTOM LVL@ 2390 MM FFL 300 615 2070 2070 2070 615 740 780 780 740 600 1010 1510 1010 Y Y Y (Y=1440) 840 840 300 300 2125 1010 1900 1010 130 200 225 715 715 195 195 150 595 900 300 270 900 2355 550 100 550 50 1350 1050 450 130 105 745 220 2405 0 900 1490 300 200 Y 5 Y 5 Y (Y=990) 770 X 3X X X (X=395) 75 5 355 Z (Z=300) Z Z Z Z Z Z Z Z Z Z Z Z 600 2715 790 630 630 B 5 B 5 B 5 B (B=740) 145 765 5 A 5 A 5 A (A=785) 75 130 40 960 1980 225 130 A' A 2560 1455 790 900 B infORmal living - wORking DRawing, RenDeRs anD executiOn ELEVATION A ELEVATION B LIVING ROOM + DINING SPACE 7620 MM X6390 MM b a LIVING ROOM + DINING SPACE 7620 MM X6390 MM ELECTRICAL AND FALSE CEILING LAYOUT PLAN GYPSUM FALSE CEILING FINISHED IN APPROVED VENEER AT 75 MM FROM BEAM BOTTOM LVL@ 2390 MM FFL 300 615 2070 2070 2070 615 740 780 780 740 600 1010 1510 1010 Y Y Y (Y=1440) 840 840 300 300 2125 1010 1900 1010 130 200 225 715 715 195 195 900 300 270 900 2355 550 100 550 50 1350 1050 450 130 105 745 220 2405 0 900 1490 300 200 Y 5 Y 5 Y (Y=990) 770 X 3X X X (X=395) 75 5 355 Z (Z=300) Z Z Z Z Z Z Z Z Z Z Z Z 600 2715 790 630 630 B 5 B 5 B 5 B (B=740) 145 765 5 A 5 A 5 A (A=785) 75 40 1980 A' A 2560 1455 790 900 B ELEVATION A ELEVATION B LIVING ROOM + DINING SPACE 7620 MM X6390 MM b a LIVING ROOM + DINING SPACE 7620 MM X6390 MM ELECTRICAL AND FALSE CEILING LAYOUT PLAN GYPSUM FALSE CEILING FINISHED IN APPROVED VENEER AT 75 MM FROM BEAM BOTTOM LVL@ 2390 MM FFL 300 615 2070 2070 2070 615 740 780 780 740 600 1010 1510 1010 Y Y Y (Y=1440) 840 840 300 300 2125 1010 1900 1010 130 200 225 715 715 195 195 150 595 900 300 270 900 2355 550 100 550 50 1350 1050 450 130 105 745 220 2405 0 900 1490 300 200 Y 5 Y 5 Y (Y=990) 770 X 3X X X (X=395) 75 5 355 Z (Z=300) Z Z Z Z Z Z Z Z Z Z Z Z 600 2715 790 630 630 B 5 B 5 B 5 B (B=740) 145 765 5 A 5 A 5 A (A=785) 75 130 40 960 1980 225 130 A' A 2560 1455 790 900 B ELEVATION A ELEVATION B LIVING ROOM + DINING SPACE 7620 MM X6390 MM b a LIVING ROOM + DINING SPACE 7620 MM X6390 MM ELECTRICAL AND FALSE CEILING LAYOUT PLAN GYPSUM FALSE CEILING FINISHED IN APPROVED VENEER AT 75 MM FROM BEAM BOTTOM LVL@ 2390 MM FFL 300 615 2070 2070 2070 615 740 780 780 740 600 1010 1510 1010 Y Y Y (Y=1440) 840 840 300 300 2125 1010 1900 1010 130 200 225 715 715 195 195 900 300 270 900 2355 550 100 550 50 1350 1050 450 130 105 745 220 2405 0 900 1490 300 200 Y 5 Y 5 Y (Y=990) 770 X 3X X X (X=395) 75 5 355 Z (Z=300) Z Z Z Z Z Z Z Z Z Z Z Z 600 2715 790 630 630 B 5 B 5 B 5 B (B=740) 145 765 5 A 5 A 5 A (A=785) 75 130 40 960 960 960 960 40 1980 A' A 2560 1455 790 900 B
35 1602 DRESS 150 595 1980 225 130 FALSE CEILING LVL@6180MM 75 MM VENEER SKIRTING VENEER PANELING 4MM X 25MM(WIDTH) BRASS PLATE FALSE CEILING LVL@6180MM OPEN STORAGE WITH BRASS FRAME (450MM DEPTH) CLOSED STORAGE WITH VENEER PANELING (450MM DEPTH) 75 MM VENEER SKIRTING 450MM WIDE VENEER PANELING SLIDING DOORS 300MM WIDE VENEER PANELING 150MM WIDE VENEER PANELING DOOR TO THE GUEST ROOM 4MM X 100MM(WIDTH) BRASS PLATE FALSE CEILING LVL@2425MM FALSE CEILING LVL@2425MM 100 30 4 20 4MM THICK BRASS PLATE VENEER PANEL WALL DETAIL AT B IN PLAN VENEER PANEL VENEER PANELING (CLOSED STORAGE) 4MM THICK BRASS PLATE (OPEN STORAGE) 4MM THICK BRASS PLATE (WIDTH-25MM) SECTION AA' 380 475 LEGEND MARBLE PANELING AT 50MM FROM THE WALL MARBLE PANELING AT 25MM FROM THE WALL VENEER PANELING PENDENT LIGHT SWITCH BOARD AT 150MM FROM FFL SWITCH BOARD AT 900MM FROM FFL COVE LIGHTING PROVISION 450MM WIDE VENEER PANEL 300MM WIDE VENEER PANEL 150MM WIDE VENEER PANEL FLOOR POINT CEILING LIGHT BOOKMATCHED MARBLE WHITE MARBLE KEY PLAN EXECUTION 1602 DRESS 150 595 900 300 600 1980 225 130 FALSE CEILING LVL@6180MM 75 MM VENEER SKIRTING VENEER PANELING 4MM X 25MM(WIDTH) BRASS PLATE FALSE CEILING LVL@6180MM OPEN STORAGE WITH BRASS FRAME (450MM DEPTH) CLOSED STORAGE WITH VENEER PANELING (450MM DEPTH) 75 MM VENEER SKIRTING 450MM WIDE VENEER PANELING SLIDING DOORS 300MM WIDE VENEER PANELING 150MM WIDE VENEER PANELING DOOR TO THE GUEST ROOM 4MM X 100MM(WIDTH) BRASS PLATE FALSE CEILING LVL@2425MM FALSE CEILING LVL@2425MM 900 100 30 20 VENEER PANEL DETAIL AT B IN PLAN VENEER PANEL VENEER PANELING (CLOSED STORAGE) 4MM THICK BRASS PLATE (OPEN STORAGE) 4MM THICK BRASS PLATE (WIDTH-25MM) SECTION AA' 380 475 LEGEND MARBLE PANELING AT 50MM FROM THE WALL MARBLE PANELING AT 25MM FROM THE WALL VENEER PANELING PENDENT LIGHT SWITCH BOARD AT 150MM FROM FFL SWITCH BOARD AT 900MM FROM FFL COVE LIGHTING PROVISION 450MM WIDE VENEER PANEL 300MM WIDE VENEER PANEL 150MM WIDE VENEER PANEL FLOOR POINT CEILING LIGHT BOOKMATCHED MARBLE WHITE MARBLE KEY PLAN EXECUTION 1602 KITCHEN 150 595 1980 225 130 FALSE CEILING LVL@6180MM 75 MM VENEER SKIRTING VENEER PANELING 4MM X 25MM(WIDTH) BRASS PLATE FALSE CEILING LVL@6180MM OPEN STORAGE WITH BRASS FRAME (450MM DEPTH) CLOSED STORAGE WITH VENEER PANELING (450MM DEPTH) 75 MM VENEER SKIRTING 450MM WIDE VENEER PANELING SLIDING DOORS 300MM WIDE VENEER PANELING 150MM WIDE VENEER PANELING DOOR TO THE GUEST ROOM 4MM X 100MM(WIDTH) BRASS PLATE FALSE CEILING LVL@2425MM FALSE CEILING LVL@2425MM 100 30 4 20 4MM THICK BRASS PLATE VENEER PANEL WALL DETAIL AT B IN PLAN 890 1490 1490 VENEER PANEL VENEER PANELING (CLOSED STORAGE) 4MM THICK BRASS PLATE (OPEN STORAGE) 4MM THICK BRASS PLATE (WIDTH-25MM) SECTION AA' 380 475 LEGEND MARBLE PANELING AT 50MM FROM THE WALL MARBLE PANELING AT 25MM FROM THE WALL VENEER PANELING PENDENT LIGHT SWITCH BOARD AT 150MM FROM FFL SWITCH BOARD AT 900MM FROM FFL COVE LIGHTING PROVISION 450MM WIDE VENEER PANEL 300MM WIDE VENEER PANEL 150MM WIDE VENEER PANEL FLOOR POINT CEILING LIGHT BOOKMATCHED MARBLE WHITE MARBLE KEY PLAN EXECUTION
36 fORmal living - wORking DRawing, RenDeRs anD executiOn ELEVATION D ELEVATION B ELEVATION A ELEVATION C FORMAL LIVING ROOM 3675 MM X 5690 MM FORMAL LIVING ROOM 3675 MM X 5690 MM 75 X (X=390) X X X X X X X 155 X X X X X X X X X X X X X 150 75 2365 470 150 75 260 2105 470 150 75 225 1675 165 470 620 2200 630 230 760 2000 760 450 1145 1145 150 615 740 615 655 2210 655 435 2210 435 150 70 150 70 1755 665 585 1695 960 960 960 960 c d a b 450 FALSE CEILING LVL@2910MM WOODEN PANELING 75 MM STONE SKIRTING GUN FINISHED STORAGE 50 50 FALSE CEILING LVL@2910MM WOODEN PANELING 75 MM WOODEN SKIRTING FALSE CEILING LVL@2425MM FALSE CEILING LVL@2425MM MARBLE FLUTED PANELING 75 SKIRTING FALSE LVL@2425MM WALL IN 75 SKIRTING WOOD FALSE LVL@2910MM PLAN FALSE CEILING AND ELECTRICAL LAYOUT GYPSUM FALSE CEILING FINISHED IN APPROVED PAINT AT 2910 MM FROM FFL (150 LVL FROM SLAB LVL) WOODEN FALSE CEILING FINISHED IN APPROVED VENEER AT 2425 MM FROM FFL(405 LVL FROM SLAB BOTTOM LVL) 150 1370 230 515 2375 1020 105 765 2000 760 230

MARBLE

PROVISION

37 450 150 50 GUN METAL FINISHED STORAGE MARBLE PANELING FLUTED MARBLE PANELING 75 MM STONE SKIRTING FALSE CEILING LVL@2425MM WALL FINISHED IN LIMOCOAT 75 MM STONE SKIRTING WOOD PANELING FALSE CEILING LVL@2910MM 550 190 190 390 390 A 835 8 35 SECTION AA' SECTION BB' B B' 195 195 RENDERS WOODEN PANELING TYPE 1 WOODEN PANELING TYPE 2 KEY PLAN EXECUTION LEGEND GUN METAL FINISH MARBLE (AS PER SELECTION) LIMOCOAT WALL VENEER PANELING PROVISION FOR ELECTRIC CONNECTION PENDENT LIGHT CEILING LIGHT PENDENT LIGHT 1145 450 150 50 GUN METAL FINISHED STORAGE MARBLE PANELING FLUTED MARBLE PANELING 75 MM STONE SKIRTING FALSE CEILING LVL@2425MM WALL FINISHED IN LIMOCOAT 75 MM STONE SKIRTING WOOD PANELING FALSE CEILING LVL@2910MM 550 190 190 390 390 A A' 390 835 8 35 SECTION AA' SECTION BB' B B' 195 195 FINISHED IN FROM FFL RENDERS WOODEN PANELING TYPE 1 WOODEN PANELING TYPE 2 KEY PLAN EXECUTION LEGEND GUN METAL FINISH MARBLE (AS PER SELECTION) LIMOCOAT WALL VENEER PANELING PROVISION FOR ELECTRIC CONNECTION PENDENT LIGHT CEILING LIGHT PENDENT LIGHT FORMAL LIVING ROOM 3675 MM X 5690 MM 630 760 1145 1145 450 150 50 GUN METAL FINISHED STORAGE MARBLE PANELING FLUTED MARBLE PANELING 75 MM STONE SKIRTING FALSE CEILING LVL@2425MM WALL FINISHED IN LIMOCOAT 75 MM STONE SKIRTING WOOD PANELING FALSE CEILING LVL@2910MM 550 190 190 390 390 A A' 390 835 8 35 SECTION AA' SECTION BB' B B' 195 195 GYPSUM FALSE CEILING FINISHED IN APPROVED PAINT AT 2910 MM FROM FFL LVL FROM SLAB LVL) RENDERS WOODEN PANELING TYPE 1 WOODEN PANELING TYPE 2 KEY PLAN EXECUTION LEGEND GUN METAL FINISH
(AS PER SELECTION)
WALL VENEER PANELING
LIMOCOAT
FOR ELECTRIC CONNECTION PENDENT LIGHT CEILING LIGHT PENDENT LIGHT
38 1 4
infORmal living - Dining space - RenDeRs
3
39
Materials Wood Veneer Swiss Brown Marble Brass White Marble Gun Metal Texture
2 1 4 2 3
Upholstry

cafe Design (sem 7)

The interiors have organic and curvilinear forms with a earthy texture to surfaces on walls and floor. The concept of niche is used for the display wall to present the artifacts and art by local artists. With the Rose-gold light fixtures and warm lighting creates welcoming ambience at night.

40 2
3 1 5 2
Individual and bar seating Group Seating
Enterance
Washroom
Bar area Storage Type of space
5 Plan Section AA’ A’ A
Tea Coffee Waffles

The Furniture is simple and has curvilinear elements that complements other organic forms in the cafe.

41 Rise&Shine
Plywood with Veneer finish POP Textured wall Stainless Steel
5 3 1 Link to detailed project
Microconcerte Flooring

vaRanasi - fielD stuDy (sem -1)

42
43 hOw things wORk (sem -1)
In the streets of Montpellier, France 7043439429 isha.ug190596@cept.ac.in aaart_ishh THANK YOU

Turn static files into dynamic content formats.

Create a flipbook
Issuu converts static files into: digital portfolios, online yearbooks, online catalogs, digital photo albums and more. Sign up and create your flipbook.
Interior Architecture Portfolio (2019-2023) by isha.portfolio - Issuu