Looking Back into the Future

Page 1


LOOKING BACK INTO THE FUTURE:

BIOCLIMATIC DESIGNS LEARNING FROM A VERNACULAR APPROACH AND CAN IT APPLY TO CONTEMPORARY DESIGN?

Isabelle Yap Ern Thung

19023642

Department of Architecture and the Built Environment

University of the West of England (UWE)

BSc (Hons) Architecture

Word count: 5017 words 17/07/2023

Statement of work

This study was completed as part of the BSc (Hons) Architecture at the University of the West of England. The work is my own. Where the work of others is used or drawn on, it is attributed to the relevant source.

AbstractThis dissertation is protected by copyright. Do not copy any part of it for any purpose other than personal academic study without the permission of the author.

To identify and analyse bioclimatic designs from a vernacular approach and determining if it could be implemented into contemporary buildings in the U.K. The UK Climate Projection (Kennedy-Asser et al., 2021) reports that over the next few decades, U.K. is going to experience hotter and drier summers and warmer but wetter winters. The buildings in the U.K. were not built for the increased summer heat. The goal is to learn from the bioclimatic designs of vernacular architectures in hotter climates in hopes of implementing it in U.K. buildings so the use of mechanical cooling can be avoided, thus further reducing carbon dioxide emissions. This research will look into three different climates, which are subtropical, Mediterranean and temperate. The vernacular architectures of these climates will be studied through literature reviews.

2. Methodology

I have chosen to conduct this study through qualitative research by using a case study approach. The process of qualitative research typically involves developing questions and techniques, data collection done in participant’s setting, inductive data analysis and the researcher’s interpretation of the significance of the data (Creswell, J. W., 2014). By using the case studies approach, I will be able to gather comprehensive information through a range of data collection techniques to construct a thorough analysis of my topic (Stake, 1995; Yin, 2009, 2012).

I decided to take inspiration from Olgyay’s (1963) three discipline considerations of bioclimatic approach that are supplementary to the architectural design, which are:

1. Defining the biological parameters and criteria for human comfort.

2. Evaluating the existing climatic conditions.

3. Arriving at a sensible architectural solution with the application of Engineering sciences.

I began my study by gathering a series of publications including books, reports, journal articles, conference proceedings and research papers through the UWE library and Google Scholar search engine to help me develop my research questions. I used the following keywords to navigate my search: vernacular architecture, bioclimatic design, climate zones, climate response and thermal comfort. I managed to collect and integrate both written and visual material in my research with this method. Once I started to investigate the interconnection between vernacular architecture, thermal comfort, and climate change, I realised majority of the homes in UK will not be able to combat the rise in summer heat. Subsequently, I narrowed down to 3 climate zones that I thought would be the most helpful as reference for UK’s rising summer temperature. A case study is picked for each climate and a systematic analysis is then carried out to identify how the bioclimatic strategies were used and how it provided thermal comfort to the users. All the findings were organised and compiled into a table (Figure 1), before moving into the discussion. Lastly, a conclusion is made. The research road map can be seen below:

Figure 1: Research road map

3. Literature Review

Chapter 2 of this dissertation explained the methodology that will be used throughout this study. This chapter will start carrying out the research, following the research road map shown in chapter 2, under the following headings:

3a. Climate change

3a.i Climate projection in the UK

3a.ii. Thermal comfort

3a.iii. Mechanical cooling

3b. Vernacular architecture

3b.i. Climate classification

3b.ii. Case study 1 : Mediterranean - Greece

3b.iii. Case study 2: Subtropical - Japan

3b.iv. Case study 3: Temperate coastal - Spain

3a. Climate change

Climate change is a phenomenon caused by the increase of greenhouse gases, particularly carbon dioxide (CO2) (Denchak, M. 2019). There is an increase in demands from humans for a certain kind of lifestyle that is dependent on the supply of inexpensive, convenient, and quick source of energy, which is fossil fuel. There are seven dominant sectors that contributes most of the CO2 emission in the world, and one of them is the building and construction industry (IPCC, 2007). These emissions mainly came from the construction processes, maintenance, and operational energy of the building. The reason why environmental habitat concerns have always been overlooked is because economic cost efficiency is always being prioritised. However, with the increase in methods to calculate and compare carbon emissions, an increase in the importance of environmental effects of building life cycles has been observed. One of the tools that could be used for that purpose is Building Information Model (BIM), which allows user to estimate the embodied and operational carbon of a typical four-bedroom detached house over a 60-year life span.

To improve the carbon emission in the construction industry, the differences between embodied and operational carbon must be understood. Embodied carbon includes the carbon needed to transport, produce, and install every building component during the span of the project. On the contrary, operational carbon is the carbon required for the day-to-day running of the building when it is in-use. They are both crucial for the improvement of carbon emission. However, I would like to place more emphasis on operational carbon, specifically bioclimatic designs in vernacular architecture, in hopes to reduce the CO2 emission during day-to-day activities as mechanical systems grow more obsolete with an increase adaption of bioclimatic designs.

2: The amount of each human-caused greenhouse gas emission contributes to the world around the globe is shown through the diagram (Denchak, M. 2019).

Figure

A heatwave is generally defined as a ‘prolonged period of n or more days with temperatures exceeding a given threshold, x’ (Kennedy-Asser, A.T. et al. 2021) as there is no standard definition that would be applicable to all circumstances and locations (Perkins and Alexander 2013). As each region would have a different temperature threshold. (Mccarthy et al 2019a). As Paul Oliver (1997) said, ‘The variation of climatic experience both indoors and out is often an essential part of life – and to some it is the essence of being alive.’ The temperature range of 22°C ± 2°C has been identified as the operational comfort level in the ambient air for humans (Dahl, T, 2010). There is a correlation between the optimization of climate conditions of indoor climate and the prevention of discomfort and illness in humans (Dahl, T, 2010). In Victor Olgyay’s book Design with Climate (1963), he identified a comfort zone through the relationship between temperature, wind and humidity and presented it in the form of a graph (Figure 3).

To identify the best conditions for humans to function in both indoor and outdoor climate, the intricate interactions between three main variables have to be considered, which are temperature, humidity and air movement (Dahl, T, 2010). This dissertation will be focusing more on the building’s thermal comfort during the summer because most UK buildings were traditionally designed according to the winter climate. Thermal comfort during the summer has been less of a concern (Gething, B. & Puckett, K., 2013) as most buildings in the UK rely on comfort ventilation, which is done by allowing cool outside air to enter the building through open windows (Hacker, J.N. and Holmes, M.J.,2007). However, this strategy will not work if the air temperature outside is higher than the temperature required for thermal comfort (Hacker, J.N. and Holmes, M.J., 2007) (UKCIP, 2005).

Figure 3: Comfort zones.

To achieve a consistent, measured indoor climate with a uniform temperature across all room, an internationally standardized comfort requirements have been created (Dahl, T, 2010). However, this is technically unachievable unless mechanical climate systems are being utilised (Dahl, T, 2010). To meet the need for low capital cost during the crisis of 1970s not withstanding ever since the Second World War, most commercial and public buildings have become sealed buildings with mechanical cooling and heating. (UKCIP, 2005). The use of air-conditioning in sealed building has become the modern strategy for coping with the warm weather (Hacker, J.N. and Holmes, M.J., 2007).

It poses a possibility for people to become accustomed to artificially cool surroundings to the extend where it becomes the norm (Gething, B. & Puckett, K.,2013) (Hitchin and Pout 2000; He et al., 2005). Although there would be a reduce in energy demand as winters become warmer, there will still be an increase in cooling-energy consumption and carbon emissions for air-conditioning, which makes it an unsustainable adaptation strategy (Gething, B. & Puckett, K.,2013) (Hacker, J.N. and Holmes, M.J., 2007).

By purely using mechanical means to ensure standardized climate is achieved will not satisfy the user’s requirements for well-being, variety and comfort conditions and the desire of using natural conditions to create a high indoor climatic quality (Dahl, T, 2010). As Richard Rogers said ‘We must endeavour to employ technologies that sustain rather than pollute, that are durable rather than replaceable, and that add value over time rather than falling prey to short term economies.’ (UKCIP, 2005). It is a priority to find an alternative means of solution that provides a comfortable indoor environment whilst reducing carbon dioxide emission.

Vernacular architectures are mostly bioclimatic not by choice, but due to the absence of modern technological advancement back then to aid humans in regulating air circulation and temperature, it was a necessity for vernacular architecture to be bioclimatic in order to provide a comfortable living space. Maximum efforts were often achieved by combining with minimal means for an efficient use of resources (Rapopart, 1985a). That is the reason why while there are anti-climactic solutions (Rapopart, 1969), the climate response strategies in vernacular design are usually immensely effective (Turan, M., 1990).

Not to be confused with biomimicry and biophilic design, bioclimatic design is a design approach that is based on local climate. The word ‘bioclimatic’ suggests a connection between architectural design and the psychological and physiological need for comfort and health. As it passively adapts to the microclimate and produces design solutions that improve internal comfort conditions without the presence or use of any active-engineering environmental devices. From the building orientation, material choice, apertures, shading to naturally ventilating, heating and cooling the structure, it is also known as the “passive mode” design.

3b. Vernacular architecture

Weather indicates the immediate atmospheric situation on earth, whereas climate is determined by the average weather over a certain number of years, usually at least over the course of 30 years (Dahl, T.,2010). The word ‘climate’ was derived from the Greek word ‘klima’ (‘slope’) suggested how the local environment condition was influenced by the angle of solar incidence (Oliver, P, 1997).

Believed to be inspired by the Greek classical period, Ptolemy (c. AD 90-168), the Greek astronomer divided Earth into three climate zones based on air temperature, which he believed followed the angle of the sun (Dahl, T, 2010) (Oliver, P, 1997). The same three climate zones also served as the basis for Vitruvius’ theories (Dahl, T.,2010). However, in modern day, global classification of climate data is divided into zones of similarity for biological study, particularly agricultural, by measuring solar radiation, wind and air pressure conditions, humidity, and precipitation (Dahl, T.,2010).

Since climate is not the only factor influencing vernacular architecture, it is uncommon to be served as the foundation of geographic mapping (Oliver, P, 1997). The climate types that will be used in this dissertation were primarily determined by temperature and secondarily based on humidity (Dahl, T.,2010), it is as listed in the table (Figure 4).

Due to climate change, there is a risk of having high levels of thermal discomfort and heat stress occur in existing UK buildings (Hacker et al., 2005). As it has been established earlier, UK buildings were not built for the increasingly hot summer with the lack of controllable ventilation, thermal mass, good insulation, and air tightness (Hacker et al., 2005). The three microclimates that has been chosen to be studied are listed below:

1. Mediterranean: Long, warm summers; short, cool and humid winters; little variation between day and night

2. Subtropical: Long, warm, and humid summers; short winters with strong, cool winds; coastal climate outside tropics

3. Temperate coastal (moderate and humid): Short, cool summers; mild winters; proximity to the sea, often windy, high humidity

Overall, these microclimates were chosen for its warmer climate, which could be used as a good temperature analogue for the future UK summer temperature, based on climate projections results in UKCP18 (2019).

Figure 5: The temperature in Marseille from 1961-1990 is compared to the predicted average of maximum temperatures in London in the 2080s.

Figure 4: A table of different climate type based on temperature and humidity.
Figure 6: Whitewashes plaster buildings.

3.b.iv. Case study 3: Temperate coastal - Spain

Spain falls in the temperate climate zone. However, for the purpose of this case study, I will be focusing on a temperate coastal zone, which is the city of Cádiz. The city of Cádiz is surrounded by the sea in the south of Spain (Rubio-Bellido et al., 2015). It experiences mild summers and winter, high humidity and constant wind (Rubio-Bellido et al., 2015). Although it is located in Spain, its geographic location is in separate, well sealed and defendable region due to a calm sea by the bay (Rubio-Bellido et al., 2015). It can be categorised as a mild Mediterranean climate (Rubio-Bellido et al., 2015).

A popular historic dwelling in Cádiz is the row-houses, which organises around a deep courtyard (Rubio-Bellido et al., 2015). The courtyards are usually wider than the street its on, surrounded by four storey dwellings around it (Rubio-Bellido et al., 2015). It was designed for the purpose of lighting and ventilation (Rubio-Bellido et al., 2015). The courtyard acts as a heat sink and cold air storage (Freewan, A, A, Y., 2019). At night, the cold air in the air sinks into the courtyard, creating a cold air exchange with the surrounding rooms, cooling the spaces (Freewan, A, A, Y., 2019). At noon, when the sun strikes right into the courtyard, the temperature of the courtyard starts to increase, the hot sir rises, drawing the hot air from the surround rooms, subsequently creating air flow, resulting in cooling the spaces (Freewan, A, A, Y., 2019). Once the courtyard is all warmed up and the cold air has all flowed out, it prepares for the new cycle once night falls (Freewan, A, A, Y., 2019). In the winter, the courtyard is also able to trap heat, subsequently heating the surrounding spaces (Rubio-Bellido et al., 2015).

Glazed balconies are another distinct features on buildings in the city, which is distinct to the city in that region (Rubio-Bellido et al., 2015). The glazed balcony is places within the balcony itself, it is made of an intricate frame extending out from the balcony’s railing (Rubio-Bellido et al., 2015). The performance of the glazed balcony is more similar to a greenhouse rather than a double-glazed opening as heat accumulation occurs in the intermediate gallery space (Rubio-Bellido et al., 2015). In the summer, the wooden doors are opened during the day with net curtains attached on the inner side to create air flow and avoid overheating (Rubio-Bellido et al., 2015). In the winter, the glazed balcony works as a natural heat accumulator, using its thermal inertia (Rubio-Bellido et al., 2015).

For the building without a glazed balconies, there would still be normal balconies as it is one of the main characteristic of the buildings in Cádiz (Rubio-Bellido et al., 2015). It is usually 1m to 1.2m in width and 2.2m to 2.4m in height, and present on all floors, except for the ground floor (Rubio-Bellido et al., 2015). The balconies include openings which allows for the control of solar radiation and wind into the house. However, the main focus is on the various addition of elements which are found on the balconies to help adapt to the varying external conditions (Rubio-Bellido et al., 2015). Exterior roller blinds and adjustable shutters, hinged windows, net curtains, interior hinged shutters, and curtains, these are the layers that are often used on the balconies that can help enhance or limit the heat transmission through the glazed openings (Rubio-Bellido et al., 2015). This method is more focused on occupants regulating the space themselves to their own liking.

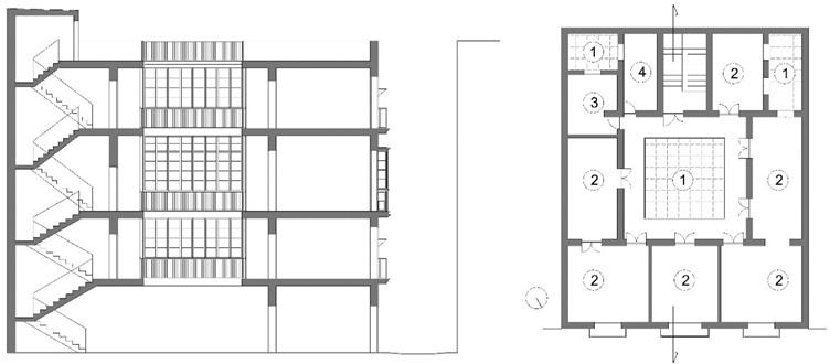
Figure 14: (Left) A section of a typical dwelling; (Right) Plan of a typical dwelling. 1. Courtyard; 2. Room; 3. Kitchen; 4. Bathroom.
Figure 15: (Left) Glazed balcony layers; (Middle) Glazed balconies in different levels; (Right) Courtyard.
Figure 15: (Left) Glazed balcony layers; (Middle) Glazed balconies in different levels; (Right) Courtyard.

Despite the efforts of trying to reimagine how U.K. buildings deal with summer heat, most existing U.K. buildings are likely to be used as it is for the next few decades (Hacker, J.N., Belcher, S.E. and Connell, R.K., 2005). This is due to the time and cost that would be involved in major renovations or rebuilding of a building. In the future, a focus on passive designs that are more easily adaptable into existing buildings would be able to benefit the major population more. For example, the various layers used on the inside and outside of the balconies in Cádiz.

Vernacular architecture responds very specifically to its local environmental context. This is something to keep in mind of as the bioclimatic designs studied can only be used as a reference. The same results can not be guaranteed depending on its location before specific adjustments have been made. This is an important point to keep in mind before implementing an exact copy of solutions from another region.

Figure 18: A list of the bioclimatic designs mentioned in all the case studies.

5. Conclusion

could be There is no one-size-fits-all solution when it comes to bioclimatic designs. Every design has to be specific to the local climate, lifestyle and local context. However, the different bioclimatic designs used to combat hot summers in vernacular architecture from various parts of the world can be used as insightful inspiration for future passive designs in buildings in the U.K. A bioclimatic approach can be efficient in regulating the temperature and ventilation of a space. However, it is dependable on the weather conditions. For example, Elmualim (2006) showed that the performance of vernacular wind-catchers ‘depend greatly on the direction and speed of the wind’. Nguyen et al. (2001) notes that traditional design strategies is not enough to maintain thermal comfort in the extreme climate in Vietnam.

In order to achieve a comfortable environment at all times, a mixed model approach would be the best solution. This can be achieved by implementing passive cooling designs but still including mechanical cooling systems to minimise energy use and carbon dioxide emissions (Hacker et al., 2005). Through careful design considerations and system managements, maximum indoor comfort can be attained in a relatively energy efficient way (Hacker et al., 2005). A combination of high technology and economic development that we have today would inevitably lead to new solutions. The vernacular approach may not be the perfect fit in today’s context, however, it can be studied to achieve a deeper appreciation of changes and continuities, to aid in the future changes (Turan, M., 1990). “Change and continuity are not contradictory but complementary aspects of the same processes.” (Turan, M., 1990). According to Nguyen (2017), the ‘eco-adaptive approach’ is the next step from “bioclimatic approach”. It highlights the significance of respectful integration into the natural environment and the cooperation between architecture and nature in building designs (Turan, M., 1990). This could be the evolutionary step that can be taken next(Turan, M., 1990).

6. Bibliography

A. A. Elmualim, (2006) ‘Effect of damper and heat source on wind catcher natural ventilation’. Energy and Buildings [online]. 38 (8), pp. 939–948 [Accessed 12 December 2022].

Arbuthnott, K.G., and Hajat, S. (2017) The health effects of hotter summers and heat waves in the population of the United Kingdom: a review of the evidence. Environ. Health [online]. 16, pp. 119. [Accessed 07 December 2022].

Bowen, A. (1984). Passive and low energy ecotechniques. In: Bowen, A. ed. Proceedings of the Third International PLEA Conference, Mexico City, 6-11 August. Mexico.

Costa. H., Floater, G., Hooyberghs, H., Verbeke, S., and De Ridder, K. (2016) Climate Change, Heat Stress and Labour Productivity: A Cost Methodology for City Economies [online]. London: Centre For Climate Change Economics And Policy. Available from: https://www.cccep.ac.uk/ wp-content/uploads/2016/07/Working-Paper-248-Costa-et-al.pdf [Accessed 07 December 2022].

Coch, H. (1998) Chapter 4 - Bioclimatism in vernacular architecture. Renewable and Sustainable Energy Reviews [online]. 2, pp. 67-87. [Accessed 10 December 2022]. Creswell, J. W. (2014) Research design: qualitative, quantitative, and mixed methods approaches [online]. 4th ed. Los Angeles, California: SAGE. [Accessed 29 December 2022].

Dahl, T. (2010). Climate and architecture [online]. Abingdon: Routledge. [Accessed 07 December 2022].

Denchak, M. (2019). Greenhouse Effect 101. NRDC [online]. [Accessed 06 December 2022].

European Environment Agency (EEA)(2004). Impacts of Europe’s changing climate: an indicator-based assessment [online]. Copenhagen: European Environment Agency. Available from: http://themes.eea.eu.int/ Environmental_issues/climate/reports [Accessed 05 December 2022].

Floros, C., ed. (2014) Greek Traditional Bioclimatic Architecture [online]. Technical Chamber of Greece, 04 December 2009. GreekArchitects. Available from: https://www.greekarchitects. gr/en/architects-eye-view/greek-traditional-bioclimatic-architecture-id8960#news_wrapper [Accessed 29 December 2022].

Freewan, A, A, Y. (2019) Advances in Passive Cooling Design: An Integrated Design Approach. In: Hailu, G., ed. Zero and Net Zero Energy [online]. Rijeka: Intechopen. [Accessed 12 December 2022].

Gething, B. & Puckett, K. (2013) Design for Climate Change [online]. 1st edition. London: RIBA Publishing. [Accessed 30 December 2022].

Hacker, J.N., Belcher, S.E. and Connell, R.K. (2005). Beating the Heat: keeping UK buildings cool in a warming climate. UKCIP Briefing Report [online]. Oxford: UKCIP. [Accessed 06 December 2022].

Hacker, J.N. and Holmes, M.J. (2007) Thermal Comfort: Climate Change and the Environmental Design of Buildings in the United Kingdom. Built Environment [online]. 33 (1), pp. 97-114. [Accessed 28 December 2022].

He, J., Young, A.N., Pathan, A. and Oreszczyn, T. (2005). Air conditioning energy use in houses in southern England. In: Bloem, J. and Sutherland, G., ed. Proceedings of the DYNASTEE (Dynamic Analysis, Simulation and Testing Applied to the Energy and Environmental Performance of Buildings) Conference, 2005. Athens: pp. 1–12.

Hitchin, E.R. and Pout, C.H. (2000) Local cooling: global warming? UK carbon emissions from air-conditioning in the next two decades. Proceedings of the CIBSE National Conference. Dublin, 2000.

Hosham, A, F., and Kubota, T. (2019) Effects of Building Microclimate on the Thermal Environment of Traditional Japanese Houses during Hot-Humid Summer. Buildings [online]. 9(1), pp. 22. [Accessed 08 December 2022].

IPCC (2007) Climate Change 2007: Synthesis Report [online]. Geneva, Switzerland: Intergovernmental Panel on Climate Change. Available from: https://www.ipcc.ch/site/assets/uploads/2018/02/ar4_syr_full_report.pdf [Accessed 06 December 2022].

Johnson, H., Kovats, R.S., Mcgregor, G., Stedman, J., Gibbs, M., Walton, H., Cook, L., and Black, E. (2005). The impact of the 2003 heat wave on mortality and hospital admissions in England. Health Stat [online]. 25, pp. 6–11. [Accessed 06 December 2022].

Kendon, E., Fung, F., Lowe, J., Mitchell, J.F.B., Murphy, J., Bernie, D., Gohar, L., Harris, G,. Howard, T., Maisey, P., Palmer, M., and Sexton, D. (2018) UKCP18 Guidance: Caveats and Limitations [online]. Exeter: Met Office Hadley Centre. Available from: https://www.metoffice. gov.uk/binaries/content/assets/metofficegovuk/pdf/research/ukcp/ukcp18-guidance---caveats-and-limitations.pdf [Accessed 06 December 2022].

Kennedy-Asser, A.T. et al. (2021) Evaluating heat extremes in the UK climate projections (UKCP18). Environmental Research Letters [online]. 16(1), pp.1-11. [Accessed 27 December 2022].

Iyadurai, N (2011) AD Classics: Palace of the Assembly / Le Corbusier [photography]. In: ArchDaily [online]. Available from: https://www.archdaily.com/155922/ad-classics-ad-classicspalace-of-the-assembly-le-corbusier

Mitchell, D., Heaviside, C., Vardoulakis, S., Huntingford, C., Masato, G., Guillod, B.P., Frumhoff, P., Bowery, A., Wallom, D., and Allen, M. (2016) Attributing human mortality during extreme heat waves to anthropogenic climate change. Environ. Res. Lett. [Online]. 11(7). [Accessed 07 December 2022].

Green, H.K., Andrews, N., Armstrong, B., Bickler, G., and Pebody, R. (2016). Mortality during the 2013 heatwave in England–how did it compare to previous heatwaves? A retrospective observational study Environ [online]. 147, pp. 343–349. [Accessed 06 December 2022]. 27 28

Naoum, S.G. (2019) Dissertation Research and Writing for Built Environment Students[online]. 4th ed. New York: Routledge [Accessed 05 December 2022].

Nguyen, A, T. (2017) Bioclimatism in architecture: An evolutionary perspective. International Journal of Design & Nature and Ecodynamics [online]. 12(1), pp. 16-29. [Accessed 12 December 2022].

Olgyay, V. (1963). Design with Climate - Bioclimatic Approach to Architectural Regionalism [online]. New Jersey: Princeton University Press. [Accessed 05 December 2022].

Oliver, P. (1997) Encyclopedia of vernacular architecture of the world. Cambridge: Cambridge University Press. [Accessed 07 December 2022].

Public Health England (2019). PHE Heatwave Mortality Monitoring: Summer 2019 [online]. London: Public Health England. Available from: http://allcatsrgrey.org.uk/wp/download/public_health/epidemiology/PHE_heatwave_report_2019.pdf [Accessed 07 December 2022].

Rapopart, A. (1969) House Form and Culture [online]. New Jersey: Prentice-Hall. [Accessed 07 December 2022].

Rapopart, A. (1985a) Settlements and energy: historic precedents. Japan-U.S. seminar on Environment Behaviour Research. Tuscan, Arizona, October 6-10.

Rubio-Bellido, C., Pulido-Arcas, J., and Cabeza-Lainez, J, M. (2015) Adaptation Strategies and Resilience to Climate Change of Historic Dwellings. Sustainability [online]. 7, pp. 3695-3713. [Accessed 12 December 2022].

Stake, R.E. (1995). The art of case study research [online]. London: SAGE. [Accessed 05 December 2022].

Sdei, A. (2007) Thermal comfort in the traditional Japanese house [online]. Cambridge: Cambridge University. [Accessed 08 December 2022].

Turan, M. (1990) Vernacular architecture paradigms of environmental response [online]. Avebury: Gower Publishing Company Limited. [Accessed 08 December 2022].

UK Met Office (2019) UKCP 18 Science Overview Report November 2018 ( Updated March 2019 ) [online]. Exeter, U.K.: Met Office Hadley Centre. Available from: https://www.researchgate.net/profile/Stephen-E-Belcher/publication/345815169_UKCP18-Overview-report/links/ 5faed14aa6fdcc9ae04dc04e/UKCP18-Overview-report.pdf [Accessed 21 December 2022].

Vicedo-Cabrera, A. M. et al. (2018) Temperature-related mortality impacts under and beyond Paris Agreement climate change scenarios. Climatic Change [online]. 150, pp. 391–402. [Accessed 07 December 2022].

Weber, W., Yannas, S. (2014) Lessons from vernacular Architecture [online]. Oxon: Routledge. [Accessed 10 December 2022].

World bank Group (2021) World Bank Climate Change Knowledge Portal. Available from: https://www.citethisforme.com/cite/sources/websiteautociteeval [Accessed 09 December 2022].

Yin, R.K. (2009). Case study research: Design and methods [online]. 4th ed. Thousand Oaks, California: SAGE. [Accessed 05 December 2022].

Yin, R.K. (2012). Applications of Case Study Research [online]. 3rd ed. Thousand Oaks, California: SAGE. [Accessed 05 December 2022].

Figures:

Cover page: Ward, M. (1986) The Crystal Palace, Queen’s Island 1851 [lithographed]. [online]. Available from: https://sustpractice.wordpress.com/2015/03/09/significance-of-the-palm-houseand-the-crystal-palace-swarna-rao/ [Accessed 01 December 2022].

Figure 2: Denchak, M. (2019). Greenhouse Effect 101. NRDC [online]. [Accessed 06 December 2022].

Figure 3: Olgyay, V. (1963). Design with Climate - Bioclimatic Approach to Architectural Regionalism [online]. New Jersey: Princeton University Press. [Accessed 05 December 2022].

Figure 5: Hacker, J.N., Belcher, S.E. and Connell, R.K. (2005). Beating the Heat: keeping UK buildings cool in a warming climate. UKCIP Briefing Report [online]. Oxford: UKCIP. [Accessed 06 December 2022].

Figure 6, 7, 10, 13: Weber, W., Yannas, S. (2014) Lessons from vernacular Architecture [online]. Oxon: Routledge. [Accessed 10 December 2022].

Figure 8: Floros, C., ed. (2014) Greek Traditional Bioclimatic Architecture [online]. Technical Chamber of Greece, 04 December 2009. GreekArchitects. Available from: https://www.greekarchitects.gr/en/architects-eye-view/greek-traditional-bioclimatic-architecture-id8960#news_ wrapper [Accessed 29 December 2022].

Figure 9 : Manzano-Agugliaro, F. et al. (2015) Review of bioclimatic architecture strategies for achieving thermal comfort. Renewable and Sustainable Energy Reviews [online]. 49, pp. 736755. [Accessed 20 December 2022].

Figure 11, 12: Bowen, A. (1984). Passive and low energy ecotechniques. In: Bowen, A. ed. Proceedings of the Third International PLEA Conference, Mexico City, 6-11 August. Mexico. Figure 14, 15, 16: Rubio-Bellido, C., Pulido-Arcas, J., and Cabeza-Lainez, J, M. (2015) Adaptation Strategies and Resilience to Climate Change of Historic Dwellings. Sustainability [online]. 7, pp. 3695-3713. [Accessed 12 December 2022].

Figure 17: Iyadurai, N (2011) AD Classics: Palace of the Assembly / Le Corbusier [photography]. In: ArchDaily [online]. Available from: https://www.archdaily.com/155922/ad-classics-adclassics-palace-of-the-assembly-le-corbusier

Turn static files into dynamic content formats.

Create a flipbook
Issuu converts static files into: digital portfolios, online yearbooks, online catalogs, digital photo albums and more. Sign up and create your flipbook.
Looking Back into the Future by Isabelle Yap - Issuu