Skip to main content

Gabriela Tylingo "Migracija ir integracija. Erdviniai pri(si)taikymai buvusiame popieriaus fabrike"

Page 1

Migracija ir integracija. Erdviniai pri(si)taikymai buvusiame popieriaus fabrike

VDA. IDK. IV K. STUD. GABRIELA TYLINGO
ŠEIBOKAS 2023
DARBO VADOVAS PROF. ALVYDAS

VILNIAUS DAILĖS AKADEMIJOS

VILNIAUS FAKULTETO

INTERJERO DIZAINO KATEDRA

Gabrielos Tylingo

MIGRACIJA IR INTEGRACIJA. ERDVINIAI PRI(SI)TAIKYMAI

BUVUSIAME POPIEIRAUS FABRIKE.

Bakalauro baigiamasis darbas

Interjero dizaino studijų programa, valstybinis kodas 6121PX017

Bakalaurantė: Gabriela Tylingo

.................................................. (parašas) .................................................. (data) (parašas)

Darbo vadovas: prof. Alvydas Šeibokas

Tvirtinu, katedros vedėjas: doc. Rokas Kilčiauskas

(data) (parašas) (data)

Vilnius, 2023

..................................................

TURINYS

ĮVADAS

Temos aktualumas

Tikslas

Problema

Uždaviniai

TEORINĖS PRIEIGOS

Migracija 20/21 amžiuje

Migracija Lietuvoje

Pabėgėlių centrai Lietuvoje

PPC – Pabėgėlių priėmimo centras

Pabėgelių centrai Lietuvoje ir užsienyje

Centrų funkcijos

Konfliktas vaiko akimis – IEVA SKALIETSKA

„You don‘t know what war is“

Jaunimo centrai Lietuvoje ir užsienyje

„Atvirų jaunimo centrų praktinis gidas“

Jaunimo ir migracijos centro lokacija

PROJEKTINĖ DALIS

Balsiai

Naujieji Verkiai

Naujųjų Verkių popieriaus fabrikas/ fabriko situacija

Fabriko katilinė

Fabriko katilinės analizė

Fabriko katilinės planai

Architektūrinės schemos

Pjūvis

1 aukšto planas

2 – 3 aukšto planas

4 – 5 aukšto planas

Vidaus aksonometrija

Medžiagiškumas

Migracijos centro recepcijos vaizdas

Kavinės vaizdas

Kavinės detalizacija

Varžybų žiūrėjimo erdvė/ pjūvis

Varžybų žiūrėjimo erdvių vaizdas

Laipiojimo erdvės detalizacija

Laipiojimo erdvės vaizdas

5 aukšto vaizdas

Apšvietimas

Apibendrinimas

Maketas

Bibliografija

01 02 02 02 03 – 04 05 – 06 07 – 08 09 10 11 – 12 13 – 14 15 16 17 – 18 19 20 21 – 22 23 – 25 26 27 – 28 29 – 30 31 – 32 33 – 34 35 – 36 37 – 38 39 – 40 41 – 42 43 – 44 45 – 46 47 48 49 – 50 51 – 52 53 – 54 55 – 56 57 - 58 59 – 60 61 62

TEMOS AKTUALUMAS

Žmonių migracija ne savo noru dažniausiai yra susijusi su priverstiniu išvykimu iš savo gimtosios šalies dėl politinių, ekonominių arba socialinių priežasčių. Šios priežastys gali apimti politinę represiją, karo konfliktus, persekiojimą, ekonomikos nuosmukį, skurdą, gamtos katastrofas ir kt.

Priverstinė migracija gali turėti rimtų padarinių tiek migrantams, tiek ir šalims, kuriose jie prieglobščio ieško arba kuriose persikėlė. Migrantai, kurie netenka savo gimtosios šalies, dažnai patiria psichologinę traumą, nesaugumą, vargą, skurdą ir netgi gyvybės pavojų keliaujant per pavojingus maršrutus. Jie taip pat gali susidurti su diskriminacija, nepilnavertiškumo jausmu ir sunkumais integracijos procese į naująją šalį

Prieglobščio prašymų skaičius visame pasaulyje nuolat auga, o atsakas į šią problemą vis dar yra nepakankamas ir neteisingas Tai yra pasaulinė problema, kuri reikalauja koordinuotos tarptautinės ir nacionalinės veiklos

TIKSLAS

Šiame projekte iškėliau du tikslus: padėti migrantams integruotis Lietuvoje ir sumažintį jaunimo socializacijos problemų kiekį sukuriant bedrą centrą

PROBLEMA

Projekto pagrindinė problema yra migracija, nes Lietuva per pastaruosius metus patyrė didelį emigrantų srautą, kuris dažnai kelia iššūkius tiek patiems migrantams, tiek ir Lietuvos gyventojams

UŽDAVINIAI

1. Ištyrinėti migracijos situaciją pasaulyje ir Lietuvoje

2. Sužinoti apie pabėgėlių centrus Lietuvoje

3. Konfliktas vaiko akimis

4. Migracijos ir jaunimo centrų palyginimai užsienyje ir Lietuvoje

5. Išanalizuoti pasirinktos lokacijos situaciją

6. Pateikti centro sprendinius.

01
02

MIGRACIJA 20 AMŽIUJE

Pradžioje pasaulyje kasmet buvo apie 3 mln tarptautinių imigrantų iš Italijos ir Kinijos, o imigracijos masto plėtimasis prisidėjo prie diasporos formavimosi. Po Antrojo pasaulinio karo, iki aštuntojo dešimtmečio, imigrantų iš Europos skaičius siekė apie 20 mln žmonių, daugiausia vokiečių, o kai kurie buvo ištremti į Rusijos rytus ir šiaurės Kazachstaną Daugelis žmonių dėl įvairių priežasčių persikėlė į kitus regionus, pavyzdžiui, kinai – į Tibetą ir Rytų Turkestaną, javiečiai – į

Vakarų Naująją Gvinėją ir Kalimantaną, afroamerikiečiai iš pietinių valstijų į šiaurines, vakarines ir centrines valstijas

MIGRACIJA 21

AMŽIUJE

Nelegali imigracija, siekianti gerų gyvenimo sąlygų, plinta, o pabėgėliai ieško politinio prieglobsčio. Dauguma Lotynų

Amerikos imigrantų vyksta į Jungtines Amerikos Valstijas, Vakarų Europos šalis – iš buvusių kolonijų ir skurdesnių Rytų Europos šalių, į Rusiją – iš Vidurinės Azijos (Tadžikistanas, Uzbekistanas, Kirgizija), Ukrainos, Moldovos, Gruzijos ir Armėnijos.

1 pav. Laivas su emigrantais iš Europos įplaukia į Niujorko jūrų uostą

2 pav Vaizdas iš laivo 18–tojo amžiaus antroje pusėje.

3 pav. Emigrantai į Ameriką išvykdavo didelėmis šeimomis, 1905m

03
04

MIGRACIJA LIETUVOJE

Žydai Lietuvoje apsigyveno nuo XIV amžiaus, XVIII amžiaus viduryje – apie 157 tūkst Nuo XIX a Prasideda migracija iš kaimo į miestą XX amžiaus pradžioje daugelis gyventojų keliavo į Vakarus, daugiausia JAV, Pietų Ameriką ir Vakarų

Europą. Po I pasaulinio karo 1915 m. daugelis Lietuvos gyventojų buvo ištremti arba palikti vieni Nuo 1930 iki 1940 metų kasmet imigravo apie 1000-2000 žmonių Į sovietų koncentracijos stovyklas buvo išvežta daugiau nei 142 500 lietuvių kalinių. Po 1990 metų dauguma sovietinių respublikų gyventojų buvo repatrijuoti Nuo 1990 metų Lietuvos gyventojai emigravo į Vakarų šalis

Pastaraisiais metais Lietuva yra tapusi pabėgėlių tranzito šalimi, per kurią keliauja pabėgėliai, bėgantys nuo karo ir persekiojimo, siekdami pasiekti Vakarų Europą Lietuva pernai sulaukė daugiausiai pabėgėlių iš Ukrainos – 2022 metais prasidėjus Rusijos agresijai daugiau nei milijonas žmonių buvo priversti palikti savo namus ir gyventi kitur. Lietuvos migracijos tarnybos duomenimis, tuo metu į Lietuvą atvyko apie 29 tūkst migrantų, beveik trigubai daugiau nei ankstesniais metais

Ukrainos pabėgėliai Lietuvoje yra viena iš didžiausių ukrainiečių bendruomenių šalyje. Dėl politinių ir ekonominių sunkumų Ukrainoje, daugelis žmonių pasirinko pabėgti į Lietuvą Čia jie gali rasti saugesnį ir stabilesnį gyvenimo būdą Lietuva taip pat yra labai arti Ukrainos, todėl ukrainiečiams lengviau sekti įvykius tėvynėje ir bendrauti su šeimomis bei draugais Nėra tikslių duomenų apie tai, kokių amžiaus grupių pabėgėlių iš Ukrainos atvyko į Lietuvą karo metu. Tačiau, pagal tarptautinę patirtį, karo pabėgėlių grupės gali skirtis, įskaitant ir vaikus, jaunimą ir suaugusiuosius. Kai kurie pabėgėliai yra šeimos su vaikais, kurioms reikia specialios pagalbos, o kiti yra vieniši jauni žmonės, kurie bando rasti naujas galimybes savo gyvenime. Todėl svarbu, kad būtų suteikta parama visoms pabėgėlių grupėms, nepriklausomai nuo jų amžiaus, kad jie galėtų įgyti savarankišką gyvenimą ir integruotis į vietos benruomenes.

Ukrainiečių pabėgėlių bendruomenė Lietuvoje yra labai aktyvi ir linkusi puoselėti savo kultūrą ir tradicijas. Jie organizuoja renginius, kuriuose galima dalyvauti, ir dalyvauja įvairiuose projektuose, skirtuose stiprinti bendruomenės ryšius. Tai leidžia jiems išlaikyti ryšį su savo kultūra ir tradicijomis, taip pat sujungti su kitais ukrainiečiais Lietuvoje.

Bendradarbiavimas tarp lietuvių ir ukrainiečių bendruomenių yra gerai įgyvendinamas Lietuvoje Daugelis lietuvių yra linkę padėti pabėgėliams, teikiant jiems reikiamą paramą ir pasirūpindami jų gerove Tai parodo, kad Lietuva yra atvira ir svetinga šalis, kurioje galima rasti saugų ir stabilų gyvenimo būdą.

Ukrainos pabėgėliai Lietuvoje yra svarbi ir reikšminga bendruomenė šalyje, kuri prisideda prie Lietuvos kultūros įvairovės ir ekonomikos augimo Jie yra atviri, linkę puoselėti savo kultūrą, o tai leidžia jiems deramai integruotis į lietuvišką visuomenę.

06
05

PABĖGĖLIŲ CENTRAI LIETUVOJE

Pabėgėlių centrai Lietuvoje yra įstaigos, skirtos padėti pabėgėliams ir jų šeimoms integruotis į lietuvišką visuomenę ir gyventi saugiai ir stabiliai Jie teikia įvairias paslaugas, įskaitant reikiamų dokumentų parengimą, kalbos mokymą, įdarbinimo ir gyvenamosios vietos paiešką, socialinę paramą ir kt

Pabėgėlių centrai taip pat vaidina svarbų vaidmenį užtikrinant, kad pabėgėliai būtų apsaugoti nuo diskriminacijos ir smurto, ir kad jie turėtų galimybę laisvai bendrauti ir išreikšti savo nuomonę Jie taip pat veda įvairias veiklas, kurios padėtų pabėgėliams geriau suprasti lietuvišką kultūrą ir gyvenimo būdą, ir atvirkščiai - padėtų lietuviams suprasti pabėgėlių kultūrą ir tradicijas

Tai yra svarbios institucijos, kurios padeda pabėgėliams ir jų šeimoms įgyti stabilią ir saugią gyvenimo bazę, ir padėti jiems integruotis į lietuvišką visuomenę. Jie teikia reikiamas paslaugas ir palaiko pabėgėlius ir jų šeimas, kol jie tampa savarankiškais ir įsitvirtina Lietuvoje.

4 pav. Pabėgėlių priėmimo centras Rukloje.

5 pav. Pabėgėlių priėmimo centras Vilniuje.

6 pav. Pabėgėlių priėmimo centras Kaune.

7 pav. Užsienėčių registracijos centras Pabradėje.

07
Rukla Kaunas Vilnius Pabradė
08

PABĖGĖLIŲ CENTRAI LIETUVOJE IR UŽSIENYJE

PABĖGĖLIŲ PRIĖMIMO CENTRAS

PPC – biudžetinė įstaiga, teikianti socialines,apgyvendinimo paslaugas ir valstybės paramą integracijai užsieniečiams, kuriems suteiktas prieglobstis Lietuvos Respublikoje, ir jų šeimų nariams, atvykusiems į Lietuvos

Respubliką šeimų susijungimo atveju, nelydimiems nepilnamečiams užsieniečiams, užsieniečiams, perkeltiems bendradarbiaujant su kitomis Europos

Sąjungos valstybėmis narėmis, trečiosiomis valstybėmis, Europos Sąjungos institucijomis ar tarptautinėmis organizacijomis, asmenims, perkeltiems iš humanitarinės krizės ištiktos užsienio valstybės ar jos dalies ar iš karinių konfliktų apimtų teritorijų Lietuvos

Respublikos Vyriausybės pavedimu (toliau – prieglobsčio gavėjai); teikianti socialines, apgyvendinimo paslaugas ir užtikrinanti priėmimo sąlygas užsieniečiams, esantiems ar buvusiems su prekyba žmonėmis susijusių nusikaltimų aukomis, jų apsisprendimo laikotarpiu, prieglobsčio prašytojams užsieniečiams, kaip pažeidžiamiems asmenims, laukiantiems sprendimo dėl grąžinimo ar išsiuntimo įgyvendinimo, užsieniečiams, gavusiems leidimą laikinai gyventi Lietuvoje PPC įkurtas 1994 m

Lietuva šiai dienai nėra pajėgi priimti didelį skaičių pabėgėlių.

Lietuvoje reikėtų atidaryti daugiau centrų skirtų pabėgeliams ir imigrantams Dėl didėjančios migrantų ir pabėgėlių skaičiaus, ypač iš Ukrainos, reikia didesnės paramos šioms žmonių grupėms, kad jie

galėtų įsilieti į Lietuvos visuomenę ir gauti reikiamą pagalbą. Jaunimo centrai skirti

pabėgeliams gali padėti šioms asmenybėms susirasti darbą, mokantis, įgyti socialinius įgūdžius ir integruotis į

visuomenę

Tačiau, visuomet yra reikalinga paramos ir pagalbos sistema pabėgėliams, kad jie

galėtų įsisavinti šalies kultūrą, kalbą ir integruotis į visuomenę. Tai padeda jiems

prisitaikyti prie naujos aplinkos Todėl, kaip manyčiau, reikėtų visada skirti

dėmesio ir ieškoti būdų, kaip padėti

pabėgėliams ir jaunimo centrai gali būti vienas iš jų.

Palyginti su kitomis Europos šalimis, Lietuvoje pabėgėlių centrų skaičius yra mažas. O didžiausias Lietuvos pabėgėlių priėmimo centras yra Rukloje Kitose Europos šalyse, kaip Vokietija ar Švedija, pabėgėlių centrų yra daug daugiau, o jie yra gerai išvystyti ir pasiskirstę visoje šalyje. Be to, palyginti su kitomis Europos šalimis, Lietuvos pabėgėlių centrų ištekliai yra riboti, o finansavimas yra nepakankamas Kai kurie centrų poreikiai nėra pilnai patenkinti, ypač kai susiduriama su dideliu pabėgėlių srautu Kiti europos

šalių pabėgėlių centrų finansavimo šaltiniai yra daug gausesni Galima teigti, kad Lietuvos pabėgėlių centrų padėtis yra sunkesnė nei kitose Europos šalyse Nepaisant to, valdžios institucijos ir kitos organizacijos deda pastangas, siekiant pagerinti pabėgėlių centrų situaciją Lietuvoje. Vis dėlto, būtina daugiau dėmesio skirti šiai svarbiai temai, kad būtų galima užtikrinti tinkamą pabėgėlių integraciją Lietuvos visuomenę

09
10
8 pav. Migracijos centras Vokietijoje Bremerhaven. 9 pav. Naujas pabėgėlių centras Lenkijoje, Łusznowole. 10 pav. Pabėgėlių priėmimo centras Lenkijoje, Białystok

CENTRŲ FUNKCIJOS

Pagrindinės funkcijos, kurias atlieka jau veikiantys pabėgėlių centrai yra:

1. Prieglobščio teikimas : Centrai suteikia prieglobstį pabegeliams, kuriems reikia saugaus ir tvarkingo gyvenamojo ploto

2. Maitinimas

3. Medicininė pagalba : Centruose teikiama pagalba kadangi daugelis pabėgėlių atvyksta sergantys arba su traumomis

4. Socialinės paslaugos : Teikiamos socialinės paslaugos, tokios kaip konsultacijos, pagalba rašant prašymus, rekomendacijos dėl darbo, taip pat pabėgėliai gali gauti pagalbą sprendžiant ir kitas problemas

5. Psichologinė pagalba: Centruose dirba psichologai, kurie padeda pabėgėliams įveikti sunkumus ir stresą, su kuriuo jie susiduria

6. Ugdymas ir mokymasis

7. Kultūrinė veikla : Centruose organizuojama kultūrinės veiklos, kadangi tai padeda pabėgėliams integruotis ir susipažinti su vietine kultūra

11
12

KONFLIKTAS VAIKO AKIMIS

YEVA SKALIETSKA

„ YOU DON‘T KNOW WHAT WAR IS“

Visi žino žodį „karas“ Tačiau tik nedaugelis supranta, ką tai iš

tikrųjų reiškia Kai pamatai, kad turi su tuo susidurti, jautiesi visiškai pasimetęs, apimtas išgąsčio ir nevilties. Kol nebuvai ten, tu nežinai, kas yra karas. Tai įspūdingas ir jaudinantis

jaunos Ukrainos pabėgėlės Yevos Skalietskos dienoraštis Tai dvylika dienų Ukrainoje, kurios amžiams pakeitė 12-metės

Yevos gyvenimą.

Knygoje „Tu nežinai, kas yra karas“ Yeva kas valandą įrašo, kas vyksta, ieškodama saugumo ir keliaujant iš Charkovo į

Dubliną Kiekvienas akis atveriantis dienoraščio įrašas papildytas asmeninėmis nuotraukomis, Jevos ir jos draugų žinučių ištraukomis ir kasdienėmis antraštėmis iš viso pasaulio, o trys nuostabiai detalūs žemėlapiai (kurią sukūrė iš

Charkovo kilusi Olga Shtonda) padeda skaitytojui sekti Yevos ir jos močiutės kelionę „Tu nežinai, kas yra karas“ – tai galinga įžvalga apie tai, kas yra konfliktas vaiko akimis, ir būtinas skaitymas suaugusiems ir vyresniems vaikams.

Paskelbta kartu su UNHCR, JT pabėgėlių agentūra, su Michael Morpurgo pratarme

13
-
„ „
14

Lietuvoje yra daug jaunimo centrų, kurie teikia jaunimui ne tik patalpas, bet ir įvairias paslaugas ir renginius, pvz., edukacinius seminarus, muzikinius koncertus ir sportinius turnyrus. Šie centrai yra itin populiarūs tarp jaunimo ir padeda jiems įgyti naujų patirčių ir draugų

Palyginus su užsienio šalimis, Lietuvoje yra mažiau jaunimo centrų, tačiau jie yra itin aktyvūs ir reikšmingi jaunimo gyvenime Kiti Europos šalių jaunimo centrai taip pat teikia platų paslaugų spektrą, bet dauguma jų yra daug didesni ir gali suteikti jaunimui daugiau resursų ir galimybių. Be to, užsienio šalių jaunimo centrai dažnai dirba su įvairiais tarptautiniais jaunimo projektais, kurie suteikia jaunimui galimybę susipažinti su kitomis šalimis ir kultūromis.

Taigi, Lietuvos jaunimo centrai yra itin svarbūs jaunimo bendruomenėje ir teikia jiems daugybę galimybių, bet yra mažesni ir turi ribotą paslaugų spektrą palyginus su užsienio šalių jaunimo centrais Vis dėlto, tiek Lietuvos, tiek užsienio jaunimo centrai yra itin svarbūs jaunimo gyvenime ir padeda jiems įgyti patirties ir ugdyti įvairias kompetencijas.

UŽSIENYJE

RITA ŠKRIADAITĖ

SAULENA PILITAUSKAITĖ

ZENAIDA PIKIOTIENĖ

„ ATVIRŲ JAUNIMO CENTRŲ PRAKTINIS GIDAS “ KAM TO REIKIA?

Kylant įvairioms įtampoms, veikiančioms jaunų žmonių vertybines nuostatas, elgesį, daugėja „nepatogių“, „kitokių“ jaunuolių, jie tampa iššūkiu mums visiems. Tada suprantame, kad esamų jaunimui paslaugų paletėje kažko trūksta Taip pradedame kalbėti apie kitų darbo formų su jaunimu diegimą, t. y. atvirus jaunimo centrus

CENTRO VIETA

Planuojant steigti atvirą jaunimo centrą reikėtų atsižvelgti ir į vietą, kurioje jis kuriamas. Centras ar mikrorajonas?

Pagrindinis kriterijus pasirenkant jaunimo centro darbo laiką yra jaunimo poreikių bei dienotvarkės atitikimas Nėra prasminga , kad centras būtų atviras lankytojams pirmoje dienos pusėje, kadangi tuo metu daugelis jaunuolių privalo būti mokyklose. Taigi jaunimo centro darbo valandos greičiausiai bus orientuotos antrąją dienos pusę, į laiką po pamokų

VEIKLŲ KRYPTYS

ATVIRAME

JAUNIMO CENTRE

Laisvalaikio; Veiklos, kurias jauni žmonės pasiūlo patys; Centro darbuotojo inicijuojamos veiklos; Asmenybės stiprinimo;

15
JAUNIMO CENTRAI LIETUVOJE IR 11 pav. Lietuvos vaikų ir jaunimo centras Vilniuje 12 pav. „Šatrija“ vaikų ir jaunimo klubas Vilniuje 13 pav. Julieno De Smedto jaunimo centras. DARBO LAIKAS
16

Pagrindiniai veiksniai, kuriuos reikia apsvarstyti renkantis vietą, yra šie:

1. Prieinamumas: svarbu, kad pabėgelių centras būtų lengvai pasiekiamas, t y jo lokacija turėtų būti patogi ir gerai susisiekusi viešuoju transportu.

2. Saugumas: vietą reikia pasirinkti atsižvelgiant į saugumo klausimus. Tai reiškia, kad centro aplinka turėtų būti saugi ir ramybės zona.

3. Tarpkultūrinis kontekstas: svarbu, kad pabėgelių centras būtų statomas toje vietoje, kurioje jau yra panašių bendruomenių arba jau yra įprastas tarpkultūrinis dialogas.

4. Pastato būklė: pabėgelių centras turėtų būti saugioje vietoje

17
JAUNIMO IR MIGRACIJOS CENTRO LOKACIJA
18

BALSIAI

Balsiai - tai teritorija, kuri iš pietų ir vakarų ribojasi su Verkių regioniniu parku, iš rytų apjuosta Neries, o šiaurėje baigiasi ties Vilniaus miesto riba Čia patenka ir senosios gyvenvietės Naujieji Verkiai, Verkių Riešė, Staviškės, Ožkiniai, Babiniai, Kryžiokai, Naujaneriai, Krakiškės, Pagubė, Bireliai ir ten esančios sodų bendrijos Teritorija gana didžiulė, suvienijo ją Balsių mokykla, nes tik jos gyventojams ji priskirta. Be to, Balsių bendruomenės nariais yra tapę daugelio sodų bendrijų gyventojai

Balsiai - sparčiai augantis miesto rajonas, vidutinė statistinė balsiečių šeima augina tris ir daugiau vaikų, todėl Balsiuose itin aktuali darželio steigimo klausimas.

Vaikai - neatsiejama bendruomenės dalis, todėl labai svarbu, kad atitolusiuose nuo miesto centro mikrorajonuose būtų darželiai, mokyklos, vaikų dienos centrai Taip ne tik taupomas gyventojų laikas, bet ir užtikrinamas vaikų ugdymas, saugumas bei užimtumas

Sostinės savivaldybė pakvietė Balsių ir visos Verkių seniūnijos gyventojus dalyvauti patariamojoje apklausoje –kaip galėtų atrodyti skveras pačiame Balsių centre Antras populiariausias pasiūlymas – užimtumo ir laisvalaikio centras vaikams (29,6 proc.).

PATARIAMOSIOS BALSIŲ

APKLAUSOS REZULTATAI

Daugiafunkcinis bendruomenės centras

Užimtumo ir laisvalaikio centras vaikams

Pėščiųjų ir dviračių takai

Sporto aikštelės

Vaikų darželis

Parkas

NAUJIEJI VERKIAI

Naujieji Verkiai – Vilniaus miesto dalis, esanti Verkių seniūnijoje, šiaurės rytus nuo Verkių, 9 km į šiaurę nuo miesto centro Naujuosius Verkius aptarnauja 35 ir 65 maršrutų autobusai (Vaikų darželio, Naujųjų Verkių st ) Naujieji Verkiai šiaurėje ribojasi su Krempliais, rytuose ir pietuose su Staviškėmis („Verkių“ sodais), iš vakarų supa Verkių miškas. Pro Naujuosius Verkius teka Turniškių upelis, šiaurėje įtekantis į Riešę, o taip pat yra keletas apleistų tvenkinių. Naujieji Verkiai patenka į Verkių regioninį parką

NAUJIEJI

VERKIAI

SANTARIŠKĖS

BALTUPIAI

FABIJONIŠKĖS

ŽIRMŪNAI

JUSTINIŠKĖS

PILAITĖ

KAROLINIŠKĖS

ŽVĖRYNAS

CENTRAS

LAZDYNAI NAUJAMIESTIS

NAUJININKAI

ANTAKALNIS

Gyvenvietės

Verkių regioninis parkas

Popieriaus fabriko teritorija

Automobilių/ autobusų keliai: Pagrindinis kelias

Autobusų maršrutai

Autobusų stotelės

Viniaus žemėlapis

Naujųjų Verkių žemėlapis

35.7% 29.6% 27.9% 25.8% 21% 20.8% 18.3% 17.3% 16.3%
Bažnyčia Baseinas Skveras
19
20

NAUJŲJŲ VERKIŲ POPIERIAUS FABRIKAS

Naujųjų Verkių - 1934-tais, ant Turniškės upelio kranto, Vilniaus burmistro Prano Juozapo Opitro ir jo partnerio, popieriaus gamybos meistro Vilhelmo Langebacho, įkurta įmone, dabar nenaudojama ir įtraukta Kultūros vertybių registrą. Fabrikas turėjo daug pakilimų ir nuopolių –daug kartų buvo degęs, atstatomas, modernizuotas. XIX a. pabaigoje jis net tapo didžiausiu popieriaus gamybos fabriku Vakarų Rusijos imperijoje, gaminančiu 1300 tonų popieriaus per metus. Prieš pat Pirmąjį pasaulinį karą, kai dauguma įrangos buvo išvežta, fabrike buvo įrengtas naujas cechas, pagerinęs popieriaus gaminių iš medienos kokybę, o tarp 1909 ir 1911 metų buvo įdiegtas elektrinis apšvietimas. Vėliau, 1929-1941tais, jis iš viso neveikė dėl ekonominių sunkumų ir pilnai pradėjo veikti tik 1946tų metų pavasarį, atstatytas po apgriovimo Antrojo pasaulinio karo metu. Vėliau jis buvo du kartus rekonstruotas - 1953 ir 1984-tais metais

14 pav. Naujųjų Verkių popieriaus fabrikas

15 pav. Katilinė ir naujas kaminas

16

17 pav. Dabar fabriko įkūrimo data puošia prie įėjimo paliktą girnų akmenį.

Pastatas yra didelis ir turi daug erdvių patalpų, kuriose galima organizuoti įvairius renginius ir visos bendruomenės susitikimus.

Erdvė kurioje galima įkurti bendruomenės centrą, kur žmonės galėtų susirinkti, pabendrauti ir organizuoti renginius

Erdvė nuomoti patalpas biurams ar kūrybinėmis dirbtuvėms.

Erdves galima panaudoti sporto, koncertų ar seminarų salėms

Patalpos skirtos administracijai, vadovybei ir personalo skyriams, mokymo ir rengimo patalpos darbuotojams, bei kitoms reikalingoms tarnyboms. Tokie erdvių panaudojimo sprendimai priklauso nuo poreikių ir resursų, o erdvės skirtos centro darbuotojams gali būti svarbus elementas užtikrinant sėkmingą centro veiklą.

Vaikų darželio erdvė - patalpos yra skirtos valgyti, žaisti, mokytis, miegoti ir kitoms veikloms. Didelis dėmesys yra skiriamas šviesos, oro ir garso kokybei, nes tai turi tiesioginį poveikį vaikų sveikatai, koncentracijai ir nuotaikai

Patalpas galima panaudoti kaip sandėliukas

21
pav. Prie įėjimo šlovės lenta.
22

POPIERIAUS FABRIKO KATILINĖ

Senų fabrikų katilinės buvo reikalingos, kad būtų galima palaikyti darbo procesus, pvz., pagaminti reikiamą šilumą ar garą. Viduje dažnai būdavo daug laiptų, kurie vingiuodavo per visą katilinę ir vedę į viršų link katilo kamerų. Tai buvo būtina, kad būtų lengviau prieiti prie katilo, reguliuoti jo temperatūrą ir prireikus jį valyti

23

FABRIKO KATILINĖS ANALIZĖ

25
21 pav. Antra katilinės patalpa 22 pav. Vaizdas iš 3 aukšto 18 pav. Vaizdas iš antro aukšto. 19 pav. Vaizdas iš antro aukšto. 20 pav. Nuotrauka iš išorės.
26

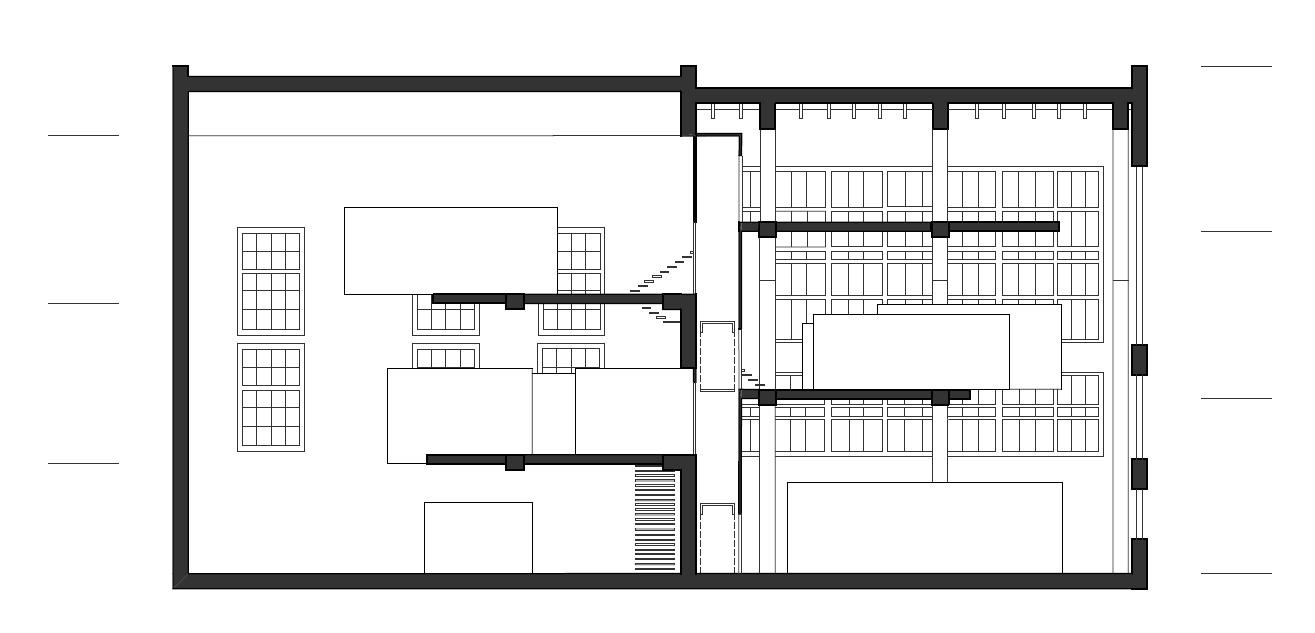
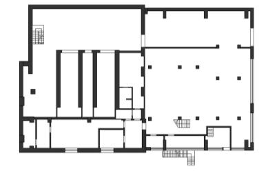
FABRIKO KATILINĖS PLANAI

1 aukšto planas

2 aukšto planas

3 aukšto planas

4 aukšto planas

Buvęs popieriaus fabrikas turi didelį kolonų skaičių ir nišas, kurias planuojama projekte palikti, kad būtų išsaugota pastato istorija ir unikalumas. Pastato sienose yra nišos, suteikiančios papildomos erdvės ir dinamiškumo, o pailgi katilinės kambariai, esantys antroje pastato pusėje, pagyvina erdvę.

Katilinės erdvė turi labai daug laiptų, jie vingiuodavo per visą katilinę virš katilų. Pastatas turi daug langų, kurių dėka atsiveria nuostabus vaizdas į gamtą

Laiptai, kurie primena tiltelius, sukuria unikalų erdvės pojūtį ir atkreipia dėmesį į buvusio fabriko istoriją Jie yra kaip tiltai, kuriais keliavo darbuotojai iš taško A į taška B. Jie yra vienas iš svarbiausių interjero elementų.

Išvada - Tetris - žaidimas, kuriame reikia sudėlioti skirtingų formų elementus taip, kad jie susidėliotų be tarpų ir sudarytų pilną eilę (o gal nebūtina?).

27
28

SCHEMOS

Jaunimo ir migracijos centras turės penkis aukštus Pats katilinės tūris pristato įdomią ir inovatyvią architektūrinę idėją. Kiekvienas aukštas turės savo unikalų patalpų išdėstymą. Kubo ir stačiakampio formų patalpos bus harmoningai sumaišytos, sukurdamos neįprastą ir žaismingą įspūdį Bendru vizualiniu aspektu, katilinė primins nesusideliojusį

Tetriso žaidimą, kur kiekviena dalis turi savo vietą, tačiau sudaro neįprastą ir intrigų pilną visumą

2 AUKŠTO SCHEMA 3 AUKŠTO SCHEMA 4 AUKŠTO SCHEMA 5 AUKŠTO SCHEMA

AKSONOMETRINĖ SCHEMA

Buvusio fabriko katilinės architektūra išlieka, ir būtent taip parodomas ryšys su praitimi, atskleidžiant unikalų šio istorinio objekto charakterį Nepaisant to, vidaus tūris projektuojamas naujoviškai ir šiuolaikiškai, atsižvelgiant į jaunimo ir migracijos centro funkcionalumą bei poreikius

29
23 pav. Darbinio maketo nuotrauka
30
31 PJŪVIS 1-1 4.40 9.40 15.00 32 0.00 6.15 12.00 17.20

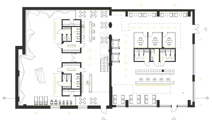
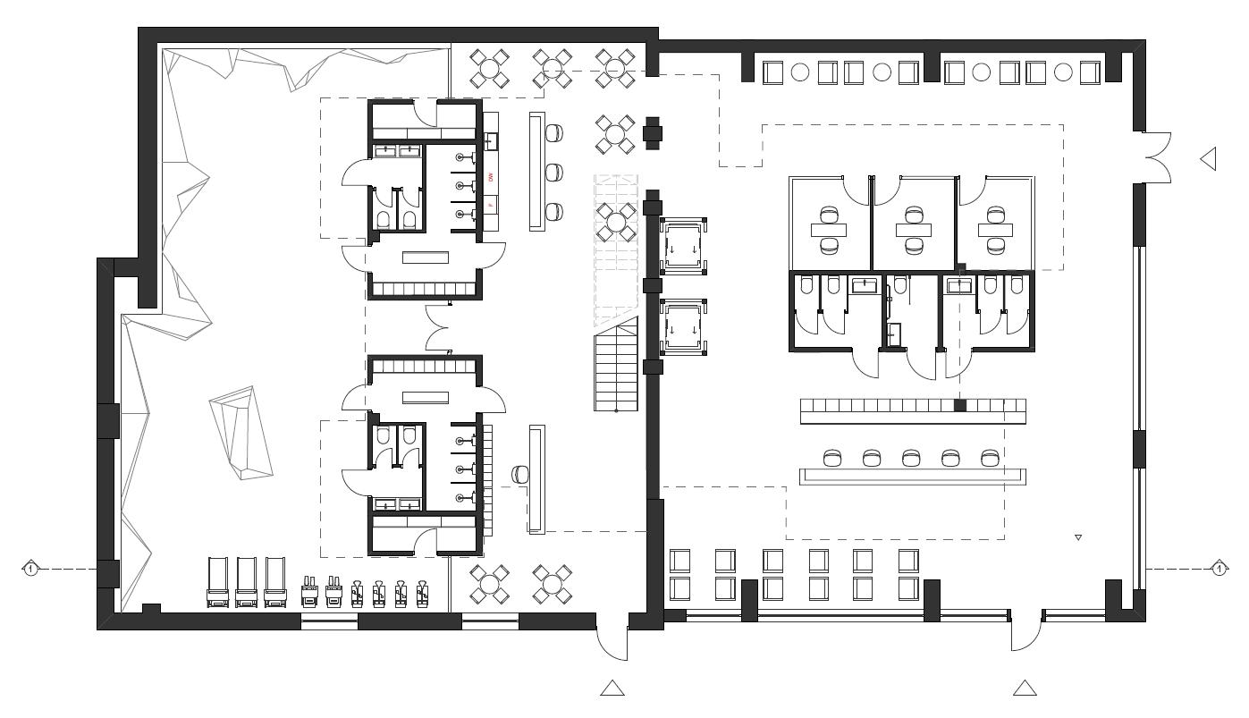
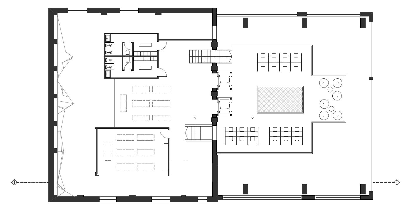
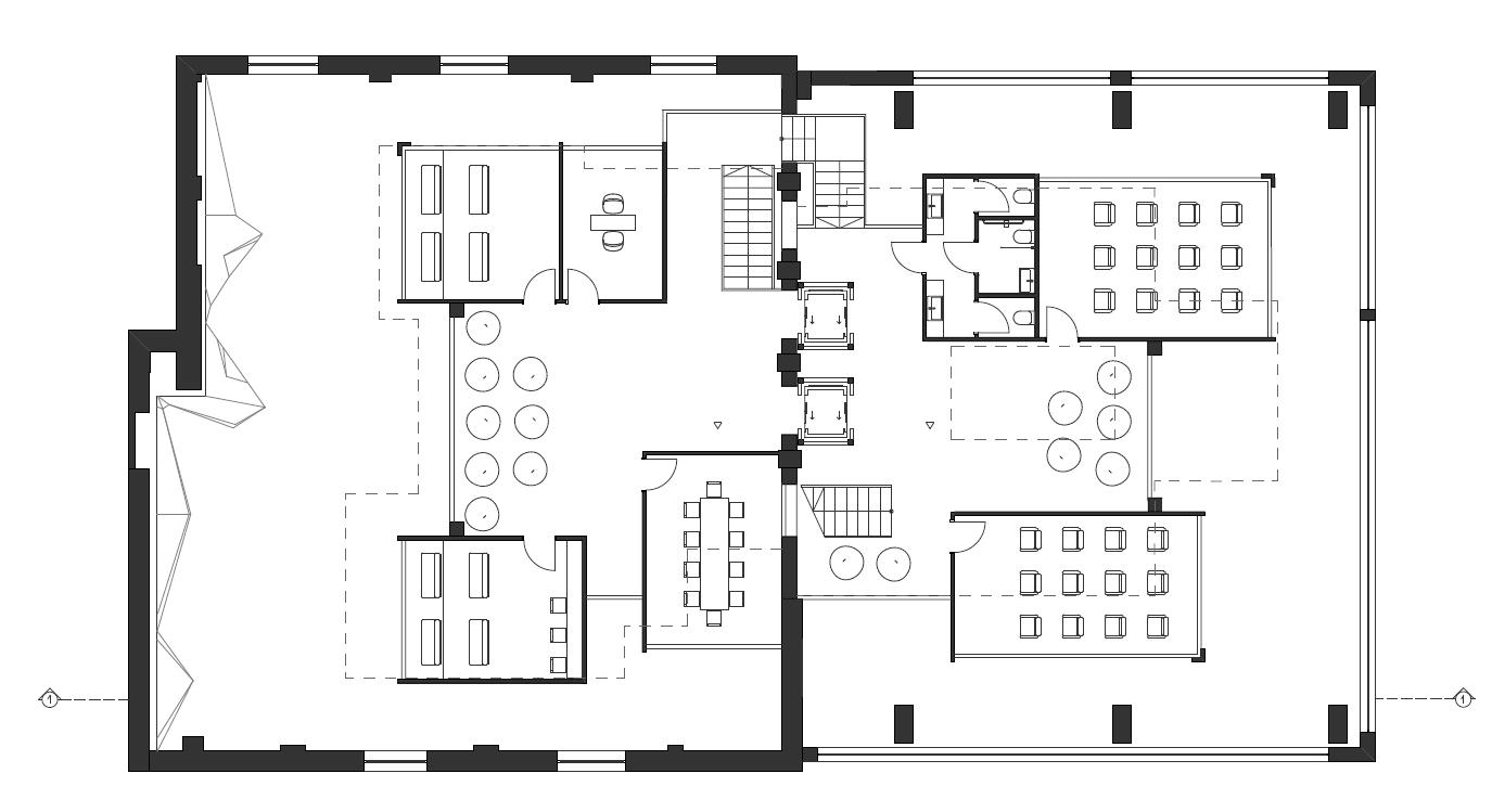
1 AUKŠTO PLANAS

EKSPLIKACIJA

1 01 Migracijos centro recepcija 25 m2

1 02 Koridorius 120 m2

1.03 Laukiamasis 57 m2

1 04 Mot san mazgas 7 m2

1 05 Vyr san mazgas 7 m2

1 06 Neįg san mazgas 3 m2

1 07 Darbuotojo kabinetas 8 m2

1.08 Darbuotojo kabinetas 8 m2

1 09 Darbuotojo kabinetas 8 m2

1 10 Jaunimo centro recepcija 8 m2

1 11 Atsisėdimo erdvė 6 m2

1 12 Koridorius 53 m2

1.13 Kavinė/ baras 9 m2

1 14 Atsisėdimo erdvė 9 m2

1 15 Mot rūbinė 11 m2

1 16 Mot san mazgas 4 m2

1 17 Sandėliukas 4 m2

1.18 Vyr. rūbinė 11 m2 1 19 Vyr san mazgas 4 m2

1 20 Sandėliukas 4 m2

1 21 Laipiojimo erdvė 152 m2 Iš viso - 518 m2

33 1.10 1.11 1.12 1.13 1.14 1.15 1.16 1.17 1.18 1.19 1.20 1.21 34
Įėjimas 0.00 1.01 1.02 1.03 1.04 1.05 1.06 1.07 1.08 1.09

EKSPLIKACIJA

2 01 Koridorius 56 m2

2 02 Varžybų žiūrėjimo erdvė 17 m2

2 03 Trenerių kabinetas 19 m2

2.04 Seminarų erdvė 17 m2

2 05 Darbuotojo kabinetas 11 m2 Iš viso - 120 m2

3 01 Koridorius 47 m2 3.02 San mazgas 11 m2

3 03 Klasė 23 m2

3 04 Klasė 27 m2 Iš viso - 108 m2

35 4.40 2.01 2.02 2.03 2.04 2.05
ŠTO PLANAS 36 6.15 3.01 3.02 3.03 3.04
2-3 AUK
37 9.40 4.01 4.02 4.03 4.04 4.05 38
4-5 AUKŠTO PLANAS
4 01 Koridorius 46 m2 4 02 Užsiėmimo erdvė 19 m2 4.03 Šokių/ sporto salė 32 m2 4 04 Mot rūbinė 10 m2 4 05 Vyr rūbinė 10 m2 Iš viso - 117 m2 5.01 Jaunimo erdvė 105 m2 12.00 5.01
EKSPLIKACIJA

4 AUKŠTAS

Pilates/ jogos/ šokių erdvės

Rūbinės/ San. Mazgas

2 AUKŠTAS

Varžybų žiūrėjimo patalpa

Trenerių patalpa

Darbo kabinetas

Seminarų erdvė

1 AUKŠTAS

Jaunimo centro recepcija

Rūbinės/ San. Mazgas

Papildomos patalpos

Kavinė

5 AUKŠTAS

Didelė erdvė pamokų darymui / poilsiui

3 AUKŠTAS

Klasės San. Mazgas

1 AUKŠTAS

Migracijos centro recepcija

Darbo kabinetai

San. Mazgas

39 VIDAUS AKSONOMETRIJA 40

MEDŽIAGIŠKUMAS

Jaunimo ir migracijos centre medžiagų įvairovė sukuria unikalų ir įdomų interjero stilių Vienas iš pagrindinių medžiagų, naudojamų centre, yra betonas Šis medžiagos pasirinkimas atspindi modernų dizainą. Kolonos ir sienos, išlikusios iš ankstesnės architektūros, suteikia centui savitą charakterį ir papasakoja apie pastato praeitį.

Be to, medis yra svarbi medžiaga, kuri naudojama centrui suteikti šilumos ir natūralumo jausmą. Mediniai baldai prideda švelnumo ir komforto, sukurdami erdvę, kurioje jaunimas ir migrantai gali jaustis jaukiai.

Jaunimo ir migracijos centre, patalpos skirtos užsiėmimams atrodo tarsi išmėtytos visoje katilinėje, kurios paprasčiausiai "plūsta" ore, ir visos jos turi geometrinės kubo formos struktūrą. Šie kubai suteikia šiuolaikišką ir modernų įvaizdį katilinės interjerui, kurie yra pusiau stikliniai Stiklas suteikia jiems lengvumo, o į patalpą patenka daug natūralios šviesos

Jaunimo ir migracijos centras pasižymi įvairių medžiagų naudojimu. Betonas ir medis atstoja tvirtumą ir natūralumą, o minkšti baldai sukuria šilumą ir komfortą Visi šie elementai drauge sukuria ypatingą aplinką

AKMENS IMITACIJA

41
TINKAS TEKSTILĖ MEDIS BETONAS
42
43
44
Migracijos centro recepcija
45 Kavinė/ baras 46

VARŽYBŲ ŽIŪRĖJIMO ERDVĖ/ KUBO

47
3.800 900 Vaizdas iš priekio 500 620 620 620 620 660 Pjūvis Kavinės baro vaizdas iš galo Pjūvis 900 370 370 90 700 110 1000 3.800 500 500 885 885 885 120 720 160
Kubo pjūvis 0.000 3.400 48
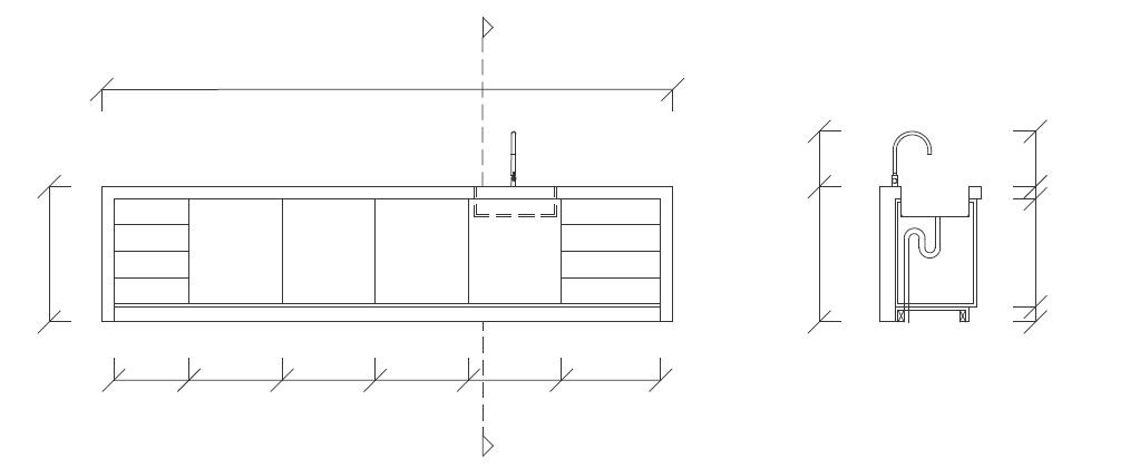
KAVINĖS DETALIZACIJA
PJŪVIS

LAIPIOJIMO ERDVĖS DETALIZACIJA

Laipiojimo siena yra pritaikyta skirtingam sunkumui, kelios zonos yra pritaikytos pradedantiesiems ir vaikams, o kitos patyrusiems laipiojimo mėgėjams

Vaikų laipiojimo sienos dalis yra šviesios spalvos su spalvotais elementais ir paveikslėliais, kad suteiktų daugiau įdomumo vaikams Suaugusiųjų laipiojimo zonos turi minimalistinį dizainą

51
52
53 54
55 56
Penktas aukštas

APŠVIETIMAS

PIRMO AUKŠTO APŠVIETIMO PLANAS

ANTRO – TREČIO AUKŠTO APŠVIETIMO PLANAS

KETVIRTO – PENKTO AUKŠTO APŠVIETIMO PLANAS

ŽYMĖJIMAI PLANE

montuojamas lubinis šviestuvas

Pakabinamas šviestuvas

leidžiami profiliai

Led juosta

Lubinis profilinis šviestuvas

Lauko apšvietimas

ŠVIESTUVŲ SPECIFIKACIJOS

ŽYMĖJIMAS KIEKIS DUOMENYS NUOTRAUKA BRĖŽINYS

TWEETER ST D REO 3050

ĮMONTUOJAMAS LUBINIS

ŠVIESTUVAS

Šviesa: Ledflex IN FP WW

15W'3000K/1000 m/m 5m

TGL-LEDLINE - PROFILE B

BLACK - 425 03 00 00 B

SPLIT-IT SPY FOCUS LP 927 B

BLACK - 18428 9200 B

SUPERNOVA LINE 65 TW

DIM5 B

BLACK - 274 95 06 26

ED5 B

DIMERIUOJAMA LED JUOSTA

12W šilta spalva (3000K)

COSMO ON SPIKE

ANTHRACITE GREY 230V

LED 10W 24° IP65 3000K

LAUKO APŠVIETIMAS

54 57
7
70 21 7 20 35

APIBENDRINIMAS

Baigiamojo darbo tema "Migracija ir integracija" nagrinėja svarbų socialinės ir kultūrinės veiklos centro vaidmenį, esantį buvusio popieriaus fabriko katilinėje Šis centras yra ypatingas dėl savo lokacijos, kuri suteikia jam unikalų charakterį.

Migracijos ir jaunimo centras yra sukurtas siekiant pateikti plačią ir įvairiapusišką paramą jaunimui bei migracijos klausimais susiduriantiems asmenims Čia vyksta įvairios veiklos, kurios siekia skatinti įvairių kultūrų sąveiką, socialinę integraciją ir jaunimo užimtumą.

Centro tikslas yra užtikrinti kokybišką informacijos ir konsultacijų paslaugų teikimą, teikti paramą migrantams, skatinti jų kultūrinį prisitaikymą ir bendravimą su vietos bendruomene

Taip pat, jaunimo centras yra vietinės jaunimo veiklos ir švietimo programų centras, kur vyksta įvairios jaunimui skirtos veiklos: nuo mokymų ir seminarų iki sportinės veiklos.

Buvusio popieriaus fabriko katilinės atmosfera suteikia unikalų ir įdomų foną šiam centrui

Patogus ir modernus erdvės išnaudojimas leidžia organizuoti įvairius renginius ir susitikimus, kurie suteikia galimybę skirtingoms grupėms integruotis ir bendrauti.

Migracijos ir jaunimo centras yra ne tik vietinės bendruomenės, bet ir visos šalies bei užsienio šalių jaunimo ir migrantų bendruomenių susitikimo ir paramos vieta. Jo įkūrimas ir veikla padeda formuoti atviresnę, tolerantiškesnę ir įvairiakultūrišką visuomenę.

SUMMARY

The thesis topic "Migration and Integration" explores the significant role of the social and cultural center situated in the boiler room of the former paper factory. This center holds a special distinction due to its unique location, which contributes to its distinctive character

The Migration and Youth Center is designed to offer comprehensive and diverse support to young people and individuals dealing with migration-related challenges. It encompasses a wide range of activities that seek to foster cultural exchange, promote social integration, and enhance youth employment opportunities

The center aims to ensure the provision of high-quality information and consultation services, offering support to migrants while promoting their cultural adaptation and facilitating communication with the local community Additionally, the youth center serves as a hub for local youth activities and educational programs, hosting a wide range of events, from training sessions and seminars to sports activities.

The ambiance of the former paper mill boiler room creates a unique and captivating backdrop for this center The space has been transformed into a comfortable and modern setting, enabling the organization of diverse events and meetings These gatherings provide valuable opportunities for different groups to integrate and engage in effective communication.

The Migration and Youth Center serves as a meeting and support hub not only for the local community but also for the youth and migrant communities from across the country and abroad Its establishment and activities contribute to the development of a more open, tolerant, and multicultural society, fostering an environment of inclusivity and understanding.

59
60

BIBLIOGRAFIJA

Atvirieji Jaunimo Centrai – Jaunuoliams Ugdyti ir Socializuoti. Lietuvos Respublikos socialinės apsaugos darbo ministerija (2017, kovo 1) Žiūrėta kovo 25, 2023, https://socmin lrv lt/lt/naujienos/atvirieji-jaunimo-centrai-jaunuoliams-ugdyti-ir-socializuoti

Atvirų Jaunimo centrų Praktinis Gidas – kedainiai.lt (n.d.). Žiūrėta kovo 25, 2023, https://www kedainiai lt/data/wfiles/file4241 pdf

Bns (2022, kovo 27) Lietuvoje registruota 49,1 tūkst Karo pabėgėlių Iš Ukrainos Lrt lt Žiūrėta kovo 25, 2023, https://www.lrt.lt/naujienos/lietuvoje/2/1681984/lietuvoje-registruota-49-1-tukst-karopabegeliu-is-ukrainos

LRT.lt (2020, spalio 2). Su pabėgėliais Dirbanti Ieva: Pirmiausia Reikia Palaikymo, Tik Tada Pagalbos Lrt lt Žiūrėta kovo 25, 2023, https://www lrt lt/mediateka/irasas/2000123874/su-pabegeliais-dirbanti-ieva-pirmiausiareikia-palaikymo-tik-tada-pagalbos

Migracija. Visuotinė lietuvių enciklopedija (n.d.). Žiūrėta kovo 25, 2023, https://www vle lt/straipsnis/migracija/

Naujųjų Verkių popieriaus fabrikas. Pamiršta.lt. (2018, gegužės 28). Žiūrėta kovo 25, 2023, https://pamirsta.lt/naujuju-verkiu-popieriaus-fabrikas/

Skalietska, Y , & Morpurgo, M (2022) You don‘t know what war is: The diary of young girl from Ukraine. Bloomsbury Children‘s Books.

VilniusGo lt (2021, rugpjūčio 7) Vienas Seniausiu Popieriaus Farbrikų Lietuvoje – Verkiuose MadeinVilnius lt – Vilniaus naujienų dienoraštis Žiūrėta kovo 25, 2023, https://madeinvilnius.lt/vilniaus-istorija/neatrastas-vilnius/neatrastas-vilnius-naujuju-verkiupopieriaus-fabrikas/

62

Turn static files into dynamic content formats.

Create a flipbook
Gabriela Tylingo "Migracija ir integracija. Erdviniai pri(si)taikymai buvusiame popieriaus fabrike" by VAA Interior design department / VDA Interjero dizaino katedra - Issuu