CAPBA Fascículo Nº08 - 2023

Page 1

VIVIENDA Y PREEXISTENCIA

COLEGIO DE ARQUITECTOS DE LA PROVINCIA DE BUENOS AIRES CONSEJO SUPERIOR FASCÍCULOS Nº08 | 2023

ALGUNAS REFLEXIONES SOBRE EL TEJIDO URBANO_3

“Enraizado en la tradición de revitalizar la herencia arquitectónica, el proyecto aborda la recalificación de los espacios existentes, redefiniendo usos y la relación entre la casa y los espacios exteriores (…) El aprovechamiento de los recursos disponibles y el respeto por las preexistencias guían la esencia de la intervención, que toma un espacio previamente ignorado y le otorga nueva vida.”

_De la memoria de los autores de “Casa Graciela”, obra que se publica en las páginas que siguen

Suele confundirse el concepto de patrimonio construido. Para muchxs, allí solo se integran obras de cierto valor arquitectónico, cuya validación disciplinar es, en términos generales, compartida. Ahora bien, si aceptáramos flexibilizar los limites de tal concepto, y pudiéramos ver un poco más allá de las evidencias, nos encontraríamos con un sin número de obras anónimas, depositarias de un saber colectivo enorme, un verdadero palimpsesto de nuestra cultura arquitectónica. Alvaro Siza lo dice con elocuencia: “Claro, lo que hay que hacer es abrir los ojos y ver. No solo mirar (…) abrir las ventanas de los ojos para ver y descubrir lo que hay dentro” _Alvaro Siza. Textos. Madrid: Abada. 2014.

Nuestros pueblos y ciudades se cubren de estas obras, constituyen su acervo, el mismo que hoy vuelve a ser convocante a la hora de optar por mejores condiciones de hábitat. Cuidarlo, comprenderlo, aceptarlo en su carácter de valiosa experiencia previa, es una condición indispensable -no suficiente, desde ya- para operar con sabiduría sobre él, para entender que en las continuidades radica el mayor motor de evolución. Cuáles son esas continuidades es un debate que nos debemos -y muy seriamente-.

En un tiempo de tanta complejidad e incertidumbre, la conversación entre presente y pasado debiera poder restablecerse en términos de entender lo que ya cambió sin retorno y aquello que se apresta a aparecer, cuya base material construida por generaciones, debiera ser comprendida como un recurso que no puede impugnarse sin una profunda reflexión sobre su propio sentido; y no solo atendiendo a cuestiones ineludibles de sustentabilidad social y ambiental, sino -y más bien- en atención a su condición de anclaje cultural identitario. Podemos intentar desengancharnos de la historia, si es que eso es posible, podemos incluso decir que ha llegado a su fin -alguien ya lo dijo-. Es dudoso que sea el mejor camino. No es una posición conservadora, si es que así es entendida; es una decisión que involucra pensarse como un colectivo que solo obtendrá respuestas responsables cuando el diálogo sea posible.

STAFF CAPBA FASCÍCULOS

Propietario Colegio de Arquitectos de la Provincia de Buenos Aires

Director Arq. Ramón Rojo

Consejo editor Arqs. Juan Carlos Sánchez y Mario Pérez

Direccion de arte y diseño Estudio RO-K

4 | CAPBA FASCÍCULOS COLEGIO DE ARQUITECTOS DE LA PROVINCIA DE BUENOS AIRES
Revista del Colegio de Arquitectos de la Provincia de Buenos Aires RAMON ROJO / PRESIDENTE CAPBA

¿POR QUE REFORMAR

UNA VIVIENDA?

“Las transformaciones sociales y del modo de vida cotidiano son imprevisibles para una duración comparable a la de los edificios.”

Yona Friedman, en su manifiesto “La arquitectura móvil” (1956), advertía hace ya casi 70 años que la arquitectura y la vida no siempre van de la mano. Y cuando surge la desavenencia, salen a escena la reforma, la rehabilitación, la ampliación, la puesta en valor, categorías que implican proyectar y trabajar sobre lo existente.

En el ámbito de la Modernidad, la estaticidad del edificio residencial y el dinamismo que implican los cambios que sufre un individuo o un grupo familiar a lo largo del tiempo han provocado importantes debates y han incentivado propuestas innovadoras.

El concepto de “flexibilidad” aplicado a la vivienda contemporánea no parece haber dado resultados demasiado alentadores, más allá de proyectos académicos o estudiantiles. Si un botón sirve de muestra, la Unidad de Habitación de Marsella (1951) fue pensada por Le Courbusier como una estructura portante donde insertar casas prefabricadas que podrían reemplazarse en el momento necesario. Con un presupuesto ajustado, nada de esto se cumplió, y el edificio, más allá de las tareas de mantenimiento, no se ha modificado en 70 años. Con inquietudes similares, el arquitecto español José María Ezquiaga incorpora el concepto de “vivienda progresiva (…) que puede crecer y adaptarse a lo largo del tiempo a las necesidades y capacidad económica del usuario”-, como una manera de prever que los futuros cambios no produzcan situaciones traumáticas. En Argentina y otros países latinoamericanos, muchos modelos de vivienda social contemplan esta posibilidad de cambio o ampliación en sintonía con la evolución familiar, pero los resultados no han sido los que los proyectistas imaginaron: los usuarios reformaron o completaron en otros sentidos o los recursos, más escasos que los previstos, frustraron o limitaron el “progreso” de sus casas…

De regreso al aquí y ahora, se puede parafrasear una expresión que circula en ámbitos políticos, y decir que “donde hay una necesidad residencial, nace una posibilidad de adaptación”. Y suele ocurrir que los/as arquitectos/as no sean convocados para la tarea: la imaginación del propietario de la vivienda, sumado a las habilidades de un albañil, un electricista y un plomero, son suficientes, en la “cultura popular”, para llegar a buen puerto. Alguna vez sale bien; en muchas ocasiones, se despilfarran recursos para obtener pobres resultados. Sin embargo, en las últimas décadas, la refacción y la ampliación residencial han adquirido un espacio considerable dentro de las tareas que encaran los/as profesionales bonaerenses, a las que se incorporan también la reutilización de edificios con pasado industrial u otros usos colectivos, que devienen en nuevas viviendas.

La reforma de preexistencias y los cambios de destino de “estructuras vacantes”, han adquirido un nuevo valor bajo el en-

foque de la sustentabilidad. Apostar por el parque habitacional existente -un recursos escaso si lo comparamos con el déficit de viviendas-, como hábitat para una buena parte de las generaciones actuales y futuras, exige una renovada mirada profesional. Una agenda político ambiental, cada vez más presente en campañas y propuestas eleccionarias, exigen la morigeración de los costos climáticos, de la huella de carbono, que traducido en términos arquitectónicos, significa, entre otros objetivos, reducir, todo lo posible, demoliciones y nuevas construcciones.

Los proyectos que se presentan en las próximas páginas recorren algunas -no todas- de las alternativas que se han mencionado en párrafos anteriores y contemplan desde la pequeña escala -SUM Maruyí- a la reforma que involucra cientos de metros cuadrados -de edificio escolar a viviendas-.

En tres intervenciones, los autores privilegian la preexistencia: en la ampliación sobre una terraza, cuidado que no quede en el camino la relación con el exterior, en un caso, y en las reformas de dos viviendas, centrando el proyecto en patios que no cumplían su función, en una de ellas, y restaurando la cáscara de la casa original -eliminando los elementos agregados en posteriores reformas-, en la otra. En todos los casos, se proporcionan renovadas condiciones de habitabilidad: más o mejor uso del espacio, iluminación y ventilación natural, mejor distribución funcional.

Cuando entra en juego el cambio de destino -casa estudio y multivivienda-, la intervención es más radical: se conserva la envolvente, en algún caso como testimonio del pasado, y se procede a un vaciamiento espacial para una mejor adaptación al nuevo uso. En la obra de Berisso, la ampliación sobre la cubierta existente se destina a consultorios, cuya recepción y sala de espera ocupa un sector de la vivienda refaccionada.

“En lugar de buscar la manera más conveniente de poner cuartos, baños y cocinas en pocos metros cuadrados, en lugar de repetir el esquema hacia arriba durante veinte pisos, pienso en la manera más racional de mejorar la vida de tres o cuatro personas dentro de un englobante espacial que ya existe. En lugar de partir del esquema ideal que propone la Facultad (un espacio vacío esperando ser llenado con paredes y techos), parto de un embrollado sistema de circulaciones erradas, de divisiones sobrantes, de lugares muertos, y trato de convertir el todo en una casa inteligente, donde la vida sea sencillamente mucho más agradable.”

Estas palabras pertenecen a un párrafo rescatado de “Cirugía de casas” -texto de divulgación de las posibilidades y riquezas que ofrecen las preexistencias como insumo proyectual-, que el arquitecto Rodolfo Livingston publicó en 1989. El “médico-arquitecto”, como gusta definirse, anticipó una tendencia que en el nuevo siglo se afianza y gana adeptos, con aportes conceptuales desde la disciplina y propuestas concretas de innumerables arquitectos/as de a pie.

COLEGIO DE ARQUITECTOS DE LA PROVINCIA DE BUENOS AIRES 5 | CAPBA FASCÍCULOS
CONSEJO
EDITORIAL

FICHA TECNICA

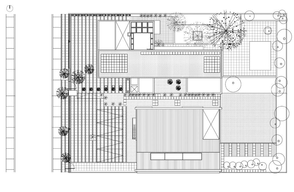
UBICACION BARRIO MARAYUI / CHAPADMALAL / PARTIDO DE GENERAL PUEYRREDON

FECHA FINALIZACION 2022

MEMORIA

El SUM Marayui es un trabajo de ampliación de una vivienda existente, en donde la investigación está muy ligada al tipo de encargo: la propuesta del cliente es incorporar una terraza como espacio interior, sin un programa determinado, y con un contexto paisajístico potente.

La estrategia consistió en encontrar una forma de cubrir este espacio sin condicionar sus posibilidades de uso, sin comprometer la transparencia en relación a ese paisaje y, a la vez, pensar un sistema de cerramiento lo suficientemente flexible para que este espacio pueda, por momentos, efectivamente convertirse en un interior, y por otros, pueda conservar las características de un exterior.

6 | CAPBA FASCÍCULOS COLEGIO DE ARQUITECTOS DE LA PROVINCIA DE BUENOS AIRES
SUM MARAYUI AMPLIACION AUTORES/A ARQUITECTOS IVAN BRANKEVICH Y AGUSTIN CRESPO, Y ARQUITECTA JULIETA KNOLLINGER
8 | CAPBA FASCÍCULOS COLEGIO DE ARQUITECTOS DE LA PROVINCIA DE BUENOS AIRES CORTE PLANTA
10 | CAPBA FASCÍCULOS COLEGIO DE ARQUITECTOS DE LA PROVINCIA DE BUENOS AIRES
DESPIECE
COLEGIO DE ARQUITECTOS DE LA PROVINCIA DE BUENOS AIRES 11 | CAPBA FASCÍCULOS

CASA GRACIELA

MEMORIA

Tres unidades ensambladas verticalmente, construidas en 1954, se encuentran compartiendo parcela en el barrio de Tribunales, de la ciudad de Mar del Plata. La intervención consiste en la remodelación de la vivienda ubicada en el nivel inferior del conjunto, perteneciente a Graciela, quien utiliza su hogar como espacio de atención médica a pacientes. El proyecto busca ir más allá de la mera renovación de los espacios, abrazando la premisa de trabajar a partir de lo preexistente para crear algo nuevo. Enraizada en la tradición de revitalizar la herencia arquitectónica, el proyecto aborda la recalificación de los espacios existentes, redefiniendo usos y la relación entre la casa y los espacios exteriores. Originalmente, la vivienda mostraba una planta segmentada cuya organización programática mantenía sus usos mezclados. La casa proponía una relación desinteresada con los espacios exteriores debido a su proximidad inmediata con la calle, dentro de un entorno poco amable y seguro.

De los 200 metros cuadrados disponibles, solo el 25% era aprovechado, conformado por la cocina, el dormitorio principal y un segundo dormitorio, utilizado como consultorio.

La estrategia de diseño surge de la voluntad de Graciela de habitar espacios más luminosos y funcionales, separados de manera independiente. Se identificó la obsolescencia técnica y programática, y se estableció una estrategia para recalificar los espacios existentes, redistribuir usos y poner en valor las dos áreas exteriores-interiores como ejes del proyecto.

El planteo revitaliza dos patios preexistentes, antes utilizados como espacios de almacenamiento, que emergen como protagonistas centrales de la transformación. Uno se convierte en un punto articulador esencial, mientras que el otro sirve como área de expansión. Estos espacios se reinventan para maximizar su potencial como fuentes de luz y ventilación, dirigiendo las vistas hacia estos patios para proteger la privacidad en algunos momentos, integrar los espacios en otros y,

sobre todo, capturar la luz natural. El corazón de la vivienda alberga ahora el consultorio, orientado hacia el patio menor para fortalecer su papel central. Se genera así un acceso exclusivo para los pacientes. Este espacio, que cuenta con una cubierta traslúcida corrediza, nuclea la distribución de consultorio y vivienda, mientras que la planta superior se convierte en un espacio independiente, alquilable para profesionales. El patio mayor, que originalmente se presentaba como un lugar residual trasero, se integra a la vivienda a través de generosas aberturas. Se implementa un sistema de cerramiento que se pliega y desliza, aportando seguridad y versatilidad. Estas soluciones, de dimensiones ampliadas, ofrecen nuevas relaciones con el entorno y permiten la adaptación a diferentes requerimientos de distribución y recreación al aire libre. Se plantean dispositivos que invitan a construir un modo contemporáneo de relacionarse con el exterior y a establecer un mayor uso entre los ambientes y los patios.

Los límites entre los mismos, tratados como cerramientos dinámicos, fomentan la integración de los ambientes y la independización de usos.

La diferenciación entre lo preexistente y las adiciones se logra mediante el uso de un lenguaje propio, con tonos neutros que amplifican la luz. La intención reside en distinguir la nueva intervención por su materialidad sin perder la armonía y el diálogo con el edificio preexistente.

El proyecto reflexiona sobre la reconfiguración de los flujos circulatorios y la incorporación de operaciones simples, principalmente en los dos patios específicos, con el objetivo de mejorar las condiciones de la totalidad de la vivienda. El aprovechamiento de los recursos disponibles y el respeto por las preexistencias guían la esencia de la intervención, que toma un espacio previamente ignorado y le otorga nueva vida. Los patios, como un valor a potenciar que favorezcan la flexibilidad y apropiación por parte de los usuarios.

12 | CAPBA FASCÍCULOS COLEGIO DE ARQUITECTOS DE LA PROVINCIA DE BUENOS AIRES
FICHA TECNICA UBICACION BARRIO TRIBUNALES / MAR DEL PLATA / PARTIDO DE GENERAL PUEYRREDON FECHA FINALIZACION 2021
AUTORA ARQUITECTA ANTONELLA TESTA SOPRANO COLABORADORES ALFONSO TRUEBA (DOCUMENTACION GRAFICA) / OBRA LINDA (FOTOGRAFIA)
REFACCION
COLEGIO DE ARQUITECTOS DE LA PROVINCIA DE BUENOS AIRES 13 | CAPBA FASCÍCULOS
14 | CAPBA FASCÍCULOS COLEGIO DE ARQUITECTOS DE LA PROVINCIA DE BUENOS AIRES
PLANTA PREEXISTENTE
COLEGIO DE ARQUITECTOS DE LA PROVINCIA DE BUENOS AIRES 15 | CAPBA FASCÍCULOS
PLANTA PROYECTO DIAGRAMA DE FLUJOS
16 | CAPBA FASCÍCULOS COLEGIO DE ARQUITECTOS DE LA PROVINCIA DE BUENOS AIRES
CORTE LONGITUDINAL
COLEGIO DE ARQUITECTOS DE LA PROVINCIA DE BUENOS AIRES 17 | CAPBA FASCÍCULOS ETAPAS

CASA Y CONSULTORIOS

NAPOLES

REFACCION Y AMPLIACION

AUTORES ARQUITECTO EMANUEL LUPEIK Y ARQUITECTA ANABELLA LORENZI

MEMORIA

En el centro de la ciudad de Berisso, se toma la decisión de intervenir en la casa familiar, densificando y agregando valor al barrio.

Por un lado, se realizó la remodelación de la casa existente, mejorando las instalaciones y su calidad arquitectónica espacial, demoliendo ampliaciones agregadas para ganar patio y desarmando la tipología cajón para abrir y flexibilizar su interior.

De carácter racionalista, la casa-taller de los años 50, se pensó y construyo para un sastre.

La idea de vivir y trabajar hoy se amplifican, expandiendo hacia la cubierta de hormigón, una serie de módulos flexibles, para el uso de consultorios como espacio laboral.

La intervención se ejecuta con materiales ligeros (Steel frame y chapa blanca), carece de columnas, libera la planta y gana flexibilidad de uso. Se posa a modo de cáscara, sobre los parasoles de hormigón, que a su vez refuerzan la estructura horizontal de cargas existentes.

Estos Brise Solei actúan como fuelle entre el afuera y los espacios

interiores, controlan el sol, dan privacidad y direccionan visuales. Son piezas fundamentales, protagonistas de la nueva fachada, que revalorizan y completan la pieza arquitectónica.

La vida doméstica convive con la laboral, manteniendo su privacidad para ambas funciones.

El espacio común entre ambos es el patio donde crecen múltiples especies naturales generando un microclima de sombra. A su vez la vereda, como espacio de encuentro y de transición, cumple un rol fundamental para la vida cotidiana de ambos lugares.

Se mantuvieron y plantaron nuevos árboles, generando un espacio absorbente de mayor tamaño para los mismos, con equipamiento público para mejor uso.

La obra interpreta el lenguaje de su entorno, propio de una ciudad portuaria, de inmigrantes, de épocas y “estilos “diferentes, revalorizando materiales como la chapa y el hormigón, donde lo fundacional, lo precario y moderno construyen la identidad del lugar.

18 | CAPBA FASCÍCULOS
FICHA TECNICA UBICACION CALLE NAPOLES, BERISSO / PARTIDO DE BERISSO FECHA DE FINALIZACION 2020
COLEGIO DE ARQUITECTOS DE LA PROVINCIA DE BUENOS AIRES 19 | CAPBA FASCÍCULOS
20 | CAPBA FASCÍCULOS COLEGIO DE ARQUITECTOS DE LA PROVINCIA DE BUENOS AIRES
PLANTA BAJA
COLEGIO DE ARQUITECTOS DE LA PROVINCIA DE BUENOS AIRES 21 | CAPBA FASCÍCULOS
PLANTA ALTA
CAPBA FASCÍCULOS COLEGIO DE ARQUITECTOS DE LA PROVINCIA DE BUENOS AIRES
FRENTE
COLEGIO DE ARQUITECTOS DE LA PROVINCIA DE BUENOS AIRES CAPBA
CORTE LONGITUDINAL

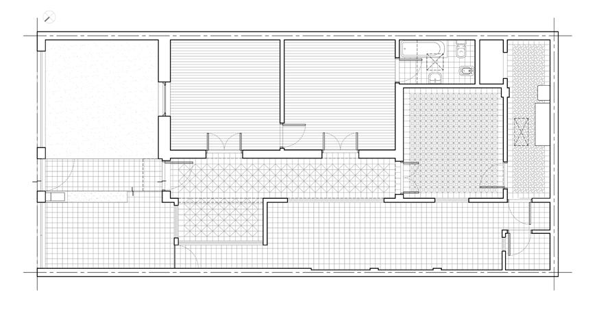
CASA MOON

COLABORADORA/OR MACARENA GONZALEZ NEGRI / FERNANDO SCHAPOCHNIK (FOTOS)

MEMORIA

Casa MOO está ubicada en la provincia de Buenos Aires, Argentina. La casa conserva el rasgo histórico de un objeto quedado en el tiempo, casi a modo de nostalgia.Su forma pura, limpia y atemporal emerge por encima de un nuevo límite, constituido por el portón que separa la casa de la calle. Dicho límite busca el diálogo entre lo histórico y lo actual, lo liviano y lo pesado, lo real y lo conceptual, el blanco y el marrón, el interior y el exterior. Originalmente, la casa se encontraba completamente alterada por adiciones y cambios programáticos aleatorios realizados a lo largo de los años. La estrategia del proyecto consistió en restaurar la cáscara de la casa original, quitando todas las adiciones y potenciando el interior con un nuevo programa permeable en relación a nuevos patios exteriores que la rodean. El lenguaje clásico, la altura de los espacios, los muros anchos y

FICHA TECNICA UBICACION SAN ISIDRO / PARTIDO DE SAN ISIDRO SUPERFICIE CUBIERTA 78 M2 FECHA FINALIZACION 2021

los pisos existentes fueron el punto de partida como estrategia e impronta del proyecto.

El primer paso consistió en demoler todos los muros, techos y pisos que rodeaban la arquitectura original de la casa, para dejar al desnudo su cáscara y el espacio exterior que la despega de sus medianeras.

El acceso se da a través de un primer patio que funciona como espacio de transición entre la calle y el interior de la casa, entre lo público y lo privado. Su programa principal, estar, cocina y comedor, se ubica en el centro de la planta, con un segundo patio longitudinal que lo contiene. Las grandes puertas y ventanas buscan dar la mayor cantidad de luz posible y relacionar el programa con el uso frecuente de ese espacio exterior. Por último, el dormitorio y su baño principal quedan en relación directa y privada hacia un tercer patio.

24 | CAPBA FASCÍCULOS
AUTORES ARQUITECTOS AGUSTIN AGUIRRE+AGUSTIN MENDIONDO
REFACCION
COLEGIO DE ARQUITECTOS DE LA PROVINCIA DE BUENOS AIRES
26 | CAPBA FASCÍCULOS COLEGIO DE ARQUITECTOS DE LA PROVINCIA DE BUENOS AIRES
PLANTA EXISTENTE
27 | CAPBA FASCÍCULOS
PLANTA INTERVENCION
PLANTA PROYECTO
28 | CAPBA FASCÍCULOS COLEGIO DE ARQUITECTOS DE LA PROVINCIA DE BUENOS AIRES CORTE TRANSVERSAL
COLEGIO DE ARQUITECTOS DE LA PROVINCIA DE BUENOS AIRES 29 | CAPBA FASCÍCULOS CORTE LONGITUDINAL

CASA ESTUDIO 2.0

REFACCION Y AMPLIACION

MEMORIA

La Casa Estudio 2.0 es el retorno de la opción de trabajar en la casa, solo que en esta segunda vuelta, en lugar de hacerlo en el subsuelo de la casa, cosa que practiqué durante 15 años, es en el predio vecino, el cual adquirimos a mediados del año 2019. El proyecto consistió en aprovechar algunos muros de la casa preexistente, demoler el resto, quitar la cubierta, e instalar una estructura metálica que conectara todo, con una cubierta a dos aguas que permitiera tener un único techo, bajo el cual se pudiera trabajar en distintos ambientes.

El terreno circundante de esta casa, lo aprovechamos para ampliar el jardín de la casa vecina, tener un huerto y un lugar cómodo donde estacionar algunos vehículos.

Para facilitar la convivencia de estos dos programas, la casa estudio tiene pocas aperturas al exterior en planta baja, de modo de cuidar la privacidad de la vivienda. La luz se capta principalmente de una lucarna que recorre toda la planta alta, de este a oeste. Exteriormente, fue revestida con aislante térmico y una terminación de bloques de cemento a la vista, que unifican el volumen y lo dejan en una condición de abstracción que permite la convivencia con la casa vecina.

Interiormente, en planta baja, están los muros originales de ladrillo enlazados por una estructura metálica vista. En el piso superior, el pavimento es una pintura epóxica continua, que refleja la luz y contrasta con el cielorraso de madera.

30 | CAPBA FASCÍCULOS
MATHIAS
COLABORADOR
EDUARDO RUIZ FICHA TECNICA UBICACION
AUTOR ARQUITECTO
KLOTZ
ARQUITECTO
SANTIAGO DE CHILE FECHA DE FINALIZACION 2020
COLEGIO DE ARQUITECTOS DE LA PROVINCIA DE BUENOS AIRES 31 | CAPBA FASCÍCULOS
32 | CAPBA FASCÍCULOS COLEGIO DE ARQUITECTOS DE LA PROVINCIA DE BUENOS AIRES PLANTA GENERAL
COLEGIO DE ARQUITECTOS DE LA PROVINCIA DE BUENOS AIRES 33 | CAPBA FASCÍCULOS
INTERVENCION PLANTA ALTA
INERVENCN PANTA BAJA
34 | CAPBA FASCÍCULOS COLEGIO DE ARQUITECTOS DE LA PROVINCIA DE BUENOS AIRES
VISTA ESTE VISTA OESTE
VISTA NORTE
COLEGIO DE ARQUITECTOS DE LA PROVINCIA DE BUENOS AIRES CORTE TRANSVERSAL

FICHA TECNICA

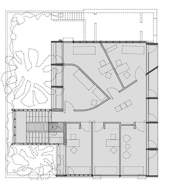
MULTIVIVIENDA

REFACCION Y CAMBIO DE USO DE EDIFICIO ESCOLAR

MEMORIA

Este edificio de vivienda multifamiliar fue desarrollado sobre una construcción existente, una vieja escuela abandonada ubicado en el barrio Los Troncos de la ciudad de Mar del Plata, un barrio con una fuerte impronta residencial.

Del análisis del sitio se desprendieron varios puntos de partida para el proyecto: la construcción que existía era una fuerte ruptura del tejido y su estado de abandono enfatizaba esta problemática en el entorno circundante.

El proyecto fue desarrollado por medio de una excepción al Código por la particularidad del caso, lo cual arrojó una fuerte restricción, ya que debíamos trabajar sobre la silueta construida -transformarla, trabajarla-, pero no superarla.

Lo que a priori se estableció como un fuerte condicionante, rápidamente se convirtió en el punto de partida del proyecto,

que se centró en cuatro ejes fundamentales: potenciar; que el edificio se integre y dialogue con el entorno inmediato, respetar la escala urbana; reforzar las relaciones de encuentro, características del barrio, dentro del edificio; conceptualmente, trabajar las unidades como un conjunto de viviendas agrupadas y potenciar las experiencias y relaciones con el exterior.

Es así que trabajamos primero en el conjunto, abriendo superficies al aire libre, sectorizando la vereda peatonal, la circulación vehicular, la plaza, las relaciones de movimiento. Aportando al conjunto su propia identidad de barrio, un diálogo entre lo público del mismo y lo semipúblico del conjunto.

Las decisiones formales y estéticas acompañan esta idea de ir mostrando este edificio a través del tiempo y sus diferentes momentos: podríamos decir un abordaje honesto de lo existente y su transformación actual.

36 | CAPBA FASCÍCULOS COLEGIO DE ARQUITECTOS DE LA PROVINCIA DE BUENOS AIRES
UBICACION BARRIO LOS TRONCOS / MAR DEL PLATA / PARTIDO DE GENERAL PUEYRREDON SUPERFICIE CONSTRUIDA 712M2 FECHA FINALIZACION 2021
BM ESTUDIO / ARQUITECTO BRUNO MARTUCCI COLABORADORAS/ES INGENIERO DANIEL DE SARRO, ARQUITECTAS MARA SILVESTRI Y NATALIA MAGALLANES Y EMILIO VENA / OBRA LINDA (FOTOGRAFIAS)
AUTOR
38 | CAPBA FASCÍCULOS COLEGIO DE ARQUITECTOS DE LA PROVINCIA DE BUENOS AIRES PLANTA BAJA
COLEGIO DE ARQUITECTOS DE LA PROVINCIA DE BUENOS AIRES 39 | CAPBA FASCÍCULOS PLANTA ALTA
40 | CAPBA FASCÍCULOS COLEGIO DE ARQUITECTOS DE LA PROVINCIA DE BUENOS AIRES
VISTA FRENTE
COLEGIO DE ARQUITECTOS DE LA PROVINCIA DE BUENOS AIRES 41 | CAPBA FASCÍCULOS CORTE LONGITUDINAL

Turn static files into dynamic content formats.

Create a flipbook
Issuu converts static files into: digital portfolios, online yearbooks, online catalogs, digital photo albums and more. Sign up and create your flipbook.