































































vuelva a ser uno de los sentidos primordiales del habitar. La apertura hacia la región, hacia Latinoamérica, como lo planteamos en el fascículo anterior, ha renovado nuestros modos de hacer arquitectura. Se insiste, en ocasiones, que solo ha sucedido con los lenguajes que utilizamos; no creemos que sea así. Prestamos más atención a la materialidad de nuestros proyectos, a su construcción, a su impacto ambiental, a su condición urbana. Nada que nuestros maestros locales no hayan aplicado antes, pero que hemos ido relegando en el camino por razones diversas y complejas, que iremos abordando en cada oportunidad que se nos presente.
En la primera entrega de los fascículos CAPBA, nos pareció apropiado ocuparnos de la vivienda aislada financiada por intermedio del Programa Pro Cre Ar, una decisión fundada en el hecho que es uno de los encargos más habituales cuando los arquitectos dan sus primeros pasos en el ejercicio profesional. Con una particularidad nada menor: aquí el Estado -es decir, todos y todas quienes habitamos la Argentina- ha decidido tomar cartas en el asunto y promover el acceso a la primera vivienda. A nuestro entender, una intervención razonable y constructiva donde intereses privados y públicos pueden transitar un camino común, no solo en términos de la generación de trabajo -acto indispensable-, sino, y también, reconciliar instituciones con las personas de a pie.
En este fascículo 2, vamos por un cambio de escala entre la vivienda unifamiliar aislada y la multifamiliar en lotes peri-urbanos, más cercana al habitar individual que colectivo, aunque con la inevitable presencia de espacios comunes, por mínimos que estos sean. Consideramos imprescindible la revisión de los actuales patrones de desarrollo y crecimiento de los centros urbanos, y ya no solo para que el funcionamiento de la infraestructura de servicios sea eficiente sino y, sobre todo, para conseguir espacios de uso compartido, donde la vitalidad de lo común
Es probable, arriesgamos, que las renovaciones a las que hacemos referencia hayan venido de la mano de un enfoque profesional que muestra signos de agotamiento a la hora de dar respuesta a las nuevas demandas de un tiempo que exhibe su complejidad sin medias tintas. Las herramientas conocidas no parecen resultar suficientes.
El espacio individual ha ido adquiriendo el status de valor supremo en nuestras sociedades, un fenómeno que, por supuesto, tiene su registro construido, algunos mejores, otros peores, pero que, invariablemente, han ido socavando largas tradiciones urbanas comunes, elaboradas trabajosamente por generaciones y generaciones. Hay allí, si se quiere, una ruptura de identidades que en nada contribuye a la evolución concertada de un camino común, muchas veces resistido, aunque inevitable.
La regeneración de espacios de encuentro ya explorados y la investigación de aquellos que la vida contemporánea propone, debiera ser, a nuestro humilde entender, un horizonte profesional. Las obras que se publican intentan ser una aproximación a lo que venimos comentando. Se destacan, a nuestro parecer, por la pertinencia de las soluciones adoptadas frente a tópicos conocidos, sobre los que nadie tiene -ni tendrá- la última palabra, Como en la edición anterior, son obras seleccionadas de los archivos del CAPBA, presentadas en los concursos de obra construida en los últimos años, un camino que intentaremos transitar en continuidad. Entendemos que elaborar un mapeo de la vasta experiencia construida de los arquitectos bonaerense, es una tarea, además de valiosa, inexcusable.
Propietario Colegio de Arquitectos de la Provincia de Buenos Aires
Director Arq. Ramón Rojo
Consejo editor Arqs. Juan Carlos Sánchez y Mario Pérez
Direccion de arte y diseño Estudio RO-K
Producción publicitaria Arq. Máximo Frederic
CAPBA FASCÍCULOS integra la red de medios de comunicación del Colegio de Arquitectos de la Provincia de Buenos Aires Los artículos publicados expresan los puntos de vista de sus autores y no necesariamente representan los de la institución propietaria. Los artículos sin firma son conocidos por el Consejo Editor y su responsabilidad última recae en el Director Responsable. CAPBA FASCÍCULOS autoriza la reproducción total o parcial de los artículos contenidos en la misma con el compromiso de citar la fuente. Envio digital a 15.000 matriculados CAPBA e instituciones nacionales e internacionales.
Si de lotes compartidos y vivienda colectiva se trata, los conventillos decimónicos y los edificios de renta porteños -destinados, obviamente, a distintos usuarios- son los antecedentes de los cinco pequeños conjuntos que se presentan en esta oportunidad. En la segunda mitad del siglo pasado, la inversión inmobiliaria apostaba, en una proporción importante, a los dúplex, viviendas que compartían, a menudo, un lote de 10 metros de ancho, una organización interna sin muchas alternativas y una estética que remitía, frecuentemente, a lo suntuario. Con la llegada del nuevo siglo, las propuestas se fueron enriqueciendo y se agregaron algunos servicios comunes -un espacio de reunión, una piscina-, o alguna otra función no residencial -un local comercial, oficina-. Aparecen, también, los condominios, que en algunos casos se desarrollan en terrenos más amplios y con semejanzas con los barrios cerrados, con viviendas y expansiones más amplias, un acceso controlado y circulaciones comunes más generosas. Los factores económicos y culturales han sido determinantes para el desarrollo de esta tipología residencial: un solo terreno, con sus indicadores urbanísticos llevados al límite, y los deseos de una clase media que resigna la casa propia en un lote particular pero no su vivienda individual. Este último aspecto pone en primer plano la tensión entre lo individual y lo colectivo, problemática que la editorial ha desarrollado particularmente. Los proyectos que se despliegan en las páginas siguientes dan muchas pistas respecto a esta modalidad de ocupación del espacio urbano en acelerado crecimiento, tanto en el conurbano como en ciudades del interior bonaerense, que puede ser determinante en los próximos años. Estos pequeños agrupamientos son bienvenidos en cuanto permiten un aumento de densidad sin sacrificar calidad de vida para sus habitantes. Mayor densidad que es requerida unánimemente por los especialistas para evitar la dispersión suburbana, con la consecuente ocupación de suelos productivos en el periurbano y costos crecientes de infraestructura. Los autores de los proyectos, a través de sus memorias, indican las premisas que consideraron indispensables para diseñar estas viviendas agrupadas y comprender su evolución tipológica. Demos la palabra a los proyectistas.
“El proyecto toma forma a partir de un volumen único que se separa del suelo (…) Cada vivienda tiene su acceso propio desde la calle, peatonal y vehicular, y sus espacios de expansión a frente y contrafrente, lo que da un sentido de vivienda única en el uso, más allá de la forma que las agrupa.” (AEC Arquitectura)
“Se buscó obtener el máximo rendimiento del lote permitido por la ordenanza vigente, que de acuerdo a la densidad posibilitó la incorporación de tres viviendas y un local (…), que cumple actualmente la función de SUM con piscina para el conjunto y para alquiler general.” (Focaccia- Prieto)
“El complejo está formado por ocho unidades de vivienda y remata hacia el frente en un estudio de dos pisos con el mismo apilamiento programático de las viviendas, pero con la diferencia que la expansión está en su segundo piso y hacia el frente.” (Geya- Fernández)
“El encargue deviene de la ecuación inmobiliaria, mercantilista, explotando el Código de Ordenamiento Urbano al máximo. Resulta en cuatro departamentos de alquiler. (…) El costo de la obra fue, increíblemente, un 10% inferior al cálculo en unidades arancelarias de aquel momento (junio 2013): $3.400/m2.” (Lupeik-Melniko-Raymundo)
“La idea del proyecto fue conformar un conjunto en cuanto a la elección de materialidades, volumetrías conectadas entre sí a través de vigas brindando homogeneidad y armonía a la edificación, pero buscando al mismo tiempo el desarrollo individual de cada unidad.” (Alconada Zambosco)
FICHA TECNICA
UBICACION CALLE 480 ESQ. 29 / CITY BELL / PARTIDO DE LA PLATA
SUPERFICIE LOTE 1.345 M2
SUPERFICIE CUBIERTA 459 M2
SEMICUBIERTA 50 M2
FECHA DE FINALIZACION 2019
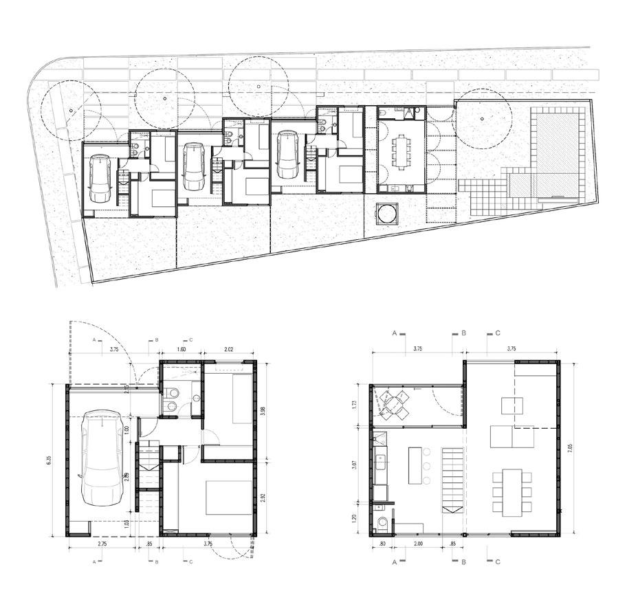
El proyecto se compone de cinco viviendas situadas en un barrio de escala residencial en crecimiento en la localidad de City Bell, partido de La Plata. Se trata de una parcela en esquina frente a un espacio verde con una gran arboleda.
La idea del proyecto fue conformar un conjunto en cuanto a la elección de materialidades, volumetrías conectadas entre sí a través de vigas brindando homogeneidad y armonía a la edificación, pero buscando al mismo tiempo el desarrollo individual de cada unidad.
Las casas trabajan en conjunto, desarrollándose de tal manera que aprovechan la mejor orientación para abrir sus expansiones, que a través de los solados y vigas se van conectando y generando continuidad entre ellas. Dichos espacios son de integración y transición entre las unidades del conjunto pero, a su vez, también de la propia unidad, generando entre el semicubierto y el pergolado un espacio intermedio de conexión
entre el interior y el exterior, que se cierra mediante unos paneles corredizos, brindando seguridad y un espacio más, que se adapta según el uso y necesidad de los habitantes.
Las viviendas desarrollan en planta baja el área social, con la cocina integrada al comedor y el área de estar vinculada a la expansión; en planta alta, se encuentra el área privada con los dormitorios y su respectivo baño.
Cada vivienda se apoya sobre un lateral del terreno, salvo la unidad de la esquina, que aprovechando su situación, genera un remate con una expansión enmarcada por vigas y una pérgola que le brinda un cierre al conjunto.
Respecto a la materialidad en planta baja, predomina el ladrillo a la vista color arena que se corta a través de las vigas en hormigón visto que vinculan todas las unidades, dejando para la planta alta volúmenes blancos con quiebres que permiten un juego de aire y espacialidad de la edificación, sobre el frente y el contrafrente.
En un barrio popular, de trama discontinua, donde todos los actores olvidaron lo colectivo y nadie reclama arquitectura, realizamos este conjunto de viviendas.
El encargue deviene de la ecuación inmobiliaria, mercantilista, explotando el Código de Ordenamiento Urbano al máximo. Resulta en cuatro departamentos de alquiler.
La propuesta puso toda su energía en convertir esos departamentos de alquiler en verdaderas viviendas, tratando de entender al futuro habitante. Pensándolas como primer vivienda o vivienda de retiro. Entendiendo la idiosincrasia del que todavía no puede acceder a una vivienda propia, valorando sus pertenencias y costumbres. Proponiendo expansiones descubiertas y semicubiertas propias de cada vivienda, generando una gradualidad pausada entre el interior, el exterior y la ciudad, pero, asimismo, garantizando la continuidad en su propio espacio.
El condicionante del mínimo recurso en las viviendas, es entendido no solo desde lo material sino también desde la facilidad constructiva y ausencia de mantenimiento. Convirtiéndolo en un lenguaje, generando el contrapunto en el mismo hecho. Un material, un muro que contiene, un tamiz que vincula. Un elemento mediador entre diferentes grados de privacidad, nexo y resguardo.
La concepción general es producto de entender el funciona-
miento de viviendas individuales, que en vez de sumarse una al lado de otra, se multiplican en un conjunto que entiende la ciudad y lo colectivo, valorando la esquina y sus veredas. Poniendo el mismo énfasis en lo urbano como en el interior, aportando calidad de espacio público al barrio, a pesar de la mínima expresión. La resolución espacial para individualizar y a la vez unir surge de las propias condiciones del lote. Una parcela en esquina de 8 x 32 metros permite generar cuatro unidades del mismo tamaño, con proporción de cuadrado perfecto, reforzando la idea de parte y conjunto.
Los espacios sociales de la vivienda están en planta baja. A pesar de la restringida superficie, se intenta recrear las condiciones de espacios típicos del ideario criollo de casa. De esa manera, el quincho, la parrilla, el jardín con las plantas, el garaje, el patio para colgar la ropa, el galpón, el acceso, el estar y la cocina se repiensan en un espacio único, continuo, donde pequeños equipamientos resuelven lo específico y las relaciones en corte insinúan su ubicación. Para poder expandir las funciones públicas de la casa, se trató de utilizar la cantidad mínima de muros, articulando mediante carpinterías en la totalidad del plano, permitiendo flexibilidad. La planta alta contiene las actividades privadas y hace de lleno que cubre y techa el vacío completo de la planta baja social. Este juego es tanto interior como exterior. Donde no ocupa espacio exterior, en planta baja aparece la vegetación o las actividades
específicas al aire libre. Donde cede espacio en el interior, genera dobles alturas que cualifican los espacios de estar.
La mediación de estas viviendas entre sí mismas y con la ciudad es a través de un muro tamiz. La capacidad de resguardar o vincular está dada por la posición del mampuesto, solo con su geometría, simplemente yuxtapuesto en vertical y horizontal. Al ser módulo con la vivienda, y por lo tanto con el conjunto, aporta su condición de honesta austeridad.
El muro tamiz determina siempre espacios exteriores. La condición higroscópica del material, el nulo mantenimiento a recibir y la mano de obra poco especializada así lo requieren. Esto refuerza la idea de tamiz, de filtro. Los espacios que diferencia son parte de la misma transición y lo único que delimita es la pertenencia.
El contacto con la ciudad a través de los huecos, se va alternando según la privacidad requerida en el interior. Esta condición, a su vez, varía en altura, permitiendo insinuaciones pero garantizando el resguardo. El ancho del muro permite percibir la ausencia del límite, el juego de luces y sombras, las vistas a la distancia y la privacidad en la cercanía.
La vereda es reinterpretada del mismo modo que la vivienda, generando un jardín de uso compartido con la ciudad, utilizando un mismo lenguaje, material, vegetación y espíritu que el interior del conjunto.
La naturaleza es una aliada esencial ante la cruda materialidad
FICHA TECNICA UBICACION CALLE 147 ESQ. 8 / BERISSO / PARTIDO DE BERISSO
SUPERFICIE LOTE 252 M2
SUPERFICIE CUBIERTA Y SEMICUBIERTA 280 M2 FECHA FINALIZACION 2015
del conjunto. De esta manera, enredaderas perennes (Ampelosis) que cambian de color, permiten o bloquean el paso del sol según las estaciones; árboles que crecen verticales en los patios de las viviendas de manera etérea, sin afectar la construcción (Betula Alba), otros frondosos, que proveen sombra en las veredas de verano (Fraxinus) y matas de flores (Lavandula), que todo el año perfuman y al mismo tiempo generan distancias; todos ellos fueron pensados durante el proceso de proyecto. La conformación del conjunto entiende la vivienda como unidad. Luego las aparea por servicios a fin de optimizar recursos. Valora la ciudad y su propia ubicación. Posicionándose de manera diferente en la esquina, reconoce la trama discontinua y genera un frente como remate de una pequeña calle. Respondiendo con visuales largas sobre su cara más corta. Apropiándose y compartiendo una vereda convertida en jardín, en su lado largo.
El costo de la obra fue, increíblemente, un 10% inferior al cálculo en unidades arancelarias de aquel momento (junio 2013): $3.400/m2.
Si bien los materiales no son nobles, las terminaciones son mínimas, la zona no es atractiva y las dimensiones son justas, el resultado espacial y el modo de vida son muy agradables. Por este motivo, hubo demanda por habitarlo incluso antes de terminar la obra, y en la misma cuadra se replicó espontáneamente el lenguaje material.
FICHA TECNICA
UBICACION BUCHARDO 1751 / CASTELAR / PARTIDO DE MORON
SUPERFICIE LOTE 792 M2
SUPERFICIE CUBIERTA Y SEMICUBIERTA 221 M2
FECHA DE FINALIZACION 2021
MEMORIA
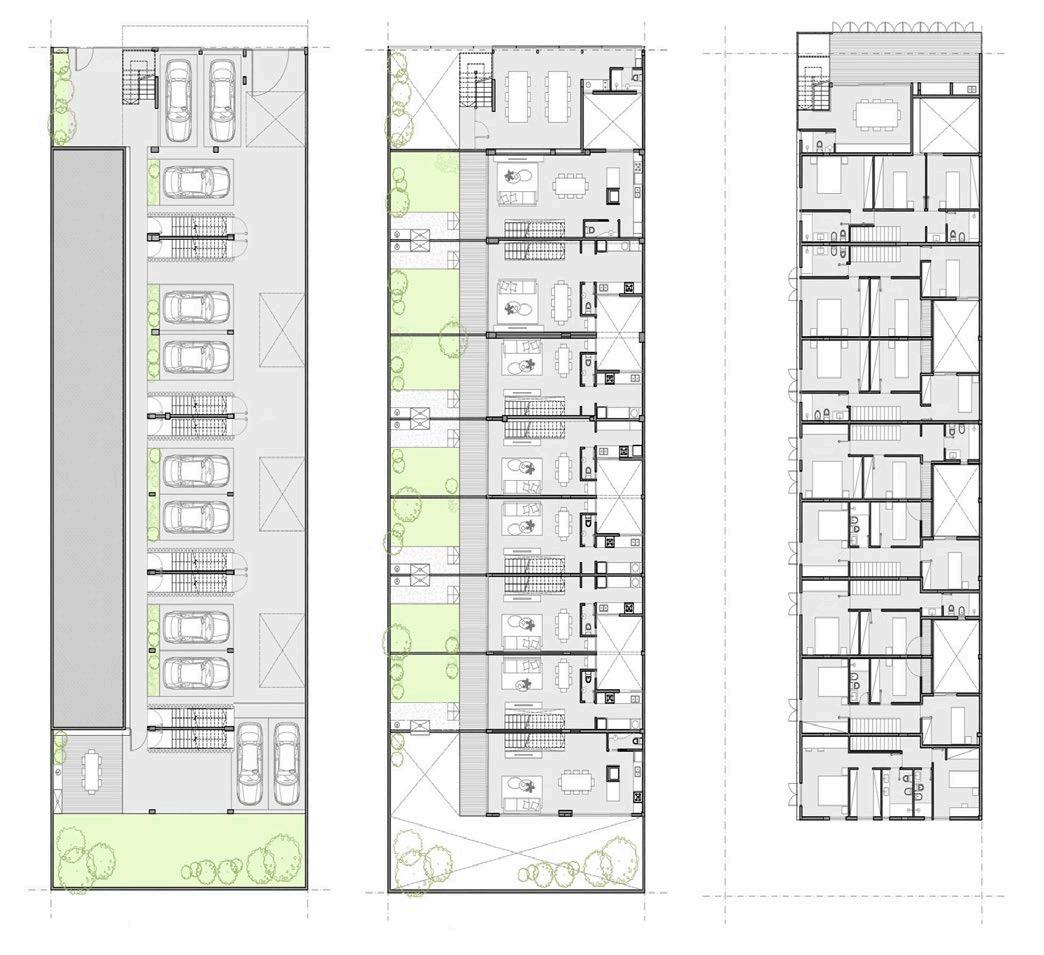
El complejo 8 Casas se encuentra en la localidad de Castelar, partido de Morón, en el oeste del conurbano bonaerense, en una zona donde conviven viviendas unifamiliares con varios clubes y una plaza pública; estos últimos hacen que sea una zona de importante circulación durante el día.
El terreno donde se construyó el edificio tiene 17,36 metros de frente y 45,78 de profundidad, con orientación sudoeste hacia el frente.
La decisión proyectual fue realizar una tira de unidades tipo dúplex, apoyada sobre la alta medianera derecha existente, y abrirse hacia la medianera izquierda buscando el sol del noroeste.
La planta baja funciona como plano de acceso a las unidades, tanto peatonal como vehicular. La circulación peatonal está junto a un largo muro de hormigón que nos lleva a cada una de las cajas de ladrillo, que son los accesos independientes de cada unidad. Junto a ellas se encuentran los espacios de estacionamiento.
Al subir, llegamos al living comedor-cocina, el cual expande hacia un jardín elevado y privado a 2,20 metros del nivel de planta baja, para lograr una comunicación directa con este espacio; en el segundo piso se encuentran las habitaciones y los baños de cada vivienda. Este apilamiento es el gesto del complejo, el hecho de elevar la expansión nos permite que la relación entre el interior y el exterior privado de cada unidad sea directa, que los vehículos queden aislados y que las unidades y patios reciban un mejor asoleamiento por estar por encima de sus vecinos. El complejo está formado por ocho unidades de vivienda y remata hacia el frente en un estudio de dos pisos con el mismo apilamiento programático de las viviendas, pero con la diferencia que la expansión está en su segundo piso y hacia el frente. Las dimensiones del terreno, sus vecinos y orientación condicionaron nuestras decisiones proyectuales; el apilamiento, el juego de texturas y transparencias, conviviendo con la vegetación y el sol, realzan la arquitectura del edificio.
AUTORES ESTUDIO FOCACCIA PRIETO / ARQUITECTA CLARA
FOCACCIA Y ARQUITECTO JUAN MANUEL PRIETO
COLABORADORES ESTUDIO RIPARI (EJECUCION Y PLIEGO DE STEEL FRAME),
INGENIERO GUSTAVO DELLEDONNE (CALCULO ESTRUCTURAL)
INGENIERO AGRONOMO CAROL GALLO (PAISAJISMO)
El proyecto parte de un análisis de inversión en un terreno en Villa Elisa, ubicado en un punto de acceso rápido a la autopista Buenos Aires-La Plata, frente a las vías del ferrocarril Roca. Se buscó obtener el máximo rendimiento del lote permitido por la ordenanza vigente, que de acuerdo a la densidad posibilitó la incorporación de tres viviendas y un local. Operando en un lote alargado, en esquina y de forma trapezoidal, se proyectaron tres unidades idénticas, como volúmenes apareados, que si bien cuentan con patios privados, servicios y accesos independientes, conforman un conjunto urbano continuo. Se aprovechó la irregularidad del lote para desfasar los volúmenes, y mediante esta operación, darle movimiento, independencia y privacidad a cada unidad
FICHA TECNICA
UBICACION CALLE 1 ESQ. 45 /
VILLA ELISA / PARTIDO DE LA PLATA
SUPERFICIE LOTE 558 M2
SUPERFICIE CUBIERTA 260 M2 /
SEMICUBIERTA 79 M2
FECHA DE FINALIZACION 2022
Estos desplazamientos de volúmenes generan pequeñas cesiones de lote a la vía pública, reforzando el vínculo del conjunto con la ciudad. Además, permiten igualar las dimensiones de los patios privados de las tres unidades. A su vez, responden a la normativa vigente en la zona, que estipula que en lotes de esquina, los retiros de frente pueden abarcar al menos el 50% de la longitud de las líneas municipales. El volumen se divide en dos módulos de diferentes alturas y
materialidades, uno más ciego (estares y dormitorios) revestido en chapa ondulada ciega, y otro más permeable (cocheras y terrazas), con un cerramiento móvil de chapa microperforada, que de acuerdo a su utilización, esconden o exhiben patios y terrazas. Esto genera en el conjunto una alternancia entre llenos y vacíos.
La cubierta presenta un juego de desfasajes en forma de tijeras, generando distintas situaciones en las fachadas de frente y contrafrente: en la primera, una imagen dinámica, con diferentes alturas, y en la segunda, una imagen más continua.
Considerando que el lote se encuentra frente a las vías del ferrocarril, y más allá de las mismas se encuentran el barrio Jardín y el campo recreativo Luz y Fuerza, ambos densamente arbolados, se optó por ubicar las salas de estar, cocina y comedor en el primer nivel, con una terraza al frente para sacar provecho de las visuales.
Se accede a cada unidad mediante portones metálicos, vehicularmente a una cochera semicubierta, y peatonalmente, a un espacio semicubierto que antecede a un hall distribuidor con una escalera revestida en madera natural que da acceso a la planta social, culminando en un gran ventanal hacia el patio de fondo. La planta baja consta de dos dormitorios, uno doble y uno simple, y un baño completo. El dormitorio más pequeño, que
da a la calle, puede opcionalmente integrarse al dormitorio principal, constituyendo un vestidor en suite, o lugar de estudio / trabajo. El dormitorio principal expande directamente al patio de fondo, con presencia de verde en toda su extensión (césped, árbol de lagerstroemia, cerco de jazmín trepador). Al retirar el vehículo, el espacio de garaje constituye un área de uso a modo de quincho; a su vez, la apertura completa de los portones de entrada generan un espacio pasante entre el verde de la calle y el verde del patio interior.
La planta social se constituye alrededor de la terraza semicubierta, y se concibe como un espacio único y continuo, con diferentes situaciones espaciales generadas por las pendientes de la cubierta, que oscila entre poco más de dos metros en su punto más bajo y los cuatro metros de altura en el estar (permitiendo la posible incorporación a futuro de un pequeño entrepiso liviano).
La obra se ejecutó en un sistema mixto de construcción tradicional y steel frame. La primera etapa (construcción tradicional) incluyó las fundaciones y el local, que cumple actualmente la función de SUM con piscina para el conjunto y para alquiler general. El mismo fue utilizado como obrador, constituyendo un espacio seguro para resguardar los materiales para la etapa de obra en seco.
AUTORES AEC ARQUITECTURA / ARQUITECTA PAULA AHETS ETCHEBERRY Y ARQUITECTO FRANCISCO CARTASEGNA
FICHA TECNICA
CITY BELL / PARTIDO DE LA PLATA
SUPERFICIE LOTE 720 M2
SUPERFICIE CUBIERTA 469 M2 /
SEMICUBIERTA 211 M2
FECHA DE FINALIZACION 2022
COLABORADORES ARQUITECTO SERGIO ARRUA (ALBAÑILERIA, EJECUCION) E
UBICACION CALLE 461 ESQ. 13C /
INGENIERO SANTIAGO MAIZTEGUI (CALCULO ESTRUCTURAL)
La Plata atraviesa un proceso de constante expansión que supera su mancha original y se extiende a las ciudades que integran el área del Gran La Plata.
Las casas se ubican en City Bell, originalmente un barrio jardín periférico, constituido por viviendas de fin de semana, quintas y estancias, que hoy se ha consolidado como un centro autónomo. La arquitectura debe ser capaz de responder al aumento de densidad en un entorno caracterizado por la presencia del vacío sobre el lleno.
El proyecto toma forma a partir de un volumen único que se separa del suelo. Como resultado, la planta baja libre, mediante espacios exteriores abiertos y semicubiertos, funciona como transición entre la calle, el acceso y el jardín, y remite a las características propias de la vivienda suburbana. Cada vivienda tiene su acceso propio desde la calle, peatonal y vehicular, y sus espacios de expansión a frente y contrafrente, lo que da un sentido de vivienda única en el uso, más allá de la forma que las agrupa. El volumen elevado consigue visuales largas hacia el entorno arbolado mediante grandes paños vidriados que diluyen el límite entre interior y exterior.
Una banda concentra los servicios y circulaciones y libera el porcentaje mayor de la planta. Esta operación otorga flexibilidad a las zonas de uso de la vivienda y explota la relación frente-fondo y ventilación cruzada en los espacios públicos y semipúblicos de la vivienda.
Hacia el noroeste, una doble fachada arma un espacio de expansión que otorga protección climática, tamiza las visuales y genera un diálogo con las construcciones clásicas ladrilleras del entorno.