SURVEYSGlance


![]()










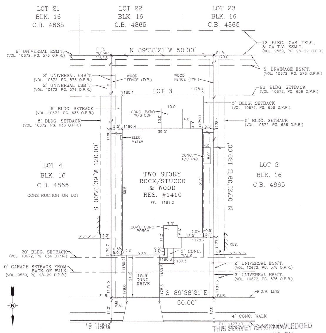
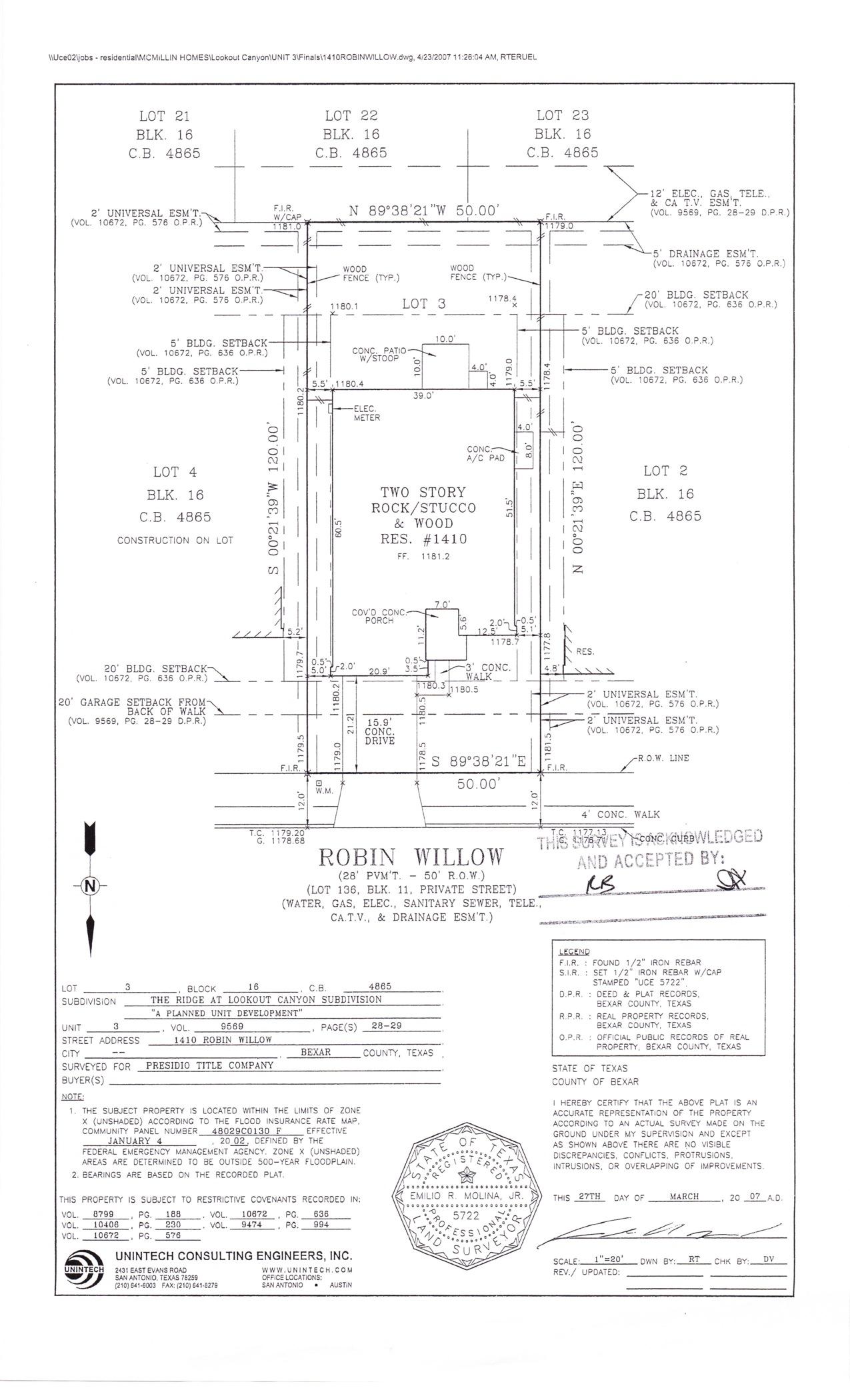
Land Title Survey: a complete study and evaluation of all factors influencing and affecting the location of the boundaries, rights of way, and easements within a subdivision lot or tract of land.
Form or Construction Survey: performed on a construction site to control positions, dimensions and configurations for improvements.




Topographic survey: a survey that measures the elevation of points on a particular piece of land and presents them as contour lines.


An easement is the right of someone other than the owner to use a particular parcel of land for a particular purpose.


















A line that establishes beyond which no building may extend to ensure that its streets will appear uniform.









An encroachment is when another person puts up a structure that intrudes on or over your land or into an easement.




Other Examples:
§ A neighbors builds a shed that is partially on the adjoining property
§ A neighbor has a fence that extends onto the adjoining property.

§ A driveway over a utility easement




Why is a survey needed?


• The contract may call for it.
• The lender requires it.
• To issue survey coverage on the title policy.


The pros and cons of using an existing survey.
• Saves money
• Saves time


• Not a current survey.
• May not include all perinate info to the transition.
• Surveyor’s certification does not transfer.












“Will be amended”, means WILL get the coverage!










C. SURVEY: The survey must be made by a registered professional land surveyor acceptable to the Title Company and Buyer’s lender(s). (Check one box only)
(1) Within ______ days after the Effective Date of this contract, Seller shall furnish to Buyer and Title Company Seller's existing survey of the Property and a Residential Real Property Affidavit or Declaration promulgated by the Texas Department of Insurance (T-47 Affidavit or T-47.1 Declaration). Buyer shall obtain a new survey at Seller's expense no later than 3 days prior to Closing Date if Seller fails to furnish within the time prescribed both the: (i) existing survey; and (ii) affidavit or declaration. If the Title Company or Buyer’s lender does not accept the existing survey, or the affidavit or declaration, Buyer shall obtain a new survey at q Seller's q Buyer's expense no later than 3 days prior to Closing Date.
(2) Within _____days after the Effective Date of this contract, Buyer may obtain a new survey at Buyer's expense. Buyer is deemed to receive the survey on the date of actual receipt or the date specified in this paragraph, whichever is earlier. If Buyer fails to obtain the survey, Buyer may not terminate the contract under Paragraph 2B of the Third Party Financing Addendum because the survey was not obtained.
(3) Within _____ days after the Effective Date of this contract, Seller, at Seller's expense shall furnish a new survey to Buyer.

• The purpose of the affidavit or declaration is to affirm the existing survey, so sellers should use the date of the most recent survey, which may be a survey ordered by them or by a previous owner of the home.
• Sellers should be aware that any date other than the date of the last survey will likely prompt the title company to request a new survey.
• It is ultimately up to the sellers what date they choose to use. At the bottom of Paragraph 4, the seller may list changes to the property that have occurred since that date or put “None” if there have been no changes.





• The T-47 must be notarized and executed by all the SELLERS within the number of days entered on the contract.
• Without the T-47 sworn affidavit or the declaration, the Buyer can obtain a new survey at the Seller’s expense!






To protect your seller’s privacy, hide their DOB and address when uploading the survey and T-47.1 to the MLS.


The T- 47.1 Declaration
• The T-47.1 is a “statutory declaration” as opposed to an affidavit.
• The new form can be signed via digital signature without a notary’s acknowledgment.
• Sellers must include their date of birth and address on the new T-47.
• If they choose NOT to provide this info, they must complete the T-47 Affidavit and sign before a notary.



























In addition to the checklist:
• Make sure the survey is legible.
• Make sure you have the entire survey!





1. North Arrow & Legend









2. Find the points.


3. Identify the property lines.

4. Is anything outside the property line?
5.



Thank you for attending!
• Allow 5-7 business days for CE Reporting to TREC.
• We hope to see you at one of our closing tables soon!



© 2025 Independence Title – Education Team. All rights reserved. No part of this ebook may be reproduced or distributed without written permission, except for brief quotations permitted by law. This material is for educational purposes only, and Independence Title is not liable for any errors or outcomes resulting from its use.