
Schitterend wonen op het water

![]()

Schitterend wonen op het water

Wonen in ’t Blauw? Dat is leven met het ritme van het water, op een plek waar natuur, architectuur en rust samenkomen. Je komt straks thuis in een drijvende watervilla aan de Oosterhoutse Plas.
Biobased gebouwd, natuurinclusief ontworpen en met weidse uitzichten naar alle kanten. In deze brochure ontdek je het plan, de woningen, de locatie en alles wat wonen in ’t Blauw zo bijzonder maakt. Blader rustig verder, laat je inspireren en wie weet wordt jouw woondroom werkelijkheid, aan het water, omringd door groen.

Dicht bij de stad, midden in het groen
Locatiekaart
Op ontdekkingstocht om de hoek
Plan
Een landschap om in te wonen
Gebouwd voor de toekomst
Beleving op het water
Bijzondere plekken in ‘t Blauw
Interview met Gerard
Woningen
– Bureau Stromin
Drijvend wonen, helemaal jouw stijl
In gesprek met Daan Bruggink – ORGA Architect
Type A - Bnrs. 02, 10, 11, 15, 16, 21 en 26
Type B - Bnrs. 04, 06, 12, 17, 19, 22, 27 en 29
Type C - Bnrs. 01, 03, 08, 09, 13, 18, 23, 24 en 28
Type D - Bnrs. 05, 07, 14, 20, 25 en 30
Persoonlijke begeleiding door Middelkoop
Kokkerellen, badderen en genieten op jouw manier
Jouw eigen plek aan het water
Vereniging van eigenaren
Stap voor stap naar je nieuwe thuis in ‘t Blauw
Wonen op het water in ‘t Blauw met Hans Janssen Makelaars
Wonen in ‘t Blauw met de zekerheid van Hans Janssen Hypotheken
Voordelen van nieuwbouw
Colofon




Aan de rand van het oude dorp Oosterhout, in het groene en steeds levendiger Nijmegen-Noord, ligt een plek die voelt als een ontdekking. Hier, aan de Oosterhoutse Plas, ontstaat een kleinschalig woonlandschap dat rust en ruimte ademt.
Je woont tussen bomen en op het water, met het Vlinderbos op loopafstand en de stad op een kwartier fietsen. Een fijne balans tussen natuur en stad, tussen verstilling en verbinding. ’t Blauw biedt je de ruimte om te leven op jouw manier, midden in het groen maar nooit ver weg van alles wat je nodig hebt.
Een landschap om in te leven
Het heldere water van de plas, het Vlinderbos naast de deur, de glooiende oevers en rietkragen: je woont hier echt in het landschap. Vanuit je woning wandel of fiets je zó de natuur in. De seizoenen kleuren je uitzicht, de vogels en libellen zijn je buren.
Goed bereikbaar in alle richtingen
Met de fiets ben je in een paar minuten bij station Lent of op de snelfietsroute richting centrum of Arnhem. De uitvalswegen A15 en A325 zijn snel bereikbaar. Je woont rustig, maar hoeft nooit ver te reizen. Ook parkeren doe je dichtbij huis, op parkeerplekken aan de rand van de wijk.
Alles binnen handbereik
Voor de dagelijkse boodschappen fiets je in vijf minuten naar het Hart van de Waalsprong met onder andere een Albert Heijn, HEMA en diverse speciaalzaken. Ook scholen, kinderopvang, sportverenigingen en horecagelegenheden liggen in de buurt. Alles wat je nodig hebt is dichtbij, zonder dat je het hoort of ziet.

WINKELCENTRUM DE WAALSPRONG





Wonen in ’t Blauw betekent niet alleen rust aan het water, maar ook levendigheid om de hoek. Ontdek sfeervolle horeca, cultuur, bijzondere winkels en sportieve uitjes, allemaal op fietsafstand. Dit zijn vier plekken die jouw leven in ‘t Blauw nóg leuker maken.
BRASS. Nijmegen – Restaurant aan het water
Ga je naar BRASS. Nijmegen, dan proef je de sfeer van water én natuur. Gelegen aan het water met een betoverend terras, kun je hier de hele dag terecht. Van ontbijt tot cocktail bij zonsondergang: échte gastvrijheid in een moderne setting.
SUP & SURF Nijmegen – Sport op het water
Voor een frisse, actieve middag stap je bij SUP & SURF Nijmegen zo het water op. Of je nu wilt suppen, een les volgt of SUP-yoga probeert: het is dé plek voor sportieve watersport.
Het Kasje van Doornik – Natuurbeleving in de buurt
Even buiten de bebouwing van Lent vind je ‘Het Kasje van Doornik’, een natuurtuin en belevingsplek met biologische moestuinen, theehuis en rondleidingen op landgoed Doornik. Een rustpunt waar je even helemaal kunt opladen.
Vivre Interieur Authentique – Bijzondere winkel
Vivre is een vintage interieurwinkel in Nijmegen Noord. Hier ontdek je unieke antieke, industriële en brocante meubelen en decoratie, zorgvuldig geselecteerd en met liefde gerestaureerd.


’t Blauw is geen gewone nieuwbouwwijk. Het is een kleinschalig woonlandschap op het water, met een eigen ritme en een heel eigen sfeer. Dertig drijvende watervilla’s vormen samen zes waterhoven: kleine buurtschappen aan een steiger, midden in het landschap.
Je woont letterlijk op de grens van land en water, in een woning die met zorg is ontworpen en gebouwd voor de toekomst. Met uitzicht naar alle kanten, rust om je heen en ruimte om te leven zoals jij dat wilt. Ontdek het plan, de opzet en het idee achter deze unieke plek aan de Oosterhoutse Plas.
Alternatieve indeling woningen per steigers Keuze van kopers
Woningtype als getekend
Woningtype gespiegeld
Balkon 1 standaard opgenomen
Voorstel indeling woningen per steigers
Alternatief mogelijk - keuze kopers
Balkon 2 standaard opgenomen
Alternatieve indeling woningen per steigers Keuze van kopers
Woningtype als getekend
Woningtype gespiegeld
Balkon 1 standaard opgenomen Balkon 2 standaard opgenomen
’t Blauw is ontworpen vanuit het landschap. De ligging aan de Oosterhoutse Plas is geen decor, maar de basis van het plan. De waterhoven liggen als losse kamers in het groen, met zichtlijnen over het water, het bos en de lucht. Er is veel ruimte tussen de hoven en altijd zicht op natuur.
Natuurinclusief en klimaatbestendig
Bij het ontwerp is gekozen voor een natuurinclusieve aanpak. De oevers worden ingericht met riet, spontane oeverontwikkeling en bloemrijk gras. Dat vergroot de biodiversiteit en zorgt voor een gezonde leefomgeving.
Ook het watersysteem is in balans, met ruimte voor waterberging en natuurlijke afwatering. Zo draagt het plan bij aan een klimaatbestendige stad.
Een plan met uitzicht en ruimte
Op deze vogelvlucht zie je in één oogopslag de opzet van ’t Blauw: zes waterhoven aan de Oosterhoutse
Plas, ruim verspreid in het landschap en verbonden door een slingerend pad. Je ziet hoe groen, water en wonen samenkomen in een plan dat ademt, leeft en je alle ruimte geeft.


De watervilla’s in ’t Blauw worden gebouwd met respect voor mens, natuur en klimaat. Biobased bouwen is daarbij het uitgangspunt: hout vormt de basis van de opbouw, aangevuld met hernieuwbare en circulaire materialen die licht zijn voor het milieu én gezond om in te wonen.

Jouw watervilla
De woningen zijn gasloos, energieneutraal en slim ontworpen. Zonnepanelen, uitstekende isolatie, water/ water combi-warmtepomp en een doordacht ventilatiesysteem zorgen voor een comfortabel binnenklimaat met een minimale energievraag. En dat merk je niet alleen in je portemonnee, maar vooral in je dagelijks wooncomfort.
Ook buiten zie je duurzaamheid terug. De natuurlijke oevers zijn goed voor de biodiversiteit en werken mee aan verkoeling en waterberging. De opzet van het plan zorgt voor minimale verharding en maximale ruimte voor groen. Zo woon je straks in een woning die klaar is voor morgen: schoon, stil, slim en verbonden met de natuur om je heen.

In ’t Blauw woon je niet naast het water, maar erop. En dat voel je. Het licht beweegt mee met de dag, de lucht is ruimer, het uitzicht verandert elk seizoen. Je eigen terras of steiger ligt letterlijk op het water. Wat een heerlijke plek om te ontspannen, te eten, te genieten.
Kom los van de stad Binnen is het licht en stil. Geen verkeer, geen drukte. Alleen het zachte geluid van het riet in de wind of het klotsen tegen de gevel. De woningen zijn stevig verankerd, maar voelen licht en vrij. Een plek die loskomt van de stad, zonder afstand te nemen van alles wat belangrijk is.

Afgebeeld is een exterieurimpressie van waterhof 1 (rechts), waterhof 2 (midden) en waterhof 3 (links).
Anders wonen
Wonen in ’t Blauw is wonen met de natuur als ritmegever. Je leeft in het moment, in balans met je omgeving. Of je nu thuiswerkt, logés ontvangt of gewoon tot rust komt; hier woon je ruim, ontspannen en écht anders dan anders.


Kleinschalig, sociaal en stil tegelijk
’t Blauw is overzichtelijk en kleinschalig opgezet. Dertig woningen, verdeeld over zes waterhoven, elk met vijf woningen aan een gedeelde steiger. Geen straten, geen drukte. Alleen lucht, groen en water. De steiger vormt het hart van het hof: een veilige plek waar je elkaar tegenkomt, een praatje maakt of samen de zon onder ziet gaan.
Die verbondenheid gaat hand in hand met rust en privacy. De woningen liggen ruim uit elkaar en hebben allemaal zicht naar buiten: over de plas, het riet of het landschap. Zo voel je je vrij, maar nooit alleen. Je omgeving is constant in beweging, terwijl jij geniet van alle rust.
De opzet maakt het mogelijk om op een vanzelfsprekende manier samen te wonen. Je groet elkaar, deelt soms wat, maar hebt ook altijd de ruimte om je terug te trekken. Of neem plaats op een van de zitelementen in de watertuin en geniet van het fantastische uitzicht terwijl je een boek leest in de zon of schaduw. Een hofje dus, maar dan met horizon. Ideaal voor iedereen die houdt van rust én van een klein beetje reuring.




Het Vlinderbos
Aan de rand van het plan ligt het Vlinderbos: een groen zoomgebied vol bloemrijk grasland, inheemse struiken en nectarrijke planten die vlinders, bijen en vogels aantrekken. Tussen de fladderende kleuren wandel je over een rustig pad dat uitkomt bij het water, langs kleine uitkijkpunten en natuurlijke speelaanleidingen. Een kleine oase voor de natuur en voor wie even stil wil zijn.
De entree van ’t Blauw
Bij aankomst in ’t Blauw voel je meteen dat je een andere wereld binnenstapt. Een fietsstraat waar auto’s aan het zicht zijn onttrokken in parkeerlussen, een informele entree met groen, riet en zicht op het water. Het pad slingert langs het landschap en leidt je naar de waterhoven. Alles ademt hier ruimte, rust en aandacht bij elke stap die je zet.
Het slingerpad langs de oever
Een halfverhard wandelpad slingert tussen de hoven door en volgt de contouren van het landschap. Soms duikt het even het groen in, dan weer opent het zicht naar de Oosterhoutse Plas. Je wandelt langs rietkragen, plas-draszones en het water, altijd in contact met de natuur. Een ideale plek voor een ochtendronde of een avondwandeling.
Het uitzichtplateau aan het water
Op een rustige plek langs de rand van de plas komt het wandelpad uit op een klein uitzichtplateau. Hier sta je even stil, met het water aan je voeten en het weidse uitzicht voor je. Een bankje, wat ruisend riet, misschien een reiger in de verte. Een plek om te ademen, te mijmeren of gewoon te zijn.
De steigers als ontmoetingsplek
Elk waterhof is een gezamenlijke steiger die niet alleen praktisch is, maar ook verbindt. Hier groet je je buren, kijk je naar de zonsondergang of drink je samen koffie met zicht op het water. Het voelt intiem en open tegelijk en vormt zo een sociale plek zonder verplichtingen, waar contact vanzelf ontstaat.
Ondergedoken eiland met rivierhout
De grond uit de waterzone wordt uitgegraven en gebruikt om het talud te verzachten en voor een zandplaat in de ondiepe zone. In de zomer kan deze nagenoeg droog vallen zodat je er kunt waden of snorkelen. We verankeren een aantal volwassen bomen en takken waarmee het onderwaterleven wordt verrijkt. De stammen en takken steken boven het water uit wat een iconisch beeld oplevert.


Interview met Gerard Litjens – Bureau Stroming
De Oosterhoutse Plas verandert van een stille zandwinplek in een levendig woonlandschap op het water.
Landschapsontwerpbureau Stroming tekende voor het plan en zette daarbij de natuur op één. Projectleider Gerard Litjens vertelt hoe ze vanaf tien meter onder de waterspiegel begonnen met denken en ontwerpen. Niet alleen voor de bewoners van ’t Blauw, maar voor iedereen die het gebied straks bezoekt en beleeft.
De natuur begint onder water
“Ons team werkt al meer dan dertig jaar aan landschappen langs de rivieren. Vaak in uiterwaarden waar we nieuwe natuur maken. Wat we leerden in die tijd, passen we nu toe op deze plek in het binnendijkse landschap. De Oosterhoutse Plas is ontstaan door industriële zandwinning, maar is een plek vol potentie.
Laat je de natuur haar gang gaan, dan ontstaat er vanzelf iets bijzonders. Daarom begon ons ontwerp letterlijk diep onder de waterspiegel.
Daar start het leven: met waterplanten, insecten, vissen zoals bittervoorn, baars en snoek.
Je woont straks op een glashelder meer, met een oerwoud onder water.”
Rijke habitat voor mens en dier
“De bewoners van ’t Blauw krijgen een plek waar flora en fauna zich volop kunnen ontwikkelen. Denk aan wilgen en elzen, riet- en moerasplanten en vogels als de fuut en ijsvogel.
We ontwerpen ruimte voor natuur die zichzelf mag zijn maar ook beleefbaar is voor mensen uit de buurt die er willen wandelen, fietsen of even stil staan. Zo ontstaat een landschap dat leeft én deelt. Een plek die niet alleen mooi is om er te wonen, maar ook fijn is om op adem te komen en buiten te zijn.”
Een gebied voor iedereen
“Bij de uitwerking van het ontwerp hebben we goed geluisterd naar het hele planteam, de gemeente en de mensen uit de buurt. Er komt een slingerend wandelpad langs de oever,
met een natuurlijke begroeiing van wilgen, ruigtes en bloemrijk grasland. Tussen de weg en het fietspad leggen we een gevarieerd bos aan met vele soorten en overgangen naar bloemrijke ruigten en bermen. Kleine zoogdieren, vlinders en vleermuizen vinden er straks hun plek. En op verzoek van omwonenden maken we twee heuvels met uitzicht en met landschapskunst. Zo wordt dit gebied een bestemming voor iedereen, of je er nu woont of alleen langskomt.”
Samen ontwerpen aan beleving
“De waterhoven zijn ontworpen door de architect. Wij hebben daar het landschap omheen ontworpen, met oog voor biodiversiteit, samenhang met het landschap in de Betuwe en rustige plekken voor bewoners en wandelaars. Alles draagt bij aan beleving: het wandelpad bijvoorbeeld, de begroeiing langs de oevers, het toegankelijke bos en de heuvels, maar zeker ook de zandbank met dode bomen in het water. Dat wordt straks een visueel hoogtepunt. We stellen ons voor dat je hier loopt of woont en denkt: wat is dit een bijzondere plek! En ja, de lat ligt hoog. Maar daar houden we van.”

Gerard Litjens www.stroming.nl


Vanaf je privésteiger kijk je uit over de Oosterhoutse Plas, waarin het blauw van de lucht wordt weerkaatst en je tegemoet schittert. Jouw drijvende watervilla kabbelt op het ritme van de wind, terwijl je één wordt met het water, het licht en de natuur om je heen. Riet ruist zachtjes, vogels zweven over en de dag ontvouwt zich in stilte.
Hier leef je met de seizoenen, voel je de ruimte en ervaar je hoe bijzonder het is om zó te wonen. Dit is geen vakantiedag, dit is gewoon je thuis. Zomaar een dag in ’t Blauw.


Je woning ligt fraai aangemeerd aan een drijvend waterhof.
Vanaf je privé steiger ontvouwt zich een geweldig landschap.
De woningen in ’t Blauw zijn meer dan bijzonder door hun ligging op het water. Ze zijn ook slim ontworpen, flexibel in te delen en modern vormgegeven. De architectuur is eigentijds en natuurlijk tegelijk: veel hout, grote raampartijen, royale buitenruimtes en een sterke verbinding tussen binnen en buiten. Je woont letterlijk in het landschap, met uitzicht op water, lucht en riet. Dat maakt elke dag anders, elke dag bijzonder.
Verrassend veelzijdig
Er zijn vier woningtypes, elk met een eigen indeling en uitstraling. Of je nu kiest voor een gelijkvloerse woning, een split-level met vide of een gezinswoning met meerdere verdiepingen: er is altijd een type dat bij jouw manier van leven past. Elk woningtype is bovendien gespiegeld beschikbaar. Je kiest dus niet alleen de plek, maar ook de oriëntatie die het beste past bij het licht, het uitzicht en je wensen. Ook zijn op enkele plaatsen de woningtypes uitwisselbaar en bieden zo nog meer mogelijkheden en flexibiliteit. Dat maakt het wonen in ’t Blauw verrassend veelzijdig.
Volop opties
Daar komt nog iets bij: je kunt je woning op verschillende manieren aanpassen aan jouw wensen. Denk aan een eigen lift, extra werk- of logeerkamer, zitkuil aan het water of meerdere balkons. Ook qua buitenruimte zijn er mogelijkheden: zo kan het terras voorzien worden van een windscherm en balustrade. Zo maak je van jouw watervilla een plek die niet alleen uniek is in ontwerp en ligging, maar ook in hoe jij er woont. Persoonlijk, comfortabel en helemaal in harmonie met de plek.

Afgebeeld is een exterieurimpressie van waterhof 1 (rechts), waterhof 2 (midden) en waterhof 3 (links). De kleurstellingen van de diverse woningtypes verschillen per waterhof.

In gesprek met Daan Bruggink – ORGA Architect
’t Blauw is een uniek project in Nederland. Dertig drijvende woningen op een zandwinplas, midden in een landschap dat volop ruimte biedt aan natuur. Voor architect Daan Bruggink van ORGA en zijn team is het een droomopdracht: ontwerpen voor mensen die willen wonen met het ritme van het water én met oog voor ecologie en gezondheid.
Een thuiswedstrijd voor ORGA
“We zijn een ecologisch architectenbureau dat volledig biobased werkt,” vertelt Daan Bruggink. “Dus bouwen met natuurlijke materialen, zoals hout, vlas en hennep. Vanuit onze thuisstad Nijmegen ontwerpen we al meer dan twintig jaar gebouwen waarin mens en natuur samenkomen. Toen dit project langskwam, op zo’n bijzondere plek ‘om de hoek’, letterlijk in de natuur, hoefden we niet lang na te denken. Dit is waarom we ORGA zijn begonnen.”
Waterwoningen met karakter
De architectuur van ’t Blauw is volgens Bruggink vooral ingetogen. “Hier geen witte dozen, maar lichte houten woningen die passen bij de plek. We hebben bewust gezocht naar een vormentaal die past bij wonen op het water. Niet alsof de huizen net zo goed in een bos hadden kunnen staan, maar echt ontworpen voor deze unieke setting. Het ontwerp is in de loop van het proces steeds verder verfijnd, in samenwerking met de gemeente, de landschapsarchitecten van Bureau Stroming en de ontwikkelaar. Zo werd het nóg beter.”
Samen wonen, samen beleven
Wat ’t Blauw bijzonder maakt volgens
Bruggink, is niet alleen de ligging, maar ook de opzet van het plan. “We hebben zes woonhoven gemaakt, met steeds vijf woningen rond een gedeelde steiger. Je woont in alle rust, maar wel met een paar fijne buren in de buurt. Dat stimuleert contact, maar biedt ook volop privacy. Het idee van een hofje, maar dan op het water, geeft iets kleinschaligs, intiems. Alsof je samen iets bijzonders deelt.”
Biobased én gezond
Daan Bruggink is uitgesproken over de voordelen van biobased bouwen. “Je gebruikt materialen die hernieuwbaar zijn, CO2 opslaan en gezond zijn voor mensen. Dat klinkt technisch, maar het betekent simpelweg gezonder wonen. Hout en natuurlijke isolatiematerialen zorgen voor een prettig binnenklimaat. En nog
belangrijker: je voelt je er beter bij. Mensen zijn natuurwezens. We floreren als we omringd zijn door natuurlijke materialen en vormen.”
Geen concessies aan kwaliteit
Voor ORGA was het extra bijzonder dat de opdrachtgever in dit project geen concessies wilde doen aan kwaliteit. “Dat zie je niet vaak in Nederland. Hier mochten we echt all the way gaan. De woningen zijn niet alleen duurzaam in materiaal, maar ook ontworpen met oog voor beleving: zichtlijnen, lichtinval, verbinding met het landschap. We wilden dat je vanuit elke woning voelt waar je bent. Aan het water, in het groen, in alle rust.”
Voor wie kiest met hart én hoofd
Volgens Bruggink is ’t Blauw er voor mensen die bewust kiezen. “Voor wie het belangrijk vindt om te wonen in balans met de natuur. Die oog heeft voor schoonheid, duurzaamheid en comfort. En die waarde hecht aan rust, ruimte en verbinding met het landschap én met elkaar. Het zijn woningen voor mensen die weten wat ze willen, en daar vol overtuiging voor gaan.”

Daan Bruggink
www.orga-architect.nl


Licht, lucht en een speels niveauverschil
Standaard toegepast op bouwnummers: 02, 10, 11, 15, 16, 21 en 26
Optioneel toepasbaar op bouwnummers: 01, 17, 22 en 30
Dit type heeft een split level indeling met vide, wat zorgt voor hoogte, licht en karakter. Je woning heeft een podiumtrap en je kunt kiezen voor een extra werkplek, een balkon aan het water of het samenvoegen van slaapkamers.
Buiten wacht je privésteiger of terras: een plek voor koffie in de ochtendzon of je voeten in het water.
Specificaties:
• Woonoppervlakte: 155 m2
• Aantal slaapkamers: 3
• Aantal badkamer(s): 1
• Terrasoppervlakte: ca. 25 m2
• Parkeerplaats: 1
• Bouwnummers 10, 15, 21 en optioneel 30 beschikken over een balkon van 2,5 m2
Extra’s:
• Optie grote slaapkamer
• Optie (extra) balkon van 2,5 m2

Energie:
✓ Verwarming en koeling
✓ Warmtepomp
✓ Zonnepanelen
✓ Gasloos







Praktisch ingedeeld met volop ruimte
Standaard toegepast op bouwnummers: 04, 06, 12, 17, 19, 22, 27 en 29
Optioneel toepasbaar op bouwnummers: 02 en 07
Type B is ruim en veelzijdig: met vier slaapkamers, een podiumtrap, een entresol én optionele indelingsvarianten. Denk aan een extra werkkamer, een lift, het samenvoegen van slaapkamers, Franse balkons of een balkon aan het water.
Via je privésteiger of terras stap je zo in je kajak of geniet je van het uitzicht terwijl de kinderen op ontdekkingstocht gaan.
Specificaties:
• Woonoppervlakte: 179 m2
• Aantal slaapkamers: 4
• Aantal badkamer(s): 1
• Terrasoppervlakte: ca. 25 m2
• Parkeerplaats: 1
Extra’s:
• Optie werk/speelkamer
• Optie (extra) balkon van 2,5 m2
• Optie grote slaapkamer
• Optie lift
Energie:
✓ Verwarming en koeling
✓ Warmtepomp
✓ Zonnepanelen
✓ Gasloos








Levensloopbestendig én royaal
Standaard toegepast op bouwnummers: 01, 03, 08, 09, 13, 18, 23, 24 en 28
Optioneel toepasbaar op bouwnummers: 06, 14 en 20
Wonen met het oog op de toekomst: Type C combineert gelijkvloers gemak met ruimte boven voor je kinderen, logees, werk of hobby. Je kunt kiezen voor een vide, lift, extra werkruimte, een zitkuil en een breed balkon aan de terraszijde.
Buiten leef je op je eigen terras of privésteiger, met het kabbelende water als dagelijks decor en rustpunt.
Specificaties:
• Woonoppervlakte: 204 m2
• Aantal slaapkamers: 5
• Aantal badkamer(s): 2
• Terrasoppervlakte: ca. 25 m2
• Parkeerplaats: 1
Extra’s:
• Extra badkamer
• Optie werk/speelkamer
• Optie (extra) balkon van 9 m2 op verdieping
• Optie vide
• Optie lift
• Optie vloerverlaging keuken

Energie:
✓ Verwarming en koeling
✓ Warmtepomp
✓ Zonnepanelen
✓ Gasloos







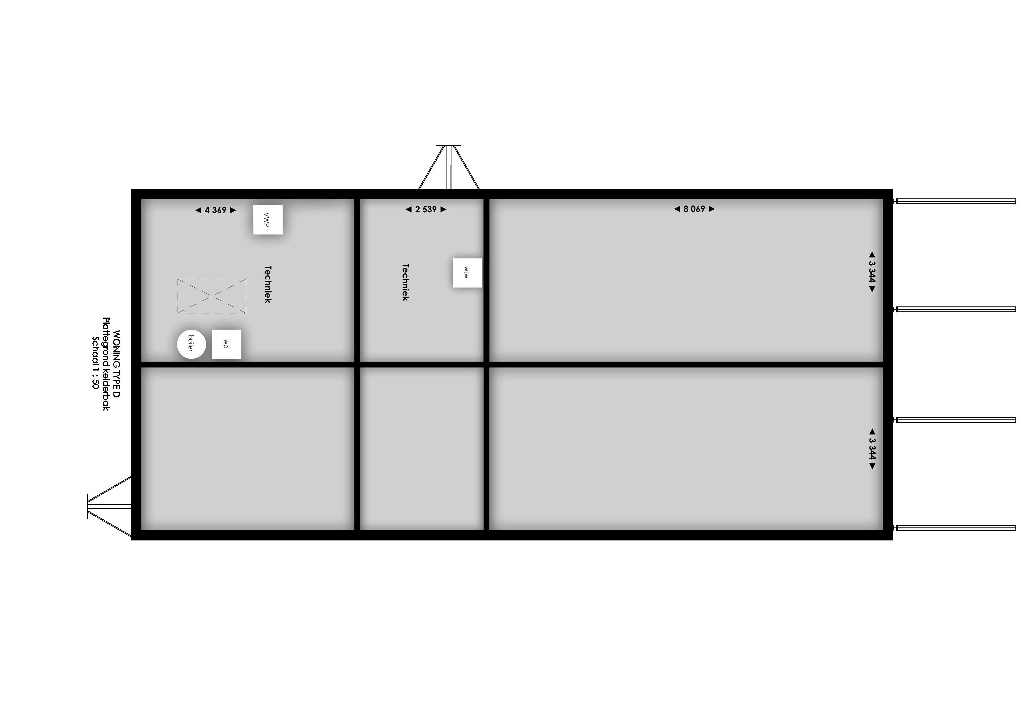
Levensloopbestendig, compact en verrassend
Standaard toegepast op bouwnummers: 05, 07, 14, 20, 25 en 30
Optioneel toepasbaar op bouwnummers: 04, 09, 12, 18, 23 en 27
In Type D woon je verrassend ruim dankzij de vide, slimme indeling en grote raampartijen. De woning is ontworpen met oog voor de toekomst: comfortabel gelijkvloers wonen met de mogelijkheid om ruimtes flexibel in te delen. Denk aan het samenvoegen van slaapkamers, het toevoegen van een werkhoek of het realiseren van een balkon met prachtig uitzicht over het water.
Met je eigen steiger of terras heb je altijd een plek om te ontspannen, te dromen of het water op te gaan. Zo blijft deze woning niet alleen vandaag, maar ook morgen en later een plek om fijn te wonen.
Specificaties:
• Woonoppervlakte: 177 m2
• Aantal slaapkamers: 4
• Aantal badkamer(s): 2
• Terrasoppervlakte: ca. 25 m2
• Parkeerplaats: 1
• Bouwnummers 20 en 30 beschikken over een balkon van 2,5 m2
Extra’s:
• Optie speelkamer
• Optie (extra) balkon van 2,5 m2
• Optie vide
Energie:
✓ Verwarming en koeling
✓ Warmtepomp
✓ Zonnepanelen
✓ Gasloos







In ’t Blauw krijg je volop vrijheid om jouw woning aan te passen aan jouw woonwensen. Of het nu gaat om indelingsopties, een extra werkruimte, een eigen zitkuil of een lift: er is veel mogelijk. Ook voor de afwerking en inrichting is er ruimte voor jouw smaak en stijl.
Inspirerende showroom
Na aankoop van de woning neemt Bouwbedrijf Van Middendorp contact met je op voor een eerste gesprek. Tijdens dit gesprek bespreek je de standaard-
opties en eventuele persoonlijke wensen. Daarna volgt een afspraak bij Middelkoop in Culemborg, waar je samen met specialisten jouw keuken, sanitair en tegelwerk vormgeeft.
Extra opties en keuzes
In een vervolgtraject komen ook zaken als binnendeuren, trappen, afbouw en installaties aan bod. Je krijgt een uitgebreide lijst met persoonlijke koperskeuzes, terwijl je gedurende het hele proces één vast aanspreekpunt hebt. We houden je op de hoogte van

de bouwvorderingen middels onze eigen app. Wel zo helder en makkelijk.
Maatwerk, comfort, kwaliteit
We geven je graag alle ruimte om van jouw watervilla écht jouw thuis te maken. Uiteraard binnen de mogelijkheden van drijvend wonen, maar altijd met maximale aandacht voor maatwerk, comfort en kwaliteit. Hopelijk tot spoedig ziens in de showroom.


‘Kokkerellen, badderen en genieten op jouw manier!’
In ’t Blauw woon je niet alleen op een unieke plek, maar ook in een woning die tot in detail bij je past. Of je nu houdt van strak en modern of juist warm en natuurlijk: in de showroom van Middelkoop in Culemborg kies je een keuken en badkamer die helemaal bij jouw woonstijl aansluiten. Comfort, kwaliteit en uitstraling staan daarbij centraal.
Kies je keuken
Voor de keuken is een stelpost van € 10.000 inclusief btw opgenomen. Binnen dit budget is een compleet voorstel uitgewerkt dat past bij de sfeer van ’t Blauw. Tijdens je afspraak bij Middelkoop kies je materialen, kleuren en opstelling. Liever een kookeiland, extra kastruimte of luxe apparatuur? Ook dat is mogelijk. De keukens zijn stijlvol, duurzaam en slim ontworpen.
Schitterend sanitair
Ook het sanitair is met zorg samengesteld. De bad-kamers zijn standaard voorzien van een moderne douchehoek, wastafelmeubel en keramische wand- en vloertegels. In het toilet vind je een vrijhangend wandcloset met fontein. Uiteraard kun je naar wens uitbreiden of aanpassen. De adviseurs van Middelkoop denken graag met je mee voor een badkamer die niet alleen functioneel is, maar ook voelt als jouw eigen wellnessruimte.



Wanneer je een woning koopt in ‘t Blauw wordt deze woning met de grond eronder volledig jouw eigendom, een plek die echt van jouw is.
Het sfeervolle waterhof vormt samen met de andere bewoners een gedeeld eigendom: een bijzondere, groene ontmoetingsplek die bijdraagt aan het gevoel van samen wonen.
De parkeerplaats behoort tot jouw eigendom, maar het beheer wordt verzorgd via de Vereniging van Eigenaren (VvE) – wel zo praktisch.
Voor enkele voorzieningen, zoals de meterkasten, watermeterput, het vuilinzamelpunt en de kabels en leidingen, blijft de grond eigendom van de gemeente. Hiervoor wordt een opstalrecht gevestigd, zodat alles netjes geregeld is.


Per waterhof, bestaande uit vijf woningen, wordt er een Vereniging van Eigenaren (VvE) opgericht.
Als koper word je automatisch lid van de VvE.
De rechten en plichten zijn geregeld in de wet alsmede in het splitsingsreglement. De notaris zal je hierover na de levering verder informeren.
De waterhoven
De Vereniging van Eigenaren (VvE) is belast met het beheer en het onderhoud van de waterhoven,
parkeerplaatsen, meterkasten, watermeterput, vuilinzamelpunt en andere bij de woningen/waterhoven behorende voorzieningen.
Alle kosten die hiermee samenhangen inclusief de reservering van groot onderhoud, worden door middel van de gemeenschappelijke rekening binnen de Vereniging van Eigenaren betaald. Hiervoor storten de leden maandelijks een vastgesteld bedrag (de servicekosten) op de gemeenschappelijke rekening van de VvE.
Het beheer van de waterhoven en de administratie van de vereniging wordt te zijner tijd verzorgd door een administrateur, die daarover verantwoording verschuldigd is aan de algemene ledenvergadering van de vereniging.




Je maakt kennis met ‘t Blauw. Je bekijkt het plan op de website, hebt misschien al een voorkeur voor een woning en je schrijft je in als belangstellende. Vanaf nu houden we je regelmatig op de hoogte van wat er allemaal speelt.
De waterwoningen gaan in verkoop. Je kunt je nu inschrijven voor één of meer woningen waar jouw voorkeur naar uitgaat. Nu leg je die wens definitief vast. Ondertussen heb je natuurlijk al gekeken of je ook een hypotheek kunt krijgen voor jouw favoriete woning. Hans Janssen Hypotheken kan daar bij helpen.
De woningen worden toegewezen. Ben jij een van de gelukkigen? Dan nodigt de makelaar je uit voor het verkoopgesprek.



Het verkoopgesprek
In het verkoopgesprek bij de makelaar bespreek je je wensen en daarna teken je de koop- en aannemingsovereenkomst. Je hebt nu nog een week bedenktijd.

Is meer dan 80% van de in verkoop zijnde fase verkocht? Dan gaan we bouwen. Zodra de betonbak van jouw woning gestort is gaan de hypotheekstukken naar de notaris en maak je een afspraak voor de grondoverdracht en eventueel de hypotheekakte.
Veel woonplezier!
Je waterwoning is klaar. Je krijgt de sleutel en je kunt verhuizen. We wensen je heel veel woonplezier in jouw nieuwe woning in ‘t Blauw.

Droom jij van een leven op het water, met ruimte, rust en comfort – en dat allemaal in Lent, vlak bij Nijmegen? In ’t Blauw komt die droom tot leven.
Bij Hans Janssen Makelaars staan onze nieuwbouwspecialisten voor je klaar om je te begeleiden bij de aankoop van jouw ideale woning in dit bijzondere project.
Wij kennen ’t Blauw door en door. Samen zetten we jouw woonwensen om in een helder plan. Of het nu gaat om de ligging, het woningtype of het afwerkingsniveau: wij informeren je over alle relevante aspecten van het project en de omgeving.
Ook juridische zaken nemen we stap voor stap met je door, zodat je precies weet waar je aan toe bent. En voor advies over de financiering van jouw woning in ’t Blauw kun je rekenen op onze collega’s van Hans Janssen Hypotheken – als geselecteerd partner
van dit project kennen zij de specifieke mogelijkheden en voorwaarden. Zo zorgen we ervoor dat jij goed geïnformeerd en met vertrouwen keuzes kunt maken. Want bij
Hans Janssen Makelaars draait het om meer dan alleen kopen – het gaat om thuis komen.
Hans Janssen Makelaars
Team Verkoop Nieuwbouw
Janneke Wenting
Elze Quint
Niels Kornelis
Frank Giesen



Een woning in Wonen in ‘t Blauw is bijzonder. Drijvend, duurzaam en ontworpen voor mensen die vooruit durven denken. Zo’n woning vraagt om een hypotheekadviseur die datzelfde doet. Daarom is Hans Janssen Hypotheken officieel partner van dit project.
Wij kennen Wonen in ‘t Blauw van binnen en buiten: de bouw, de planning én de specifieke eisen die gelden voor dit unieke type woning. Dankzij onze nauwe samenwerking met de ontwikkelaar en onze directe lijnen met geldverstrekkers kun je rekenen op een soepel en snel hypotheektraject.

Wil je zekerheid voordat je een stap zet? Met de Hypotheekbelofte van Hans weet je precies wat je kunt lenen, wat je maandlasten worden en welke rente bij jou past.
Vrijblijvend, kosteloos en snel geregeld zodat jij met vertrouwen kunt reserveren of kopen. Met de Hypotheekbelofte heb jij een voorsprong op andere kopers.
Waarom kiezen voor Hans Janssen Hypotheken?
• Wij zijn nauw betrokken bij Wonen in ‘t Blauw en weten exact hoe de koop- en financieringsstructuur in elkaar zit
• Wij regelen alles: van de eerste oriëntatie tot de notaris
• Wij werken onafhankelijk met diverse geldverstrekkers
• Wij combineren persoonlijke aandacht met de kwaliteit van de Hans Janssen Groep
Met Hans Janssen Hypotheken haal je een partner in huis die verder kijkt dan alleen de cijfers. We zorgen dat jij kunt wonen zoals jij wilt — in ‘t Blauw, aan het water, met rust in je hoofd.
Vraag vandaag nog jouw Hypotheekbelofte van Hans aan via hansjanssenhypotheken.nl en ontdek wat er mogelijk is voor jouw woning in ‘t Blauw.


Kies je voor ‘t Blauw… dan kies je voor een woning die je naar jouw smaak kunt vormgeven en waarmee je klaar bent voor de toekomst!
Duurzaamheid en besparing
Je krijgt een duurzame en gasloze woning die van vele gemakken is voorzien. Denk aan een warmtepomp, vloerverwarming/-koeling en/of luchtverwarming/koeling en zonnepanelen. Zo woon je energieneutraal: hoe fijn! Dit merk je terug in je woongenot – door het aangename binnenklimaat – én op je energienota.
Flexibiliteit en keuzevrijheid
Je kunt de woning helemaal naar eigen smaak inrichten en aanpassen. De keuken en badkamer zijn naar wens vorm te geven, jij bepaalt waar de stopcontacten komen en kiest het meer- en minderwerk. Jouw nieuwe woning ziet er dus vanaf dag één precies uit zoals jij wilt!
Comfortabel wonen
De woning is optimaal geïsoleerd tegen kou, hitte en geluid van buitenaf. En dat geeft een comfortabel gevoel. Naast de goede isolatiewaardes zijn er andere voorwaarden waaraan jouw nieuwbouwwoning voldoet volgens het Bouwbesluit. Denk aan hoogstaande ventilatie, minimale plafondhoogtes en oppervlaktes van kamers. Dit garandeert een aangename, comfortabele woning.
Financieel voordelig en waardevast
Een nieuwbouwwoning koop je vrij op naam (VON), zodat je geen kosten koper (k.k.) hebt zoals makelaarskosten, taxatiekosten en overdrachtsbelasting. Daarnaast staat de koopprijs vast en hoef je niet te overbieden zoals bij een bestaande woning vaak wel het geval is. Weet je wat je kunt lenen, dan weet je meteen of je de woning kunt financieren. Ook is een nieuwbouwwoning een goede investering waarbij op
lange termijn de waarde doorgaans toeneemt.
Alles nieuw en in topkwaliteit
Je woont in een gloednieuwe woning, zonder gebreken of achterstallig onderhoud van vorige eigenaren.
Een fijn idee: in de eerste jaren heb je geen groot onderhoud en kun je rekenen op garanties op veel onderdelen van je woning.
Een frisse start
Een nieuwbouwwoning betekent samen met je nieuwe buren en wijkgenoten een frisse start maken in een nieuwe wijk. Hierdoor maak je makkelijk contact met elkaar. Dat schept meteen een band!


CONCEPT & VORMGEVING
Incombinatie vastgoedcommunicatie | Arnhem
FOTOGRAFIE
De redactie heeft haar uiterste best gedaan om bronnen en rechthebbenden van beeldmateriaal dat wordt gebruikt te achterhalen en te vermelden. Wanneer desondanks beeldmateriaal wordt
getoond waarvan je (mede)rechthebbende bent en voor het gebruik waarvan je niet als bron of rechthebbende wordt genoemd, ofwel voor het gebruik waarvan je geen toestemming verleent, kan je je in verbinding stellen met de redactie.
DRUKKER
Wilco | Printing & Binding, Amersfoort



ONTWIKKELAARS
Middendorp middendorp.nl

Domera domera.nl
Dutch Lotus dutchlotus.nl
ARCHITECT ORGA orga-architect.nl

LANDSCHAPSARCHITECT
Stroming stroming.nl
INFORMATIE, VERKOOP & HYPOTHEKEN
Hans Janssen Makelaars
St. Canisiussingel 19H | 6511 TE Nijmegen
024 - 67 90 921 | nieuwbouw@hansjanssen.nl hansjanssen.nl
Hans Janssen Hypotheken
St. Canisiussingel 19H | 6511 TE Nijmegen
024 - 20 40 231 | hypotheken@hansjanssen.nl hansjanssenhypotheken.nl
Deze brochure is met de grootst mogelijke zorg samengesteld. Aan de getoonde artist impressies, alsmede aan de getoonde situatieschets kunnen geen rechten worden ontleend. Bij de exterieur impressies zijn soms enkele opties reeds ingetekend. Maten en kleuren zijn indicatief.
Deze brochure is informatief bedoeld en vormt geen onderdeel van de contractstukken. Aan deze brochure kunnen geen rechten ontleend worden.
© 2025 – ‘t Blauw


Schitterend wonen op het water
WONENINHETBLAUW.NL