Selected Works 2024

Page 1

SELECTED WORKS | 2019-2024

YUNXI
(ALEX) FU

THESIS PROJECT

Special Thanks to my Thesis Advisors Meredith Sattler and Angela Bracco

CONCEPTUAL FRAMEWORK

Comfort in DISCOMFORT

A prototypical urban fabric that fosters well-being and user agency through discomfort and impermanence

This thesis looks into the effect of architecture on the body and mind. Neuroplasticity and discomfort can manifest as disorientation, confusion, and destabilization, all serving to bring users into a plastic state where the mind is the most elastic. Using slight discomfort and impermanence to disrupt the body and mind’s state of equilibrium/ homeostasis, a neuroplastic environment brings inhabitants into a heightened state of awareness and strengthens the relationship between user and architecture. In my urban-scale intervention, users partake in a systematic shift in their daily routines via a system of circulation paths, reflection nodes, berms, and an infrastructure of impermanence.

LOCATION: Hong Kong

PROGRAM: HYBRID SPACES, RESIDENTIAL, COMMERCIAL, INSTITUTIONAL, USER AGENCY SPACES

Taking influence from the logistics and principles of the original Kowloon Walled City, a city that grew from a refugee camp into a dense organic megastructure, this intervention is a two-pronged approach that first asks inhabitants to adopt a behavioral and routine change that takes advantage of discomfort to bring users into mindfulness. Second, this intervention proposes an infrastructural system that fosters user adaptation through a market hall typology manifested by the berm and the cadence of the columns. THe undulating berm doubles as a sloped park on top and a covered market hall on the bottom, with each variation in section affording different human routines/ behaviors.

000
PHASE 01 - Reclaim Re-development Area PHASE 02 - Establish Towers, Circulation, Berms PHASE 03 - Infrastructure of Impermanence Tenant Control PHASE 04 Designer Control - Populate AN EVOLVING PROJECT ANATOMY OF A NODE NODE NETWORK CIRCULATION FRAMEWORK CENTRA AXIS (TRANSPO ION) CENTRA L AXIS WATERFRONT CENTRA AXIS (PROMENADE) UTILIT Y CLUSTE R
04.17.2024 CONCRETE COLUMNS CONCRETE WALKWAYS STEEL TENSION CABLES STEEL TENSION CABLES (DECORATIVE) MASS-TIMBER COLUMNS STEEL-LATICE SHELL W/ GLASS INFILL (MIRROR FINISH) HI. ELEV - 400M L 90 - 300M BERM HI. ELEV - 40m TOP OF CIRC. PATH - 35m Residential Tower SECTION 01 RE: K WC 0m 30m 60m

STUDIO PROJECT

001

*in collaboration with my partner, Brian Lie

CONCEPTUAL FRAMEWORK

TEMPORAL INTERSECTIONS

A new Black College/ University Campus & Library + Student Union Building

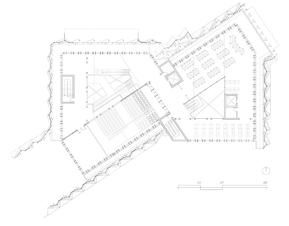
Temporal Intersections is a newly proposed Historically Black College/University Campus and hybrid Library/ Student Union Center located in the Port of Los Angeles, California. The abandoned 1.2 million square feet industrial pier has been reimagined for 1,000 HBCU students. There are 6 colleges, a stadium, administrative buildings, along with a number of outdoor spaces, such as a night market and a central promenade. Inspired by the incredibly rich history and culture of African Americans and a cultural map of LA by artist Mark Bradford, this project takes an inclusive approach where layers in the art piece are reinterpreted as moments throughout history. To accomplish this, the master

LOCATION: Port of Los Angeles, CA

PROGRAM: PUBLIC SPACE, OFFICES, AUDITORIUM, DINING HALL, ADMIN SPACES, STUDY ROOMS, LIBRARY, ARCHIVE, REC SPACES, STUDENT SERVICES

campus plan is designed as a physical timeline. As students and faculty make their way throughout the campus, they are exposed to various events and people in African American history. The library/ student union center, located at the heart of the campus and at the end of the “promenade through time”, serves as the metaphorical and physical end to the timeline, marking the point where students take what they have learned about their respective areas of study and Black American culture/history, and use it to contribute to excellence in the world in a way that pays homage to trailblazers that began the fight for equality.

STRUCTURAL SYSTEMS

Mass Timber Diagrid Tensioned by interior space-defining giant timber trusses External Steel Space Frame Supports facade and balconies
B C D E G H D G E H F I Timeline Promenade Chapel Inhabitable Shipping Containers Library/ Student Union Bldg. Central Promenade Existing cranes & new tracks Central Yard Night Market Main access road 01 03 02 04 MASSING CONCEPT PROGRAM ARRANGEMENT
SITE CONTEXT_ Master
Campus Plan

PLANS & SECTIONS

EXPERIENTIAL RENDERS

STUDIO PROJECT

002

LIMINAL TOGETHERNESS

mixed-use + housing + metro reception

CONCEPTUAL FRAMEWORK

Extending horizontally and vertically, Liminal Togetherness creates urban connections with a series of courtyards, sky-bridges, and communal outdoor spaces. Reintroducing the vendor space as a catalyst for gathering, this project maintains a cultural link to the existing site while allowing the public spaces to be united through the spillage of activities.

This project is the culmination of various studies into the threshold spaces and the splitting of those spaces in elevation to not only return the space back to the original inhabitants, but also foster a sense of growth by providing more

LOCATION: MacArthur Park, CA

PROGRAM: PUBLIC SPACE, OFFICES, MOVIES, COMMERCIAL, ADMIN SPACES, TRANSITIONAL HOUSING, HOTEL, MARKET RATE HOUSING, VENDOR SPACE, METRO RECEPTION

space and facilities that will foster careers. The first few levels are continuously connected, creating a promenade through the various shops, vendor spaces, and non-profits. Housing, while a traditional tower, is pierced through to create outdoor spaces that services every three levels of housing. By redefining the tower typology with an elevated park/ outdoor space as the public space, corridor spaces and balconies are combined and reintroduced to the inhabitants. The liminal space therefore blurs the interior and the exterior and create a unified backyard. Much like the commercial programs levels below, various different housing types share this outdoor space and are encouraged to mingle.

003 MESH @ MISSION

Cultural Center & Civic “MixingPot”

CONCEPTUAL FRAMEWORK

Mesh @ Misson seeks to highlight and showcase the social, artistic, and cultural identiy of the Mission District. Mesh @ Mission incorporates programmatic and skin elements that prompts the sharing and mixing of the different identities. As such, this building includes spaces for workshop/ studio space, communal areas, commerce space for local goods and foods, a performance center, and office spaces for non-profit organizations. From the site studies, it was clear that these sorts of spaces could help the community express their culture as well as their right to speak out against injustices in everyday life.

SITE INTERVENTION

LOCATION: Mission District, San Francisco

PROGRAM: PUBLIC SPACE, RETAIL, OFFICES, CLASSROOMS/ STUDIOS, PERFORMANCE SPACE

At the center of the building is a courtyard, a melting pot space, that connects all the surrounding spaces through visuals and transparency. Together with the stair threshold on the BART elevation, the facade, which consists of mural canvases, invites visitors and artists alike to both share their culture and learn from others. Artistic expression is a powerful medium and this building encourages the community to express themselves through art, commerce, music, and relationships with one another.

ARRANGEMENT

EDUCATION

MEETING ROOMS

COMMERCE FLOOR

AUDITORIUM

PRACTICE ROOM

COMMERCE WING

COURTYARD

PROGRAM
HOLISTIC EXPLODED DIAGRAM
PUBLIC TRANSPORTATION EXIT ENTRANCE THRESHOLD INVITES + WELCOMES VISITORS & PASSERBYS URBAN FOOTPRINT FORM FITS INTO A RESTRICTED SITE IN SAN FRANCISCO + POROUS TYPOLOGY REDUCES THE BUILDING’S OBSTRUCTION OF THE SURROUNDING BUSINESSES & PUBLIC ARTWORK COURTYARD ENCOURAGES GATHERING AND TIES SURROUNDING PROGRAM TO A CENTER POINT FACADE CANVAS SPACE COURTYARD FORM SURROUNDS INTERIOR WITH MURAL SPACES FOR EXPRESSION 01 02 03 04 05 07 06 08 07 08 04 vertical core entrance northern facade to maxmize northern daylighting + mesh panels for mural space open public space with exposure to sunlight and views into the courtyard view portal into commerce floor from B.A.R.T exit circulation core 05 06 03 02 01 ADMINISTRATION WING _NON-PROFIT OFFICES _BUILDING MANAGEMENT OFFICES _SPLIT FLOOR PLATES CONNECTING DIFFERENT LEVELS _STUDIO SPACES & LEARNING SPACES _EXHIBITION SPACE _SMALL GROUP MEETING SPACES _OPEN FLOOR PLAN BELOW THE COURTYARD _POP-UP SHOPS FOR VARIOUS TYPES OF BUSINESSES _ STAGE & SEATING FOR PERFORMANCES _SPACES FOR GROUP PRACTICE _ADDITIONAL COMMERCE SPACE W/ SEATING
FOR THE POSSIBILITY OF GATHERINGS AND COMMUNAL ACTIVITIES
_OPEN
WING
STUDIO PROJECT

The Mission District’s community utilizes murals as a powerful medium of expression. Cladding the CLT-framed design are multiple blank canvases, inviting the community to amplify their voice through art.

Commerce spaces take influence from flea markets and employ rotating pop-up shops, returning the power back to community business owners. Teaching/ learning spaces have alternating floorplate heights to allow the users of the space to peek into other classes or activities, meshing people and different types of cultures.

STRUCTURAL SYSTEM

EXPERIENTIAL RENDERS
HEAVY TIMBER OPERABLE GLAZING METAL MESH GFRP PANEL FROSTED GLASS +facilitates daylighting +blurs the threshold between site and the surrounding buildings +sun shading +mural canvas +natural ventilation +unique light quality
SECTIONS | SPATIAL QUALITIES PROGRAM KEY ADMINISTRATION OFFICES CLASSROOMS/ STUDIOS MEETING ROOMS COMMERCE AUDITORIUM PRACTICE ROOM MECHANICAL/ UTILITY/ SUPPORT COURTYARD 01 02 03 04 05 07 06 08 08 01 03 03 04 04 04 07 05 05 06 04 04 04 03 01 01 01 02 01 01 01 01 02 02 07 07 07 06 07 SECTION A A B C SECTION B SECTION C

LOCATION: The Carrizo Plains, CA

PROGRAM: RESEARCH FACILITIES, DNA ARCHIVE, SPATIAL MACHINE DOCK, RESIDENT APARTMENTS, ADMIN + CONFERENCE ROOMS, EXHIBITION GALLERY, CAFE

CONCEPTUAL FRAMEWORK

Even amid the decreasing conditon of the environment, humanity is making little strides to improve the environment. This facility serves to increase the scientific literacy of climate change and ecology. This facility hopes to educate the public about the consequences of neglecting the environment as well as conduct research on how to better the environment so that it can be self-sustainable and more tolerant of human impacts. As such, this facility focuses on the conservation of habitats in hopes that a healthy and diverse ecosystem can replenish Earth as a whole. The tower form was the result of wanting to elevate/ transfer the visitor to a higher point (so that

ARCHITECTURAL DIAGRAMS

they can take in the views of the Carrizo Plains) and the circulation of a power steering pump (car part). Also, the structure spreads into the ground to protect the DNA repository and allow researchers to sample different soils and geology that exists below ground. The resulting mass was a tower with multiple wings that cantilever radially to bring visitors and researchers outwards and submerge them in the views of the plains. The research agenda became about studying habitats, which includes top soil, open air, and the underground portion. A vertical structure would allow researchers to analyze all three by transfering them to multiple elevations.

CAR PART (PO WER STEERING PUMP) CENT RA L + 2LEVELS (VALVE SYSTEM ) CENT RA L + 2LEVELS RA DIAL INWA RD CENT RA L + 2LEVELS RA DIAL OU TW ARD CENTRA L RA D IALOUTW AR D Z-AXIS CHAN GE CEN TRA L DIVERG EN CE AR CS SHAR P CO RN ERS OU TW ARD CU RV ES CO NC AV E :CIRCULATION CTRL CUT INTO MASS A DD FA CADE DETA ILS LINES I N TH E LAND SC AP E CAR PART (POWER STEERING PUMP) CENTRAL + MULTIPLE LEVELS (VALVE SYSTEM) CENTRAL + MULTIPLE LEVELS RADIAL & INWARD CENTRAL + MULTIPLE LEVELS RADIAL & OUTWARD CENTRAL AXIS RADIAL OUTWARD Z-AXIS CHANGE CENTRAL VERTICAL AXIS DIVERGENCE ARM FORMS SHARP CORNERS OUTWARD CURVES CONCAVE: CIRCULATION CTRL CUT INTO MASS ADD FACADE DETAILS LINES IN THE LANDSCAPE MAIN ROUTE// ENTRANCE PUBLIC PRIVATE MAIN ROUTE// ENTRANCE SECONDARY ROUTE SECONDARY ROUTE TERTIARY ROUTE TERTIARY ROUTE ROUTE FORKS, USER DECISION ROUTE FORKS, USER DECISION EXPLODED CIRCULATION FORM DERIVATION + PROCESS PROGRAM PRIVATE PUBLIC 004
STUDIO
THE DIVERGENCE Center for Ecology and Genetic Record
PROJECT
WARM TONES: PRIVATE COOL TONES: PUBLIC

PLAN & SECTIONS

EXPERIENTIAL RENDERS MODEL IMAGES
G G F6 F5 F4 F3 F2 F1 G1 G3 G2 SECTION B SECTION A SPATIAL MACHINE MOBILE COUNTERPART + Retrieves biological samples from the Carrizo Plains

LOCATION: San Luis Obispo, CA

PROGRAM: STUDIO APARTMENT, 2-BEDROOM UNIT, 3-BEDROOM UNIT, BIKE PATH & LOADING PATH, COURTYARDS

CONCEPTUAL FRAMEWORK

This project began by studying Californian bungalows built primarily in the early 1900s. Studying the layout of bungalows is a personal and intimate process that allows us to understand how people lived and what they prioritized in their living spaces.

The mat building approach brings the desirable qualities of a private home and lot to a tighter/denser setting. Access, daylighting, ventilation, views to notable attractions, and the incorporation of a bike path are all integrated into a single “building”, while still maintaining privacy. On the other hand, the mat building creates opportunities for interaction between people, something that is diminishing more and more with the rise of technology. Courtyards of varying sizes promote a respective size of group gatherings in open space. The bike/ loading path unites the entire site while protecting pedestrian traffic. With a variety of apartment selections, 711 Foothill Mat building caters to college students and natives.

PLANS & DRAWINGS

005 711 FOOTHILL MAT COMPLEX RESIDENTIAL
STUDIO PROJECT
001 PROFESSIONAL WORK BUILDABLE HEIGHT LIMIT ON ROOF (VIF) SIERRA MAR JULY 07 2021 // p. 05 (E) GRADE TYP. MAX BUILDABLE ABOVE GRADE BUILDING SECTION LOOKING SOUTH BUILDING SECTION LOOKING EAST SECOND FLOOR GRADE TYP. 30’-0” 30’-0” (VIF) (VIF) FIRST FLOOR GARAGE

Turn static files into dynamic content formats.

Create a flipbook
Issuu converts static files into: digital portfolios, online yearbooks, online catalogs, digital photo albums and more. Sign up and create your flipbook.
Selected Works 2024 by inamedit - Issuu