Skip to main content

IFFAH ARCHITECTURAL PORTFOLIO 2024

Page 1

ARCHITECTURAL

PORTFOLIO

IFFAHNURSYAFIQAH |2024

CONTENTS

Curriculumvitae

SCHOOLPROJECT(NP)

TheCommune

TheSquareParkresidence

PasarTani

TheCocoon

ThePavilion

Internship–PoshHomeInterior

TheGreenOffice

KinderStar Dia’ Frame

me
RESUME About
01 … 02
SCHOOLPROJECT(ITE)
03

ABOUT ME CONTACT

Hi,mynameisIffah.IwillbegraduatingfromNgee AnnPolytechnicinMaywithadiplomainDesign. Duringmytimehere,Ihavedevelopedakeen interestinarchitectureandhavelearnedtoloveit.

InITEHigherNitec,Idiscoveredmypassionforthis field.Thisexperienceallowedmetoexplorevarious aspectsofarchitecturaldesign,suchasmodelmakinganddesigning.ThetechnicalfoundationI gainedinITEhasenabledmetobemoreconfidentin mywork.

iffah.nursyafiqah01@gmail.com

+6590259573

SOCIAL MEDIA

iffah.nursyafiqah_ www.linkedin.com/in/iffah-nursyafiqah

PERSONAL SKILLS

Openminded Desireinlearning Reliability

Organized Timemanagement

COMPUTER SKILLS

LANGUAGE

IffahNursyafiqahBinteMuhammadNoor

StudentatNgeeAnnPolytechnic

Singaporean,22June2000

Block105,ToaPayohLor1

Singapore310105

EDUCATION

NgeeAnnPolytechnic

ITECollegeCentral,HigherNitec

ITECollegeCentral,Nitec GuangYangSecondarySchool

INTERMEDIATE

AutoCAD2D/Revit/ Sketch-Up/ MicrosoftOffice BASIC

AdobePhotoshop/Adobe

Illustrator/Rhino7

PERSONAL DETAILS
01
BAHASA ENGLISH
Teamwork Friendly Passionate Hardwork

WORK EXPERIENCE

SCOOPER| GARRETTPOPCORN

May2023-Present

Myroleistoassistcustomers,packpopcorn,and handlecashiering.Iworkbothnightandday shifts.

INTERNSHIPS

DRAFTER | SurbanaJurongPteLtd

September2018-November2018

Myroleistodraftfloorplansanddetaileddrawingsfor clientsandsubmissiontoauthorities.

RECEPTIONIST | CITYINNHOTEL

December2018-April2019

Myroleistoassistguestswithinquiries, paperwork,andcashiering.Ialsoworkbothnight andmorningshifts.

DRAFTER | OfficeTTG&ITECollegeCentral

October2020-February2021

Myroleistodraftfloorplansanddrawingsforclients.

SCOOPER | BEN&JERRY

December2017-September 2018

Myroleisattendingtocustomers,andscoopers, makingwafflesandwafflecones,andcashiering. Ialsoworkbothclosingandopeningshifts.

DRAFTER | PoshHomeInteriorDesign-LivingInStyle

September2023-November2023

MostofmytaskshereatPoshHomearedraftingspace planningusingAutoCAD.Iwasappointedtoassistinthe preparationofpresentationmaterialsforclients.Helping withsourcingandselectingmaterialsforprojects. Additionally,Iwasassignedtovisitsitestotake measurements,takevideosandpictures,anddocument spacesformarketingreasons.

WAITRESS| MHOTELSINGAPORE

November2016-December 2016

Myroleasabanquetserveristoservecustomers foodandbeverages,getthevenuereadyforthe occasionthatday,andcleanafterward.

THE COMMUNE

Project no. 1 (Commercial)

Proposedcommunity-enriching,upskilling,andcollaborativeengagement programaimstotransformSpottiswoodeintoadynamichubforlearningand working,cateringtoindividualsofallagesandbackgrounds.Byimplementing long-terminitiativesdesignedtorevitalizethephysicalspaceandthecommunity asawhole,thisprogramaimstoprovideholisticopportunitiesforgrowth, collaboration,andcommunityengagement. Together,wecancreateafuturereadyandthrivingcommunity.

Greens:ReducedEnergyConsumption.Plantsabsorbheatandprovidethe buildingwithnaturalinsulation,whichthenreducestheamountofenergyused tocooldownthebuilding.

02
VerticalFins:Visuallyappealingandprovidesolarshading.

CONCEPTUAL DIAGRAM AXONOMETRIC

Circulardisk-hugging terrains.

Subtractinternal makingconnections withpublicspaces andpark.

FLOOR PLANS

360Paranoma,with generousterraces.

Therampcreatescontinuity betweentheinsideand outside.Intersectingindoorand outdoorspaceforacohesiveprogram

1st StoreyPlan 2nd StoreyPlan 3rd StoreyPlan GreenStoreyPlan

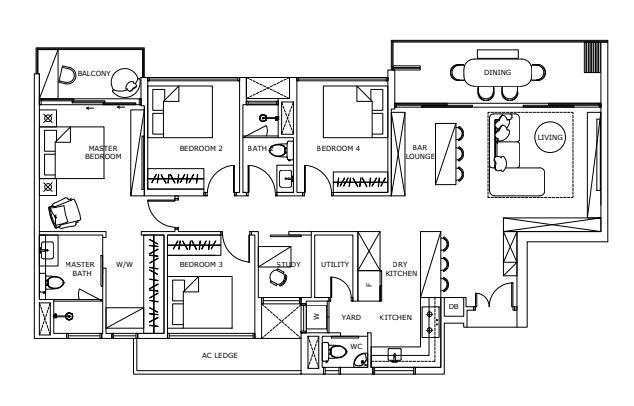
THE SQUARE PARK RESIDENCE

Project no. 2 (Residential + Commercial)

FromchildcareservicestocommunityspacetoF&B retail,SquareParkResidencesisyourall-inclusive oasisForcommunitiestocometogether

02
Material Scheme GreenRoof Timber ColouredPaint
… StudioRoomPlan 3BedroomPlan 4BedroomPlan

PASAR TANI

Project no. 3 (Commercial)

Acirculareconomyforfoodmimicsnaturalsystemsof regenerationsothatwastedoesnotexistbutisinstead feedstockforanothercycle.Inacirculareconomy,organic resourcessuchasthosefromfoodby-products,arefreefrom contaminantsandcansafelybereturnedtothesoilinthe formoforganicfertilizer.

Material Scheme

PASSIVEDESIGNSTRATEGIES

• NaturalVentilation

• NaturalLight

• GreenSpaces

• UseofLocal&Sustainable Materials/Produce

02
Timber DoubleGlazing Glass

SECTIONAL PERSPECTIVES

THE COCOON

Project no. 4 (Nano+)

TheCocooncreatesaspacethatintegratesbothworkand lifestylewithinnature.Theentranceoftheofficefeaturesa largefrostedglassdoor,providingprivacy.Theirdailylives revolvearoundthismulti-purposespace.

Ithasarooftopterraceforclientstoworkoruseasalounge, aswellasaninformantmeetingarea.Moreover,itincludesa livingroom,adiningroom,akitchen,atoilet,andasleeping area.

Thefacadeoftheofficeismadeoftimbermaterial,asitisa versatilematerialthathasseveralbenefits,including excellentinsulation,carbonstorage,andenergyefficiency.

02
OFFICE&OUTDOORPLATFORMPLAN 1. MeetingTable/Living 2. Toilet 3. PersonalOfficeArea 4. OutdoorPlatformArea OFFICE&KITCHENPLAN 1. MeetingTable/Living 2. Office 3. Dining/Kitchen Floor Plans 1 2 3 4 1 2 3

Aplacewhere colleaguescanhangout orhaveaninformant meeting.

Office

Threechairsforclient workerstohavetheir ownworkingspace.

RestingArea

Bedabovethecloset andkitchenforthe coupletorest.

Kitchen&anislandfor dining.

Lounge/Lunch/Hang outInformantMeeting area. OutdoorPlatform

ToiletwithShower&WC. Darktimbermaterial. Toilet RoofTerrace Kitchen

THE PAVILION

Project no. 5 (Model Making)

ProposedapavilioninspiredbyaSinistrofulgurperversum, thelightningwhelk,isanediblespeciesofverylarge predatoryseasnailorwhelk,amarinegastropodmolluskin thefamilyBusyconidae,thebusyconwhelks.Thisspecieshas aleft-handedorsinistralshell.Thefoldsoftheshellsinspired thedesign.Itbecamemymainunitalongwithastructure.

Material Scheme

Species

02
SataySticks Tracing Paper SinistrofulgurPerversum

INTERNSHIP

Posh Home Interior – Living In Style

MostofmytasksatPoshHomeare:

✓ DraftingspaceplanningusingAutoCAD

✓ Wentforsitevisits–Forshooting/Site Measurements

✓ Attendedclientmeetings

✓ Editedafewvideos

✓ Mademoodboardsforclient

GOOGLEDRIVE–VIDEOEDITS:

• https://drive.google.com/drive/folders/1IoMyf4 -pg59bdF8Jpon9uLwYA1DgEnY5?usp=sharing

GOOGLEDRIVE–MOODBOARDS:

• https://drive.google.com/drive/folders/1cRs7w H6Zxl1Znie-mdzNRdEz_AIxuKcj?usp=sharing

LINKTO57SUNBIRDYOUTUBEVIDEO:

• https://youtu.be/mW80tGatFYM?si=nh6ZuU3b SFFxai3Y

02
CARPENTRYDETAILDRAWING
02
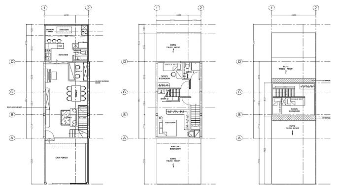
ECOPILITANCONDOMINIUM JALANHAJISALAM–3STOREYSEMIDETACHED KOVANRESIDENCE–CONDOMINIUM 16 JALANCHEMPAH– LANDEDTERRACE
SPACEPLANNING

THE GREEN OFFICE

Project no. 6 (Commercial)

TheGreenOfficeisa30-StoreyEco-OfficeBuildingthatis environmentallyfriendlyandaccessibletothedisabled.The buildinghastactilesurfacesonthefloors,brailleonthe buttons,andotherfeaturesdesignedtomeettheneedsof peoplewithdisabilities.Thewallsaremadeupofgreenery andabsorbsunlight,creatingacooler,morepleasant atmosphereduringthesummertime,andreducingambient noise;thewallsalsoactassoundbarriers.

Inadditiontobeingagoodinsulator,thetimberfaçadealso storescarbon,useslessenergy,andisenergyefficient.

03
Material Scheme GreenRoof Timber DoubleGlazing Glass

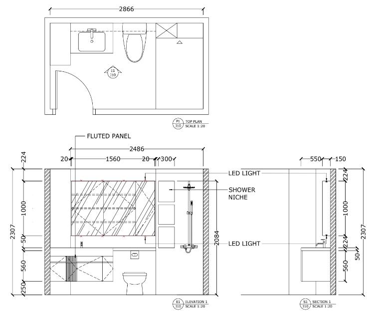
DETAIL DRAWINGS

Drop–OffDetail FloorPlan ClusteredToiletPlan

KINDER STAR

Project no. 7 (Educational Institution)

KinderStarisanidealplaceforchildrentogeteducated. Abuildingfullofcolorfulcolorschemesexpressingjoy, happiness,andexcitement.

Two-Storeybuildingwithskyterracethatwillholdoutdoor activitiesandindoortocapturechildren’sgreatmomentsin school.Includesoutdoorfacilitiessuchashorizontaltrellis providingshadesforwhenhavingaBBQorrestingarea,both indoorandoutdoorplayground,garden,andamaze.

03

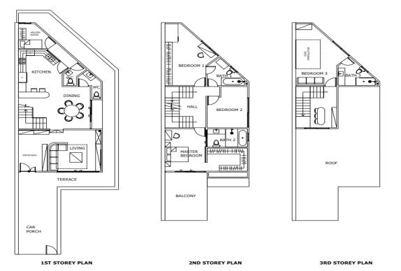
FLOOR PLANS

SECTIONAL PERSPECTIVES

DIA’ FRAME

Project no. 8 (Residential)

Proposed a three-storey high semi-detached house. Shown are rendered images of the exterior with tall trees surrounding the house. This house is surrounded by many curtain walls, giving it a luxurious appearance and allowing a substantial amount of natural light to go through. The attic was converted into a room with a rooftop deck.

03
Material Scheme SlateStone Marble DoubleGlazing Glass

Renderedimagesofthelivingroom,swimmingpool,and entertainmentroom.Tocreatea'luxury'look,Ichosewhite furniture,marbleflooring,andwalls.Furthermore,thehouse alsohasamezzanineoverthepoolareaplantedwithtalltrees, givingthefeelofanaturalenvironment.

ARCHITECTURAL

ARCHITECTURAL

iffah.nursyafiqah01@gmail.com

www.linkedin.com/in/iffah-nursyafiqah

PORTFOLIO PORTFOLIO 2024
9573
+659025

Turn static files into dynamic content formats.

Create a flipbook
IFFAH ARCHITECTURAL PORTFOLIO 2024 by Iffah Nursyafiqah - Issuu