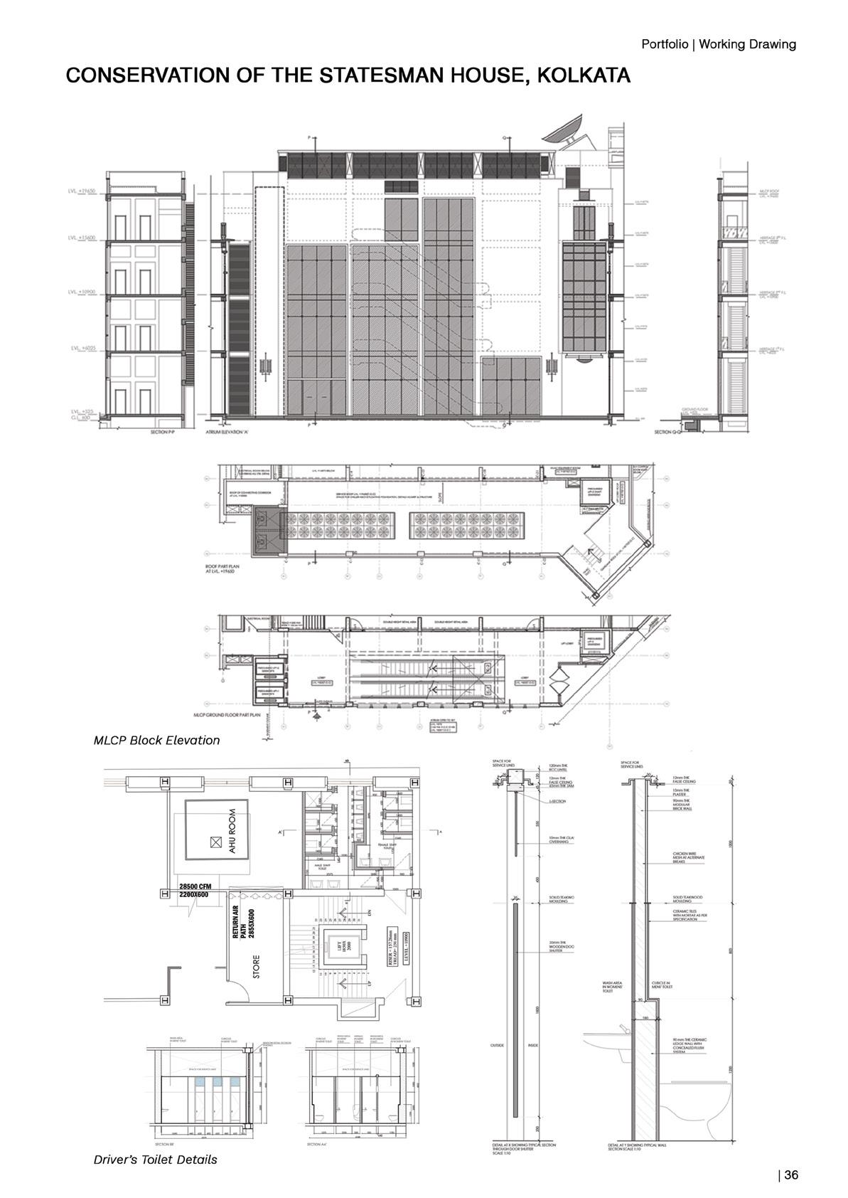
Hello there! This Architecture portfolio contains selected works from design and other projects developed during my five years of undergraduate architecture program at Amity School of Architecture & Planning, Noida. The projects are chosen to highlight the diverse approaches adopted during my architectural education and training.