Olivia Huffer Portfolio

Page 1

undergraduate architecture 2021-2024 PORTFOLIO OLIVIA HUFFER
CONTENTS 01 02 03 04 05 THE BINDING LIBRARY design 6 | spring 2023 design 5 | fall 2022 LIMINAL VISTA 29 WEST 35TH STREET SOY CUBA design 3 | fall 2021 YEAR 2100 design 4 | spring 2022 design 7 | fall 2023 04 12 22 26 30

The Binding Library

Winter Park, Florida

Design 6 | Spring 2023

Professor: Judi Shade Monk

Winter Park, Florida, nestled just north of Orlando, is renowned for its charming atmosphere and a vibrant mix of high-end boutiques and fine dining establishments. These thriving businesses not only contribute to the local economy but also enhance the cultural fabric of the community. As Winter Park attracts visitors seeking upscale shopping and gourmet dining experiences, the city has become a magnet for tourism. To further enrich the community and attract a broader demographic, the addition of a library would be highly beneficial.

01
4 | HUFFER

EXTERIOR PERSPECTIVE

The Binding Library serves as a hub for education, community engagement, and cultural exchange. It would provide residents and visitors alike with a serene space for learning, exploration, and intellectual growth, fostering a sense of community and contributing to Winter Park’s reputation as a well-rounded and culturally rich destination.

6 | HUFFER
BINDING PERSPECTIVE
GROUND FLOOR PLAN 8 | HUFFER

FLOOR PLAN 2

FLOOR PLAN 3

The Binding Library offers a welcoming space where everyone can pursue their interests and activities freely. Key features of the library include an auditorium, a business center, the Polly Seymour Bookshop, the Cultural Cafe, several study rooms, and, of course, the library itself.

SECTION PERSPECTIVE

INTERIOR PERSPECTIVE: WITHIN THE ATRIUM
10 | HUFFER

Metaphors of a Book

Not only do the main elements of the library contribute to the comfort and structure of the library, they also replicate parts of a book and create metaphors to tie the library into the city.

The main feature is of the dramatic Y-shaped columns that interlock with the diagonal wood beams which reference the binding along the spine of a book. These large columns then frame the park and the historically segregated community of Winter Park as to acknowledge the events and stories of the past. These stories can then can be brought together within the library, a safe space for all.

The 2nd floor consists of holding the majority of books within the library. Specialty/seasonal collections of books would be placed along the northern side, beneath the mezzanine. Here when books are taken light seeps within the space.

Lastly, the sides of the building are flushed with horizontal sunshades. Due to Florida’s heat and amount of sun, this shading device protects the books and adds to the comfort within the library. When glancing at the facades, however, the tilted panels flutter like pages of a book.

ELEVATION EAST & WEST COLLAGE
SECTION 1
COLLAGE
SECTION 2

Liminal Vista

Cedar Key, Florida

Design 5 | Fall 2022

The Nature Coast, a central part of Florida’s Gulf Coast, is a reservation of Florida’s natural communities and wildlife. Protected by state and federal governments, the coast line and surrounding areas have remained protected from tourists and exponential residential growth that is seen throughout the rest of the state. Within these areas, the wildlife corridor has been essential in providing shellfish (crabs, oysters, scallops) to around the country, and is continually monitored by scientist to promote healthy growth and conservation.

02
12 | HUFFER

By acknowledging the importance of Florida’s ecosystems, Liminal Vista provides labs for biologists to study the environment. It also engages the community to safely partipicate in the care, growth, and value of Cedar Key.

project done in collaboration with Daniel McNeil

RENDER WITH DANIEL MCDNEIL

MAPPING

IMMERSION OVERGROWN TRANQUILITY DATA COLLECTOR MODEL 14 | HUFFER

OBSERVATION

CROSS-SECTION WITH DANIEL MCDNEIL

Presence

The facilities are surrounded by the delicate marshy lands with which a fragile ecosystem occupies it. This architecture allows you to become immersed within the nature so that you can experience and observe the landscape through touch, sight, and hearing through a new lense.

16 | HUFFER

Floor Plan

1. Reception Area

2. Break Room

3. Lab

4. Restrooms

5. Office

6. Conference Room

7. Observatory

8. Data Collector

9. Boat Dock

10. Study

11. Patio

12. Mechanical

FLOOR PLAN WITH DANIEL MCNEIL SECTION WITH DANIEL MCNEIL RENDER OF LAB & OFFICES
18 | HUFFER
RENDER WITH DANIEL MCNEIL

The two labratories work together analyzing two different aspects of the gulf coast. The more eastern facility, designed by me, focuses on the water quality of the estuaries. This means that the labratory needs to be able to collect water samples and analyze their pH levels, temperature, turbidity, and potential HABs. The western facility, designed by Daniel McNeil is more focused on fish populations within Cedar Key. Inbetween them, a sensory boat dock provides easy access to the waters. These facilities would help with community engagement and the overall protection of this sensitive coastal area.

LONGITUDINAL SECTION WITH DANIEL MCNEIL
Study
EROSION OF SITE OVER 30 YEARS CONCEPT OF SCREENS
20 | HUFFER
RENDER WITH DANIEL MCNEIL

Year 2100

Gainesville, Florida

Design 4 | Spring 2022

Professor: Clay Martin

In Florida, the profound effects of climate change are anticipated to manifest as heightened sea levels, seasonal flooding, intensified hurricanes, and uncomfortably high afternoon temperatures. By the year 2100, a transformative shift is expected to reshape our world and perspectives. This initiative is dedicated to addressing these challenges by establishing a novel college within the University of Florida.

03
22 | HUFFER

The design process involves a meticulous examination of found objects on the site, creating purposeful forms to house these objects, and then integrating them in a collage-like manner to shape the buildings. Above shows five of those found objects: a screw, lighter, beer bottle, corona bottle cap, and metal bracket.

AXONOMETRIC SITE COLLAGE

In envisioning Gainesville and Florida’s future 80 years from now, climate change emerges as a dominant force influencing urban development strategies. The overarching concept revolves around mitigating the impacts of rising sea levels, soaring temperatures, and the heightened frequency of extreme weather events. A central proposal entails elevating the college campus above ground level, with a substantial connecting bridge at the top. This bridge offers the potential to construct enclosed walkways, facilitating movement between various campus buildings without exposure to outdoor elements as well as an active learning and study space for students.

MODEL PHOTO
24 | HUFFER
BUG MODELS
MODEL PHOTO
HAND-DRAWN FLOOR PLAN

SOY CUBA

Independent Location

Design 3 | Fall 2021

Professor: Stephen Belton

Soy Cuba, a soviet era film, compiles four vigenettes on pre-revolutionist cuban lives. This project analyses the social dynamics within the film, specifically between the shepherd, the dyad (the shepherd’s children), and the director, Mikhail Kalatozov. A 3/8th scale model with a hollowed plaster core, further explains how the shepherd’s reliance on the agriculture, is seen through the eyes of the director and the shepherd’s attempt of keeping the loss of the land from his children. The model focuses on the itinerary of each character through various thresholds and specific apertures of light.

04
PERSPECTIVE 26 | HUFFER
SECTION

THE SHEPHERD THE DYAD

THE OVERSEER

MONTAGE DIAGRAM

Spaces Intertwined

A plaster armature acts as the datum of the varying thresholds that connect the three narratives.

The director’s space entangles itself around the armature, allowing for a unique perspective of the shepherd and the dyad. The space builds onto the identity of the director allowing him to be the watchful eye, the shadowed presence, and an omnipresent figure to the scenes around him.

The luminous, potentially aflame structure pays homage to the crop ignited by the shepherd. Its brilliance permeates adjacent spaces, symbolizing an inescapable act, one that the shepherd cannot conceal and will linger as a haunting presence.

The dyad’s isolated space represents the way that they are kept unaware of the issues that their father, the shepherd, has taken on.

THE SHEPHERD
28 | HUFFER
MOCKUP ARMATURE PLASTER MODEL

EXPLODED AXONOMETRIC THE DYAD THE OVERSEER

Urban Renewal

29 West 35th Street, NYC

Design 7 | Fall 2023

Nestled in the shadow of the Empire State Building, the office edifice at 29 West 35th Street is gradually succumbing to economic decline. The aftermath of the 2020 pandemic has reshaped the landscape of New York City’s business operations, with a notable surge in remote work flexibility among employees. Consequently, two pressing issues have emerged: a surplus of vacant office spaces and a burgeoning housing crisis.

05
30 | HUFFER

Responding to this evolving scenario, the City of New York introduces the City of Yes initiative. This endeavor streamlines the rezoning process to concentrate on fostering affordable housing, supporting small businesses, and advancing sustainability. To address these pivotal objectives, the project envisions a substantial portion of the units designated for non-family residents, the conversion of a parking garage into a market space, and the transformation of significant sections of the office building into vertical urban farming spaces, community gardens, and green roofs.. SECTION

PERSPECTIVE

Transformation

At looking at the existing site, 29 West contained three main elements: an unused office building (left), neglected and rundown brownstones (middle), and a large 5 story parking garage (right). Considering the effects of demolishing buildings, this project aimed to retain as much as possible, and only took out the middle buildings. The office building and parking garage are transformed to fit the growing and changing needs of NYC. On the right, the collaged perspective, depicts the garage as the Empire Market, as it sits on the same axis of the Empire State Building across the street.

TRANSFORMATION DIAGRAMS SITE PLAN 32 | HUFFER
EMPIRE MARKET RENDER

Affordable Housing

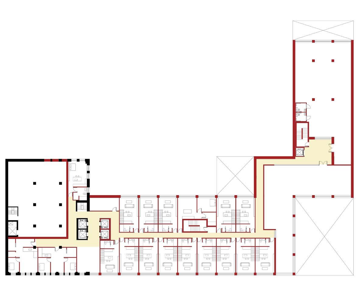
New York City is one of the most expensive cities to live in, and a significant factor to the high cost of living is the cost of housing. Affordable housing is crucial within Manhattan so that it can relieve financial burdens, provide economic divserity, and promotes social equity (not gentrification). 29 West provides affordable housing by having a larger quantity and ratio of smaller apartments. This also meets the current needs of NYC, as studio, 1, and 2 bedroom apartments are in high demand but not in supply. In total there are 163 apartments at 29 west. With 20 being 2 bedrooms, 66 beings 1 bedrooms, and 77 studios. 28 of these studios are lofted apartments, which are situated on the 5th and 6th floors, where the floor levels are larger than the rest of the building.

FLOOR PLAN 5 COLLAGE
34 | HUFFER

CURRENT NYC HOUSING DEMOGRAPHIC

28% Family Households

72% Non-Family Households

29 WEST APARTMENT #

20 - 2 Bedrooms

66 - 1 Bedrooms

77 - Studios

DIAGRAM OF LOFT STUDIO

Small Businesses

In addition to residential units, 29 West also offers a diverse range of commercial spaces. Given the substantial square footage of the office building, rather than repurposing it for residential purposes due to insufficient natural light, 50% of the structure is dedicated to vertical urban farming. Furthermore, a significant portion of the garage area has been transformed into the Empire Market, a unique blend of flea and farmers markets. The vertical farm plays a crucial role in the market by supplying and selling crops grown within the confines of 29 West. Diagrams from left to right: Urban Farming + Empire Market, Sunlight Analysis for a Year Period, and Urban Vertical Farming render.

GROUND FLOOR PLAN 36 | HUFFER

Sustainability

29 West 35th Street embodies key principles of sustainability. Utilizing sustainable materials, such as terracotta paneling arranged both horizontally and vertically to adorn the exterior, the building not only showcases modern design but also pays homage to New York City’s architectural heritage, where terracotta has been a prominent feature in many buildings. Moreover, the integration of a spacious park atop the former garage and the inclusion of green roofs scattered throughout the structure’s stair-like form further enhance its eco-friendly profile.

TERRACOTTA PROFILES
PARK ON PARKING GARAGE COLLAGE
ohuffer@outlook.com THANK YOU OLIVIA HUFFER 38 | HUFFER

Turn static files into dynamic content formats.

Create a flipbook
Issuu converts static files into: digital portfolios, online yearbooks, online catalogs, digital photo albums and more. Sign up and create your flipbook.