大三下 期末總檢

Page 1

P O R T F O L I O 2023.feb-jun 10932162 徐惞康 Hsu,Hsin-Kang
interior design
C O N T E N T S 02 In The Air 03 平時作業 -Vertical Village 01 NATURE rationality&sensibility 個人作品網站
01.

NEATURE RATIONLITY& SENSIBILITY

設計:咖啡店 01. 圓弧(天花)及矩形(吧檯)。 02. 金屬間接燈光,燈塔。 02.
影片QR CORE

間接光的設計,增加自然光在空間中,減少燈光的直射,利用燈塔 的方式把間接光打在天花板上,補足照明的需求。空間中以圓弧及 矩形代表著理性與感性,工作區的理性烘培及咖啡師的感性調和帶 表著整個空間。

03. 04. 05. 06.

生活中隨著時間的增長,能相聚的時 間也不斷減少,我們經常藉由中午休 息時間或是某個悠閒的下午坐在咖啡 廳中忙裡偷閒。在聚集過程中產生不 一樣的碰撞,連接客人之間的情誼, 即使是陌生人也可以有不一樣的交 集。

紋理漂亮、成品耐用,但因為大面積 板材取得不易產量稀少,所以價格昂 貴。

木心板總共有三層,中間一層厚的, 上下兩層為薄木片。夾板通常會作貼 皮或是上漆等加工處理,以符合現代 家具的需求。

夾板就是以一層層的薄木片上膠後堆 疊壓製而成,每一木片多使用各種不 同種類的木頭切割而成。

03. 金屬間接燈光,燈塔。

04. 圓弧(天花)及矩形(吧檯)。

05. 一樓座位區。

06. 一樓單人座位區。

07. 二樓多人座位區(原木桌)。

08. 二樓多人座位區(原木椅)。

09. 一樓單人座位區(夾板製木桌)。

10. 一樓方格櫃體。

11. 一樓座位區倒圓

07. 08. 09. 10. 11.

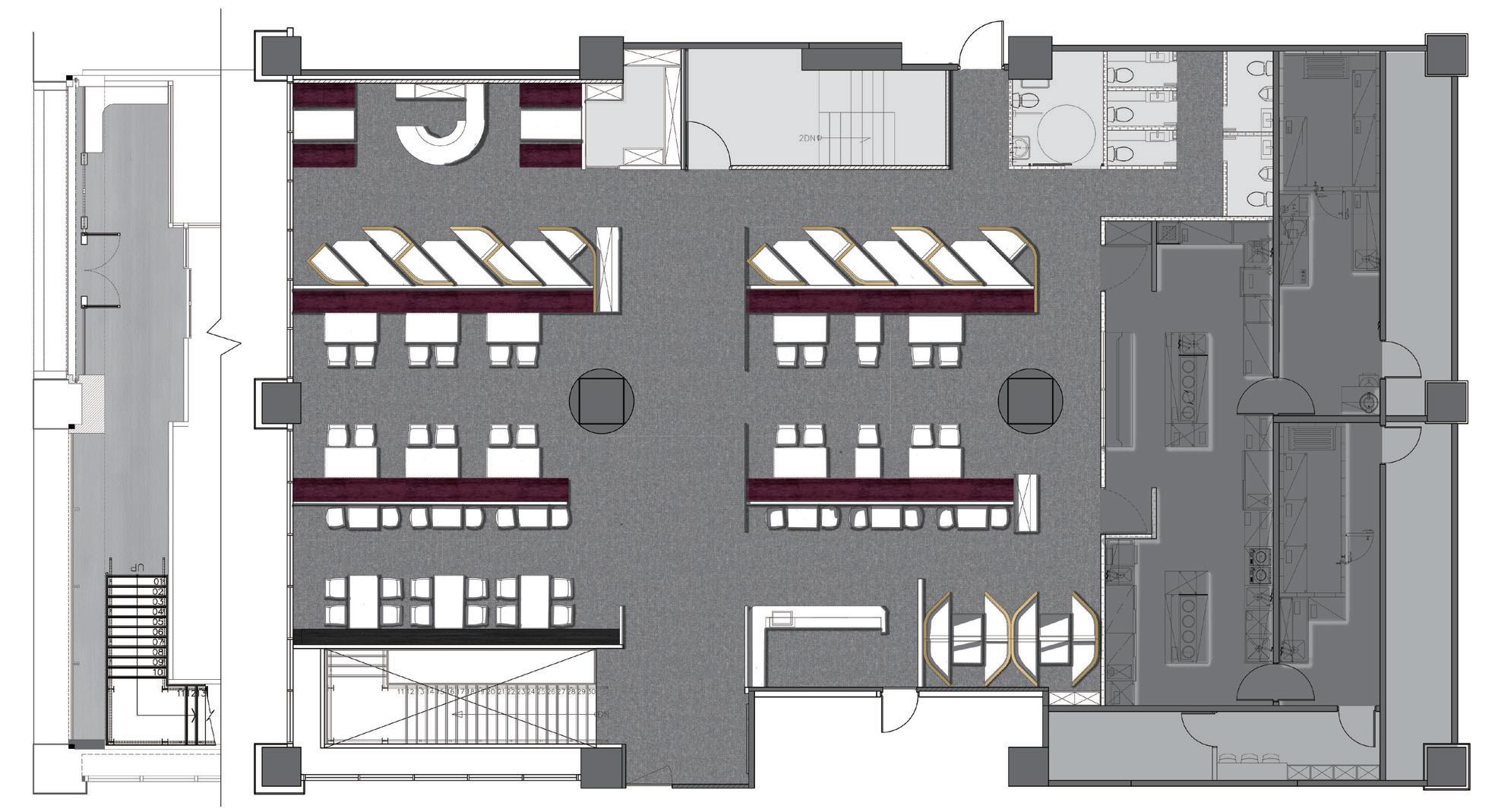
A:櫃台(吧檯)

B:單人座位區

C:多人座位區

D:廁所

E:儲藏室

平面圖
立面圖

理性與感性的交集打破空間的寧 靜 ,串聯一二樓的空間,並利用突出的桌子

NEATURE RATIONLITY& SECSIBILITY

位置:中國 海南省 海口市 美蘭區 埠北環路和埠北三連路一帶。

面積:265 m2 (80 坪)。

氣候 交通

一月月均溫:18.4°C 高速公路:中線高速

七月月均溫:29°C 民航:海口美蘭國際機場 品牌介紹:

湛盧,源自於他

他說:「每一顆咖啡豆,都要用貞敬的心看待」找出咖啡豆的「甜蜜

點」,掌握了最佳烘焙曲線。理性烘焙 感性調和對於選豆及烘豆我 們是理性且固執的,但論及沖煮,我們注入感性。

設計概念: 生活中隨著時間的增長,能相聚的時間也不斷減少,我們經常藉由 中午休息時間或是某個悠閒的下午坐在咖啡廳中忙裡偷閒。在聚集 過程中產生不一樣的碰撞,連接客人之間的情誼,即使是陌生人也 可以有不一樣的交集。

間接光的設計,增加自然光在空間中,減少燈光的直射,利用燈塔 的方式把間接光打在天花板上,補足照明的需求。空間中以圓弧及 矩形代表著理性與感性,工作區的理性烘培及咖啡師的感性調和帶 表著整個空間。

紋理漂亮、成品耐用,

但因為大面積板材取得

不易產量稀少,所以價 格昂貴。

木心板總共有三層,中間 一層厚的,上下兩層為薄 木片。夾板通常會作貼皮 或是上漆等加工處理,以 符合現代家具的需求。

一樓座位區桌面使用夾板的方式呈現,二樓多人桌 使用原木的質料,在木頭原本的年輪方式呈現彼此 之間的友誼。

不同材質的組合及代表感性的圓弧設計,金屬桿也呼應吧檯的燈塔,接收到自 然光的反光,達到燈塔的效果。理性與感性中利用自然光或是量體互相交織。

為 一樓增加照明。
原木 木芯板(貼皮) 五分夾板 A:櫃台(吧檯) B:單人座位區 C:多人座位區 D:廁所 E:儲藏室 A B C C C C E D 主動線 工作動線 支動線
夾板就是以一層層的薄 木片上膠後堆疊壓製而 成,每一木片多使用各 種不同種類的木頭切割 而成。
01.
in the air
設計:飛機主題餐廳 01. 空間剖透視圖。 02. 金屬間接燈光, 燈塔。
02. 影片QR CORE

乘一個航班,品一個風味, 桃園藝文 的雲端「一日美食旅遊」。在不變的

航行中,此時彼時的空間瞬息萬變, 強調「乘機」感受與空中服務,進入 機艙內享受,單日異地美食旅遊。

入口模擬空橋進入艙體前的登機感

受,線性的燈條帶動指引路線,與立 牌相輔相成。櫃台的登機入座流程與

即時航班時刻更新,搭配地區時間 中的空間塑造宛若置身海關。座位間

以線性燈帶出機艙形體,製物槽改裝

間接照明,搭配窗型LED面板,操作 餐品選購與申請服務。中間座位以酒 紅色織面與金屬收編條為空間畫龍點 睛,「沉穩而不失奢華」感烘托而出。

VIP座位區,專屬於貴賓座位區,以 概念型變而有別於一般座位區,適當 包覆的外觀,恰似商務艙座位的獨立 奢華享受。

-原型(機翼) - -切割- -扭轉- -成品03. 入口,模擬登機空橋。 04. VIP座位區。

SURVICE 服務檯與酒水吧 SEATS
03. 04.
平面圖 天花燈具 A B C D G D E o 帶 燈管 燈 具 索 引
VIP座位區。
機艙空間模擬。
中間座位區
走道座位區 05.
05.
06.
07.
08.
VIP座位 入口 一般座位 06. 07. 08.
A-A'剖立面圖 B-B'剖立面圖

IN THE A AIR

桃園藝文的雲端 「一日美食旅遊」

雲端饗宴

乘一個航班 品一個風味

在不變的航行中

此時彼時的空間瞬息萬變

代表飛行的靈魂與動力 翼尖整流片的線條色塊形變新量體

剖面透視圖 配合時間情境使用LED面板投影 並搭配各色布簾造景

模擬空橋

壓縮入口空間 進入艙體前轉換情境

初概念的形變與艙體、空橋的引入 帶動空間過渡感,宛若乘機而飲

動線路徑

可覽橫貫、路線主次分明

用餐環境

弧形艙體空間

強調「乘機」感受

與空中服務 進入機艙內享受 單日異地美食旅遊

機艙座位與入口定位示意 長短向剖立面圖 A 入口 B 櫃檯 C 一般座 D VIP座 E 酒水吧 F 廁所 G 廚房 H 員休室 平面配置圖 S:1/50cm 天花燈具圖 品牌概念轉化 切割 原型(機翼) 扭轉
空間概念解析
SURVICE 服務檯與酒水吧 SEATS
成品
A B C C D E F G H D
版面
長短向剖立面圖 S:1/50cm LED燈帶 20cm圓形崁燈 T5燈管 燈 具 索 引 花崗石紋板 霧面烤漆 霧面烤漆 大理石 亞麻布料 金屬收邊條 鋁合金板 酒紅織面 天花燈具圖 S:1/50cm VIP座位 入口 一般座位
機艙座位與入口定位示意

平時作業

C O N T E N T S 02 平時作業02 03 平時作業03 04 平時作業04 01 平時作業01 05 平時作業05 06 平時作業06 07 手繪與表達

平時作業01 Vertical Village

2023 TSID Student Award(佳作)

影片QR CORE

Vertical Village Concept & Method

打造一個如聚落般、有特色的宿舍,生活、學習、交誼,平等共融。一樓是如小公園的第三 空間,二、三樓則是居住空間。運用蜂巢之結構及功能性,使空間聚合、卻又獨立,需要有

互動時聚合;要休息時回到各自的空間。消除互動的阻礙與不便,拉近人和人的距離。

1. 第三空間聚落 ⇢ 房屋的符號

2. 聚合卻又獨立,每個房間各具特色

3. 通用設計-無障礙友善

A. 輪椅與他人皆能自由通行

走道<90公分,每個空間都有可旋轉、停靠的地方

門皆是拉門,方便進出且地坪高低差小於三公分

B. 無障礙房選用軟框家具、倒圓角處理

減少上下移動時因碰撞受傷的可能

C. 機能與空間

空間機能簡明,設備充分,滿足每個成員興趣及情感交流

D. 升降式&家具配置

90公分以上收納櫃櫃體皆可電動向下移動&衣櫃配有下拉式衣桿

E. 輔助用具

衛浴乾濕分離、扶手,洗手台可供輪椅使者使用

“Village people gather together”
一般房 小交誼廳 無障礙房
商業空間設計-學生宿舍 2023.04 徐惞康
平時作業02
平時作業03
平時作業04
平時作業05
平時作業06

手繪設計表達

EMAIL:lspss97117@gmail.com CALL#0984393670 個人作品網站

Turn static files into dynamic content formats.

Create a flipbook
Issuu converts static files into: digital portfolios, online yearbooks, online catalogs, digital photo albums and more. Sign up and create your flipbook.
大三下 期末總檢 by 徐惞康 - Issuu