HSB BRF DIKTAFONEN
ETAPP 3 2025-11-05


![]()
ETAPP 3 2025-11-05


LGH - plan
LGH - plan
LGH - plan
073073 22 33 44
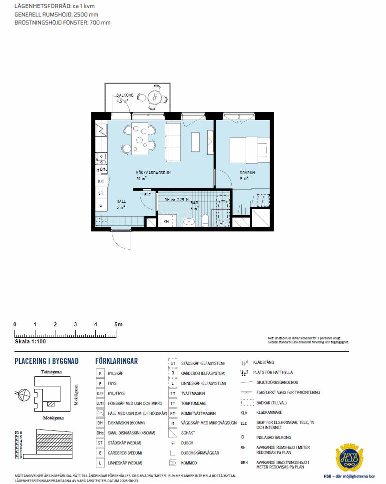
LÄGENHETSFÖRRÅD: ca 1 kvm
GENERELL RUMSHÖJD: 2500 mm
BRÖSTNINGSHÖJD FÖNSTER: 700 mm


LÄGENHETSRITNING 012345m

PLACERING I BYGGNAD


BALKONG 3,5 m 2

FÖRKLARINGAR
KYLSKÅP FRYS
KYL/FRYS




STÄDSKÅP (ELFASYSTEM)
GARDEROB (ELFASYSTEM)
U/M
HÖGSKÅP MED UGN OCH MIKRO
HÄLL MED UGN (OM EJ I HÖGSKÅP)
DISKMASKIN (600MM)
SMAL DISKMASKIN (450MM)
STÄDSKÅP (VEDUM)
GARDEROB (VEDUM)
LINNESKÅP (VEDUM) K F K/F

LINNESKÅP (ELFASYSTEM)
TVÄTTMASKIN
TORKTUMLARE
KOMBITVÄTTMASKIN
VÄGGSKÅP MED MIKROVÅGSUGN
SCHAKT
DUSCH
DUSCHSKÄRMVÄGGAR
KOMMOD
KLÄDSTÅNG
PLATS FÖR HATTHYLLA
SKJUTDÖRRSGARDEROB
FöRSTäRKT VäGG FöR TV-MONTERING
BADKAR (TILLVAL)
KLäDKAMMARE
SKåP FöR ELSäKRINGAR, TELE, TV OCH INTERNET
INGLASAD BALKONG
AVVIKANDE RUMSHöJD I METER REDOVISAS På PLAN
AVVIKANDE BRöSTNINGSHöJD METER REDOVISAS På PLAN




2 rok









LGH - plan LGH - plan
LGH - plan
LGH - plan
GENERELL RUMSHÖJD: 2500 mm
BRÖSTNINGSHÖJD FÖNSTER: 700 mm

KÖK 11 m²



TT TM BAD 6 m²


BALKONG 4,5 m 2
VARDAGSRUM 14 m² HALL 5 m² SOVRUM 13 m² M DM K/F ST L G ELC RH ca 2.25 M


KYLSKÅP FRYS
KYL/FRYS
HÖGSKÅP MED UGN OCH MIKRO
HÄLL MED UGN (OM EJ I HÖGSKÅP)
DISKMASKIN (600MM)
SMAL DISKMASKIN (450MM)
STÄDSKÅP (VEDUM)
GARDEROB (VEDUM)
STÄDSKÅP (ELFASYSTEM)
GARDEROB (ELFASYSTEM)
LINNESKÅP (VEDUM) K F K/F U/M DM ST G TM TT KM L RH IG ELC
LINNESKÅP (ELFASYSTEM)
TVÄTTMASKIN
TORKTUMLARE
KOMBITVÄTTMASKIN
VÄGGSKÅP MED MIKROVÅGSUGN
SCHAKT
DUSCH
DUSCHSKÄRMVÄGGAR
KOMMOD



KLÄDSTÅNG
PLATS FÖR HATTHYLLA
SKJUTDÖRRSGARDEROB
FöRSTäRKT VäGG FöR TV-MONTERING
BADKAR (TILLVAL)
KLäDKAMMARE
SKåP FöR ELSäKRINGAR, TELE, TV OCH INTERNET
INGLASAD BALKONG
AVVIKANDE RUMSHöJD I METER REDOVISAS På PLAN
AVVIKANDE BRöSTNINGSHöJD I METER REDOVISAS På PLAN



LÄGENHETSRITNING
LGH
LÄGENHETSFÖRRÅD: ca 2 kvm 6
GENERELL RUMSHÖJD: 2500 mm
BRÖSTNINGSHÖJD FÖNSTER: 700 mm






KYLSKÅP
KYL/FRYS
HÖGSKÅP MED UGN OCH MIKRO HÄLL MED UGN (OM EJ I HÖGSKÅP)
DISKMASKIN (600MM)
SMAL DISKMASKIN (450MM)
STÄDSKÅP (VEDUM)
GARDEROB (VEDUM)
LINNESKÅP (VEDUM)

STÄDSKÅP (ELFASYSTEM)
GARDEROB (ELFASYSTEM)
LINNESKÅP (ELFASYSTEM)
TVÄTTMASKIN
TORKTUMLARE
KOMBITVÄTTMASKIN
VÄGGSKÅP MED MIKROVÅGSUGN
SCHAKT
DUSCH
DUSCHSKÄRMVÄGGAR
KOMMOD




PLATS FÖR HATTHYLLA
SKJUTDÖRRSGARDEROB
FöRSTäRKT VäGG FöR TV-MONTERING
BADKAR (TILLVAL)
KLäDKAMMARE
SKåP FöR ELSäKRINGAR, TELE, TV OCH INTERNET
INGLASAD BALKONG
AVVIKANDE RUMSHöJD I METER
AVVIKANDE BRöSTNINGSHöJD I METER REDOVISAS På PLAN



LÄGENHETSRITNING
LGH -plan
LGH -plan
LGH -plan
LÄGENHETSF´ÖRRÅD: ca
GENERELL RUMSHÖJD: 2500 mm
BRÖSTNINGSHÖJD FÖNSTER: 700 mm



PLACERING I BYGGNAD



KYLSKÅP FRYS
KYL/FRYS
HÖGSKÅP MED UGN OCH MIKRO
HÄLL MED UGN (OM EJ HÖGSKÅP)
DISKMASKIN (600MM)
SMAL DISKMASKIN (450MM)
STÄDSKÅP (VEDUM)
GARDEROB (VEDUM)
LINNESKÅP (VEDUM)

STÄDSKÅP (ELFASYSTEM)
GARDEROB (ELFASYSTEM)
LINNESKÅP (ELFASYSTEM)
TVÄTTMASKIN
TORKTUMLARE
KOMBITVÄTTMASKIN
VÄGGSKÅP MED MIKROVÅGSUGN
SCHAKT
DUSCH
DUSCHSKÄRMVÄGGAR
KOMMOD



KLÄDSTÅNG
PLATS FÖR HATTHYLLA
SKJUTDÖRRSGARDEROB
FöRSTäRKT VäGG FöR TV-MONTERING
BADKAR (TILLVAL)
KLäDKAMMARE
SKåP FöR ELSäKRINGAR, TELE, TV OCH INTERNET
INGLASAD BALKONG
AVVIKANDE RUMSHöJD METER REDOVISAS På PLAN
AVVIKANDE BRöSTNINGSHöJD I METER REDOVISAS På PLAN









rok 93,5 m2
HSB Bostad, NOVEMBER 2025. Med reservation för tryckfel. Mindre justeringar och ändringar av projektet kan ske ett senare ske de.

HSB Bostad | Box 1387 | 171 27 Solna bostad@hsb.se | www.hsb.se