ArchitecturePF- Nasimsorkhabi - 2024

Page 1


NASIM M. SORKHABI’S

LA VIE; SHARED LIVING ROOM

ARCHITECTURE COMPETITION

Senior Housing WINNER

BOX IN A BOX

Adaptive Reuse; Theatre Space Teamwork

COLOURFUL HUG

Middle School Design Individual

URBAN TENDRILS

Bachelor’s Final Project Individual DAAD

Cultural Design, Music Center Individual

DESERT STORM

Museum of Emotions

GOLD PRIZE WINNER

NEWVIEW TOWER

Residential Design Teamwork

URBAN STATUE

Cultural Design; Art Gallery Teamwork

MAQUETTES

SCHOOL PROJECT MASTER’S

SCHOOL PROJECT BACHELOR’S

SCHOOL PROJECT BACHELOR’S

SCHOOL PROJECT BACHELOR’S

ARCHITECTURE COMPETITION

PERSONAL PROJECT

PERSONAL PROJECT

AI DESIGN

FACADES STUDY+ DESIGN

EXTERA-CURRICULLAR BACHELOR’S

PERSONAL PROJECT

RESEARCH PROJECT BACHELOR’S

LA VIE; SHARED LIVING ROOM

Senior Housing: Beyond Isolation

Winner

This architectural ideas competition aimed to alleviate the isolation faced by aging populations worldwide. As people age, they are often confronted with increased physical and social inactivity, which can negatively impact both physical and mental health. Living alone or in isolation can worsen these issues, heightening the risks of accidents, depression, and difficulties in accessing essential services. The competition sought to reconnect elderly individuals with their communities by inviting participants to design innovative housing strategies to actively reintegrate older residents into their social fabric.

Architecture Competiton Teamwork, 2024
Vue de
PROJECT 1: LA VIE; SHARED LIVING ROOM

Concept Diagram 1: From a compact residential tower to Distributed units.

Concept Diagram 2: Organization of units in the site and according to the context.

The selected site is located in the heart of downtown Lachute, Quebec, Canada, and includes an old train station that has greatly influenced the building’s layout. Situated between two main streets and close to a residential area to the south, the site is surrounded by various commercial buildings. These commercial structures, now integrated into our planning following their redevelopment, play a central role in serving La Vie.

Rue Principale, Lachute, QC, J8H 1Y3
Après

Grond Floor Plan: Main Plan

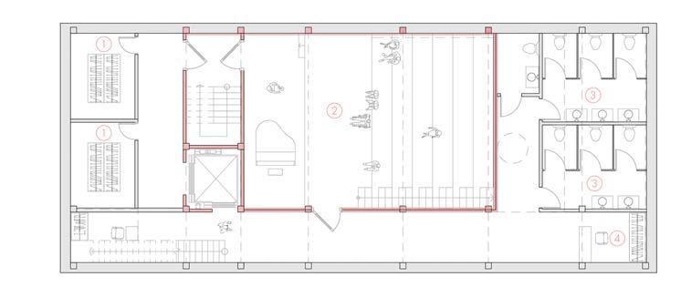
A day at La Vie is like a walk with a friend along the pathway (see numbers 1 to 15 on the ground floor plan): 1-Entry pathways 2-Existing commercial buildings 3-Access from the lower street 4-Semi-public common spaces 5-Restaurant area 6-Semi-public common spaces 7-Site entrance 8-Library

9-Main common area with a view of the old train station 10-Community garden and leisure entrance 11-Nursing care 12-Chapel 13-Existing commercial buildings 14-Semi-public common spaces 15-Parking areas

General longitudinal section

Various gatherings take place on the site, in public and semi-public spaces, fostering an environment where elderly individuals can form a community tailored to their comfort. GATHERINGS AND URBAN FURNITURE

ENVIRONMENTAL ASPECTS

Open spaces on the upper floor for their gatherings. Access to the 2nd floor

Semi-open spaces (in beige) on the ground floor for small gatherings

Given the harsh climate of Quebec, our approach at La Vie not only focuses on insulating the exterior walls but also incorporates solar panels and greenery on all sloped roofs. This strategy aims to reduce heat loss while enabling the homes to produce their own energy. Additionally, the arrangement of the units in close proximity to each other and their stacking helps us achieve our environmental goals.

Considering the severity of Quebec’s winters and the risk of seasonal depression and isolation, we have designed an indoor community garden to encourage residents to interact and enjoy their lives. (Refer to sheet 4 for interior details).

from the inside; designed to allow for the circulation of people with reduced mobility.

View
View of the pedestrian walkway.
PROJECT 1: LA VIE; SHARED LIVING ROOM

Reuse of Firestation

The front facade, the tower, the party walls, and the frontal sculpture are considered part of the heritage character of Fire Station 14. Built in 1912-1913 by Louis-Roch Montbriand, who designed many other fire stations, the front facade of the station is in the neoclassical style, evident in the symmetry of the facade and the richness of the materials used.

“A BOX IN A BOX” respecte la structure d’origine tout en accueillant un nouveau programme.

Our strategy is to preserve the original structure while integrating a new program. This approach allows us to harmonize the old and new elements, while providing flexibility in their arrangement within the existing structure.

In our proposal, we have planned two theaters with two distinct experiences: an auditorium-style theater and a smaller theater that can also be used as a rehearsal space.

HERITAGE ELEMENTS OF THE CASERNE
Plan du site
Program
Facadism + Box in a box + Renovation

During our site visit, we conducted a 3D scan of the building. By comparing these scans with the original plans of Fire Station 14, we observed the presence of cross corridors that effectively structure the spaces. One of these corridors leads directly to the Tower, as shown in the image.

We wanted our circulation path to always offer an unobstructed view of the tower, so that the public could always see it upon entering the building. This idea of a clear path toward the tower defined our main circulation axis.

Through an iterative process, the circulation route was chosen for its optimal view of the tower, as well as for its effective thermal strategy.

To create a thermal loop, it was important to divide the space into three distinct zones. Space 1 (the lobby) receives fresh air, which then circulates through Space 2 (the theater) and finally escapes through ventilation in Space 3 (circulation and tower). This cycle repeats, thus creating the thermal loop.

3D SCAN
HALLWAY TOWARD THE TOWER
Upper Floor Plan
Ground Floor Plan
THERMAL STUDY
GOUND FLOOR PLAN

Differences in the stacked theater spaces: The ground floor offers more space for performances and equipment, while the theater on the first floor can be used for smaller productions and a more intimate audience.

MATERIAL CALCULATION AND CARBON FOOTPRINT.

Material Mass:

Glass: 91 550 kg

Concreter: 1 059 000 kg

Steel Structure: 330 368 kg

Brick: 813 900 kg

Gypsum: 68 908 kg

The collage focuses on the materiality inside the Fire Station. In the collage, we can see the combination of the existing red brick with the new red glass material within the building.

We wanted to overlay glass on the bricks to create moments where the public could see the history behind the walls, rather than hiding it with a completely opaque material. The material is new and semi-transparent, which does not obscure the existing building but rather illustrates a moment where the old and the new are combined, much like our conceptual model at the “Undrawn” stage.

Middle School Design

It begins to focus on creating dynamic spaces for children, where they can educate themselves and interact with others. Some functional masses scattered across the open green site aim to keep students active within society. This helps blur the boundary between the city and the school.

U3- Fall 2019- Studio Project Individual

ENCOURAGING CURIOSITY

Create spaces for children to play and enjoy their breaks. These activities take place within the geometries of the entrance hall.

Restaurant + Culinary Workshop (Architecture + Landscape)

Extension of the city into the culinary workshop; This project presents a visual representation of the city’s influence or presence, embodying the idea of urbanization or urban life encroaching upon the environment or function of a culinary workshop.

U4- Winter 2021- Bachelor’s Final Project Individual

URBAN TENDRILS
PROJECT

Il commence à se concentrer sur la création d’espaces dynamiques pour les enfants, dans lesquels ils peuvent s’éduquer et communiquer avec les autres. Certaines masses fonctionnelles réparties sur le site vert ouvert visent à maintenir les élèves actifs dans la société. Cela permet d’estomper la frontière entre la ville et l’école.

Cultural Design: Music Center
U3- Winter 2020, Studio Project Individual

Structure

The structural system of the museum is a radial system. With this large-scale parametric system, it is possible to increase or reduce the distance of the structural columns and cover higher spans.

Details

The hand-drawn wall section and two detail of the shaders indicate how we can change the shaders and adapt them to the environmental conditions.

Form alternatives, Adaptable design

Different forms are produced whit a single change in the position, size, and elevation of structural frames. Parametrically, we can change the frames’ properties as the users want. With Various contexts and environmental conditions, we have different results.

Conceptual Design: Museum of Emotions

Architecture Competition Teamwork, 2022

Residential Tower in Hypothetical Site Location

Personal Project Teamwork

This project centers on creating unique spaces for art activities, treating the architecture as an integral urban element. Every stage, from concept to presentation, is illustrated entirely by hand.

Cultural Design: Art Gallery
Personal Project Teamwork

The building has two floors, featuring galleries, an assembly room, offices, and a café. All galleries are located on the second floor and are accessible via a ramp from the lobby. The first floor houses offices and the main gathering area.

The diagram on the left shows two different elevations of the museum, while the diagrams on the right outline the design process step by step.

This project emphasizes the artistic dimension of architecture. In designing this museum gallery, we aimed to create an urban landmark, making the formal design a central challenge.

Physical models for architectural and urban projects vary in style, ranging from conceptual and formal models to more detailed, precise representations.

ARTIFICIAL INTELLIGENCE

AI renders are an excellent tool for studying materials and graphics, helping designers brainstorm ideas and work more creatively and efficiently. [All Projects above are designed by “Humans” and AI only used as a tool, and it didn’t decide or impose anything.]

ARTIFICIAL INTELLIGENCE

FROM PLAN STRATEGY TO FACADE STRATEGY

Dividing each unit into two parts allows us to shift them individually, creating spaces with varying qualities. Based on the resulting plans, the building’s facade took shape.

Pilgrims Heaven is an invitation to rethink the reception of pilgrims in one of Italy’s most evocative places. It aims at generating spaces that are functional, but also a source of reflection, harmony and beauty by enhancing once again one of the oldest and purest purposes of architecture: giving shape to intangible and spiritual elements.

YAC and the Italian State Property Agency launch a competition of ideas to design a hospitality and reception center for pilgrims at St. Peter’s Church in Tuscania.
Competition- Extention to St. Peter’s Church in Tuscania Teamwork

Turn static files into dynamic content formats.

Create a flipbook
Issuu converts static files into: digital portfolios, online yearbooks, online catalogs, digital photo albums and more. Sign up and create your flipbook.
ArchitecturePF- Nasimsorkhabi - 2024 by HowToPortfolio - Issuu