Lilastraat 2, Almere

Page 1


Huizen van Hoekstra enVan Eck

Energielabel A

Oprit + garage

Verrassend ruim

5 slaapkamers

Nabij voorzieiningen

Kenmerken

Soort eengezinswoning

Type hoekwoning Kamers 6

Woonoppervlakte 142 m²

Perceeloppervlakte 294 m²

Inhoud 573 m³

Bouwjaar 1996

Tuin achtertuin, voortuin, zijtuin

Garage inpandig

Verwarming c.v.-ketel

Isolatie volledig geïsoleerd

Energielabel A

De in deze brochure getoonde informatie wordt door Hoekstra & van Eck makelaardij met zorg samengesteld, doch voor de juistheid en volledigheid daarvan kan niet worden ingestaan en kunnen hieraan geen rechten worden ontleend. Spel- en typefouten voorbehouden. De plattegronden zijn geproduceerd voor promotionele doeleinden en ter indicatie. Er kunnen geen rechten aan worden ontleend. Maten zijn niet eigenhandig opgemeten. Indien er twijfel bestaat over de accuratie van de gegevens aangaande deze brochure, is de geïnteresseerde zelf verantwoordelijk voor het nameten van deze gegevens. Voor meer informatie wordt u doorverwezen naar www.hoekstraenvaneck.nl

Verkoper vertelt

Voor ons was het het droomhuis, waarin we vijf slaap-/ werkkamers konden realiseren.

Een ruim en heel licht huis met een tuin en balkon op het zuiden, twee eigen parkeerplekken en plaats voor een kleine caravan. Een ligging dichtbij scholen, winkels, het NS station en natuurlijk het meridiaanpark.

We hebben er bijna 30 jaar met heel veel plezier gewoond.

huizen

welkom thuis

Een tuin gerichte woonkamer een aangenaam licht

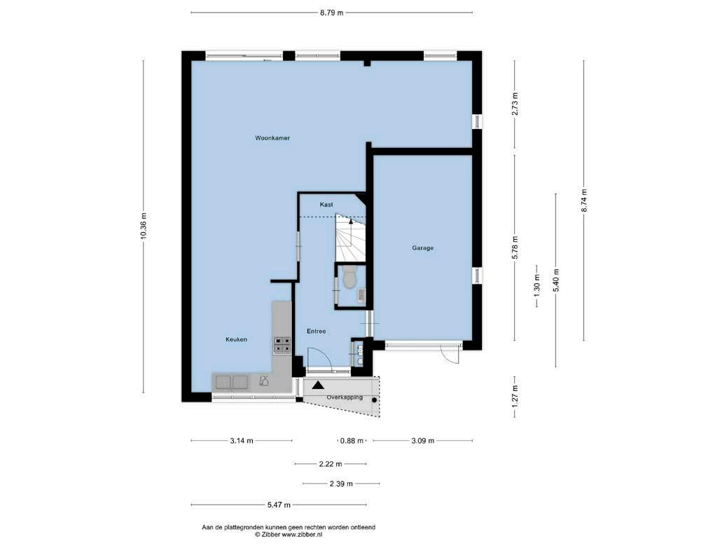
Bij binnenkomst word je verwelkomd in een hal die toegang geeft tot de eetkamer, de inpandige garage, een toilet en de trap naar de eerste verdieping. De lichte woonkamer is een aangename ruimte, die dankzij de schuifpui direct toegang geeft tot de tuin. Dit zorgt voor een natuurlijke verbinding tussen binnen en buiten.

Plaats

jouw droomkeuken

hoe richt jij het in?

genoeg protentie

De keuken, heeft potentieel en biedt voldoende ruimte om volledig te worden ingericht naar jouw smaak en specifieke wensen. Hier kun je jouw culinaire ideeën tot leven brengen en de ruimte transformeren in een plek die voldoet aan je behoeften. Een ruime L-vormige keuken of een keuken met een kookeiland, beide zijn hier mogelijk.

Genoeg ruimte voor het gezin

een praktische badkamer 5

functionele slaapkamers

Boven bevinden zich vijf functionele slaapkamers, passend voor verschillende doeleinden. Deze kamers zijn allemaal voorzien van een neutrale afwerking en zijn een uitstekende basis voor verdere personalisatie. Een van de slaapkamers beschikt over een privébalkon, ideaal voor wat extra rust en ontspanning. De badkamer op deze verdieping is praktisch ingedeeld met een douche, wastafel en toilet. In het midden van de overloop vind je een kast, welke voldoende opbergruimte biedt voor al je spullen. Hier zijn ook de witgoedopstelling en de CV-ketel gevestigd, wat zorgt voor extra functionaliteit en netheid in de woning.

een tuin op het z/o
Een eigen oprit met garage met een garage

De inpandige garage is multifunctioneel en kan worden gebruikt voor het parkeren van voertuigen, als opslagruimte of zelfs omgebouwd worden tot een kantoor of speelkamer. De tuin, gelegen op het zuidoosten, is een belangrijk kenmerk van de woning; het biedt een combinatie van zon en schaduw, waardoor het een aangename plek is om tijd te besteden. Met een tuin aan de voorzijde, achterzijde en zijkant, heb je volop mogelijkheden om buiten te genieten. Er is tevens een achterom aanwezig voor extra gemak. Aan de voorzijde van de woning is een dubbele oprit aanwezig.

Almere

Tussen 1994 en 1998 zijn de woningen in de Regenboogbuurt gebouwd. De plannen zijn gepresenteerd op de BouwRai 1994. Het is de meest kleurrijke wijk van Nederland. De straten zijn allen benoemd naar kleuren. Er staan een aantal bijzondere bouwwerken in de wijk. Het meest opvallend zijn de 3 grote rode flatgebouwen welke je vanaf de snel al ziet staan. Dit zijn de Rode Donders en zijn de bakens van de Regenboogbuurt. Langs twee lange straten met terracotta als hoofdkleur staan in totaal 850 geënte Japanse kersenbloesembomen. Een prachtig gezicht als je hier doorheen fietst.

heerlijk wonen in Almere
noorden kadastrale kaart

HEERHUGOWAARD

ALKMAAR LANDSMEER

Lokaal makelaarschap

Wij geloven sterk in lokaal makelaarschap. Kennis van de buurt, de omgeving en de daarbij behorende ontwikkeling van de huizenprijzen zijn onmisbaar om voor jou het maximale resultaat te boeken.

Met Hoekstra & van Eck kies je voor:

• makelaars die al jarenlang verbonden zijn met de regio

• kennis van de lokale woningmarkt

• een verkoopplan afgestemd op jouw woning

• maximale exposure van je huis

• bezichtigingen ook in het weekend

• netwerk met honderden woningzoekers

Verkoop je je huis met Hoekstra & van Eck dan ben je met de eigen app 24/7 op de hoogte van het verkoopproces. Bezichtigingsverzoeken bereiken je direct en beantwoord je snel en discreet op het moment dat het jou uitkomt.

Ook je huis verkopen? Onze makelaars komen graag en vrijblijvend bij je langs. We maken dan direct een gratis waardebepaling. Hoekstra & van Eck werkt op basis van no cure no pay. En betalen doe je pas bij verkoop.

Midwaystraat 3

036 - 538 32 90 almere@hoekstraenvaneck.nl www.hoekstraenvaneck.nl

HOORN

PURMEREND ZAANDAM

(2x)

A’DAM WEST

HOOFDDORP HAARLEM

LEIDEN

MONNICKENDAM

A’DAM NOORD

AMSTERDAM

AMSTELVEEN

VLEUTEN DE MEERN

ALMERE

BUSSUM

HILVERSUM

MAARSSEN

UTRECHT

AMERSFOORT

(2x) (2x)

NIEUWEGEIN WIJK BIJ DUURSTEDE

MEPPEL

ZWOLLE

APELDOORN

ARNHEM

(2x)

NIJMEGEN

‘S-HERTOGENBOSCH

BREDA

TILBURG

EINDHOVEN

WEERT

ROERMOND

WhatsApp de foto’s en het adres van je woning naar 06 13 18 43 41 en ontvang een gratis waardebepaling!

Turn static files into dynamic content formats.

Create a flipbook
Issuu converts static files into: digital portfolios, online yearbooks, online catalogs, digital photo albums and more. Sign up and create your flipbook.