Langswater 515

Page 1


Huizen van Hoekstra enVan Eck

Uniek uitzicht

Ruim balkon

Veel licht door hoge ligging

Lage erfpacht kosten

Met berging

Soort bovenwoning

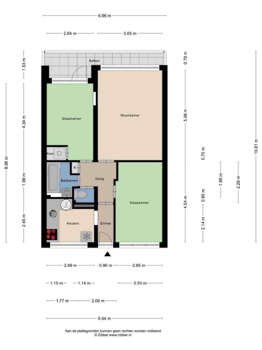
Kamers 3

Woonoppervlakte 61 m²

Inhoud 201 m³

Bouwjaar 1967

Tuin geen tuin

Garage geen garage

Verwarming blokverwarming

Isolatie dubbel glas, grotendeels dubbelglas

Energielabel E

De in deze brochure getoonde informatie wordt door Hoekstra & van Eck makelaardij met zorg samengesteld, doch voor de juistheid en volledigheid daarvan kan niet worden ingestaan en kunnen hieraan geen rechten worden ontleend. Spel- en typefouten voorbehouden. De plattegronden zijn geproduceerd voor promotionele doeleinden en ter indicatie. Er kunnen geen rechten aan worden ontleend. Maten zijn niet eigenhandig opgemeten. Indien er twijfel bestaat over de accuratie van de gegevens aangaande deze brochure, is de geïnteresseerde zelf verantwoordelijk voor het nameten van deze gegevens. Voor meer informatie wordt u doorverwezen naar www.hoekstraenvaneck.nl

Verkoper vertelt

Beste bezoeker van Langswater 515,

Welkom in het appartement dat ik ruim acht jaar lang mijn thuis heb genoemd. Alle Langswaterappartementen zijn ideaal voor starters, maar wat deze zo bijzonder maakt, is zonder twijfel het uitzicht. Niet alleen zit je hier op de 13e, maar wordt vanwege de ligging van de straat Tussen Meer het zicht vanuit de woonkamer minder geblokkeerd door de volgende flat.

Los van het uitzicht is het appartement heel fijn. Het is weliswaar een startersappartement, maar doordat je twee slaapkamers hebt, kan je ook prima doorgroeien en hier gaan samenwonen en zelfs een gezin stichten.

Naast het uitzicht is de bereikbaarheid een groot pluspunt. Hoewel je in een uithoek van de stad zit, is de verbinding wel heel goed. Tram 17 rijdt je zo de stad in via onder andere Station Lelylaan en Amsterdam Centraal. Op een paar minuten lopen

heb je al een supermarkt en op 5 minuten fietsen heb je het Osdorpplein, waar je een groter winkelaanbod hebt.

Uiteindelijk heb ik hier 8 jaar met veel plezier gewoond, waarvan de laatste drie samen met mijn vriendin. Nu wij als tweeverdieners een volgende stap kunnen zetten, gun ik een starter of een jong gezin dit fijne appartement met geweldig uitzicht.

Amsterdam: Meer en Vaart 82, T 020

huizen

modern

Lichte woonkamer geweldig uitzicht

Stap binnen bij dit moderne 3-kamer appartement, gelegen op de bovenste etage in een van de fijnste wijken van Osdorp. De woonkamer biedt je de flexibiliteit om een gezellige zithoek én een eethoek te creëren. Bovendien is je uitzicht echt next level; vanuit de woonkamer én vanaf het zonnige balkon kijk je uit over de stad en Schiphol, wat ’s avonds zorgt voor een geweldig uitzicht op de lichtjes.

Eetsmakelijk

moderne apparatuur

slim ingedeeld

De keuken – slim geplaatst, zodat je alle ruimte overhoudt – is uitgerust met voldoende kastruimte en moderne inbouwapparatuur.

Slaaplekker

ruime slaapkamers

werkplek

De woning beschikt over twee fijne slaapkamers van goed formaat. De slaapkamers zijn ruim en praktisch ingericht. Maak van de ene kamer een rustige plek om te slapen en gebruik de andere als je werkplek of een logeerkamer voor je vrienden of familie.

moderne uitstraling

Frisse start van de dag separate toilet

Ook de badkamer stelt niet teleur: deze is ruim genoeg voor al je ochtendrituelen, mét een moderne uitstraling. Het separate toilet betekent dat jij in alle rust een warme douche kunt nemen, zonder gestoord te worden

Zonnig balkon

balkon op het zuiden

handige bergruimte

Licht & zonnig: Een royaal balkon op het zuiden –geschikt voor je ochtendkoffie, een lekker boek, of gewoon een momentje genieten in de zon. Vergeet de handige bergruimte op de begane grond niet, ideaal voor je fiets, koffers of de spullen die je niet dagelijks nodig hebt.

heerlijk wonen in Amsterdam

Amsterdam

Stadsdeel West is een samensmelting van verschillende wijken, en wordt ook wel liefkozend de ‘knusse huiskamer van de stad’ genoemd. Van het groene, levendige OudWest, de Baarsjes en Bos & Lommer waar steeds meer leuks te beleven is, tot de culturele Westerparkbuurt; in Amsterdam West wisselen rustige, fraaie woonbuurten zich af met drukke, gezellige winkelstraten.

Winkelen, een hapje eten of borrelen; voor alles is hier wat! Bovendien is Stadsdeel West een sportief gebied. Voor bijna alle sporten is hier wel een sportvereniging te vinden. Er zijn veel speeltuinen en sportveldjes en er worden veel activiteiten en festivals georganiseerd.

Amsterdam; een bruisende stad waar niets te gek is! Alles kan en bijna alles mag. Amsterdam beschikt over tal van monumentale grachtenpanden, musea, horeca en ga zo maar door. Ook wat activiteiten, evenementen en festivals betreft is Amsterdam the place to be! Er is altijd wel iets te doen en alles is tot in de puntjes geregeld. Alles is prima te bereiken met het openbaar vervoer.

In augustus 2010 is de 17e eeuwse Amsterdamse grachtengordel toegevoegd aan de Werelderfgoedlijst van Unesco.

noorden kadastrale kaart

HEERHUGOWAARD

ALKMAAR LANDSMEER

Lokaal makelaarschap

Wij geloven sterk in lokaal makelaarschap. Kennis van de buurt, de omgeving en de daarbij behorende ontwikkeling van de huizenprijzen zijn onmisbaar om voor jou het maximale resultaat te boeken.

Met Hoekstra & van Eck kies je voor:

• makelaars die al jarenlang verbonden zijn met de regio

• kennis van de lokale woningmarkt

• een verkoopplan afgestemd op jouw woning

• maximale exposure van je huis

• bezichtigingen ook in het weekend

• netwerk met honderden woningzoekers

Verkoop je je huis met Hoekstra & van Eck dan ben je met de eigen app 24/7 op de hoogte van het verkoopproces. Bezichtigingsverzoeken bereiken je direct en beantwoord je snel en discreet op het moment dat het jou uitkomt.

Ook je huis verkopen? Onze makelaars komen graag en vrijblijvend bij je langs. We maken dan direct een gratis waardebepaling. Hoekstra & van Eck werkt op basis van no cure no pay. En betalen doe je pas bij verkoop.

Meer en Vaart 82 020 - 205 10 70 amsterdamwest@hoekstraenvaneck.nl www.hoekstraenvaneck.nl

HOORN

PURMEREND ZAANDAM

(2x)

A’DAM WEST

HOOFDDORP HAARLEM

LEIDEN

MONNICKENDAM

A’DAM NOORD

AMSTERDAM

ALMERE AMSTELVEEN

BUSSUM

HILVERSUM

MAARSSEN

UTRECHT

VLEUTEN DE MEERN

AMERSFOORT

(2x) (2x)

NIEUWEGEIN WIJK BIJ DUURSTEDE

MEPPEL

ZWOLLE

APELDOORN

ARNHEM

(2x)

NIJMEGEN

‘S-HERTOGENBOSCH

BREDA

TILBURG

EINDHOVEN

WEERT

ROERMOND

WhatsApp de foto’s en het adres van je woning naar 06 13 18 43 41 en ontvang een gratis waardebepaling!

Turn static files into dynamic content formats.

Create a flipbook
Issuu converts static files into: digital portfolios, online yearbooks, online catalogs, digital photo albums and more. Sign up and create your flipbook.
Langswater 515 by Hoekstra en van Eck Makelaars - méér makelaar - - Issuu