van der Weydenlaan 30, Heerhugowaard

Page 1


Huizen van Hoekstra enVan Eck

Ruime eengezinswoning

Aanbouw aan achterzijde

Drie (mog. vier) slaapkamers

Energielabel B

Nabij alle nodige voorzieningen

Soort eengezinswoning

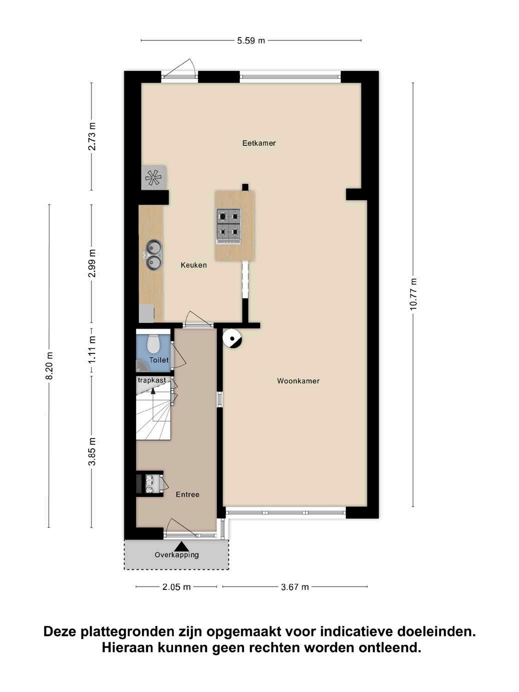
Type tussenwoning Kamers 4

Woonoppervlakte 134 m²

Perceeloppervlakte 157 m²

Inhoud 476 m³

Bouwjaar 1973

Tuin achtertuin, voortuin

Garage geen garage

Verwarming c.v.-ketel, houtkachel

Isolatie dakisolatie, muurisolatie, dubbel glas

Energielabel B

De in deze brochure getoonde informatie wordt door Hoekstra & van Eck makelaardij met zorg samengesteld, doch voor de juistheid en volledigheid daarvan kan niet worden ingestaan en kunnen hieraan geen rechten worden ontleend. Spel- en typefouten voorbehouden. De plattegronden zijn geproduceerd voor promotionele doeleinden en ter indicatie. Er kunnen geen rechten aan worden ontleend. Maten zijn niet eigenhandig opgemeten. Indien er twijfel bestaat over de accuratie van de gegevens aangaande deze brochure, is de geïnteresseerde zelf verantwoordelijk voor het nameten van deze gegevens. Voor meer informatie wordt u doorverwezen naar www.hoekstraenvaneck.nl

Verkoper vertelt

Wij zijn 14 jaar geleden in deze ruime woning komen wonen omdat ons werk ons toentertijd naar Heerhugowaard en Alkmaar bracht. Onze woning staat in een rustige wijk met scholen en winkels in de nabije omgeving. Aan het einde van de straat de bushalte waar de bus je naar Alkmaar brengt.

De woning heeft 3 slaapkamers. 1 grote slaapkamer (dit waren 2 slaapkamers maar door het verwijderen van een tussenmuur zijn deze samengevoegd en is 1 grote slaapkamer gerealiseerd. Dit is eenvoudig weer op te heffen waardoor er weer 2 slaapkamers ontstaan), 1 kleinere slaapkamer en 1 zolderkamer met dakkapel. Er is een ruime voorzolder met wasmachine-opstelling.

De doorzon woonkamer is zeer ruim doordat de woning aan de achterkant over de gehele breedte is uitgebouwd en is voorzien van een open haard. De open keuken is voorzien van een kookeiland.

Aan de voorzijde is een bestrate voortuin en vrij uitzicht. Bovendien voldoende parkeerplaats in de straat. Aan de achterzijde een ruime zonnige tuin, voorzien van een vaste berging en poort naar de steeg. Aan beide zijden fijne buren.

Het huis past dan ook als de spreekwoordelijke jas en wij hebben hier dan ook altijd fijn gewoond.

ruim en licht

nette afwerking

Bij binnenkomst voel je meteen de huiselijke sfeer. De begane grond is voorzien van een moderne PVC-vloer, die zowel stijlvol als onderhoudsvriendelijk is. De wanden zijn afgewerkt met spachtelputz. De houtkachel in de woonkamer zorgt voor extra warmte en een sfeervol knisperend vuur op koude avonden.

huizen

Open keuken

lekker kokkerellen

frisse start

Loop door naar de uitbouw aan de achterzijde en ontdek de ruime woonkeuken met een centraal kookeiland. Hier is er voldoende ruimte om uitgebreid te koken en te genieten van heerlijke maaltijden.

De keurige badkamer is voorzien van een doucheruimte, wastafel en een tweede toilet.

3 slaapkamers

hoe deel jij ze in?

slaap lekker

De eerste verdieping heeft twee ruime slaapkamers, maar met een kleine aanpassing kun je gemakkelijk een extra kamer realiseren. Dit maakt de woning uiterst flexibel voor veranderende behoeften.

Hoe deel jij hem in?
zonnige tuin

met achterom

De tuin is gelegen op het oosten, ideaal voor een zonnige ochtend en middag. Hier kun je genieten van je koffie in de ochtendzon of een barbecue organiseren met vrienden en familie.

Heerhugowaard

Heerhugowaard, ook wel de Stad van de Kansen genoemd is een groeigemeente. Er zijn veel verschillende wijken in Heerhugowaard en hier komen nog steeds nieuwe wijken bij. Zo heb je in het zuiden de welbekende Stad van de Zon, in het westen de Broekhorn en aan de noordoostzijde De Draai.

Ondanks de mooie landelijke ligging mag Heerhugowaard zich toch zeker een stad noemen. In het moderne stadshart vind je het grootste overdekte winkelcentrum van Noord-Holland, Middenwaard. Hier kun je terecht voor een zeer ruim en compleet winkelaanbod. Ook vind je hier in de buurt vele goede restaurants, gezellige terrassen, een bioscoop, de bowling en het moderne theater Cool. Kortom, voor iedereen is er wel iets te vinden in Heerhugowaard.

Verder vind je in Heerhugowaard vele verschillende sportfaciliteiten, dependance van het Noordwest ziekenhuis, diverse onderwijsinstellingen en veel recreatiemogelijkheden in het grote parkbos “het Waardenhout”, het Strand van Luna en het Park van Luna.

Heerhugowaard is gelegen in de gemeente Dijk en Waard.

heerlijk wonen in Heerhugowaard
noorden kadastrale kaart

HEERHUGOWAARD

ALKMAAR LANDSMEER

Lokaal makelaarschap

Wij geloven sterk in lokaal makelaarschap. Kennis van de buurt, de omgeving en de daarbij behorende ontwikkeling van de huizenprijzen zijn onmisbaar om voor jou het maximale resultaat te boeken.

Met Hoekstra & van Eck kies je voor:

• makelaars die al jarenlang verbonden zijn met de regio

• kennis van de lokale woningmarkt

• een verkoopplan afgestemd op jouw woning

• maximale exposure van je huis

• bezichtigingen ook in het weekend

• netwerk met honderden woningzoekers

Verkoop je je huis met Hoekstra & van Eck dan ben je met de eigen app 24/7 op de hoogte van het verkoopproces. Bezichtigingsverzoeken bereiken je direct en beantwoord je snel en discreet op het moment dat het jou uitkomt.

Ook je huis verkopen? Onze makelaars komen graag en vrijblijvend bij je langs. We maken dan direct een gratis waardebepaling. Hoekstra & van Eck werkt op basis van no cure no pay. En betalen doe je pas bij verkoop.

Stationsplein 34-36 072 - 201 01 13 heerhugowaard@hoekstraenvaneck.nl www.hoekstraenvaneck.nl

HOORN

PURMEREND ZAANDAM

(2x)

A’DAM WEST

HOOFDDORP HAARLEM

LEIDEN

MONNICKENDAM

A’DAM NOORD

ALMERE AMSTELVEEN AMSTERDAM

BUSSUM

HILVERSUM

MAARSSEN

UTRECHT

VLEUTEN DE MEERN

AMERSFOORT

(2x) (2x)

NIEUWEGEIN WIJK BIJ DUURSTEDE

MEPPEL

ZWOLLE

APELDOORN

ARNHEM

(2x)

NIJMEGEN

‘S-HERTOGENBOSCH

BREDA

TILBURG

EINDHOVEN

WEERT

ROERMOND

WhatsApp de foto’s en het adres van je woning naar 06 13 18 43 41 en ontvang een gratis waardebepaling!

Turn static files into dynamic content formats.

Create a flipbook
Issuu converts static files into: digital portfolios, online yearbooks, online catalogs, digital photo albums and more. Sign up and create your flipbook.