Rubensstraat 51, Heerhugowaard

Page 1

Rubensstraat 51 , 1701 JG Heerhugowaard 361m2 eigen grond Garage én carport Zéér energiezuinig Ruime oprit naast de woning Mogelijk levensloopbestendig Huizen van Hoekstra enVan Eck H71

Soort Type Kamers

Woonoppervlakte Perceeloppervlakte Inhoud Bouwjaar Tuin Garage

Verwarming Isolatie Energielabel

Kenmerken

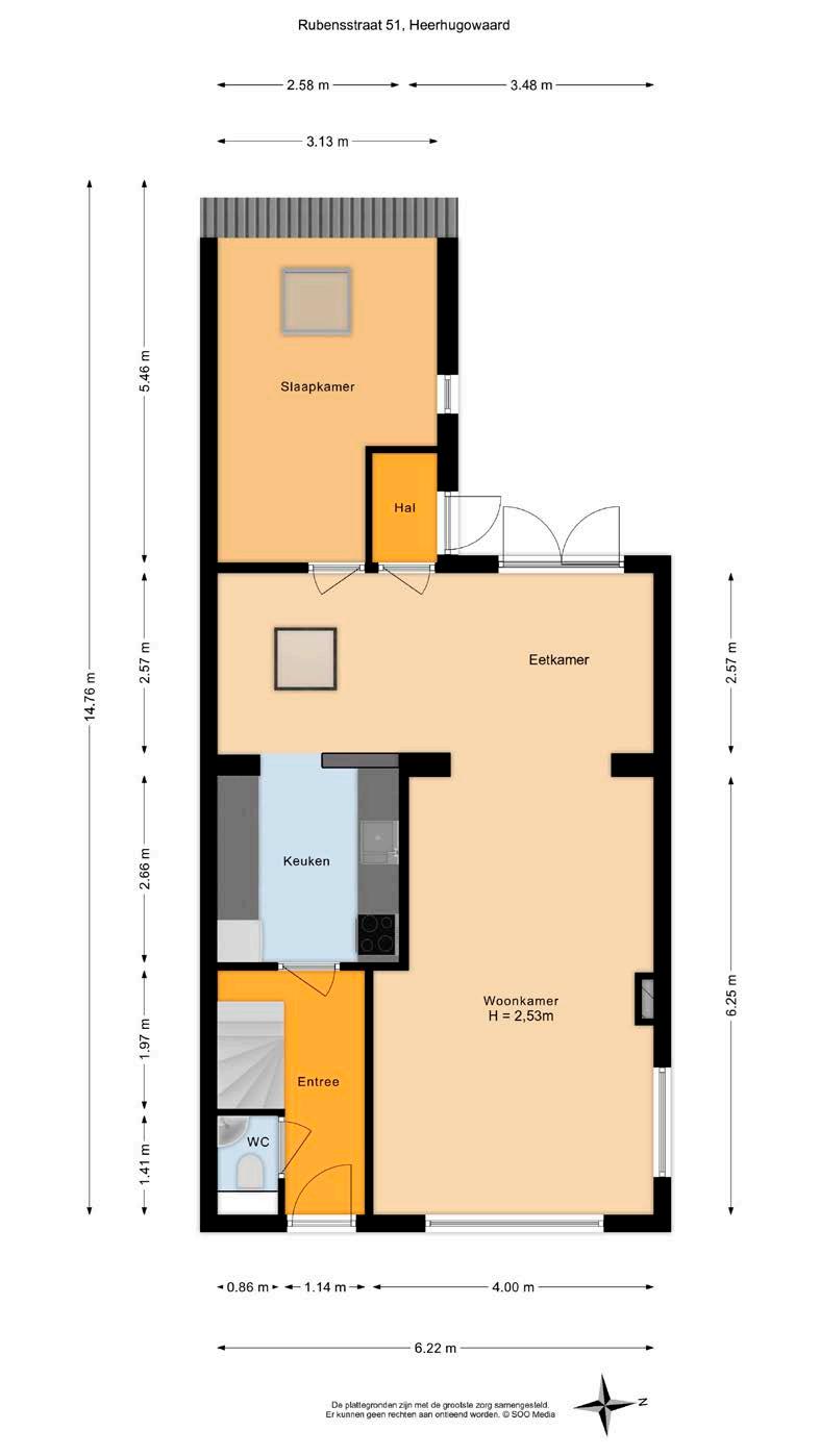
eengezinswoning 2-onder-1-kapwoning 6 126 m² 361 m² 470 m³ 1969 achtertuin, voortuin, zijtuin vrijstaand steen, parkeerplaats, garage met carport c.v.-ketel, vloerverwarming gedeeltelijk, warmtepomp, houtkachel dakisolatie, vloerisolatie, dubbel glas B

De in deze brochure getoonde informatie wordt door Hoekstra & van Eck makelaardij met zorg samengesteld, doch voor de juistheid en volledigheid daarvan kan niet worden ingestaan en kunnen hieraan geen rechten worden ontleend. Spel- en typefouten voorbehouden. De plattegronden zijn geproduceerd voor promotionele doeleinden en ter indicatie. Er kunnen geen rechten aan worden ontleend. Maten zijn niet eigenhandig opgemeten. Indien er twijfel bestaat over de accuratie van de gegevens aangaande deze brochure, is de geïnteresseerde zelf verantwoordelijk voor het nameten van deze gegevens. Voor meer informatie wordt u doorverwezen naar www.hoekstraenvaneck.nl

Verkoper vertelt

Wonen in een riante energiezuinige 2-onder-1 kapwoning met garage, carport en zéér diepe achtertuin (westen) achter de Middenweg te Heerhugowaard. Je vindt het aan de Rubensstraat!

Een fijne plek in een rustige en kindvriendelijke buurt.

Veel voorzieningen in de omgeving en op loopafstand van Berckheideplein met divers winkelaanbod. In mum van tijd de Provinciale weg op richting Obdam en Hoorn.

Ongetwijfeld voor veel mensen een mooie kans om dat ook te kunnen gaan ervaren!

Te koop bij
Heerhugowaard: Stationsplein 34-36, T 072 - 201 01 13

Ruime woonkamer

welkom thuis!

nette keuken

De ruime woonkamer is zo ingedeeld dat jij jouw fantasie de vrije loop kunt laten. De ruimte is voorzien van een fijne lichtinval dankzij het grote raam aan de voorzijde. In de woonkamer heb je voldoende ruimte voor een grote zithoek en in de eetkamer kun je een grote eettafel plaatsen.

De nette hoogglans rode keuken is voorzien van een granieten aanrechtblad, elektrische oven, 1.5 spoelbak, vaatwasser, inductiekookplaat, afzuigkap en een Quooker.

Wij blijven nog even op de benedenverdieping. Hier is namelijk in de uitbouw aan de achterzijde een (kantoor)ruimte gesitueerd, de ruimte is eveneens ideaal te gebruiken als extra slaapkamer op de begane grond. De ruimte is uitgerust met een wastafel met warm en koud wateraansluiting, maar hier zou je ook eventueel een badkamer kunnen realiseren, wat levensloopbestendig wonen mogelijk maakt.

huizen van hoekstra & van eck

Royale slaapkamers

welterusten!

vernieuwde badkamer

Via de trapopgang naar de eerste verdieping krijg je toegang tot de overloop met 2 slaapkamers, de badkamer en de wasruimte met separaat toilet met fontein en de aansluiting voor de wasmachine en de droger. Deze 2 slaapkamers zijn voorzien van een laminaatvloer en deels behang/schilderwerk op de wanden. Op de tweede verdieping is de 4e en tevens laatste slaapkamer gerealiseerd. Deze kamer is voorzien van knieschotten en een dakkapel aan de achterzijde. De CV-ketel (Intergas, 2018), bevindt zich op de voorzolder.

De badkamer is in 2018 vernieuwd en bevindt zich aan de achterzijde van de woning. De ruimte is uitgerust met een spiegelplafond, wastafelmeubel, royale douchehoek met hand- en rainshower en een radiator.

huizen van hoekstra & van eck

veel opbergruimte energiezuinig

De woning beschikt over een garage waardoor je aan opbergruimte niets te kort zult komen. Grenzend aan de garage vind je de carport waardoor je ten alle tijde jouw auto droog kunt stallen. De woning is zeer energiezuinig dankzij de 17 zonnepanelen en 2 omvormers. Het dak van de carport bestaat uit 9 zonnepanelen (2019) en op de garage liggen er nog eens 8 (2016).

Garage en carport

huizen van hoekstra & van eck

Diepe tuin

besloten tuin

kindvriendelijke wijk

Aan de achterzijde van de woning vind je een heerlijk diepe en besloten tuin. De tuin ligt op het westen waardoor je de hele middag en avond van de zon kunt genieten. Tevens vind je in de tuin nog een riante berging waar de wateropvang van de beregeningsinstallatie staat opgesteld.

De woning ligt in de kindvriendelijke en rustige Schilderswijk in Heerhugowaard, op steenworp afstand van het Berckheideplein. Daarnaast bevinden zich diverse voorzieningen, zoals winkelcentrum Middenwaard, diverse basisscholen, sportfaciliteiten en openbaar vervoer op loopafstand. Heerhugowaard is een levendige en populaire stad met alle gemakken binnen handbereik. De locatie is ideaal als je van een groene omgeving houdt.

huizen van hoekstra & van eck
Rubensstraat 51 1701 JG Heerhugowaard
Rubensstraat 51 1701 JG Heerhugowaard
Rubensstraat 51 1701 JG Heerhugowaard

Heerhugowaard

Heerhugowaard, ook wel de Stad van de Kansen genoemd is een groeigemeente. Er zijn veel verschillende wijken in Heerhugowaard en hier komen nog steeds nieuwe wijken bij. Zo heb je in het zuiden de welbekende Stad van de Zon, in het westen de Broekhorn en aan de noordoostzijde De Draai.

Ondanks de mooie landelijke ligging mag Heerhugowaard zich toch zeker een stad noemen. In het moderne stadshart vind je het grootste overdekte winkelcentrum van Noord-Holland, Middenwaard. Hier kun je terecht voor een zeer ruim en compleet winkelaanbod. Ook vind je hier in de buurt vele goede restaurants, gezellige terrassen, een bioscoop, de bowling en het moderne theater Cool. Kortom, voor iedereen is er wel iets te vinden in Heerhugowaard.

Verder vind je in Heerhugowaard vele verschillende sportfaciliteiten, dependance van het Noordwest ziekenhuis, diverse onderwijsinstellingen en veel recreatiemogelijkheden in het grote parkbos “het Waardenhout”, het Strand van Luna en het Park van Luna.

heerlijk wonen in Heerhugowaard
noorden kadastrale kaart

Lokaal makelaarschap

Wij geloven sterk in lokaal makelaarschap. Kennis van de buurt, de omgeving en de daarbij behorende ontwikkeling van de huizenprijzen zijn onmisbaar om voor jou het maximale resultaat te boeken.

Met Hoekstra & van Eck kies je voor: • makelaars die al jarenlang verbonden zijn met de regio • kennis van de lokale woningmarkt • een verkoopplan afgestemd op jouw woning • maximale exposure van je huis

bezichtigingen ook in het weekend

netwerk met honderden woningzoekers

Verkoop je je huis met Hoekstra & van Eck dan ben je met de eigen app 24/7 op de hoogte van het verkoopproces. Bezichtigingsverzoeken bereiken je direct en beantwoord je snel en discreet op het moment dat het jou uitkomt.

Ook je huis verkopen? Onze makelaars komen graag en vrijblijvend bij je langs. We maken dan direct een gratis waardebepaling. Hoekstra & van Eck werkt op basis van no cure no pay. En betalen doe je pas bij verkoop. Stationsplein 34-36 072 - 201 01 13 heerhugowaard@hoekstraenvaneck.nl www.hoekstraenvaneck.nl

onze makelaarskantoren huizen van hoekstra & van eck
Ook je huis verkopen? WhatsApp de foto’s en het adres van je woning naar 06 13 18 43 41 en ontvang een gratis waardebepaling! WHATSAPP FOTO’S WONING ADRES WAARDE + + = Stationsplein 34-36 072 - 201 01 13 heerhugowaard@hoekstraenvaneck.nl www.hoekstraenvaneck.nl

Turn static files into dynamic content formats.

Create a flipbook
Issuu converts static files into: digital portfolios, online yearbooks, online catalogs, digital photo albums and more. Sign up and create your flipbook.