Lepelaarpark 17, Purmerend

Page 1

Lepelaarpark 17 , 1444 HR Purmerend Tuin rondom 6 slaapkamers Slapen en baden bg Eigen oprit Heerlijk vrijstaand wonen! Huizen vanHoekstra enVan Eck H12

Soort Type Kamers

Woonoppervlakte

Perceeloppervlakte

Inhoud Bouwjaar Tuin Garage Verwarming Isolatie

Energielabel

Kenmerken eengezinswoning vrijstaande woning 7 184 m² 487 m² 705 m³ 1973 tuin rondom, zonneterras geen garage hete lucht verwarming dakisolatie, muurisolatie, dubbel glas E

De in deze brochure getoonde informatie wordt door Hoekstra & van Eck makelaardij met zorg samengesteld, doch voor de juistheid en volledigheid daarvan kan niet worden ingestaan en kunnen hieraan geen rechten worden ontleend. Spel- en typefouten voorbehouden. De plattegronden zijn geproduceerd voor promotionele doeleinden en ter indicatie. Er kunnen geen rechten aan worden ontleend. Maten zijn niet eigenhandig opgemeten. Indien er twijfel bestaat over de accuratie van de gegevens aangaande deze brochure, is de geïnteresseerde zelf verantwoordelijk voor het nameten van deze gegevens. Voor meer informatie wordt u doorverwezen naar www.hoekstraenvaneck.nl

Verkoper vertelt

Onze ouders hebben dit huis in eigen beheer volledig naar wens kunnen bouwen, in samenwerking met een goede architect en een solide aannemer is een zeer degelijk huis gerealiseerd. In de jaren 70 hebben we onze tiener jaren in dit fijne grote huis doorge bracht.

Altijd ruimte voor gezelligheid en door het grote aan tal slaapkamers ook veel ruimte voor rust en privacy. Vanaf de jaren 80 hebben onze ouders hier nog vele jaren met heel veel plezier samen gewoond, het Le pelaarpark is een groene oase. Ook in deze jaren was het huis altijd groot genoeg voor familiebijeenkom sten en kregen de kleinkinderen en achterkleinkinde ren alle ruimte om te spelen en te logeren.

20 jaar geleden is de garage omgebouwd tot een zeer comfortabele, levensloopbestendige slaapka mer met eigen badkamer. Hiermee was het mogelijk dat het huis door de oorspronkelijke bewoners bijna 50 jaar in gebruik is geweest.

Na het overlijden van onze ouders verkopen wij (2 zonen) met een beetje weemoed het huis en hopen dat de nieuwe bewoners er met heel veel plezier kunnen gaan wonen.

Te koop bij
Purmerend: Waterlandlaan 88, T 0299 - 47 20 21

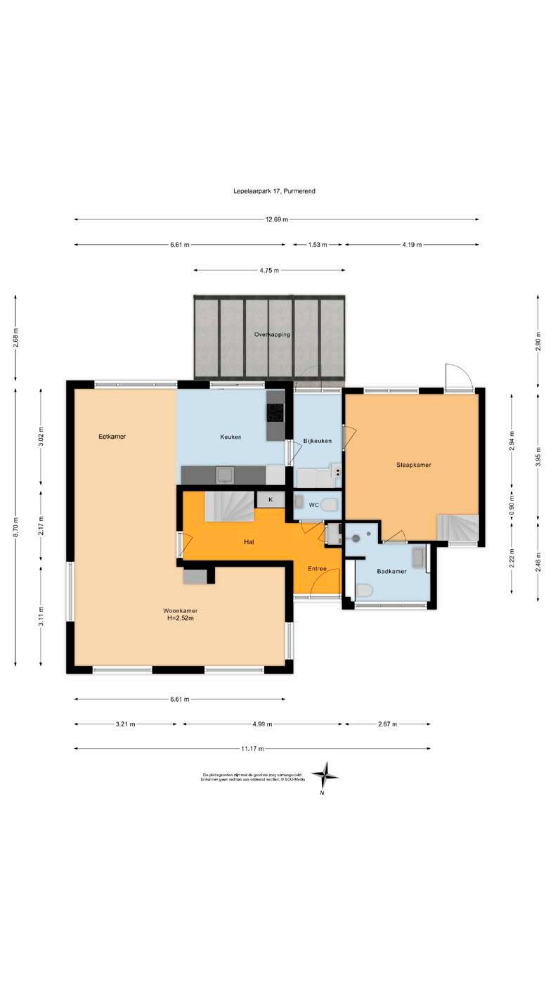
Op de eigen oprit parkeert u uw auto en via de entree aan de voorzijde stapt u de woning binnen. Hier komt u in de hal met de meterkast, het toilet, garderobekast en de trapopgang naar de eerste verdieping. Uiteraard vindt u hier ook de toegang tot de woonkamer.

De zeer ruime woonkamer heeft een aangename lichtinval en de open haard geeft direct veel sfeer! Momenteel is de ruimte afgewerkt met tapijt op de vloer en neutrale kleuren op de wanden, maar de nieuwe bewoners kunnen hier geheel hun eigen invulling aan geven.

sfeervolle haard
Aangename
lichtinval
veel ruimte
huizen van hoekstra & van eck

Neem plaats

complete keuken handige bijkeuken

Grenzend aan het woongedeelte treft u een groot eetgedeelte en de open keuken. Ook hier weer veel ramen die een leuk zicht op de tuin geven. De keuken beschikt over voldoende kast- en werkruimte en daarnaast is deze voorzien van een keramische kookplaat, afzuigkap, oven en een vaatwasser.

Vanuit de keuken heeft u toegang tot een handige bijkeuken, waarin zich de aansluitingen voor het witgoed bevinden.

huizen van hoekstra & van eck

slaapkamers

slaapkamer op de bg aangenaam licht

De bijkeuken geeft vervolgens toegang tot de voor malige garage, waarin nu een grote slaapkamer met aangrenzend een badkamer zijn gerealiseerd. Indien gewenst, is het mogelijk om deze ruimtes weer terug te brengen tot garage.

De slaapkamer is van een groot formaat, heeft een nette afwerking en via een deur heeft u toegang tot de tuin. Een trap in deze slaapkamer geeft je toegang tot de bergzolder.

Vanaf de overloop op de eerste verdieping heeft u toegang tot drie slaapkamers waarvan één met badkamer en-suite en nog een derde badkamer.

De slaapkamers zijn ieder van een goed formaat, hebben een prima afwerking en zijn aangenaam licht.

6
huizen van hoekstra & van eck

3 badkamers

Begane grond

De badkamer is voorzien van een toilet, douche en een wastafelmeubel.

Eerste verdieping

De badkamer en-suite is voorzien van een wastafel en een douche. De andere badkamer, toegankelijk vanaf de overloop, heeft een toilet, wastafel en een douche.

Even afspoelen goed onderhouden
huizen van hoekstra & van eck

Wat een ruimte

mogelijkheden prettige lichtinval

Via een vaste trap komt u op de overloop van de tweede verdieping, die u toegang geeft tot nog eens twee slaapkamers. Met zes slaapkamers in totaal is deze woning uitermate geschikt voor grote gezinnen!

huizen van hoekstra & van eck

genieten

De royale achtertuin is aangelegd met veel groen, bestrating en direct achter de woning een gezel lige overkapping. Een heerlijke plek om even tot rust te komen na een lange dag.

Verder bent u hier voorzien van een elektrisch zon nescherm en een verouderde, houten berging.

Groene tuin
huizen van hoekstra & van eck
veel privacy
Lepelaarpark 17 1444 HR Purmerend
Lepelaarpark 17 1444 HR Purmerend
Lepelaarpark 17 1444 HR Purmerend
Lepelaarpark 17 1444 HR Purmerend
Lepelaarpark 17 1444 HR Purmerend

Purmerend

De stad Purmerend is omgeven door polders, zoals de Purmer, Beemster en Wormer. De stad werd het marktcen trum van de omgeving, maar het bevolkingsaantal groeide langzaam. Pas na 1960 is de bevolking gegroeid van on geveer 10.000 naar ongeveer 80.000 inwoners. De stad ligt gunstig ten opzichte van Amsterdam waar veel inwoners, vaak voormalig inwoners van de hoofdstad, werken. Purme rend noemt zich met recht al jarenlang Marktstad, maar was in 2003 ook vernoemd tot Kermisstad van Nederland.

Naast de kermis is Purmerend vooral bekend om haar (vee-)markten. Na de vele veeziekten tussen 1995 en 2001 is de koe -en schapenmarkt niet meer in de openlucht toegestaan. De veemarkt is daarop verplaatst van het cen trum naar industrieterrein, en is in private handen overge gaan. Purmerend beschikt over hoogwaardig busvervoer en ligt aan de spoorlijn Hoofddorp - Schiphol - Zaandam –Enkhuizen. Dit zorgt voor een uitstekende openbaar vervoer verbinding naar Amsterdam en omstreken. Ruim 60% van de totale woon-werk-pendel uit Purmerend gaat per auto. Richting Amsterdam zijn er twee ontsluitingswegen: De A7 en de provinciale weg N235 (Jaagweg).

heerlijk
wonen in Purmerend
noorden kadastrale kaart

Lokaal makelaarschap

Wij geloven sterk in lokaal makelaarschap. Kennis van de buurt, de omgeving en de daarbij behorende ontwikkeling van de huizenprijzen zijn onmisbaar om voor jou het maximale resultaat te boeken.

Met Hoekstra & van Eck kies je voor:

makelaars die al jarenlang verbonden zijn met de regio

kennis van de lokale woningmarkt

een verkoopplan afgestemd op jouw woning

maximale exposure van je huis

bezichtigingen ook in het weekend

netwerk met honderden woningzoekers

Verkoop je je huis met Hoekstra & van Eck dan ben je met de eigen app 24/7 op de hoogte van het verkoopproces. Bezichtigingsverzoeken bereiken je direct en beantwoord je snel en discreet op het moment dat het jou uitkomt.

Ook je huis verkopen? Onze makelaars komen graag en vrijblijvend bij je langs. We maken dan direct een gratis waardebepaling. Hoekstra & van Eck werkt op basis van no cure no pay. En betalen doe je pas bij verkoop.

Waterlandlaan 88 0299 - 47 20 21 purmerend@hoekstraenvaneck.nl www.hoekstraenvaneck.nl

onze makelaarskantoren huizen
van
hoekstra & van eck
Ook je huis verkopen? WhatsApp de foto’s en het adres van je woning naar 06 13 18 43 41 en ontvang een gratis waardebepaling! WHATSAPP FOTO’S WONING ADRES WAARDE + + = Waterlandlaan 88 0299 - 47 20 21 purmerend@hoekstraenvaneck.nl www.hoekstraenvaneck.nl

Turn static files into dynamic content formats.

Create a flipbook
Issuu converts static files into: digital portfolios, online yearbooks, online catalogs, digital photo albums and more. Sign up and create your flipbook.