Jisperweg 112a, Westbeemster

Page 1


Huizen van Hoekstra enVan Eck

Instapklaar

Vrij uitzicht

Energielabel A++

Landelijk gelegen

Soort eengezinswoning

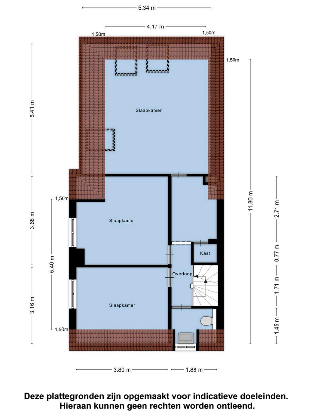
Type 2-onder-1-kapwoning Kamers 6

Woonoppervlakte 128 m²

Perceeloppervlakte 345 m²

Inhoud 484 m³

Bouwjaar 1958

Tuin achtertuin, voortuin, zijtuin

Garage geen garage

Verwarming c.v.-ketel, warmtepomp, houtkachel

Isolatie volledig geïsoleerd

Energielabel A++

De in deze brochure getoonde informatie wordt door Hoekstra & van Eck makelaardij met zorg samengesteld, doch voor de juistheid en volledigheid daarvan kan niet worden ingestaan en kunnen hieraan geen rechten worden ontleend. Spel- en typefouten voorbehouden. De plattegronden zijn geproduceerd voor promotionele doeleinden en ter indicatie. Er kunnen geen rechten aan worden ontleend. Maten zijn niet eigenhandig opgemeten. Indien er twijfel bestaat over de accuratie van de gegevens aangaande deze brochure, is de geïnteresseerde zelf verantwoordelijk voor het nameten van deze gegevens. Voor meer informatie wordt u doorverwezen naar www.hoekstraenvaneck.nl

Verkoper vertelt

Het is een heerlijk huis om in te wonen. Het heeft een vrij uitzicht, voelt als buiten en is dichtbij de Middenbeemster en Purmerend.

Het huis oogt van buiten vriendelijk met eigen brug. Van binnen is het huis ruim, met een grote woonkeuken met uitzicht op de tuin en de weilanden. De ruime achtertuin staat de hele zomer in bloei. De omgeving is rustig.

Purmerend: Waterlandlaan 88, T 0299 - 47 20 21

huizen van hoekstra & van eck

wat maak jij klaar?

Open keuken lekker tafelen

De open keuken is perfect voor wie van koken houdt, en de woonkamer biedt ruimte voor ontspanning.

huizen

Instapklaar

netjes afgewerkt instapklaar

Binnen vind je een functionele en moderne indeling. De open woonruimtes zijn praktisch en uitnodigend, ideaal voor dagelijks leven en gezelligheid. Alles is al netjes afgewerkt, zodat je alleen nog maar je spullen hoeft mee te nemen en kunt beginnen met genieten van je nieuwe huis.

Lekker ontspannen

3 slaapkamers

spoel de dag af

De drie slaapkamers en het tweede toilet op de verdieping zorgen voor genoeg ruimte, of je nu op zoek bent naar een plek voor het gezin, een thuiskantoor of iets anders.

Stap na een drukke dag de badkamer in die is gelegen op de begane grond om lekker te ontspannen.

Vrij

landelijk gelegen

geniet van de rust

De tuin op het zuidoosten is een fijne plek voor allerlei activiteiten. Of je nu wilt ontspannen met een boek of een middagje barbecueën met vrienden, de tuin biedt volop mogelijkheden.

Hoewel de woning landelijk ligt, zijn alle nodige voorzieningen binnen handbereik. Je hebt hier de rust van het platteland én de gemakken van de stad binnen bereik. Of je nu een wandeling wilt maken in de natuur of even naar de stad wilt, hier kan het allebei.

Westbeemster

Westbeemster is een dorp in de gemeente Beemster, in de Nederlandse provincie Noord-Holland. Van oudsher is Westbeemster een katholieke enclave in de protestantse droogmakerij Beemster. Al in de eerste helft van de zeventiende eeuw ontstonden enkele schuilkerken in de stolpboerderijen in het westelijk deel van de Beemster. In 1752 waren er ruim 500 communicanten en werd in Westbeemster een kleine kerk gebouwd, gewijd aan Johannes de Doper.

Verdere dorpsvoorzieningen in die tijd als een dokter en het postkantoor ontbraken. Westbeemster groeide wel rondom de kerk in de jaren 1950. Vanaf 1958 groeide Westbeemster niet veel meer. Dit vooral door het besluit van de provincie Noord-Holland om de rem op verdere uitbreiding te zetten.

De Beemster is uniek in zijn vorm en werd in 1999 op de UNESCO werelderfgoedlijst geplaatst.

heerlijk wonen in Westbeemster
noorden kadastrale kaart

HEERHUGOWAARD

ALKMAAR LANDSMEER

Lokaal makelaarschap

Wij geloven sterk in lokaal makelaarschap. Kennis van de buurt, de omgeving en de daarbij behorende ontwikkeling van de huizenprijzen zijn onmisbaar om voor jou het maximale resultaat te boeken.

Met Hoekstra & van Eck kies je voor:

• makelaars die al jarenlang verbonden zijn met de regio

• kennis van de lokale woningmarkt

• een verkoopplan afgestemd op jouw woning

• maximale exposure van je huis

• bezichtigingen ook in het weekend

• netwerk met honderden woningzoekers

Verkoop je je huis met Hoekstra & van Eck dan ben je met de eigen app 24/7 op de hoogte van het verkoopproces. Bezichtigingsverzoeken bereiken je direct en beantwoord je snel en discreet op het moment dat het jou uitkomt.

Ook je huis verkopen? Onze makelaars komen graag en vrijblijvend bij je langs. We maken dan direct een gratis waardebepaling. Hoekstra & van Eck werkt op basis van no cure no pay. En betalen doe je pas bij verkoop.

Waterlandlaan 88 0299 - 47 20 21 purmerend@hoekstraenvaneck.nl www.hoekstraenvaneck.nl

HOORN

PURMEREND ZAANDAM

(2x)

A’DAM WEST

HOOFDDORP HAARLEM

LEIDEN

MONNICKENDAM

A’DAM NOORD

AMSTERDAM

AMSTELVEEN

VLEUTEN DE MEERN

ALMERE

BUSSUM

HILVERSUM

MAARSSEN

UTRECHT

AMERSFOORT

(2x) (2x)

NIEUWEGEIN WIJK BIJ DUURSTEDE

MEPPEL

ZWOLLE

APELDOORN

ARNHEM

(2x)

NIJMEGEN

‘S-HERTOGENBOSCH

BREDA

TILBURG

EINDHOVEN

WEERT

ROERMOND

WhatsApp de foto’s en het adres van je woning naar 06 13 18 43 41 en ontvang een gratis waardebepaling!

Turn static files into dynamic content formats.

Create a flipbook
Issuu converts static files into: digital portfolios, online yearbooks, online catalogs, digital photo albums and more. Sign up and create your flipbook.
Jisperweg 112a, Westbeemster by Hoekstra en van Eck Makelaars - méér makelaar - - Issuu