James Stewartstraat 174, Almere

Page 1

Huizen van Hoekstra enVan Eck

Gelijkvloers wonen

Complex met lift

Vrij uitzicht op Lumièrepark

Zonnig balkon

Voorzieningen nabij

James Stewartstraat 174 , 1325 JK Almere
H19

Soort

Kamers

Woonoppervlakte

Inhoud

Bouwjaar

Tuin

Garage

Verwarming

Isolatie

Energielabel

Kenmerken

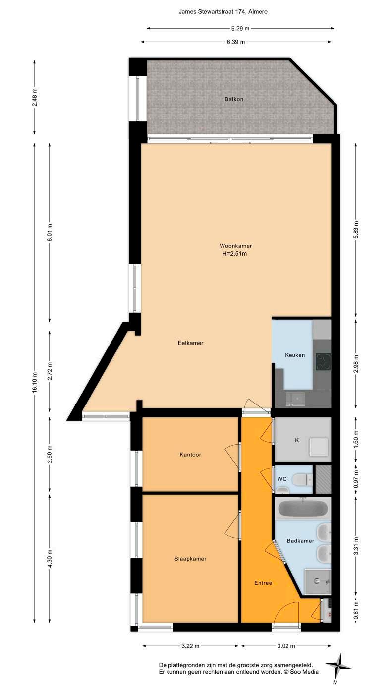
portiekflat 3

105 m²

345 m³

1992 geen tuin

geen garage

stadsverwarming

volledig geïsoleerd A

De in deze brochure getoonde informatie wordt door Hoekstra & van Eck makelaardij met zorg samengesteld, doch voor de juistheid en volledigheid daarvan kan niet worden ingestaan en kunnen hieraan geen rechten worden ontleend. Spel- en typefouten voorbehouden. De plattegronden zijn geproduceerd voor promotionele doeleinden en ter indicatie. Er kunnen geen rechten aan worden ontleend. Maten zijn niet eigenhandig opgemeten. Indien er twijfel bestaat over de accuratie van de gegevens aangaande deze brochure, is de geïnteresseerde zelf verantwoordelijk voor het nameten van deze gegevens. Voor meer informatie wordt u doorverwezen naar www.hoekstraenvaneck.nl

Verkoper vertelt

Wat het zo plezierig maakt om in dit comfortabele appartement te wonen is de fijne ligging bij het park en dichtbij het centrum met alle voorzieningen.

De zeer ruime en lichte woonkamer met hoekligging zorgt voor uitzicht naar verschillende kanten. Via de grote schuifpui kom je op het balkon waar je met meerdere mensen kan dineren of relaxen.

Het gebouw is zeer goed onderhouden en bovendien zijn door de goede isolatie de energiekosten prettig laag.

Te koop bij
Almere: Midwaystraat 3, T 036 - 538 32 90

Welkom thuis!

3e verdieping

trap/lift aanwezig

Op de begane grond bevindt zich de afgesloten centrale entree met extra elektrische toegangsdeur, de brievenbussen, inpandig bellentableau en videofooninstallatie, het trappenhuis en de lift waarmee u de verschillende etages kunt bereiken. Zo ook nummer 174 op de 3e verdieping!

Verder vindt u op de begane grond nog een privé berging met stroompunten en een gemeenschappelijke fietsenberging. Alles is ruim opgezet en keurig verzorgd

De grote gemeenschappelijke hal op de 3e verdieping met veel daglicht brengt u bij de voordeur van het appartement . Daar achter de hal, met kleding nis, en toegang tot alle vertrekken.

huizen van hoekstra & van eck

Ga lekker zitten

veel lichtinval

ruim opgezet

Zodra u de zeer grote woonkamer binnenkomt wordt u aangenaam verrast door de hoeveelheid licht en ruimte, dit komt mede door de grote raampartijen. U kunt hier de ruimte op verschillende manieren indelen. Er is meer dan voldoende ruimte om een comfortabele zithoek voor de tv te plaatsen waar u kunt genieten van het prachtige uitzicht. De afwerking bestaat uit spachtelputz op de wanden en het hele appartement is voorzien van een nette en goede kwaliteit laminaat vloer.

Aan de woonkamer grenst het ruime balkon en is bereikbaar via de twee grote schuifdeuren.

huizen van hoekstra & van eck

Lekker kokkerellen

praktische opstelling

fijne eethoek

Aansluitend bevindt zich de open keuken. Deze is geplaatst in een praktische L-opstelling en u beschikt je over voldoende kast- en werkruimte. De keuken is momenteel ingedeeld met een 4 pits elektrische kookplaat, combi magnetron en een koelkast.

Grenzend aan de keuken is er een eethoek gecreeerd.

huizen van hoekstra & van eck

Eventjes ontspannen

2 slaapkamers

verzorgde badkamer

In het appartement zijn er 2 slaapkamers aanwezig. Beide vertrekken zijn van een prima formaat en hebben een nette afwerking. De kleinere slaapkamer wordt momenteel gebruikt als werkkamer maar deze kunt u natuurlijk ook in gebruik nemen als slaapkamer of kastenkamer.

De badkamer is van grond tot plafond betegeld met een witte vloer- en wandtegel, hierdoor oogt de ruimte verzorgd. De indeling bestaat uit twee wastafels, een bad en een douchecabine. Het toilet is gescheiden van de badkamer en bevindt zich aan de hal. Hiernaast vindt u ook de witgoedaansluiting in een aparte kast die tevens kan dienen als bergkast.

huizen van hoekstra & van eck

op het zuiden

genieten!

Middels de woonkamer verlenen de schuifdeuren toegang tot het ruime balkon. De balkonvloer is geheel voorzien van praktische plavuizen en er is meer dan voldoende plek om een gezellige lounge plek te creëren. Het balkon is geheel vrij gesitueerd op het zuidoosten en u kijkt uit op het park.

huizen van hoekstra & van eck
Riant balkon
James Stewartstraat 174 1325 JK Almere
James Stewartstraat 174 1325 JK Almere

Almere

De straten en parken in Filmwijk zijn vernoemd naar personen en begrippen met een link naar de filmindustrie.

Hoe oud je ook bent, Almere is the place to be! Dit komt doordat Almere erg divers is. Natuur voor de natuurliefhebbers, water voor de watersporters, architectuur voor de architectuurliefhebbers en vele bezienswaardigheden, neem de Oostvaardersplassen, Almere Centrum en evenementen zoals Strandfestival “ZAND” en het “Almere Haven festival”.

Voor iedereen is er wel wat te doen in Almere. De stad trekt steeds meer toeristen en is een multiculturele stad, die volop aan het groeien is. Verder zijn de mogelijkheden met het openbaar vervoer uitstekend geregeld en met de auto ben je altijd binnen 10 minuten op de ringweg A6.

Almere Stad is een stadsdeel van de gemeente Almere in de Nederlandse provincie Flevoland. De eerste huizen in Almere Stad werden opgeleverd in 1980. Naast Almere Centrum heeft het stadsdeel nog twee stations, namelijk Almere Parkwijk en Almere Muziekwijk in de gelijknamige wijken.

heerlijk wonen in Almere

noorden kadastrale kaart

Lokaal makelaarschap

Wij geloven sterk in lokaal makelaarschap. Kennis van de buurt, de omgeving en de daarbij behorende ontwikkeling van de huizenprijzen zijn onmisbaar om voor jou het maximale resultaat te boeken.

Met Hoekstra & van Eck kies je voor:

• makelaars die al jarenlang verbonden zijn met de regio

• kennis van de lokale woningmarkt

• een verkoopplan afgestemd op jouw woning

• maximale exposure van je huis

• bezichtigingen ook in het weekend

• netwerk met honderden woningzoekers

Verkoop je je huis met Hoekstra & van Eck dan ben je met de eigen app 24/7 op de hoogte van het verkoopproces. Bezichtigingsverzoeken bereiken je direct en beantwoord je snel en discreet op het moment dat het jou uitkomt.

Ook je huis verkopen? Onze makelaars komen graag en vrijblijvend bij je langs. We maken dan direct een gratis waardebepaling. Hoekstra & van Eck werkt op basis van no cure no pay. En betalen doe je pas bij verkoop.

Midwaystraat 3 036 - 538 32 90 almere@hoekstraenvaneck.nl www.hoekstraenvaneck.nl

onze makelaarskantoren huizen van hoekstra & van eck
Ook je huis verkopen? WhatsApp de foto’s en het adres van je woning naar 06 13 18 43 41 en ontvang een gratis waardebepaling! WHATSAPP FOTO’S WONING ADRES WAARDE + + = Midwaystraat 3 036 - 538 32 90 almere@hoekstraenvaneck.nl www.hoekstraenvaneck.nl

Turn static files into dynamic content formats.

Create a flipbook
Issuu converts static files into: digital portfolios, online yearbooks, online catalogs, digital photo albums and more. Sign up and create your flipbook.
James Stewartstraat 174, Almere by Hoekstra en van Eck Makelaars - méér makelaar - - Issuu