Binnenhof 218, Almere

Page 1

Huizen van Hoekstra enVan

Binnenhof 218 , 1354 KW Almere Voorzieningen nabij Almere Haven Snel opleverbaar Hoe richt jij het in? 3 kamer appartement
H19
Eck

Soort Kamers Woonoppervlakte Inhoud Bouwjaar Tuin Garage Verwarming Isolatie

Kenmerken

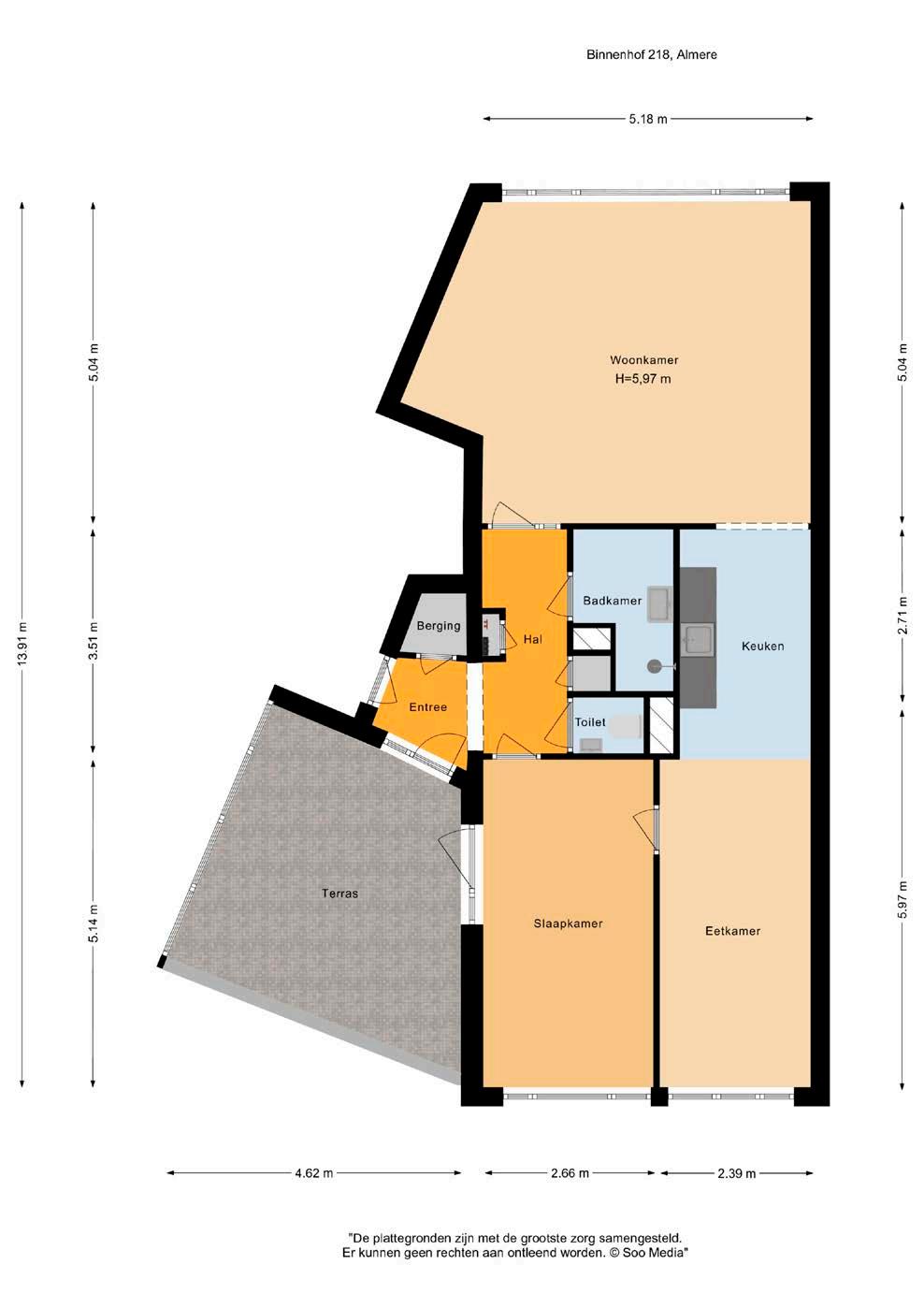
portiekflat 2 77 m² 255 m³ 1979 geen tuin geen garage c.v.-ketel volledig geïsoleerd

De in deze brochure getoonde informatie wordt door Hoekstra & van Eck makelaardij met zorg samengesteld, doch voor de juistheid en volledigheid daarvan kan niet worden ingestaan en kunnen hieraan geen rechten worden ontleend. Spel- en typefouten voorbehouden. De plattegronden zijn geproduceerd voor promotionele doeleinden en ter indicatie. Er kunnen geen rechten aan worden ontleend. Maten zijn niet eigenhandig opgemeten. Indien er twijfel bestaat over de accuratie van de gegevens aangaande deze brochure, is de geïnteresseerde zelf verantwoordelijk voor het nameten van deze gegevens. Voor meer informatie wordt u doorverwezen naar www.hoekstraenvaneck.nl

Verkoper vertelt

Makelaar vertelt:

Ben jij een starter op de woningmarkt, ben je handig en op zoek naar een fijn appartement dat snel opleverbaar is? Dan stopt hier de zoektocht en maak kennis met het Binnenhof 218 in Almere.

De woning dient nog volledig naar eigen smaak en stijl te worden afgewerkt en ingericht waardoor je hier werkelijk jouw droomhuis kunt realiseren.

Te koop bij
Almere: Midwaystraat 3, T 036 - 538 32 90

lekker licht

De woonkamer is van goed formaat en wordt dankzij de grote ramen voorzien van een aangename hoeveelheid daglicht. Omdat de afwerking standaard is kun je hier direct aan de slag met de nieuwste trends en kleuren waardoor je hier straks een meer dan fijne thuishaven kunt creëren.

Lichte woonkamer
huizen van hoekstra & van eck
jouw eigen smaak en stijl

Open keuken

Vervolgens komen we in de open keuken. Ook dit betreft een standaard keukenblok die is geplaatst in een wandopstelling en is voorzien van voldoende werk- en opbergruimte. Uiteraard kunnen wij ons zo voorstellen dat je ervoor kiest om een nieuwe keuken te (laten) plaatsen in de kleur, opstelling en met de apparatuur die jij wenst.

Via de keuken kom je in de eetkamer die je eventueel om kunt bouwen tot slaapkamer.

huizen van hoekstra & van eck
plaats je droomkeuken wat maak jij vanavond?

uitgerust ontwaken

spoel de dag van je af!

Via de eetkamer kom je in de slaapkamer. Ook dit vertrek wordt voorzien van voldoende daglicht en is ook weer helemaal naar eigen smaak en stijl af te werken en in te richten. Vanuit dit vertrek heb je toegang tot het ruime terras.

De badkamer is van grond tot plafond betegeld in een lichte kleur en oogt daarmee verzorgd. De indeling bestaat uit een inloopdouche en een wastafel. Ook hier kun je een fijne ruimte creëren waar je helemaal tot rust kunt komen.

Een slaapkamer

huizen van hoekstra & van eck

fijne buitenruimte

Ruim balkon genieten!

Bij de woning hoort nog een heerlijk dakterras vanaf waar je geniet van het uitzicht over de gracht. Verder is er voldoende ruimte om een comfortabele tuin- of loungeset neer te zetten. In de onderbouw heb je nog de beschikking over een eigen berging.

huizen van hoekstra & van eck

centraal gelegen nabij voorzieningen

Dit appartement is gelegen in de wijk Almere Haven, de Hoven. De wijk is omgeven door groen en daarnaast ook kindvriendelijk waardoor je hier dus alle ruimte hebt voor je (opgroeiende) gezin. Verder kom je hier te wonen nabij het centrum, het Kromslootpark en de Dijk waar je heerlijk kunt wandelen.

Fijne woonomgeving

huizen van hoekstra & van eck
Binnenhof 218 1354 KW Almere
Binnenhof 218 1354 KW Almere

heerlijk wonen in Almere

Almere

Almere Haven is het oudste gedeelte van Almere en is opgezet als bloemkoolwijk. De eerste woningen werden opgeleverd in november 1976, toen de eerste bewoners arriveerden, destijds vooral Amsterdammers. Toen werd Almere Haven nog aan elkaar geschreven, als “Almere haven”. Bij de instelling van de gemeente Almere op 1 januari 1984 werd tevens de naam van dit stadsdeel gewijzigd.

Hoe oud je ook bent, Almere is the place to be! Dit komt doordat Almere erg divers is. Natuur voor de natuurliefhebbers, water voor de watersporters, architectuur voor de architectuurliefhebbers en vele bezienswaardigheden, neem de Oostvaardersplassen, Almere Centrum en evenementen zoals Strandfestival “ZAND” en het “Almere Haven festival”.

Voor iedereen is er wel wat te doen in Almere. De stad trekt steeds meer toeristen en is een multiculturele stad, die volop aan het groeien is. Verder zijn de mogelijkheden met het openbaar vervoer uitstekend geregeld en met de auto ben je altijd binnen 10 minuten op de ringweg A6.

noorden kadastrale kaart

Lokaal makelaarschap

Wij geloven sterk in lokaal makelaarschap. Kennis van de buurt, de omgeving en de daarbij behorende ontwikkeling van de huizenprijzen zijn onmisbaar om voor jou het maximale resultaat te boeken.

Met Hoekstra & van Eck kies je voor: • makelaars die al jarenlang verbonden zijn met de regio • kennis van de lokale woningmarkt • een verkoopplan afgestemd op jouw woning

maximale exposure van je huis

bezichtigingen ook in het weekend

netwerk met honderden woningzoekers

Verkoop je je huis met Hoekstra & van Eck dan ben je met de eigen app 24/7 op de hoogte van het verkoopproces. Bezichtigingsverzoeken bereiken je direct en beantwoord je snel en discreet op het moment dat het jou uitkomt.

Ook je huis verkopen? Onze makelaars komen graag en vrijblijvend bij je langs. We maken dan direct een gratis waardebepaling. Hoekstra & van Eck werkt op basis van no cure no pay. En betalen doe je pas bij verkoop. Midwaystraat 3 036 - 538 32 90 almere@hoekstraenvaneck.nl www.hoekstraenvaneck.nl

onze makelaarskantoren huizen van hoekstra & van eck
Ook je huis verkopen? WhatsApp de foto’s en het adres van je woning naar 06 13 18 43 41 en ontvang een gratis waardebepaling! WHATSAPP FOTO’S WONING ADRES WAARDE + + = Midwaystraat 3 036 - 538 32 90 almere@hoekstraenvaneck.nl www.hoekstraenvaneck.nl

Turn static files into dynamic content formats.

Create a flipbook
Issuu converts static files into: digital portfolios, online yearbooks, online catalogs, digital photo albums and more. Sign up and create your flipbook.