Bazillehof 115 Hoorn

Page 1


Huizen van Hoekstra enVan Eck

Twee-onder-één-kap

Inpandige garage

Fraaie uitbouw veel lichtinval

Tuin aan het water

Vier slaapkamers en vrij uitzicht achter

Soort eengezinswoning

Type geschakelde 2-onder-1-kapwoning Kamers 5

Woonoppervlakte 121 m²

Perceeloppervlakte 191 m²

Inhoud 474 m³

Bouwjaar 1998

Tuin achtertuin, voortuin

Garage aangebouwd steen, inpandig

Verwarming c.v.-ketel

Isolatie volledig geïsoleerd

Energielabel B

De in deze brochure getoonde informatie wordt door Hoekstra & van Eck makelaardij met zorg samengesteld, doch voor de juistheid en volledigheid daarvan kan niet worden ingestaan en kunnen hieraan geen rechten worden ontleend. Spel- en typefouten voorbehouden. De plattegronden zijn geproduceerd voor promotionele doeleinden en ter indicatie. Er kunnen geen rechten aan worden ontleend. Maten zijn niet eigenhandig opgemeten. Indien er twijfel bestaat over de accuratie van de gegevens aangaande deze brochure, is de geïnteresseerde zelf verantwoordelijk voor het nameten van deze gegevens. Voor meer informatie wordt u doorverwezen naar www.hoekstraenvaneck.nl

Verkoper vertelt

Al vanaf de eerste binnenkomst voelde deze woning goed aan. Een leuke indeling, met veel licht en een prachtige ligging aan het water. Nog elke keer wordt mijn blik naar buiten getrokken door het uitzicht. Door veranderingen in werk en sociaal leven doe ik mijn woning toch van de hand. Hopelijk kunnen de volgende bewoners net zo van deze fijne plek genieten!

huizen van hoekstra & van eck

fijne lichtinval

Aan de achterzijde van de woning word je aangenaam verrast door de royale uitbouw. Deze zorgt ervoor dat de woonkamer een waar lichtparadijs wordt, waar daglicht prachtig doorheen speelt. Dit is dé plek waar je ontspant na een lange dag. De woonkamer biedt middels de schuifpui toegang tot de achtertuin, een oase van rust en groen grenzend aan het water. Je kunt hier barbecueën op zomeravonden, met een glas wijn genieten van de ondergaande zon of gewoon het kabbelende water op de achtergrond horen. Dit is écht luxe wonen.

luxe keuken

moderne apparatuur

lekker kokkerellen

Aan de voorzijde van de woning vind je de open keuken, een absolute droom voor kookliefhebbers. Deze recent geplaatste keuken is uitgevoerd met een luxe uitstraling en uitgerust met moderne inbouwapparatuur. Van een uitgebreide dineravond tot een snel ontbijt in de ochtend –deze keuken biedt alles wat je nodig hebt om met plezier te koken.

huizen

4 slaapkamers

ruimte genoeg

nette badkamer

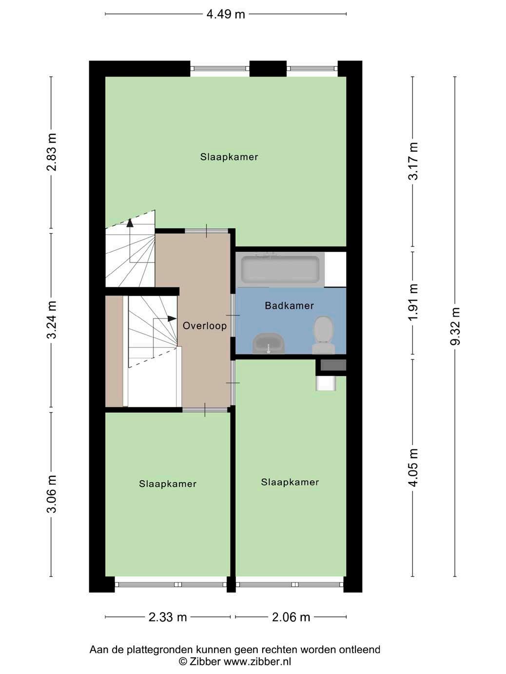
Op de eerste verdieping tref je een riante overloop die toegang biedt tot drie ruime slaapkamers. De hoofdslaapkamer, gelegen aan de achterkant van de woning, biedt een prachtig uitzicht over de tuin en het water. De nette badkamer heeft alles wat je nodig hebt: een ligbad om ultiem te ontspannen, een wastafel, een tweede toilet én een designradiator. Aan de voorzijde van deze verdieping bevinden zich nog twee slaapkamers die perfect zijn als kinder-, logeer- of werkruimte.

De tweede verdieping is net zo veelzijdig als de rest van het huis. Hier vind je een ruime vierde kamer, die kan dienen als slaapkamer, werkkamer of hobbyruimte. Daarnaast is er een aparte ruimte voor je wasmachine en droger (kan ook in de garage) en vind je er volop bergruimte voor spullen die je niet dagelijks nodig hebt. Ideaal!

heerlijk wonen in Hoorn

Hoorn

De stad aan het IJsselmeer biedt een combinatie van oud en nieuw. Monumentale gevels vertellen de geschiedenis van de voormalige VOC stad. Het stratenpatroon is voor een groot deel intact gebleven en historische gebouwen zijn in de oude vorm bewaard gebleven. De stad kent maar liefst 300 monumenten.

Hoorn heeft een geweldig stadshart met talloze winkels en eetgelegenheden. Kledingzaak of bakkerij zijn nog vaak gevestigd in een van de vele historische panden die herinneren aan Hoorn als rijke VOC stad. Ogen en oren kom je tekort in Hoorn. Niet minder dan vijf musea, pleinen, standbeelden en monumentale panden maken Hoorns geschiedenis zichtbaar en tastbaar.

De talloze onderwijsmogelijkheden, de goede gezondheidszorg en velerlei recreatiemogelijkheden zorgen inderdaad voor een aangenaam leef- en werkklimaat. De fraai aangelegde parken, de riante sportvoorzieningen, een bloeiend verenigingsleven en diverse activiteiten die vanuit de wijkcentra volop worden georganiseerd, maken van Hoorn een stad waar het ook goed recreëren is. Hoorn ligt aan de spoorlijn Zaandam – Enkhuizen en heeft twee stations: Hoorn Centrum en Hoorn Kersenboogerd. De A7 is de enige hoogwaardige autoverbinding met Amsterdam.

noorden kadastrale kaart

HEERHUGOWAARD

ALKMAAR LANDSMEER HOORN

HOOFDDORP HAARLEM (2x)

LEIDEN

Lokaal makelaarschap

Wij geloven sterk in lokaal makelaarschap. Kennis van de buurt, de omgeving en de daarbij behorende ontwikkeling van de huizenprijzen zijn onmisbaar om voor jou het maximale resultaat te boeken.

Met Hoekstra & van Eck kies je voor:

• makelaars die al jarenlang verbonden zijn met de regio

• kennis van de lokale woningmarkt

• een verkoopplan afgestemd op jouw woning

• maximale exposure van je huis

• bezichtigingen ook in het weekend

• netwerk met honderden woningzoekers

Verkoop je je huis met Hoekstra & van Eck dan ben je met de eigen app 24/7 op de hoogte van het verkoopproces. Bezichtigingsverzoeken bereiken je direct en beantwoord je snel en discreet op het moment dat het jou uitkomt.

Ook je huis verkopen? Onze makelaars komen graag en vrijblijvend bij je langs. We maken dan direct een gratis waardebepaling. Hoekstra & van Eck werkt op basis van no cure no pay. En betalen doe je pas bij verkoop.

Veemarkt 28 0229 - 27 27 12 hoorn@hoekstraenvaneck.nl www.hoekstraenvaneck.nl

PURMEREND ZAANDAM

A’DAM WEST

MONNICKENDAM

A’DAM NOORD

AMSTERDAM

ALMERE AMSTELVEEN

BUSSUM

HILVERSUM

MAARSSEN

VLEUTEN DE MEERN UTRECHT

AMERSFOORT

(2x) (2x)

NIEUWEGEIN WIJK BIJ DUURSTEDE

MEPPEL

ZWOLLE

APELDOORN

ARNHEM

(2x)

NIJMEGEN

‘S-HERTOGENBOSCH

BREDA

TILBURG

EINDHOVEN

WEERT

ROERMOND

WhatsApp de foto’s en het adres van je woning naar 06 13 18 43 41 en ontvang een gratis waardebepaling!

Turn static files into dynamic content formats.

Create a flipbook
Issuu converts static files into: digital portfolios, online yearbooks, online catalogs, digital photo albums and more. Sign up and create your flipbook.
Bazillehof 115 Hoorn by Hoekstra en van Eck Makelaars - méér makelaar - - Issuu