ARCHITECTURAL INTERNSHIP REPORT

Page 1

ARCHITECTURAL PROFESSIONAL TRAINING REPORT

"TO CREATE ONE MUST FIRST QUESTION EVERYTHING"

INTERNSHIP AT STUDIO SYMBIOSIS ARCHITECTS

INTERNSHIP LOCATION NOIDA, UTTAR PRADESH

PRINCIPAL ARCHITECT AR. AMIT GUPTA AR. BRITTA KNOBEL GUPTA

FIRM'S SPECIALIZATION PARAMETRIC ARCHITECTURE

OFFICE CONTACT +91 120 4226979 , info@studio-symbiosis.com

INTERNSHIP PERIOD FROM 8TH JUNE 2022 TO 19TH NOVEMBER 2022

STUDENT HITARTH DEV SINGH A84304018007

AMITY SCHOOL OF ARCHITECTURE AND PLANNING , LUCKNOW.

INTERNSHIP COORDINATOR DR. ARUN KAPUR AR. MADHVENDRA PRATAP SINGH

COURSE CODE APIDAPT100

ABOUT THE STUDIO STUDIO SYMBIOSIS ARCHITECTS 01 VERTO STUDIO SYMBIOSIS ARCHITECTS 02 TABLE
CONTENTS AIR PURIFICATION TOWER SUNDER NAGAR NURSERY, NEW DELHI. NOIDA, UTTAR PRADESH. 03 UMBERA HOMEZ 04 HOUSING LUDHIANA, PUNJAB. HILTON HOTEL 06 AMRITSAR, PUNJAB. M3M SMARTWORLD 79 05 HOUSING GURGAON, HARYANA. HOSPITALITY MASTER PLANNING 07 BHATINDA, PUNJAB. GROUP HOUSING CONCLUSION 08 03 04-05 06-10 11-14 15-18 19-21 22-24 25-28 29 CLIO PUNJAB, INDIA. COMMERCIAL + RETAIL
OF

ABSTRACT

THIS REPORT HAS BEEN PREPARED FOR AN INTERNSHIP I HAVE DONE WITH STUDIO SYMBIOSIS ARCHITECTS, INDIA. TO UNDERSTAND THE PRACTICAL SIDE OF THE COURSE AND THE IMPLEMENTATION OF THEORY IN A REAL FIELD WITH THE PURPOSE OF FULFILLING REQUIREMENTS OF THE COURSE OF B.ARCH ( BACHELORS IN ARCHITECTURE ).

ACKNOWLEDGEMENT

I WOULD LIKE TO EXPRESS MY SINCERE GRATITUDE TOWARDS AR. AMIT GUPTA AND AR. BRITTA KNOBEL GUPTA FOR GIVING ME THE OPPORTUNITY AS AN INTERN IN THEIR TEAM, AND GUIDING ME THROUGHTOUT MY JOURNEY INTO A WORLD OF RESPONSIBLE PRACTICE. I WOULD ALSO LIKE TO THANK THE TEAM OF STUDIO SYMBIOSIS , AR. SURAJ CHAPEKAR, AR. SONAL JAIN, AR. NITISH TALMALE, AR. AKSHAY KODOORI AND AR. GAURAV LAMBA TO NAME A FEW, FOR HELPING ME UNDERSTAND THAT ANY MINISCULE OBSERVATION CAN BE THE SEED OF A GREAT DESIGN. LASTLY I WOULD LIKE TO THANK MY PARENTS AND MY BROTHER FOR THEIR CONTINUED SUPPORT AND UNDERSTANDING ESPECIALLY DURING MY TRAINING TENURE. THE TIME I SPENT AT STUDIO SYMBIOSIS WAS DELIGHTFULLY INSPIRING ADN SUPPORTIVE TO MY CAREER THROUGH WHICH I HAVE GAINED VALUABLE WORK EXPERIENCE.

THANK YOU

04
AR. ANJAN MONDAL AR. SATPAL CHAUHAN AR. PRAVEEN RAWAT AR. GOVINDA DEY AR. RUCEVEL FRANCIS AR. SHAYAN RASHID AR AAGAM M. AR PRAJWAL KUMAR AR. NAVEEN MAGAR AR.PRIYANSH JAIN AR. GAGANDEEP SINGH VIRDI AR. ARUN C M AR. ARSHAD M. AR SEENAM BHAGAT AR. KARTIK JANGID AR ROHIT AR AKSHA SINGH AR MEETU ARORA AR BHARATI GUPTA AR JEEVESH AR ARKA GHOSH AR WILBIN WINSON AR NAITIK SHARMA HETHVETA REDDY, RIYA TEWATIA SHAURYA JINDAL ANANT JAIN ANYA GHOSH, TSERING YANGCHEN, ARNOLD, MANOJ , PANDEY JI.

Studio Symbiosis, is an architecture & design firm involved in projects of various scales and sectors. The design philosophy of the studio is to create performance driven designs for 21st century living. The firm has a diverse experience of designing and executing projects of varying scales.

The firm has 40 live projects ranging from: 890 Acres bio diversity park in Delhi (the second biggest in the world), 120 Acres Gwalior railway station, 112 Acres Bangalore railway station, sea facing towers in Versova Mumbai with a plot area of 2 acres, Hilton Kathmandu, Hilton Double Tree Ahmedabad (completed), Villa in Arizona and Hyderabad also around 7 housing projects ranging from 10 acres in Ludhiana India, Jubilee Commercial and office in Mohali, 12 acres in Hyderabad with a built-up area of 400,000 sqm, to name a few. Partners of Studio Symbiosis won “40 under 40” Asia pacific and “40 under 40” Europe respectively, Featured in Forbes 30, Spoke at TEDx Bremen Germany. The studio has won more than 50 international awards, ranging from A design award, World Architecture Community, International property awards for best hotel project in India for Double Tree by Hilton Ahmedabad, Iconic Design for Best Master plan of the year for Kanpur Riverfront Development and many more. The studio has at the moment 40 architects in India and Germany. Digital tools and techniques are embedded in the firm's design philosophy to create an integrated approach from design to execution.

AR. AMIT GUPTAAR. BRITTA KNOBEL GUPTA VERSOVA HOUSING MUMBAI FLOATING TERRACESHYDERABAD SKYRISE - HYDERABAD KD45 VILLA - DEHI NCR DESERT FLOWER - VILLA - PHOENIX | ARIZONA US ALLAHABAD MASTERPLAN 1500 ACRES GWALIOR RAILWAY STATION 130 ACRES PIXEL HOUSING - HYDERABAD ECO PARK 890 ACRESDELHI TRANS GANGA MASTERPLAN -1200 ACRESHILTON KATHMANDU ID ORIGINSMUMBAI CENTRAL MIXED USE - ANDHERIMUMBAI
credits : STUDIO SYMBIOSIS ARCHITECTS INDIA GERMANY LONDON 05
BANGALORE RAILWAY STATION

More than 99% of people living in urban areas are exposed to air quality levels that exceed the World Health Organization (WHO) limits. Air pollution has become a serious health issue across the globe. As urban air quality declines, the risk of stroke, heart disease, lung cancer, and chronic and acute respiratory diseases, including asthma, increases for the people who live in them.

STUDIO SYMBIOSIS in collaboration with the filtration specialist MANN+HUMMEL has developed this unique and innovative product called VERTO, to tackle the issue of air pollution.

VERTO 02 AIR PURIFICATION TOWER
06
STUDIO SYMBIOSIS ARCHITECTS
SUNDER NAGAR NURSERY, NEW DELHI.
VERTO : AIR PURIFICATION TOWER credits : STUDIO SYMBIOSIS ARCHITECTS

STAGE 1

FACTORY VISITS TO FARIDABAD TO CHECK IF THE PROTOTYPE IS READY FOR SITE DISPATCH. GRC WRAPPING OF UNIT 1 WAS DONE AT THE FACTORY.

STAGE 2

RECEIVING THE GRC PANELS AT THE SITE AND THE 5 PURIFICATION UNITS FROM MANN AND HUMMEL TEAM.

STAGE 3

PLACING THE UNITS ACCORDING TO THE DRAWINGS AND FIXATION OF THE GRC PANELS. THE WORK OF PUTTY FILLING TO FILL THE GAPS WAS ALSO CONDUCTED.

08
VERTO : AIR PURIFICATION TOWER credits : STUDIO SYMBIOSIS ARCHITECTS

STAGE 4

LANDSCAPING WORK AROUND THE TOWER.

PROCURING AND COORDINATING WITH LOCAL CONTRACTOR AND OVERSEEING THE TASK.

STAGE 5

THE WORK OF DESIGNING AND EXECUTING THE SIGNAGE PANEL FOR THE TOWER.

OVERSEEING THE SIGNAGE AT EVERY STEP AND COORDINATING WITH THE FABRICATOR

STAGE 6

TRACKING THE SIGNAGE FROM DISPATCH TO INSTALLATION WAS DONE KEEPING IN MIND THE FINISH QUALITY OF THE SIGNAGE WAS UP TO THE MARK.

VERTO : AIR PURIFICATION TOWER 09 credits : STUDIO SYMBIOSIS ARCHITECTS

Getting the photoshoot executed on site

Designing and finalizing of Lights for the tower

we finalized a total of 8 lights from all directions, with 4 lights of 18W and 4 of 32W respectively.

Preparation of the tower for the event and overseeing the smooth execution of the event

The inauguration of Verto was conducted on the 26th of August 2022

VERTO : AIR PURIFICATION TOWER credits : STUDIO SYMBIOSIS ARCHITECTS 10

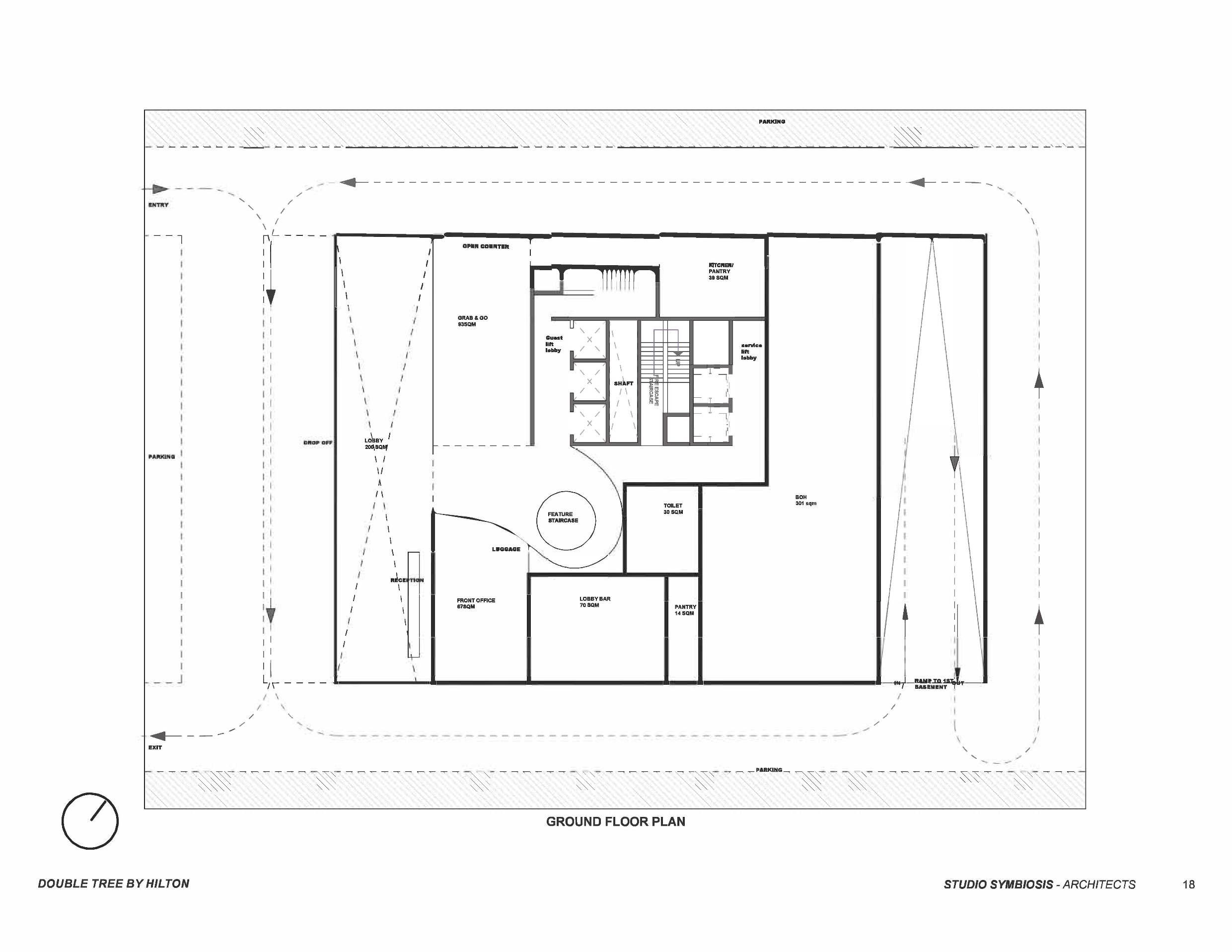
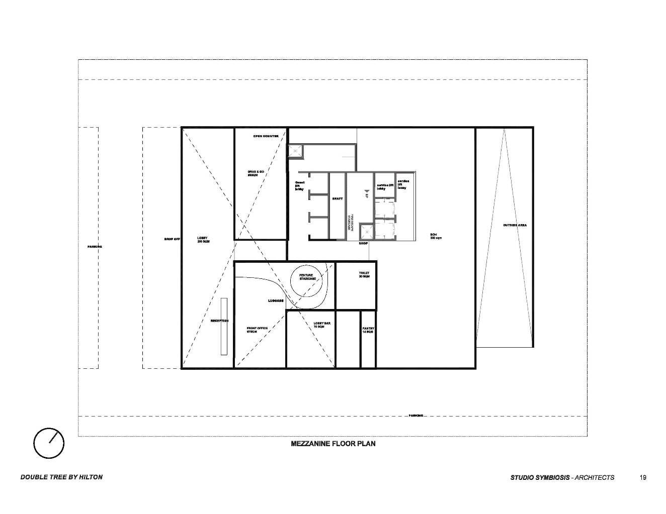
ONEOFMYINITIALPROJECTSDURINGTHEINTERNSHIPWASTHEHILTON HOTEL.IWASFIRSTINVOLVEDINPREPARINGEXCELSHEETSTOCOMPARE THEAREAOFTHEPROPOSEDPLANSWITHTHEAREASPROVIDEDINTHE

CLIENT'S BRIEF. POST WHICH I WORKED ON THE UPGRADATION OF THE PLANSANDPREPARINGTHEBOOKLETFORDISPATCHINGTOTHECLIENT.

THE PRIMARY CHALLENGE IN THE WORK WAS MEETING THE RECOMMENDEDAREAOFTHESPACESASPROVIDEDBYTHECLIENT.THE PROJECTGAVEMEAGREATDEALOFEXPERIENCEONHOWHOSPITALITY SPACES ARE PLANNED AND HOW TO PROVIDE DELIVERABLE TO THE CLIENT.

PARKING

AS/ BY LAWS

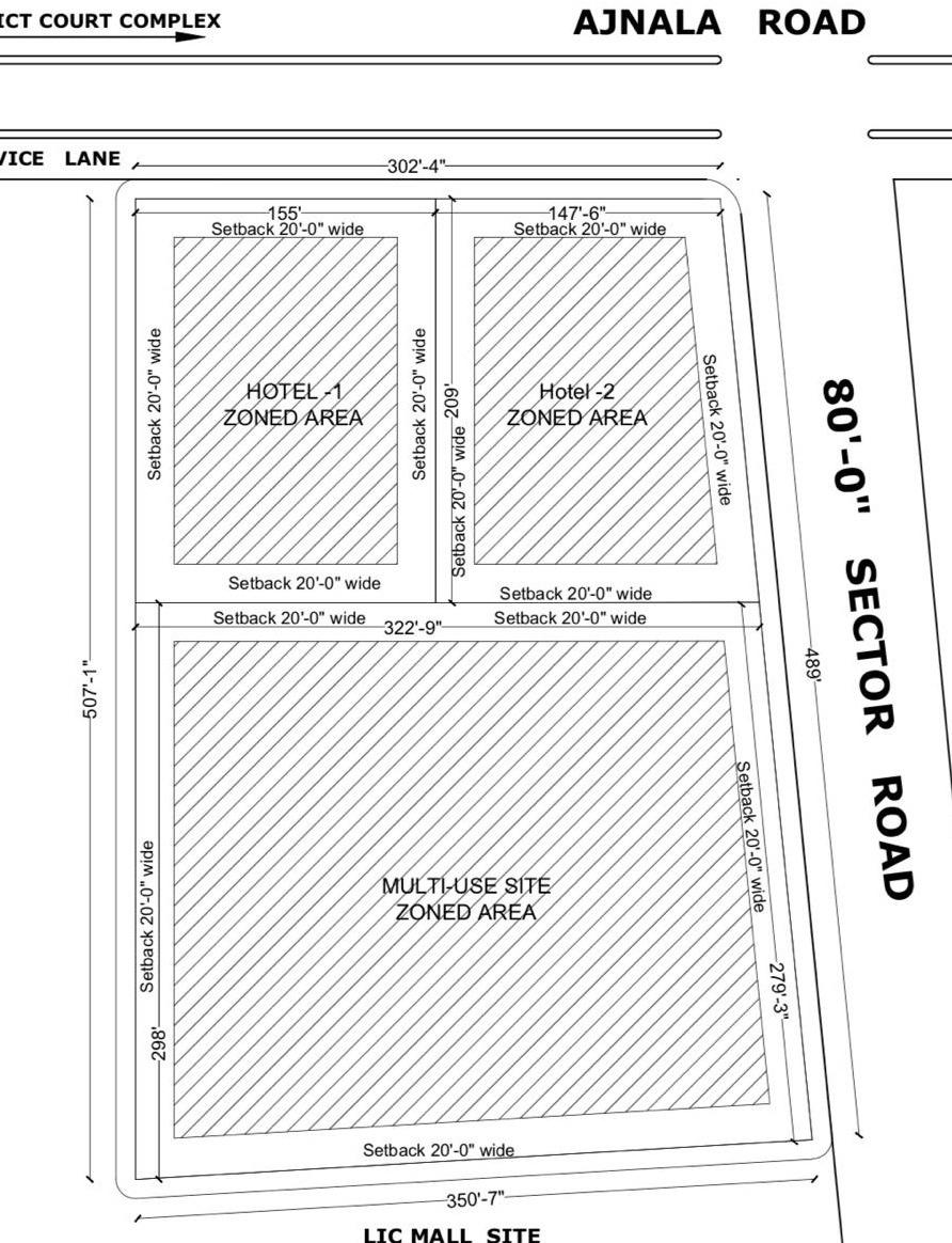
DOUBLE TREE HOTEL HILTON 03 HOSPITALITY AMRITSAR, PUNJAB. SITE OVERVIEW AREA CALCULATIONS
REQUIRMENT
REQUIRED PARKING SURFACE PARKING BASMENT PARKING Plot Area PERMISSIBLE GROUND COVERAGE(40%)
BUILT-UP AREA(FSI-2.5)
BUILT-UP AREA with purchasable FAR(FSI-3.0) PERMISSIBLE BUILDING HT. 180.57 18.1 162.52 32395 12958 80987.5 97185 81.17 AREA CALCULATION MT. 2ECS/100 SQ.MT. ECS5778 ECS415 ECS5200.5 3010 1204 7524 9029 (as/airport authority) SQM SQM SQM sq.m t sq.m t sq.m t sq.m t PLOT SIZE 47.244 X 63.70 DOUBLE TREE BY HILTON
PERMISSIBLE
PERMISSIBLE
credits : STUDIO SYMBIOSIS ARCHITECTS 11

permitted building ht = 81.17 mt

plot size = 125 x 208 ft

SETBACK VIEW WITH CONTEXT

ground coverage -= 40 %

I even constructed the site context model for the project

SETBACK VIEW WITH CONTEXT

SITE SETBACKS 3-D VIZUALIZATION
DOUBLE TREE BY HILTON credits : STUDIO SYMBIOSIS ARCHITECTS 12
DOUBLE TREE BY HILTON credits : STUDIO SYMBIOSIS ARCHITECTS 13
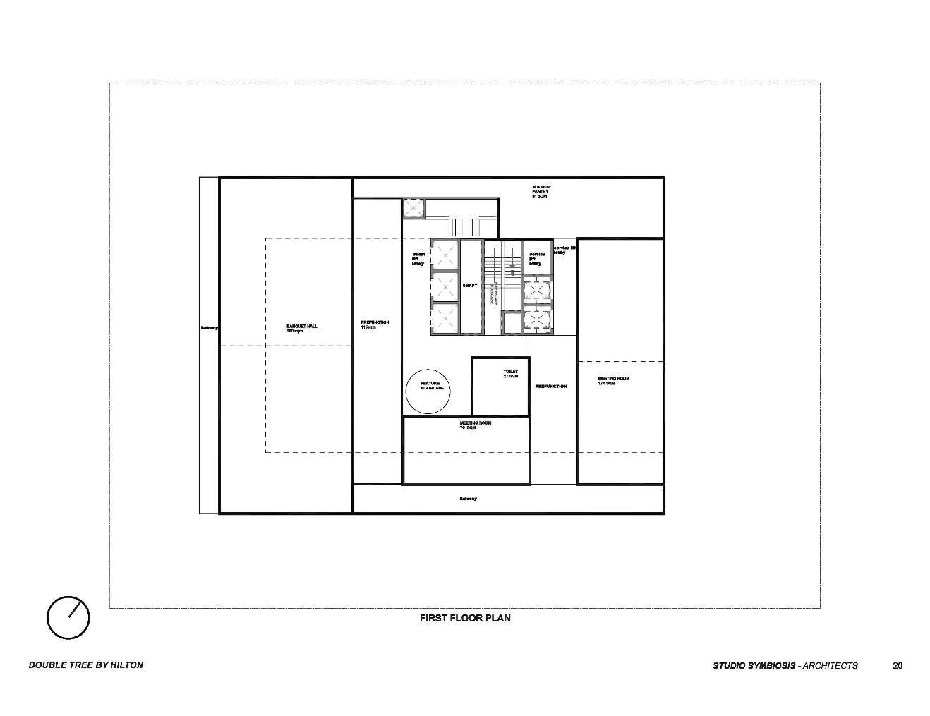
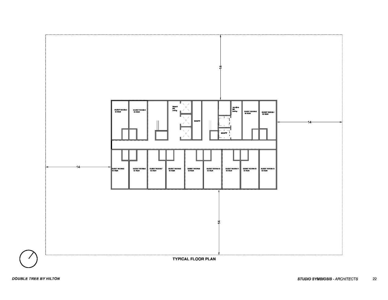
PLANS
FLOOR
14 DOUBLE TREE BY
credits : STUDIO SYMBIOSIS ARCHITECTS
PLANS
HILTON
FLOOR

UMBERA HOMEZ IS A GROUP HOUSING PROJECT OF THE UMBERA GROUP WHICH IS A PUNJAB BASED DEVELOPERGROUP.LOTOFTIMEIHADTHEOPPORTUNITYWITHCOORDINATINGWITHTHESITESUPERVISORS TO COMMUNICATE ANY CHANGE IN DRAWINGS OR FOR MINOR CLARIFICATION PERTAINING TO THE SITE. THE TOILETDETAILSSHOWNBELOWWASTHEPRELIMINARYTASKSGIVENTOME.THETOILETISFORTHECLUBHOUSE WHICHISLOCATEDINTHECENTRE OFTHEHOSUING.THISPROJECTPROVIDEDMEWITHTHEOPPORTUNITYTO UNDERSTAND THEINTRICACIESOFDRAWINGDETAILINGANDEXECUTION.

X Y W SHAFT W'Z X' Y' SHAFT Y X Z Z' X' Y' 4010513" -][ -][ 370022 370022" -][ 4010513" -][ ][6051 530501 ][ -][ 170512" -][ 61054"][ -][ 112009" -][ 528 31573" -][ ][ ][ 605121053 -][ 61054" -][ 112009 -][][ 370022" -][ 370022" -][ 4010513" -][ ][ ][ 112088 42007"009 6051" ][ 31573" -][ 31573 62057-][ ][][ ][ 528 6051" ][-][ ][ 370022" -][ 61054" -][ 6051" ][ 6051" ][ ][31573 21053 530501 -][ -][ 31573" -][ 61054" -][ 528 530501" -][ 170512" -][ 112009" -][ 370022" -][ 82528 740041-][ ][ 62057" -][ 31573" -][ 112198 112009"-][ ][ 31573" -][ 6051 ][ ][ 950571 61054-][ ][ 200 MM FLOOR FLOOR BRICK WALL 200MM THICK GEYSER 160 MM THICK LEDGE WALL THICK R.C.C WALL FINISH LVL 3150MM 3150MM TILES AS/DESIGN FINISH LVL 600x600MM WALL TILES AS/DESIGN FLOOR FINISH LVL 600x600MM WALL FLOOR FINISH LVL FALSE CEILING LEVEL FALSE CEILING LEVEL 1900 600 [2'] D3 12MM DROP DOOR WALL 12MM PLASTER 100MM THICK R.C.C GLASS PARTITION TANK PLATE 12MM PLASTER INWALL FLUSHING FLOOR FINISH LVL 3150MM FLOOR FINISH LVL 600x600MM WALL TILES AS/DESIGN FALSE CEILING LEVEL FLOOR FINISH LVL 3150MM FLOOR FINISH LVL VENTILATOR 12MM PLASTER FALSE CEILING LEVEL 1900 [6'-3"] 12MM DROP AS/DESIGN WINDOW 12MM PLASTER AND VENTILATOR 600x600MM WALL TILE GLASS PARTITION FLOOR TANK PLATE FINISH LVL 3150MM FLOOR FINISH LVL INWALL FLUSHING FALSE CEILING LEVEL DOOR D3 600 [2'] FLOOR FINISH LVL 12MM PLASTER 3150MM 600x600MM WALL TILES AS/DESIGN FALSE CEILING LEVEL FLOOR FINISH LVL 12MM PLASTER 600x600MM WALL TILES AS/DESIGN FLOOR FINISH LVL 3150MM FLOOR FINISH LVL 600x600MM WALL TILES AS/DESIGN GLASS PARTITION FALSE CEILING LEVEL 12MM DROP WINDOW 12MM PLASTER FLOOR AND VENTILATOR 3150MM VENTILATOR 12MM PLASTER FINISH LVL FALSE CEILING LEVEL FLOOR FINISH LVL ℄ ℄ ℄ SLOPE T5 T1 T4 T3 T2 4 1. 7. 2. 3. 6. 8. 9. 10. 11. 12. 13. S.NO. COPY. PROJECT PROMOTER DRAIN MIRROR SHOWER FAUCET (WASH BASIN) TOILET TISSUE HOLDER DIVERTER WITH SPOUT PRODUCT DETAIL HEALTH FAUCET AT LVL+300 MM TOILET FIXTURE FOR SAMPLE FLAT SOAP DISPERSER AT LVL+975MM HEIGHT TOWEL RING BIG AT LVL+1400MM HEIGHT TAP AT LVL +300MM HEIGHT AS PER DESIGN HAND TOWEL RING AT LVL+1200MM HEIGHT 10 THE AUTHOR TAKES NO RESPONSIBILITY FOR ANY DIMENSIONS OBTAINED BY ASCERTAIN THE DIMENSION SPECIFICALLY FROM THE ARCHITECT OR BY SITE SCALING FROM THIS DRAWING. IF NO DIMENSION IS SHOWN THE RECIPIENT MUST ON ANY DATA ON DIGITAL FORM. ALL DATA MUST BE CHECKED AGAINST THE HARD IN DIGITAL FORM IS SOLELY FOR CONVENIENCE AND NO RELIANCE MAY BE PLACED NOTE ALL DIMENSIONS ARE IN MILLIMETERS. PLAN IS UT AT +1200 MM FROM SSL MEASUREMENT AND MAY NOT RELY UPON THIS DRAWING. SUPPLYING THIS DRAWING QUANTITYREMARK TOILET 6' X 9'-1" ℄ ℄ ℄ ISSUED BY DATE A1 175 1:30 17523 LAYOUT AND UMBERA GROUP SECTIONS(T-1,T-2) 4BHK TOILET GENERAL STAGE A Revision SSA/10/07/22 M/S UMBERA GROUP Date DAKHA, DISTT. LUDHIANA R/0. H.No. 45, CENTRAL TOWN VILLAGE DAAD, Revision Description AT VILLAGE BANOHAR (HB No:-296), TEHSIL MULLANPUR Issued by 202007020_4BHK TOILET DETAIL Copy UMBERA HOMEZ E-MAIL: ARCHITECT info@studio-symbiosis.com 70312 Stuttgart Ferndown Lodge 260 Manchester Road 14 STUDIO SYMBIOSIS INDIAGERMANY UNITED KINGDOM SUBMITTED BY: FORMAT: PROJECT NUMBER: CENTRAL MODEL: SUBJECT: REV: STUDIO SYMBIOSIS ARCHITECTS 6'3''x8'2'' GENERAL LAYOUT-T1 SECTION WW' SECTION YY' SECTION ZZ' SECTION XX' FLOORING LAYOUT-T1 6'x9'1'' GENERAL LAYOUT-T2 SECTION YY' SECTION WW' SECTION ZZ' SECTION XX' FLOORING LAYOUT-T2 LEGEND KEY PLAN UMBERA HOMEZ 04 GROUP HOUSING LUDHIANA, PUNJAB. UMBERA HOMEZ credits : STUDIO SYMBIOSIS ARCHITECTS 15
FLOOR FLOOR TANK PLATE FINISH LVL 3150MM 3150MM FLOOR FINISH LVL FINISH LVL FLOOR FINISH LVL VENTILATOR 12MM PLASTER INWALL FLUSHING FALSE CEILING LEVEL FALSE CEILING LEVEL 12MM PLASTER TILES AS/DESIGN 600x600MM WALL 3150MM FLOOR FINISH LVL FLOOR FALSE CEILING LEVEL 12MM PLASTER TILES AS/DESIGN 600x600MM WALL FINISH LVL D3 DOOR FLOOR FLOOR TANK PLATE FINISH LVL 3150MM FLOOR FINISH LVL 3150MM FLOOR FINISH LVL FINISH LVL INWALL FLUSHING VENTILATOR 12MM PLASTER FALSE CEILING LEVEL FALSE CEILING LEVEL 12MM PLASTER TILES AS/DESIGN 600x600MM WALL 3150MM FLOOR FINISH LVL FLOOR FALSE CEILING LEVEL 12MM PLASTER TILES AS/DESIGN 600x600MM WALL FINISH LVL 12MM TILE DROP D3 DOOR 370022 6051 6051 ][ "][ 170512 31573 31573 62057 62057 21053 530501][ ][ 61054 61054 530501 6051 "-][ ][ ']["61054 31573 112009 42007 112088-][ ][ ][ 370022 6051 6051 "][ 170512 ]['31573 31573 62057 62057 21053 530501][ ][ 61054 6051 530501 ][][' "-][' 31573 61054 112009 42007 112088-][ ][ ][ 825 TOILET 6' X 8'-2" TOILET 6' X 8'-2" Y X Z Z' X' Y' X Y Z Z' X' Y' 825 T5 T1 3 T2 1. 7. 2. 3. 5. 6. 8. 9. 10. 11. 12. 13. S.NO. COPY. PROJECT PROMOTER ITEM CODE DRAIN MIRROR SHOWER WALL HUNG WC FAUCET (WASH BASIN) TOILET TISSUE HOLDER DIVERTER WITH SPOUT PRODUCT DETAIL COUNTER TOP WASH-BASIN HEALTH FAUCET AT LVL+300 MM TOILET FIXTURE FOR SAMPLE FLAT SOAP DISPERSER AT LVL+975MM HEIGHT TOWEL RING BIG AT LVL+1400MM HEIGHT TAP AT LVL +300MM HEIGHT AS PER DESIGN HAND TOWEL RING AT LVL+1200MM HEIGHT 10 THE AUTHOR TAKES NO RESPONSIBILITY FOR ANY DIMENSIONS OBTAINED BY ASCERTAIN THE DIMENSION SPECIFICALLY FROM THE ARCHITECT OR BY SITE SCALING FROM THIS DRAWING. IF NO DIMENSION IS SHOWN THE RECIPIENT MUST ON ANY DATA ON DIGITAL FORM. ALL DATA MUST BE CHECKED AGAINST THE HARD IN DIGITAL FORM IS SOLELY FOR CONVENIENCE AND NO RELIANCE MAY BE PLACED NOTE ALL DIMENSIONS ARE IN MILLIMETERS. PLAN IS UT AT +1200 MM FROM SSL MEASUREMENT AND MAY NOT RELY UPON THIS DRAWING. SUPPLYING THIS DRAWING QUANTITYREMARK ISSUED BY DATE PLOT MODEL: A1 SIZE: 841 594 mm A1 175 1:30 17523 LAYOUT AND UMBERA GROUP SECTIONS(T-3,T-4) 4BHK TOILET GENERAL STAGE A Revision LUDHIANA. 10/07/22SSA/ M/S UMBERA GROUP Date DAKHA, DISTT. LUDHIANA R/0. H.No. 45, CENTRAL TOWN VILLAGE DAAD, Revision Description AT VILLAGE BANOHAR (HB No:-296), TEHSIL MULLANPUR Issued by 202007020_4BHK TOILET DETAIL Copy UMBERA HOMEZ E-MAIL: U.P. 201301, Noida www.studio-symbiosis.com info@studio-symbiosis.com D-79, Sector 48, Delhi- NCR 70312 Stuttgart E143GL London Ferndown Lodge Taubenheimstr 76 260 Manchester Road 14 STUDIO SYMBIOSIS UNITED KINGDOM SUBMITTED BY: FORMAT: PROJECT NUMBER: SCALE: CENTRAL MODEL: SUBJECT: PROJECT DOCUMENT NUMBER NUMBERREV REV: STUDIO SYMBIOSIS ARCHITECTS 6'x8'2'' SECTION WW' GENERAL LAYOUT-T3 SECTION ZZ' SECTION XX' FLOORING LAYOUT-T3 6'x8'2'' SECTION YY' SECTION WW' GENERAL LAYOUT-T4 SECTION ZZ' SECTION XX' FLOORING LAYOUT-T4 LEGEND KEY PLAN TT4 T3 UMBERA HOMEZ credits : STUDIO SYMBIOSIS ARCHITECTS 16
UMBERA HOMEZ credits : STUDIO SYMBIOSIS ARCHITECTS 17

OPTION 1

THE RANDOM PANELS OPTION

UMBERA HOMEZ

FACADE DESIGN

THE FACADE DESIGN FOR UMBERA HOMEZ HOUSING TOWERS WAS ONE OF THE MOST TRICKIEST TASKS AS THE SITE HAD A LOT OF CONSTRAINTS. ESPECIALLY DUE TO THE IRREGUALR SHAPE OF THE FACADE AND ITS MAMMOTHSIZE,PROVIDINGASUITABLE-FOR-ALL OPTIONWASVERYDIFFICULT

OPTION 3 \\ SELECTED OPTION

OPTION 2

ALL OF THE ABOVE OPTIONS AND MORE WERE DEVELOPED USING GRASSHOPPER, THE FACADE BASE WAS SET AS THE SURFACE AND THE OPENINGS WERE PLACED ACCORDING TO THE OPENINGS ON EACH FLOOR. THE OPENING PROVIDED MAXIMUM EFFICIENT SHADING..

UMBERA HOMEZ credits : STUDIO SYMBIOSIS ARCHITECTS 18
03
SQUARE ATTRACTORS OPTION GRADIENT OPENINGS OPTION

THE SMARTWORLD'S URBAN OASIS ALSO CALLED SMARTWORLD 79 IS A GROUP HOUSING PROJECT OF THE M3M DEVELOPERS.

04

M3M SMARTWORLD 79

GROUP HOUSING GURGAON, HARYANA.

M3M SMARTWORLD 79 credits : STUDIO SYMBIOSIS ARCHITECTS 19

THELANDSCAPEDESIGNFOR THE URBAN OASIS WAS ONE OFTHEUNIQUETASKSOFMY INTERNSHIP AND ONE THAT REQUIRED A LOT OF CONTINUOUS CHANGES AND ALTERATIONS. THE LANDSCAPE DESIGN OPTION HAD PROVISIONS OF STATEOF-THE-ART FACILITIES FOR THE USERS INCLUDING A 6HOLE GOLD COURSE, A MEDITATION AREA, A CLUBHOUSE TO HOST INDOOR ACTIVITIES, A PARTY AREA AND MULTIPLE SPORTS FACILITIESAVAILABLE.

DESIGN DEVELOPEMENT

THE CONCEPT WAS BASED ON INTERSECTING CIRCLES AND HOW COULD THE PROPOSAL REDUCE THE GEOMETRICAL SHAPES OF THE TOWERS.

M3M SMARTWORLD 79 credits : STUDIO SYMBIOSIS ARCHITECTS 20
UP VIEWS
CLOSE
M3M SMARTWORLD 79 credits : STUDIO SYMBIOSIS ARCHITECTS 21

07

MASTER PLANNING

GROUP HOUSING

BHATINDA, PUNJAB.

THE BHATINDA MASTER PLAN FOR DR. SURAJ WAS DEVELOPED AS A PART OF A HOUSING PROJECT. THE MASTER PLAN CONTAINS RESIDENTIAL PLOTTING OF VARYING SIZES AND A COMMUNITY CENTRE, E.W.S HOUSING, A SCHOOL, A DISPENSARY AND COMMERCIALSPACES.

THE PROGRAM WAS AN ONGOING PROJECT FOR WHICH I WAS INVOLVED IN CREATING THE BOOKLET AND DETAILINGOFTHEPLANS,

OPTION 1

STAR MASTERPLAN

RAISED CENTRAL VISTA

UNDERTOOK THE RENDERING WORK OF THE PLANS

DID THE DETAILING OF THE PLANS

OPTION 2

BLOOM MASTERPLAN

UTILIZED GRASSHOPPER TO SEPARATE PLOTS BASED ON THE BASES OF SIZE

PROVIDING PROPER COLOUR CODING FOR THE DIFFERENTIATION OF THE RAISED-GREEN SPACES FROM THE NON-RAISED ONES

MASTER PLANNING credits : STUDIO SYMBIOSIS ARCHITECTS 22

OPTION 1 STAR MASTERPLAN

BHATINDA MASTERPLAN

MASTER PLANNING credits : STUDIO SYMBIOSIS ARCHITECTS 23

OPTION 2 BLOOM MASTERPLAN

BHATINDA MASTERPLAN

MASTER PLANNING credits : STUDIO SYMBIOSIS ARCHITECTS 24

GROUNDFLOORPLAN

LOWERTERRACEFLOORPLAN I UNDERTOOK THE RENDERING AND FINISHING OF THESE PLANS

FIRSTFLOORPLAN

LOWERTERRACEFLOORPLAN

FORM FOLLOWED FUNCTION FOR THIS PROJECT WHICH WAS THE MAIN CHALLENGE DURING PLANNING STAGE

TYPICALFLOORPLAN

TERRACEFLOORPLAN

08
CLIO CLIO credits : STUDIO SYMBIOSIS ARCHITECTS
PUNJAB, INDIA. 25 COMMERCIAL + RETAIL THEMAJORITYOFMYWORKIN THE CLIO PROJECT INVOLVED DETAILING THE EXISTING PROPOSAL AND FIXATION OF THE RHINO AND CAD DRAWINGS TO PREPARE A HANDOVER SET TO THE CLIENT. PREPARINGRENDEREDPLANS FOR THE PROJECT AND DETAILING OF THE LAYOUT DRAWINGS. THE PROJECT IS FOR THE JUBILEE DEVELOPER GROUP BASED OUT OF CHANDIGARH. THE CHALLENGES FACED BY ME DURING THE PROJECT WERE PERTAINING TO CLIENT COORDINATION AND WORKING ON CHANGES AS PROPOSED BY THE CLIENT AS THE PLANS WERE CONSTANTLY REVIEWED BY THECLIENT.
CLIO credits : STUDIO SYMBIOSIS ARCHITECTS 26 1 FIRST FLOOR PLAN
CLIO credits : STUDIO SYMBIOSIS ARCHITECTS 27 2 TYPICAL
FLOOR PLAN
CLIO credits : STUDIO SYMBIOSIS ARCHITECTS 28 3 FIFTH FLOOR PLAN

MY TIME AT THE STUDIO SYMBOLISES HAS BEEN VERY BENEFICIAL TO ME, THE WORK I DID AND THE SKILLS THAT I GOT TO LEARN DURING THESE MONTHS SHALL FOREVER BE WITH ME.

EVERYTHING I LEARNED, THEORETICALLY, AT COLLEGE NEVER SEEM TO BE ENOUGH AS A WHOLE DIFFERENT PART OF DOING IT PRACTICALLY WAS MISSING. AT THIS STUDIO I GOT TO SEE FIRST-HAND THE DESIGN PROCEDURE BEING EXECUTED IN REALITY, THE WAYS HOW TO RUN AN ARCHITECTURE FIRM, THE DIFFICULTIES ONE MIGHT FACE IN THE PROCESS AND HOW TO HANDLE THEM. THE SITE VISITS DURING MY INTERNSHIP WILL LEAVE A LASTING IMPACT ON HOW I SOLVE MOST PROBLEMS IN LIFE.

WORKING ON VERTO THE AIR PURIFICATION TAB HAS BEEN ONE OF MY MOST LEARNING EXPERIENCES FOR WHICH I WOULD DEEPLY LIKE TO THANK THE OFFICE. THE DIFFERENT TYPES OF PROJECTS THAT I WAS EXPOSED TO, HELPED ME GAIN DEEP INSIGHTS INTO THE WORKING OF SPECIFIC SPECIALIZATIONS OF THE FIELD, FOR EXAMPLE, LEARNING ABOUT THE PRACTICALITIES AND THE NATIVITIES IN LANDSCAPE DESIGN WAS TRULY AN EYE-OPENER FOR THE EXPERIENCE OF SEEING YOUR EFFORTS TAKING SHAPE ON THE SITE GAVE ME UNEXPLAINABLE JOY. MOST IMPORTANTLY, I LEARNED TEAMWORK, AND HOW IT'S IMPOSSIBLE TO BE THE BEST IN THE FIELD WITHOUT A GOOD TEAM. I ALSO LEARNED THE IMPORTANCE AND THE REASON FOR DISCIPLINE AND STRUCTURE IN THE OFFICE AND HOW A GREAT SENIOR CAN HELP YOU GAIN A LOT IN LIFE AND HOW CERTAIN TIMES BEING A YES-MAN CAN LEAD YOU TO LEARN THINGS YOU OTHERWISE THOUGHT YOU WERE INCAPABLE OF DOING. THE MOST IMPORTANT DESIGN KNOWLEDGE THAT I LEARNED IN THIS PHASE WAS THAT A GOOD DESIGN TAKES TIME. I AM EXTREMELY HAPPY TO BE A PART OF A GREAT TEAM, WHERE MY OPINIONS WERE EQUALLY VALUED IRRESPECTIVE OF MY EXPERIENCE. THANK YOU.

CONCLUSION
29
HITARTH DEV SINGH +91 - 9161964969 SINGHHITARTH@GMAIL.COM @HIXARXH ALL PROJECTS IN THE REPORT BELONG TO STUDIO SYMBIOSIS ARCHITECTS. NOVEMBER 2022

Turn static files into dynamic content formats.

Create a flipbook
Issuu converts static files into: digital portfolios, online yearbooks, online catalogs, digital photo albums and more. Sign up and create your flipbook.
ARCHITECTURAL INTERNSHIP REPORT by Hitarth Dev Singh - Issuu