PROFESSIONAL PRACTICE PORTFOLIO

Page 1

PROFESSIONAL PRACTICE PORTFOLIO HIMANSHU WANJARI

056 SEM VIII (2021-2022)

P1. RANAKPUR HOTEL PROJECT

Pitch presentation for client

Zoning and plan designing

Graphical representation.

P2. GOREGAON RESIDENCE

Furniture planning

Architectural civil renovations

Presentation for client

Elevation design

Colour palettes and mood board

Model and renders

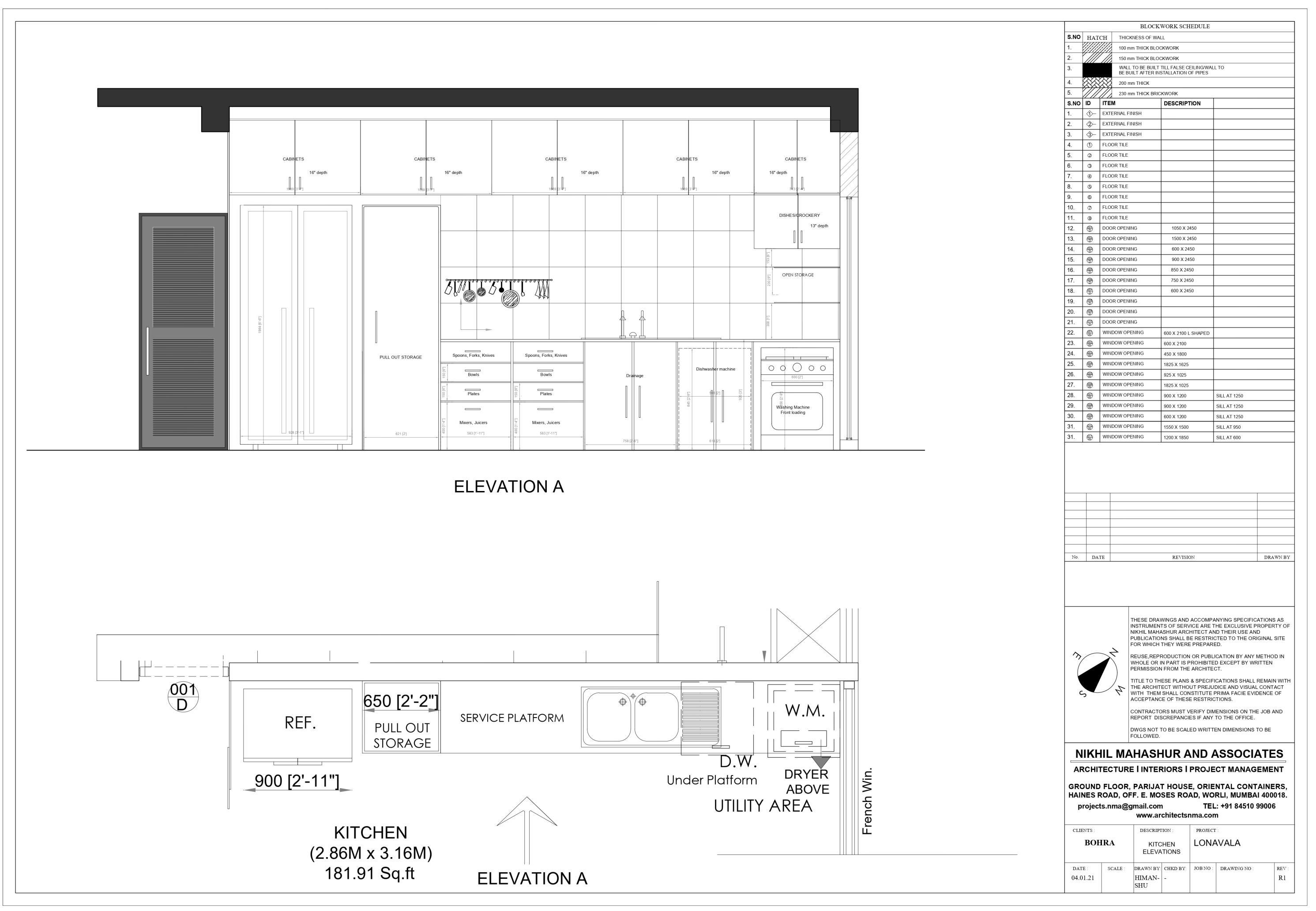
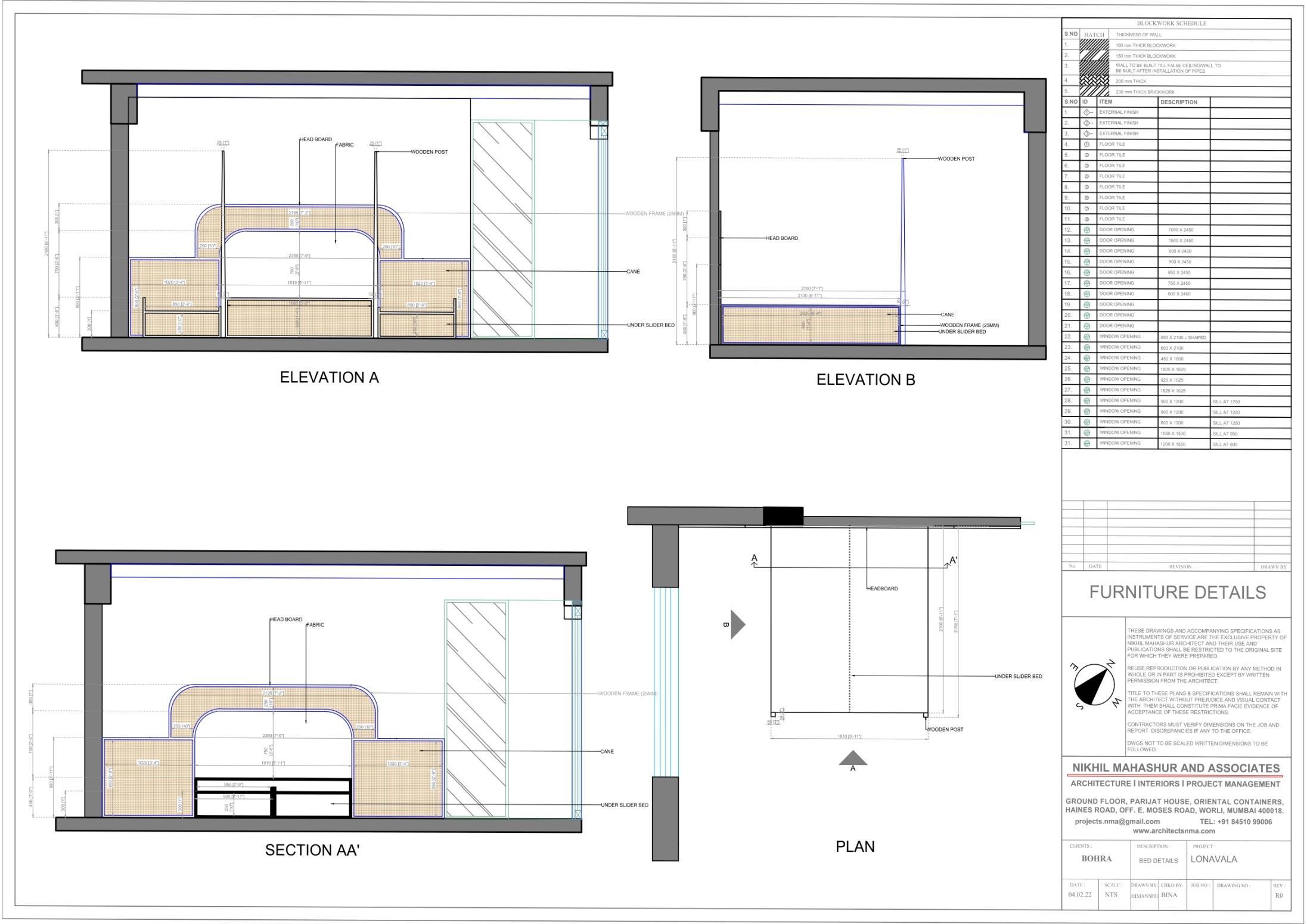
P3. LONAVALA BUNGLOW

Furniture planning

Elevation design

Furniture design

Mood boards

P4. INDIA BULLS

Furniture planning

Model/ renders

Mood boards

P5. BIG FLEX

Furniture planning

Detailed drawings

Model/ renders

Estimation and costing

Tiling layouts indoor/outdoor

Model and renders

INDEX
Page No. 04 07 10 18 21

SHREE SADAN

SHARAD VILLA

INDORE

ASHFORD

GULAB BAUG

LODHA KIARA

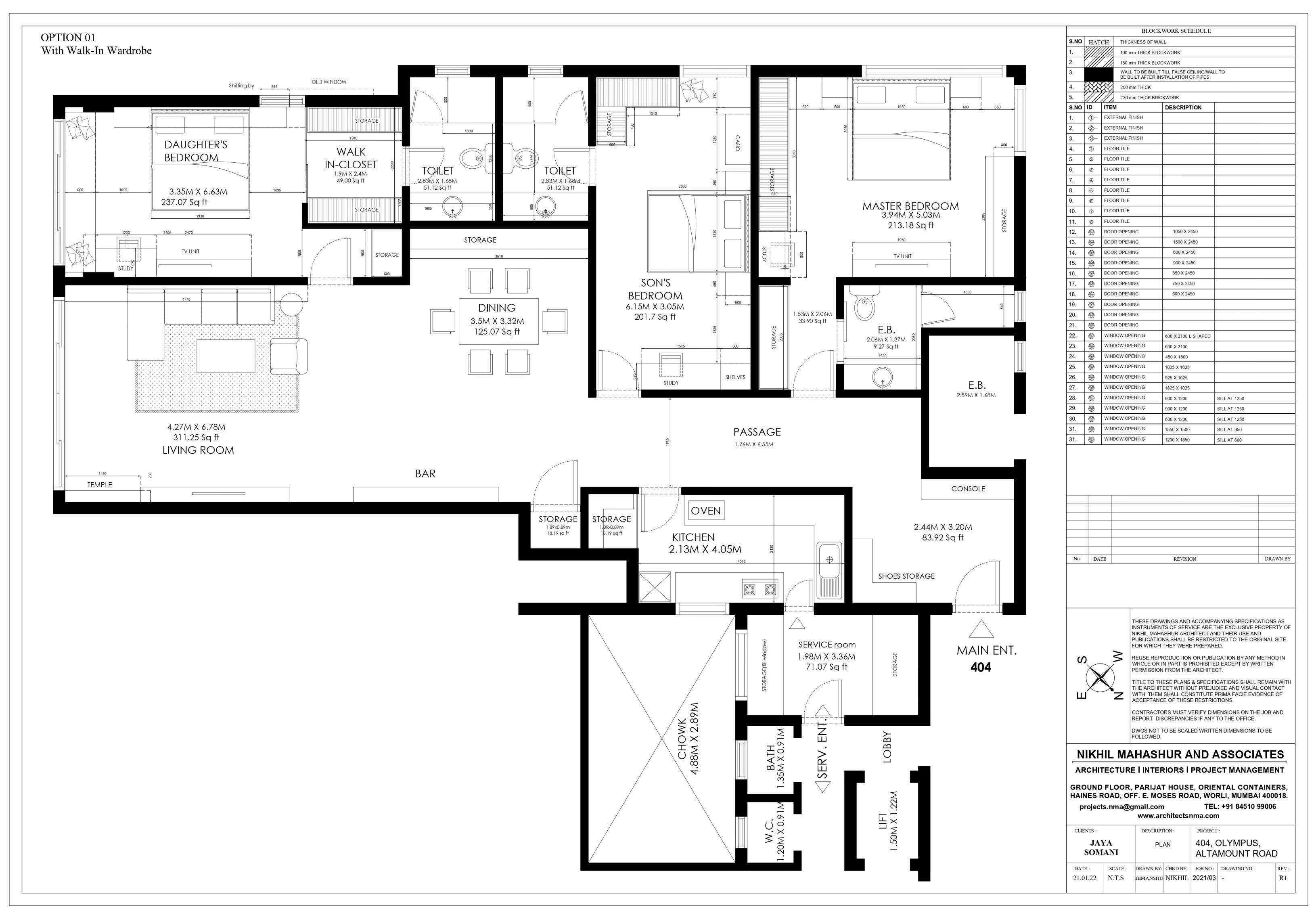
INDEX P6. OLYMPUS 404/405 Page No. • Layout • Furniture design • Material sourcing • Mood boards • Model/ renders • Client presentations • Working drawings P7.
• Furniture layout • Mood boards • Furniture selections • Model & renders P8.
• Furniture layout • Model & renders P9.
• Furniture layout • Bar design • detailed drawings • Model & renders P10.
• Interior styling • Furniture layouts • Furniture sourcing • Vendors co ordinate • Estimates and budget sheets P11.
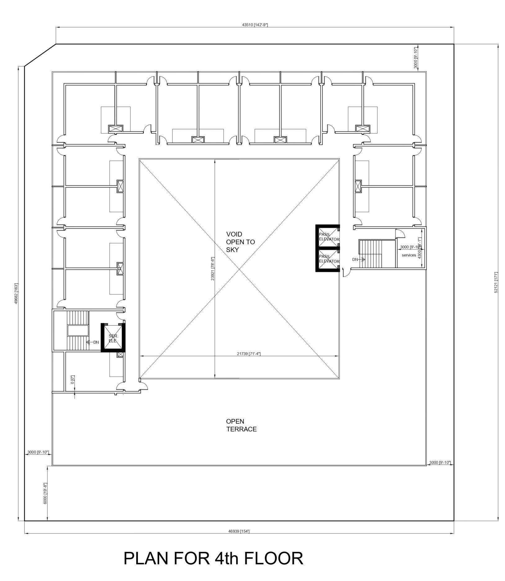
• Municipal drawings • Plan layout • Area calculations P12.
• Furniture layout • Estimate with options for various budget scales • Interior styling • Model & renders 23 37 41 43 44 48 52 P13. OTHER WORKS 55

Contour plan

Contour plan

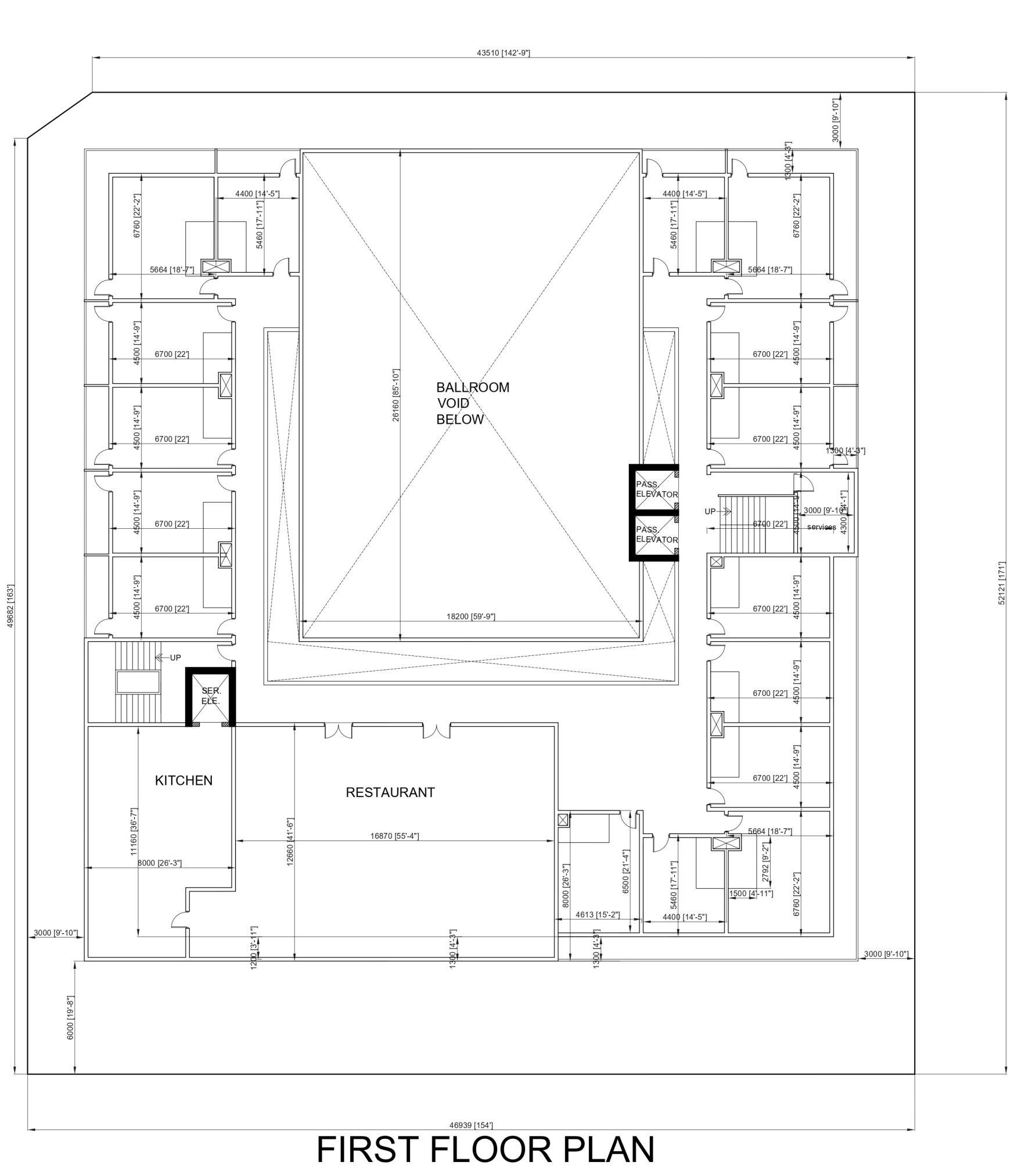
Plans RANAKPUR HOTEL
4PROJECT 01
Plans RANAKPUR HOTEL 5
RANAKPUR HOTEL Plans & section 6
RESI @ GOREGAON Plan 7PROJECT 02
RESI @ GOREGAON Views 8

palette and

Views 9RESI @ GOREGAON Colour
views RESI@GOREGAON
BH_LONAVALA Plan 10PROJECT 03
BH_LONAVALA Plan 11

Elevations

BH_LONAVALA
12

Elevations

BH_LONAVALA
13
BH_LONAVALA Mood board 14
BH_LONAVALA Mood board 15

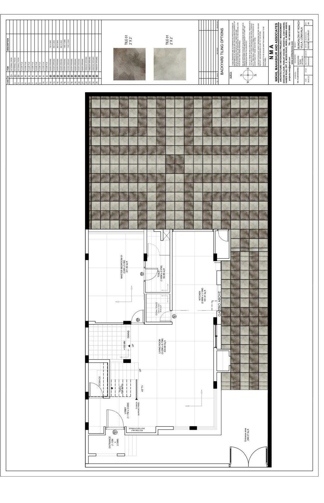
Tiling options

BH_LONAVALA
16
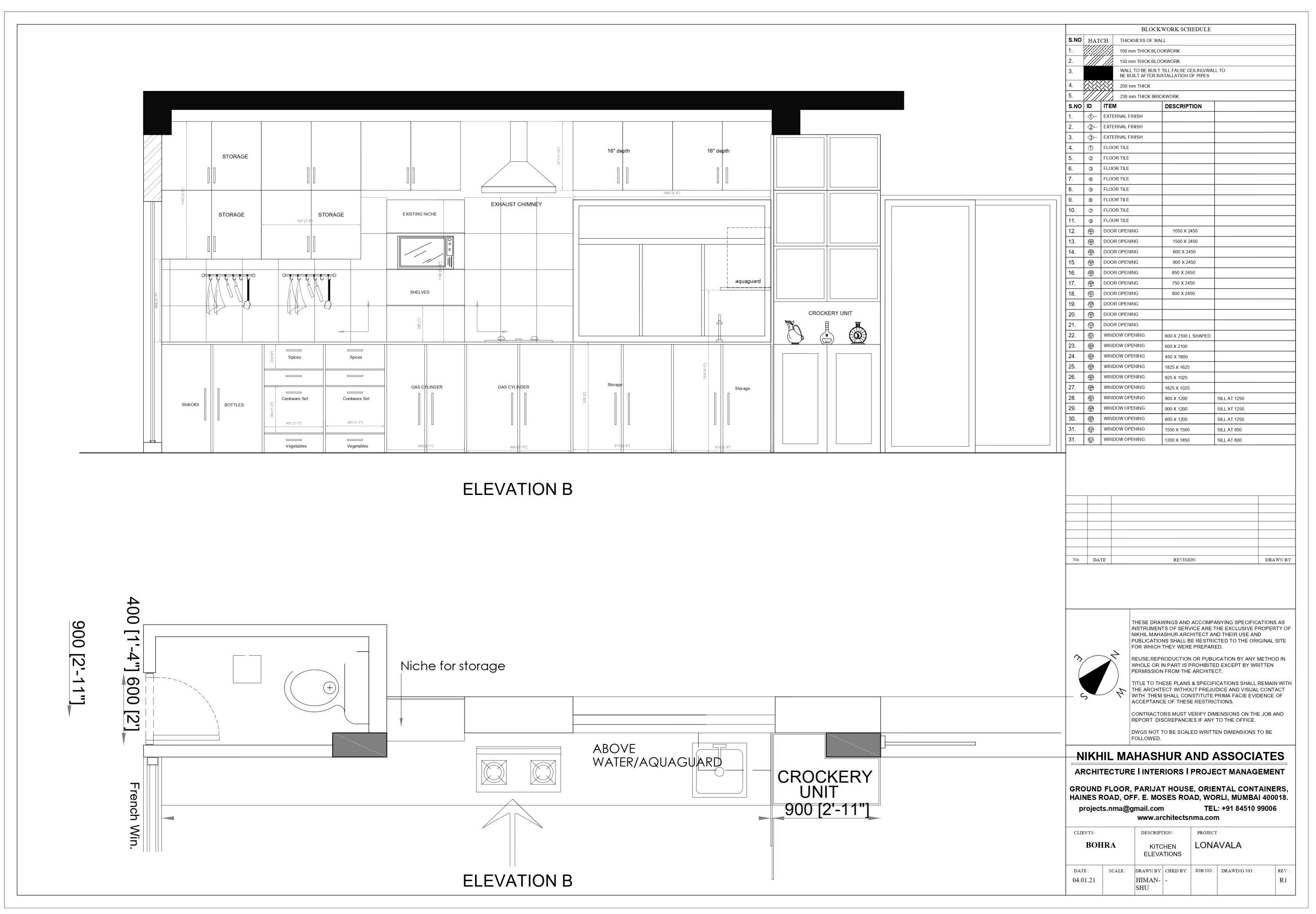
BH_LONAVALA Details 17
INDIABULLS Plan 18PROJECT 04
INDIABULLS Mood board 19
INDIABULLS Mood board 20
Plan BIG_FLEX 21PROJECT 05
Views BIG_FLEX 22
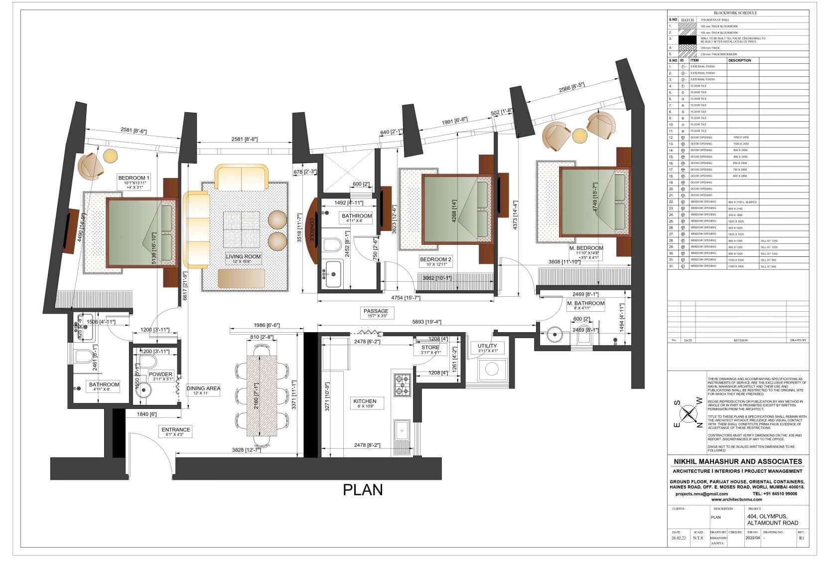
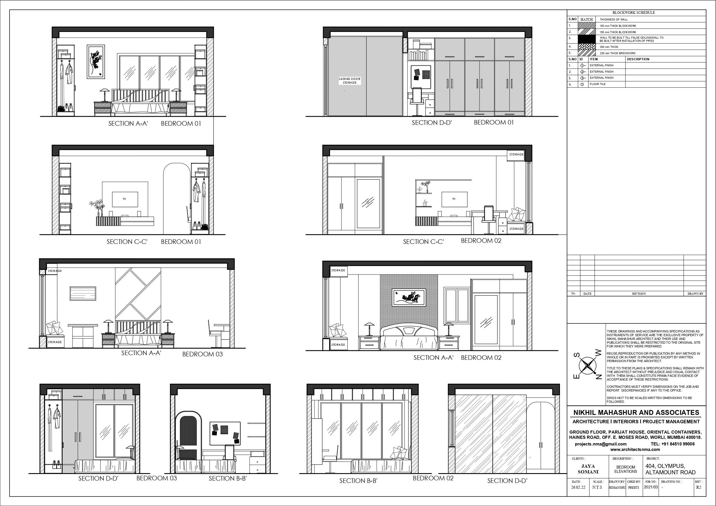
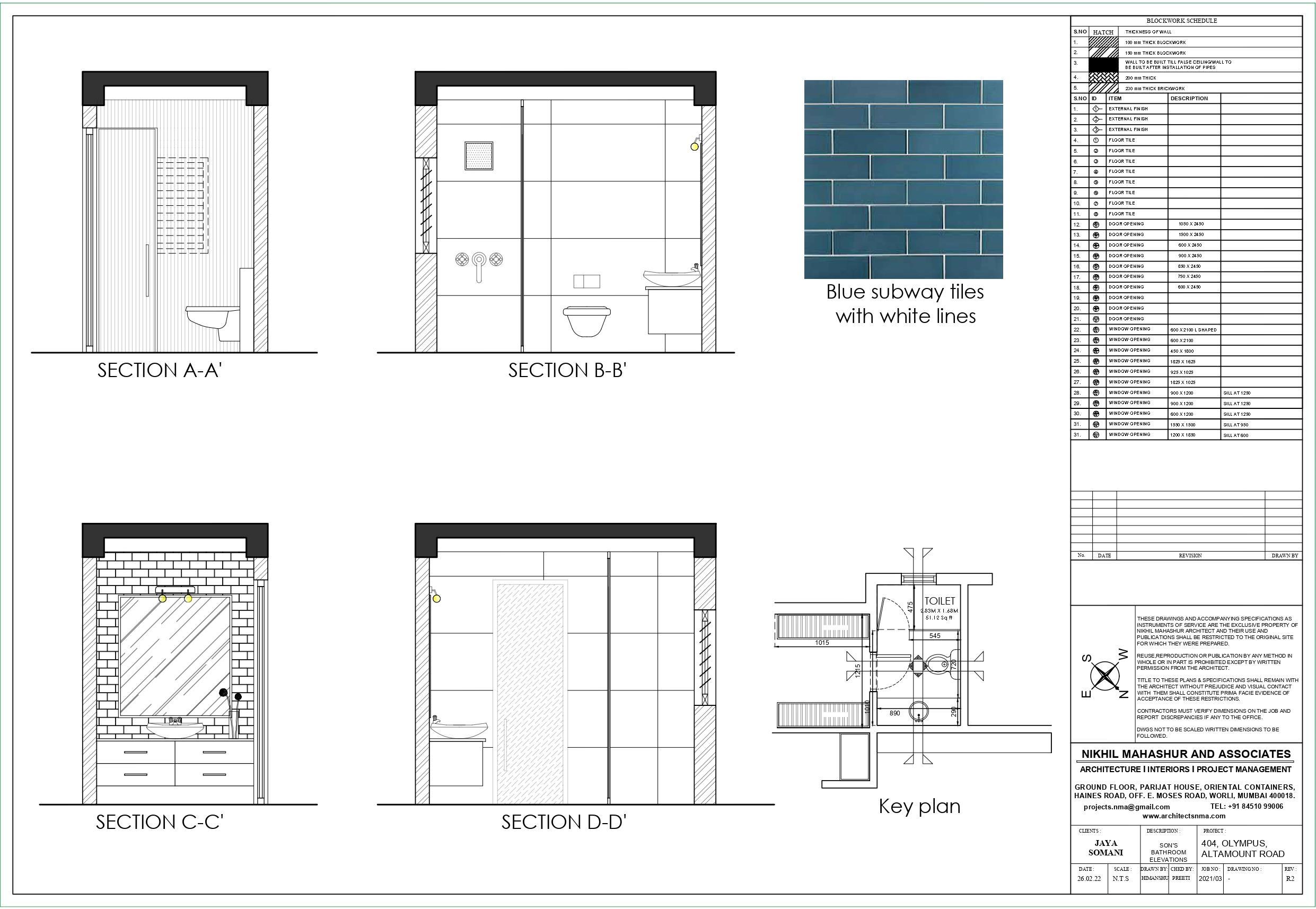
23 OLYMPUS_404 Views PROJECT 06
OLYMPUS_404 24 Shop drawings
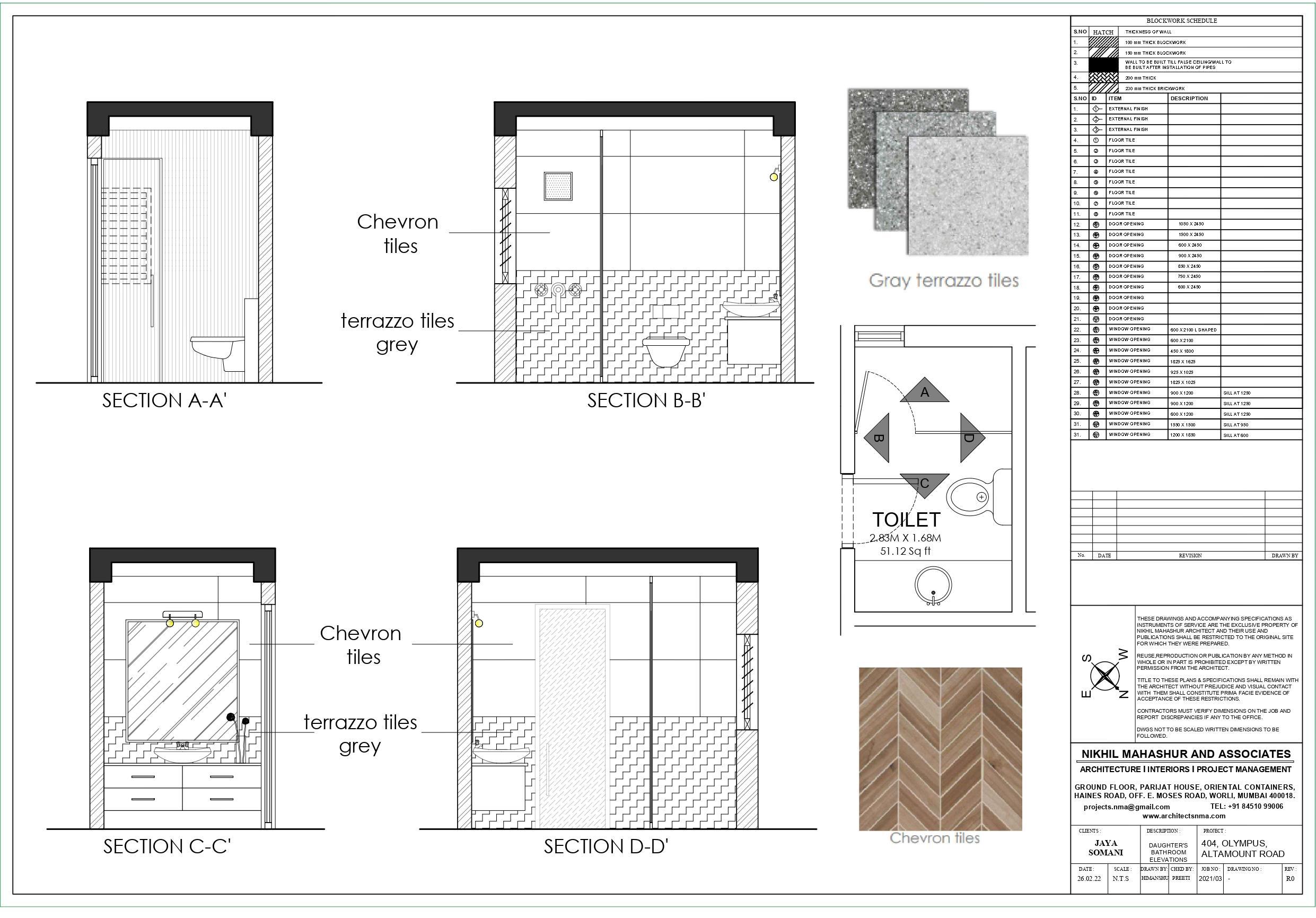
25 OLYMPUS_404 Elevations
26 OLYMPUS_404 Shop drawings
27 Shop drawings OLYMPUS_404
28 Shop drawings OLYMPUS_404
29 Site pictures OLYMPUS_404
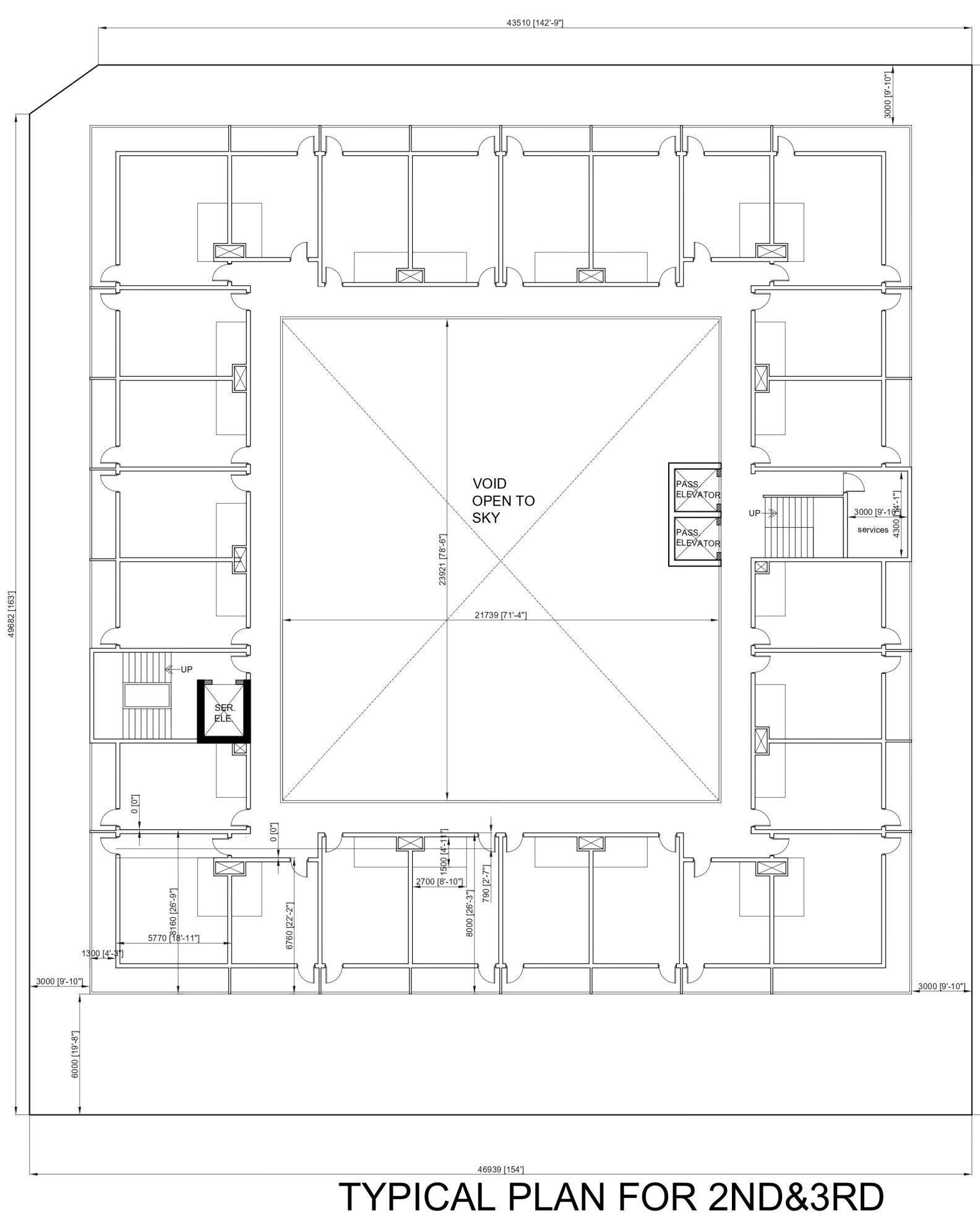
OLYMPUS_405 Plan 30
Elevations OLYMPUS_405 31

Elevations

OLYMPUS_405
32
Elevations OLYMPUS_405 33
34 Elevations OLYMPUS_405
Views OLYMPUS_405 35
Views OLYMPUS_405 36

Site pictures

SHREE_SADAN Plan
37PROJECT 07
Mood board SHREE_SADAN 38
Mood board SHREE_SADAN 39
Mood board SHREE_SADAN 40
SHARAD_VILLA Plan 41PROJECT 08
SHARAD_VILLA Views 42
CM_INDORE Shop drawings 43PROJECT 09
ASHFORD Plan 44PROJECT 10
ASHFORD Mood boards 45

renders

Actual Actual

Render/ mood board

Render/ mood board

Actual Actual

ASHFORD
Views and
46

Render/ mood board Actual

ActualActualRender/ mood board

and renders

ASHFORD
Views
47
GULAB_BAUG_UDI Plan 48PROJECT 11
GULAB_BAUG_UDI Plan 49
GULAB_BAUG_UDI Plan 50
GULAB_BAUG_UDI Area calculation 51

boards

LODHA_KIARA Mood
52PROJECT 12

boards

LODHA_KIARA Mood
53
Estimates 54

& social media design

OTHER_WORK Website
55
56 SITE_VISITS
57 SOURCING_VISITS

Turn static files into dynamic content formats.

Create a flipbook
Issuu converts static files into: digital portfolios, online yearbooks, online catalogs, digital photo albums and more. Sign up and create your flipbook.