
1 minute read
felt wall panel
RETAIL | NYC, NY, USA Company: WEWORK, Powered by We Experience: CD & CA Current Phase: Completed Role: Design Manager

Advertisement
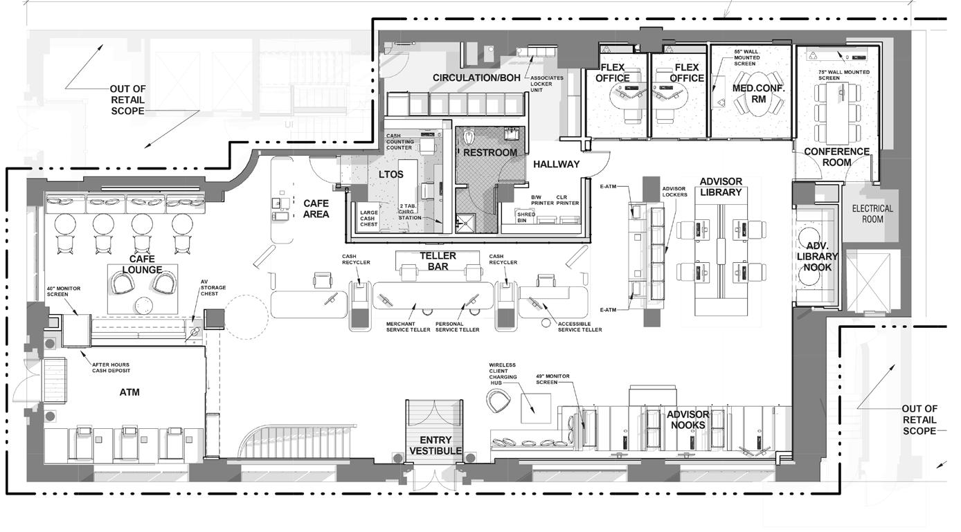
This project consists of a 3500 SF bank retail branch in New York. The ethos of the design is centered on redefining the concept of banking - breaking away from the traditionally closed-off and impersonal banking journey and changing it for a more humane, and inviting user experience - pushing transparency and openness both physically and conceptually. The floor plan ensures the user trajectory is both private during long transactions and public for short-term visits. To humanize the deisgn, airy and natural materials are selected and complimented with pops of color that align to the bank’s branding identity.

Floor Plan_GROUND LEVEL






