
3 minute read
Site Diagram
To address the projected population growth and rapid urbanization trends of the city, the design includes a modular layout with prefabricated systems, designed for disassembly at the end of the building’s life cycle for reuse. - the building layout is designed to expand as needed with the growing population and space has been left between the facade and building with exposed structure, ready to expand when necessary.
The expansions have been mapped out to add 400 square feet of space per unit. Allowing the building to grow an additional 43,000 square feet.
The construction process of this building will also look to be integrated with lean construction principles and cultural anthropologists . This will help mitigate on-site waste, streamline work processes, and develop a strong representation of the surrounding culture.
The success of this project will be the start of a template that could be used in places of rapid urbanization that need fast, resilient, and efficient buildings. Which is especially important when considering Lagos exponential population growth
Connector
Utilize shading strategies, such as self shading facade systems.
Incorporate modular design and exposed structure to allow building to expand and grow with the population
The 2050 embassy needs to consider the purpose and the structure of America’s representation abroad. There are significant steps to be taken to provide support to foreign governments through technologies and infrastructure development. A future embassy should provide the opportunity to develop a relationship with the country and the communities and a core component of diplomacy will require significant financial investment through construction and maintenance. Our proposed design solutions are impactful because they tackle the most prominent issues that Lagos, Nigeria faces.
The defining aspect of our design is the algae facade and photobioreactors to create clean renewable energy through biofuel. As one of the leading countries in oil production and exportation, integrating this new technology could have a great impact for not only Nigeria, but around the globe; It could transform Nigeria’s economy from one that relies on non-renewable resources into one that thrives on clean, renewable energy. This can serve as a precedent for other places around the globe, leading to a cleaner, healthier, and sustainable future.
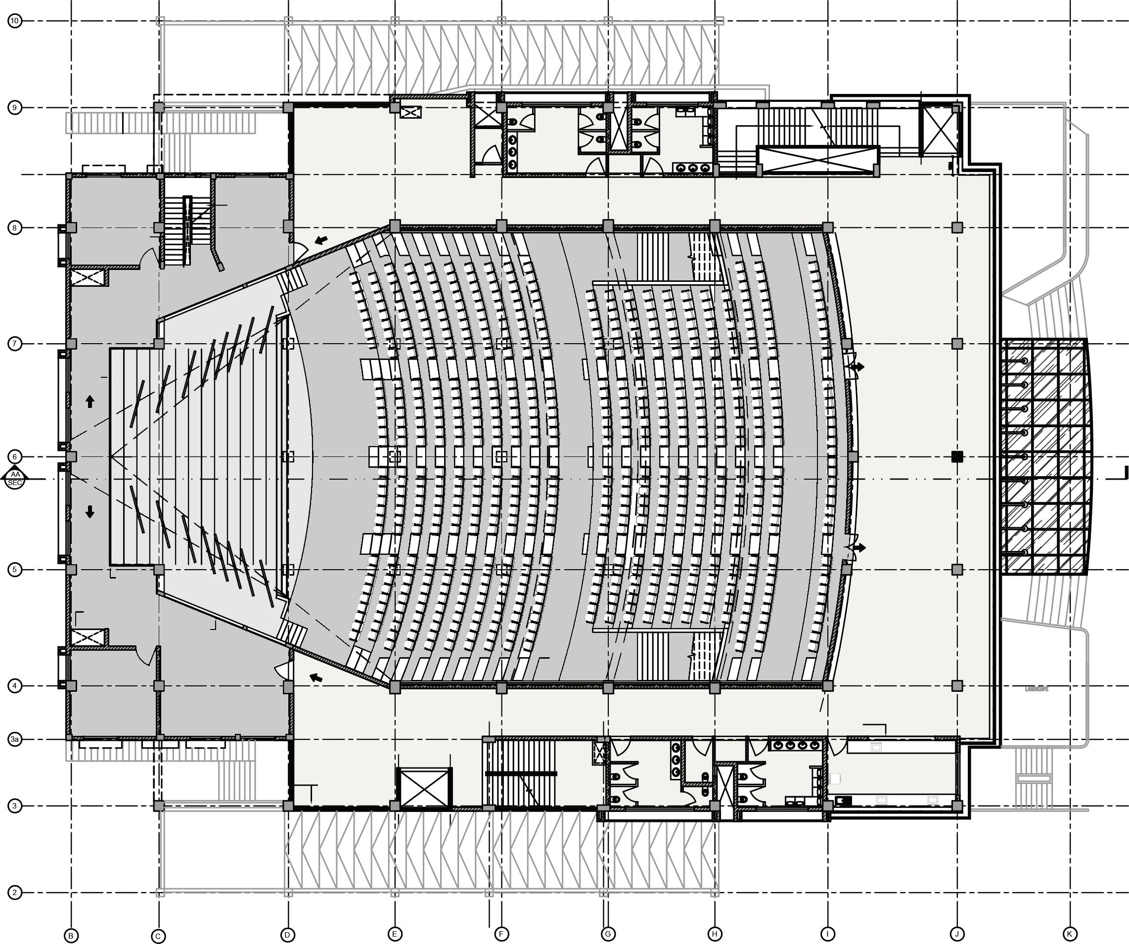
Gandhi Smruti Bhavan Auditorium
Surat, Gujarat, India
The client was the Local Governing body of Surat, Surat Municipal Corporation, they wanted an Auditorium to be designed to accommodate a large audience.
The client wanted the auditorium with multiple aisles, fixed tilting seats with upholstered seat and back post, integrated armrest, Writing tablet, and articulated back for maximum occupant passage space between rows.

Construction Details Office Work Tempe
The client was the Local Governing body of Surat, Surat Municipal Corporation, they wanted an Auditorium to be designed to accommodate a large audience.
The client wanted the auditorium with multiple aisles, fixed tilting seats with upholstered seat and back post, integrated armrest, Writing tablet, and articulated back for maximum occupant passage space between rows.
(2) #4 Cont. in Bond Beam at Top of Wall
(2) #4 Cont. in Bond Beam at Nailer
8” CMU W/ Joint Reinforcement at 16” O.C. Solid, Grout Below Grade Waterproof Membrane
Granular Fill
4” Perf. PVC Pipe Wrapped in GEO Fabric Filter Set in Gravel and Drain to Daylight
3 X 10 Nailer W/ 5/8 Bolts @ 24” in Bond Beam
#4 Bar @ 32” O.C. @ C/L of Wall, Full Height #4 Bar @ 16” O.C. On earth Face. Extend 3’ Into CMU
4 1/2” Concrete Slab W/ #3 Bars @ 18” O.C. Each Way
Rigid Insulation
Polymer Modified (PM) or Traditional Cement Stucco Lath
Cavity Insulation
Gypsum Board Sill Gasket
Drainage Plane Weep Creed
Sealant, Adhesive or Gasket
Coping
Air/ Water Barrier
Sheathing
2” Continous Insulation with Drainage Channels
Ground Slopes away from wall at 5% (6 in. per 10 ft.)
4” Concrete Slab
Rigid Insulation
Concrete Grade Beam
Stucco
Building Paper
Roof Joist System
Cavity Insulation
Cavity Insulation
Sheathing
Exterior System Details - Stucco - Parapet Details
Corner Bead
Window Frame
Track Sealant
Boxed Header Stucco
Air/ Water Barrier
Self- Furring Metal Lath
Flexible Flashing
Flashing
Window Frame
Wood Frame Foundation Detail Exterior
Building Paper
Self- Furring Metal Lath
Cavity Insulation
Gypsum Panels
Sheathing Sealant
Plywood Sheathing per G.S.N.
1.5” EPS Foam
Stucco Finish (Western 1 Kote) With STO Essence
DPR Finish Coat
Building Paper
Weep Screed
Pre-finish sheet metal flashing extend up face of wall 8” and lay in bed of sealant at concrete walks








