PORTFOLIO “1”

HETEM DAJAKU
Selected Architectural Projects 2019-2023
![]()

Selected Architectural Projects 2019-2023
2019-2023
Prishtinë, 2023





MASTERPLANI - SITUACIONI I GJERË




































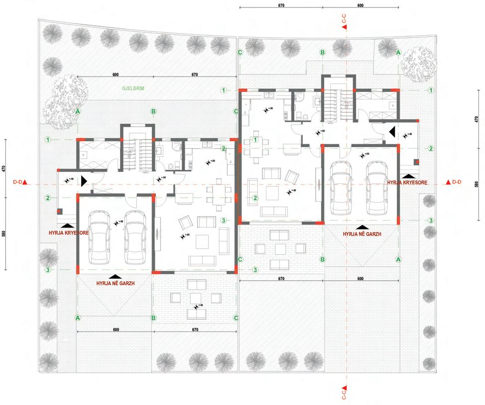
Project #4


Rruga. IBRAHIM MAZREKU -2B+S+P+13K -2B+S+P+13K -2B+S+P+11K
SITACIONI I GJERË NË KONTEKST TË MASTERPLANIT LOKACIONI: MALISHEVË, KOSOVË


Project #4


Project #4

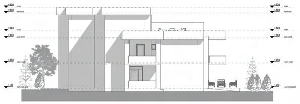
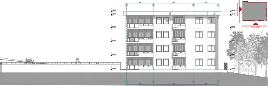
FASADA VERILINDORE


FASADA VERIPERENDIMORE











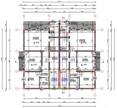
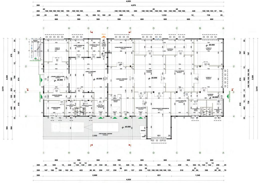
BAZA E KATIT KARAKTERISTIK
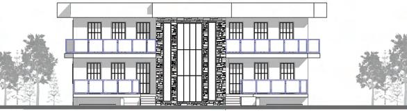
Project #5






Project #6








Project #6








Project #6







