AD4 FINALS: Casa Musa

Page 1

Casa Musa

CHING & HERMOSA

Architectural Design 04

Banana Social Housing + Marketplace

Tondo, Manila

W [14]

Instructor: Sir Kooks

CHING & HERMOSA

ARCDS04

PROJECT NAME:

LOCATION:

WEEK NUMBER:

Casa Musa

Tondo, Manila

14

DESCRIPTION: Social Housing project for informal settlers with the intent to develop a self-sustaining community by farming, recycling, reusing, and creating crafts from every part of a banana plant. Planned to provide homes for 30 families, and a marketplace open to the public

2
3
4
5 NARRATIVE + STUDY
6
7
8
9 SITE CONDITIONS

SUN PATH AND WIND ANALYSIS

The site is adjacent to Manila Bay, which is advantageous to the residents in having a captivating view of the Manila Bay sunset. It was also one of the foundations for executing the overall design in ensuring that each unit has a view of Manila Bay. Utilizing Manila Bay, using the second landfill became feasible by using boats to transport wastes dedicated to recycling.

ZONING MAP

Based on Comprehensive Land Use Planning (C.L.U.P.) Of Manila

high intensity commercial mixed-use zone

high density residential mixed-use zone

medium intensity commercial mixed-use zone

light intensity industrial zone

LANDMARKS

Points of Interest around the chosen site

a site

b smokey mountain dumpsite

c petron gas station & lubricating oil blending plant

d kynsna bldg.

e gawad kalinga paradise heights

f purple centers foundation

g risen christ parish

h coliseo de manila

i upskills+ foundation inc.

j brgy. 99 barangay hall

10
a b c d e f g h i j
11
FIGURE GROUND MAP Noticeable density of housing on the east and east-west direction of the site.
12
13
14
15 LUNGSOD ISKWATER
16

COMMUNAL AREAS

Retaining their lifesetyle and hobbies

KAPATIRAN

The design will emphasize the residents’ sense of brotherhood towards each other

17 KEY IDEAS

SITE

The site is located at Radial Rd. 10, Tondo, Manila City. Gross floor area is 2,400 square meters.

STAGGERED LAYOUT

“As if about to fall”. The layout manifest the informal settlement pattern but in a vertical presentation. Additionally offering better sun shade compared to common housing complex structures.

MOMENTS

Communal Areas are spead throughout the project. A courtyard is also placed in the marketplace; inclined with the concept of sari-sari stores which also becomes a ‘tambayan’ in informal settlement communities. These communal areas offer many opportunites as well.

18
19 FORM FINDING DIAGRAMS

W6

Has communal bldg. Spaces were assigned

W8

Roof option

Explored the connections Added more housing

20

connections

W14 [FINAL]

Fragmented

Mixed everything

Assorted levels

Bridges and connections

Sari-sari store path

More housing! (total of 30 units from 8)

Roof garden / farms

21 DESIGN PROGRESS
22
Plan
Elevation 0 2 5 10m
Site
Front
23
24 Ground Level Floor Plan 0 2 5 10m 2nd Level Floor Plan 0 2 5 10m FACTORY MARKETPLACE FARM FACTORY MARKETPLACE
25 PLANS + RENDERS
26 LEGEND Living Area Kitchen Toilet & Bath Master Bedroom Bedroom Study Balcony 1 2 3 4 5 6 7
TYPE A UNIT (7 X 10M)
1 1 2 2 3 3 4 4 5 5 6 7
TYPE B UNIT (9 X 12M)

TYPE A UNIT (7 X 10M)

27 HOUSING UNITS CLOSE-UP
28
29 TYPE B UNIT (9 X 12M)
30 3rd Level Floor Plan 0 2 5 10m 4th Level Floor Plan 0 2 5 10m FACTORY
31
32 5th Level Floor Plan 0 2 5 10m 6th Level Floor Plan 0 2 5 10m
33
34 7th Level Floor Plan 0 2 5 10m 8th Level Floor Plan 0 2 5 10m
35
36 EXPLODED ISOMETRIC FLOOR PLANS 2nd Floor Plan Marketplace Factory 3rd Floor Plan 4th Floor Plan 5th Floor Plan 6th Floor Plan 7th Flr. Plan + Roof Garden A B C D E F G
37 DIAGRAM + ELEVATIONS
Elevation Left Side Elevation
Right Side
Front
Rear Elevation
Elevation

CONNECTEDNESS

The bridges and stairs connect each complex and unit to maintain their sense of brotherhood. The bridges serve as shared spaces for the residents. The bridges are areas where people can pursue their activities. People can dry their clothes, play games and continue their hobbies and interests in a different yet acceptable location.

38
39 LONGITUDINAL SECTION
40
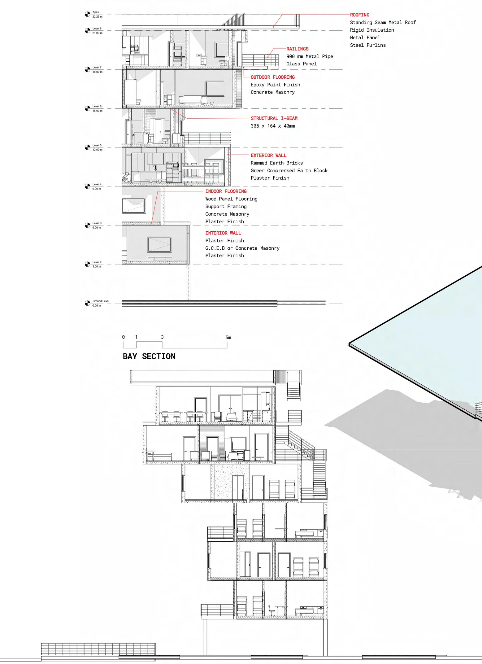
41 BAY SECTION DETAIL
42
43 EXPLODED AXONOMETRIC
44
45

PROJECT NAME:

LOCATION:

WEEK NUMBER:

CHING & HERMOSA

Casa Musa

Tondo, Manila

14

DESCRIPTION: Social Housing project for informal settlers with the intent to develop a self-sustaining community by farming, recycling, reusing, and creating crafts from every part of a banana plant. Planned to provide homes for 30 families, and a marketplace open to the public

46
ARCDS04
47 SUMMARY / BOARDS
48

JURY

Ar. Jim Caumeron

Ar. Regina Morales

Ar. Michael Chito Diaz

“Casa Musa”

Banana Social Housing [AD4]

Instructor: Ar. / Sir Kook Nuestro

By: Joshua Hermosa & Anjello Ching

49 STUDY MODEL
CHING & HERMOSA Architectural Design 04
Banana Social Housing + Marketplace Tondo, Manila W [14]
Sir Kooks
thank you for listening!
Instructor:

Turn static files into dynamic content formats.

Create a flipbook
Issuu converts static files into: digital portfolios, online yearbooks, online catalogs, digital photo albums and more. Sign up and create your flipbook.