PORTAFOLIO ARQUITECTURA HERIBERTO CUADROS VELASQUEZ

Page 1

PORTAFOLIO ARQUITECTURA

HERIBERTO CUADROS VELASQUEZ

ESTUDIOS

Institución Universitaria Colegio Mayor de Antioquia Arquitectura, 2019 - actual

- Ponencia de Arquitectura y Patrimonio, Cartagena 2022

HERIBERTO CUADROS VELÁSQUEZ

Estudiante de Arquitectura de ultimo año, creativo y con buen desarrollo en el trabajo conjunto. Enfocado en el diseño arquitectónico y en la producción visual. al mismo tiempo, busco demostrar mis habilidades, estar en constante aprendizaje y asumir nuevos retos.

COMPETENCIAS PROFESIONALES

REVIT SKETCHUP

PHOTOSHOP AUTOCAD

HABILIDADES E INTERESES

Creatividad

Trabajo en equipo

Escucha activa

EXPERIENCIAS LABORALES

- Gestionar la negociación y evaluación de proyecto,

- Orientar y delegar tareas de manera objetiva desde la concepción hasta la finalización de la obra.

- Proyectar idea de diseño a través del dibujo y herramientas

- digitales en 2D y 3D

Con disponibilidad para residir o trasladarse a otra ciudad.

DATOS DE CONTACTO

Medellín, Doce de Octubre

hcuadros@est.colmayor.edu.co

312 782 03 98
CONTENIDO 01. Vivienda rural
Ecosistema
Edificación
Edificación
02.
comercial 04.
pública 05.
uso mixto 03. La ciudad dentro de la ciudad

SOBRE EL PROYECTO

La propuesta arquitectónica para este diseño tenía como reto una vivienda unifamiliar, que se adaptara al terreno y un usuario con movilidad reducida. Esta vivienda tiene como estrategia de diseño la modulación, por medio del cual se categorizan los espacios y sus usos, donde se integran por circulaciones.

ESQUEMA DE CIRCULACIÓN (MOBILIDAD REDUCIDA)

RELACIONES

01
SOCIAL - PRIVADO

TOTAL PORCENTAJES

PROPORCIÓN ÁREAS

DISTRIBUCIÓN PROGRAMÁTICA

ELEMENTO

SOBRE EL PROYECTO

Para la formulación del ejercicio, se tomo como sitio de intervención la estructura del viaducto del metro en San Antonio. Esta idea orientada al aprovechamiento de esta infraestructura existente da como repuesta un estand comercial el cual comprende las exigencias del sector, como lo es la demanda comercial y al alto flujo peatonal.

ESTRTAEGIA DE DISEÑO

02
COMERCIO DESCANDO OCIO COMPARTIR TRABAJO EXPERIENCIA UBICACIÓN SAN ANTONIO, MEDELLÍN
COMERCIO Y USOS
DIAGRAMA DE INTENCIONES
MODULACIÓN
DIVIDIR ORGANIZAR COWORKING GURMET-BAR JUEGOS RETRO SERVICIOS DESCANSO CIRCULACION PP

ESTUDIO DEL LUGAR

Análisis del microclima Con enfoque en resolver los puntos de mayor radiación solar.

Variedad en la vegetación y buena ventilación mayormente con vientos de norte a sur.

Mapa de calor para identificar el flujo de personas en los senderos peatonales y ciclo rutas

CORTE POR FACHADA 1 100
SECCIÓN TRANSVERSAL 1:100 PLANTA TÍPICA 1:100

Ver video https://www.youtube.com/watch?v=G3pBiuTQAso&ab_channel=HeribertoCuadros

La intensión de esta idea, parte de realizar el detalle de un modulo, el cual compone el estand comercial, para esto se representa en diversas perspectivas con intensión de comprender a mayor profundidad este ecosistema, también se toma un mueble en especifico donde se da a entender su uso y su función.

SECCIÓN A-A’

Se diseña un mueble polifuncional permitiendo incorporar a varios usuarios, ergonomías y almacenamiento entre sí.

A A’
SECCIÓN DETALLE MUEBLE A-A’
USO INDIVIDUAL USO COLECTIVO CUBO ENTRE CUBO DESPIEZE
DETALLE MUEBLE
GOMA ESPUMA TAPIZADA CARCAZA, SOPORTE TAPAS DE MADERA UNIONES BASEEDE ACERO RUEDAS AGARRADERAS B’ A’ A B
SECCIÓN B-B’

PROYECTO

EXPLOTADO Y USOS

SOBRE EL

La premisa en la elaboración de la pieza arquitectónica se enfoca en responder en la necesidad de equipamientos institucionales para la alcaldía de Bello, Antioquia. Este se emplaza en el lote colindante a la antigua estación del ferrocarril, este parte de comprender el contexto a través de un análisis por estructuras, el cual define usos y forma.

03
Parque de Bello
PROYECTO DIAGRAMA INTENCIÓN ARQUITECTÓNICA USOS Y FORMA

Divisiones N4

Cubierta bloqueB Vacío

Cubierta bloqueA

Punto fijo:ascensor.

Plataforma espacio público.

Auditorio.

Facha, materiales vidrio y concreto.

Estructura, vigas y columnas.

A A SECCIÓN B-B’ B B

Fachada madera EXPLOTADO
PLANTA URBANA 1:150

SOBRE EL PROYECTO

UNIDAD VERTICAL SOSTENIBLE

Este curso parte de la idea definida por Alison Smithson el Mat Building, que es la creación de un proyecto, cómo este se desarrolla, y su manera de interpretar este concepto, que, en vez de encapsularlo o parametrizarlo, lo dejan como un concepto libre para su amplia aplicación e investigación en donde es evidente una edificación flexible que permite extenderse, transformaciones donde este se expresa como una arquitectura con capacidad adaptativa y enfocada en la sostenibilidad

ATRIBUTOS FORMALES

PROTOSECCIÓN – INSPIRACION DISEÑO

1. Relaciones con el paisaje

2. Estancias con relación al vacío.

3. Sistema de aprovechamiento de energías

4. Vacíos como núcleos y centralidades.

5. Relaciones con el primer nivel

6. Sistema de movilidad descontinua.

1. Apertura hacia el paisaje y Huertas

2. Sistema captación fotovoltaica y de lluvia

3. Plataformas con cultivos Sistema de espacios públicos

4. Acceso callejero urbano

5. Energía promedio de las fuerzas de shut de basura

6. Tipologías en las viviendas

7. Generar por medio de los residuos mobiliario, Tetrapak

SUSTRAERYDESINFICAR

04
VINCULAR ROTAR EXTRUIR CONFORMAR
ESPACIO PÚBLICO

VIVIENDA SIMPLEX,DUPLEXY TRIPEX

Promediode personasporhogar

3,1 A4,4

1A2PERSONAS40m2 2A4PERSONAS70m2

Durante el proceso de diseño se generan tres torres producto de las proto secciones, las cuales van a albergar diversos usos y tipologías de viviendas, estas torres se encuentran articuladas por medio de una circulación vertical descontinua como también a través de plataformas

LOCALIZACIÓN:EL PERPETUO SOCORRO, MEDELLÍN

DIAGRAMA ANÁLISIS DEL LUGAR

Comercio Flujo peatonal Fabricas Estaciónexposiciones

SOBRE EL PROYECTO

La propuesta arquitectónica edificación de uso mixto, maximizar el uso del espacio y ofrecer una amplia gama de servicios y opciones en un solo lugar, el cual busca ofrecer una experiencia de calidad para todos los usuarios, a su vez que sea beneficioso para la comunidad.

PARQUE ELPERPETUO SOCORRO

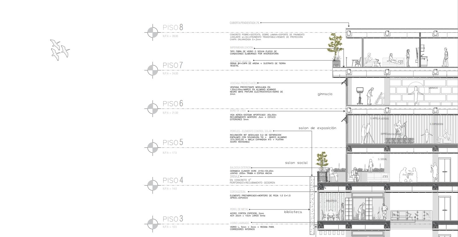
PLANTA ARQUITECTONICA NIVELES DEL 8,9,10 – N.P.A + 24.50m - 31.50M PLANTAS RESIDENCIALES 1:250 PLANTA ARQUITECTONICA NIVELES DEL 11,12,13,14,15,16,17,18N.P.A +59.50m PLANTA ARQUITECTONICA NIVELES 19,20,21,22,23,24,25 N.P.A + 63.00m84.00m PLANTA ARQUITECTONICA NIVEL 7 – N.P.A+ 21.00m PLANTAARQUITECTONICA NIVEL 3 N.P.A +7.00m PLANTA ARQUITECTONICA NIVEL 6 – N.P.A+ 17.50m PLANTAARQUITECTONICA NIVEL4 – N.P.A+ 10.50m SALÓN POLIVALENTE SALON DE BAILE SALON DE BAILE 2 MUSICA Y ARETS PLANTAS TIPICAS 1:250 ESCALERAS DE EMERGENCIA BUITRONES GENERALES ASCENSORES

CORTE POR FACHADA EDIFICACION

USO MIXTO

ESC: 1:20

Hcuadros@est.colmayor.edu.co 3127820398

Turn static files into dynamic content formats.

Create a flipbook
Issuu converts static files into: digital portfolios, online yearbooks, online catalogs, digital photo albums and more. Sign up and create your flipbook.