HuizenHendriks van
Zichtweg 6 , 7335 AW Apeldoorn

Voorzien van eigen tuin
Moderne badkamer en keuken
Zonnig balkon
![]()
Zichtweg 6 , 7335 AW Apeldoorn

Zonnig balkon
Energielabel C
Soort galerijflat
Kamers 2
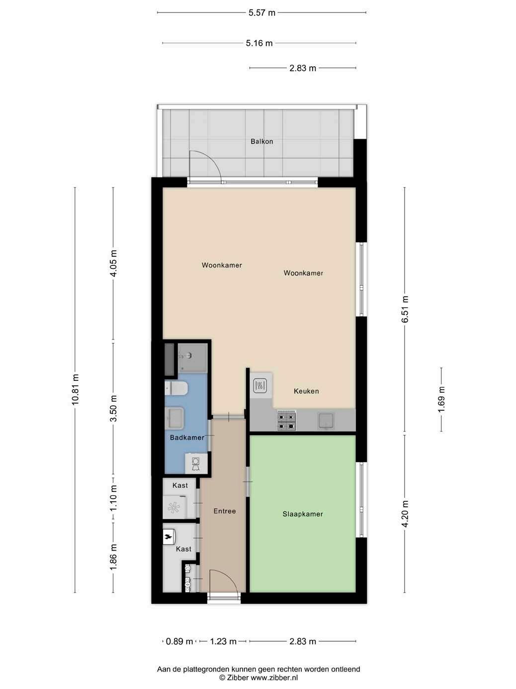
Woonoppervlakte 56 m²
Inhoud 184 m³
Bouwjaar 1980
Tuin achtertuin, zonneterras
Garage geen garage
Verwarming c.v.-ketel
Isolatie dubbel glas
Energielabel C

De in deze brochure getoonde informatie wordt door Hendriks makelaardij met zorg samengesteld, doch voor de juistheid en volledigheid daarvan kan niet worden ingestaan en kunnen hieraan geen rechten worden ontleend. Spel- en typefouten voorbehouden. De plattegronden zijn geproduceerd voor promotionele doeleinden en ter indicatie. Er kunnen geen rechten aan worden ontleend. Maten zijn niet eigenhandig opgemeten. Indien er twijfel bestaat over de accuratie van de gegevens aangaande deze brochure, is de geïnteresseerde zelf verantwoordelijk voor het nameten van deze gegevens. Voor meer informatie wordt u doorverwezen naar www.hendriks.nl
In 2023 heb ik de sleutel van dit fijne appartement mogen ontvangen. Het appartement is volledig gerenoveerd en gemoderniseerd om hier helemaal mijn eigen plekje te creeëren. En dat is gelukt! Ik heb hier de afgelopen jaren met ontzettend veel plezier mogen wonen. Een leuke, rustige buurt én op steenworp afstand van het centrum.
Tijdens de verbouwing heb ik mijn vriend ontmoet en hebben wij hier samengewoond. Wat wij zo fijn vinden aan dit appartement is het grote balkon en het beschutte tuintje in de hoek. Hierdoor kun je zon en schaduw opzoeken. Daarnaast is het een heerlijk ruimtelijk hoekappartement met veel lichtinval. Het complex zelf is kleinschalig en voelt hierdoor heel veilig.
Wat ook benoemenswaardig is, is dat door de grote inbouwkasten er veel opbergruimte is. Wij hebben hier samen een heerlijke tijd gehad, maar wij zijn klaar voor onze volgende stap, namelijk een eengezinswoning.

Wij hopen dat de volgende bewoner(s) hier met net zoveel plezier gaan wonen als dat wij de afgelopen jaren heb gedaan.
Apeldoorn: Zwolseweg 208, T
huizen



lichte hal/woonkamer
Lichte hal/woonkamer heerlijk binnenkomen!
De hal verwelkomt je en geeft toegang tot alle ruimtes in de woning. Via de hal kom je meteen bij twee handige bergkasten, waar je eenvoudig je spullen kwijt kunt. De woonkamer voelt licht en uitnodigend door de grote ramen. Hier creëer je een fijne ruimte om lekker te ontspannen en kun je met gemak zowel een gezellige zithoek als een eethoek plaatsen.

culinair koken
De open keuken – vernieuwd in 2023 – zorgt ervoor dat koken en genieten moeiteloos samengaan. De keuken is strak en modern afgewerkt en voorzien van alle nodige apparatuur.




De ruime slaapkamer biedt ruimte voor een tweepersoonsbed en een grote kledingkast. De badkamer is in 2023 gemoderniseerd en zorgt voor een frisse en eigentijdse uitstraling. Je vindt er een toilet, een wastafel en een douche, en er is een extra aansluiting voor je wasmachine. Compact en van alle gemakken voorzien!




geniet van de zon
Vanuit de woonkamer loop je direct het balkon op. Het is gelegen op het zuidwesten, wat betekent dat je hier heerlijk van de zon kunt genieten terwijl je uitkijkt over de omgeving. Dit is een heerlijke plek waar je graag tijd doorbrengt. Het appartement beschikt ook over een eigen tuin. Hier kun je in alle privacy genieten van groen om je heen, ideaal voor een moment van ontspanning of een barbecue.


alles binnen handbereik!
De Heeze is een rustige en groene woonwijk met een fijne balans tussen stadsleven en natuur. Hier woon je op loopafstand van supermarkten, winkels en horecagelegenheden. Tegelijkertijd vind je in de buurt parken en wandelroutes voor ontspanning. Met goede verbindingen naar het stadscentrum en openbaar vervoer ligt alles binnen handbereik. Er is voldoende gratis parkeergelegenheid rondom het appartement.




noorden kadastrale kaart

Apeldoorn heeft de laatste jaren een gezonde groei doorgemaakt en is het levendige centrum van de Veluwe. De gemeente telt inmiddels ca. 168.000 inwoners en is de grootste stad op de Veluwe en de twaalfde stad van Nederland. Het stedelijke gebied van Apeldoorn is onderverdeeld in ruim 40 wijken. En dan is er nog het landelijk gebied waar bijna 20.000 mensen wonen, verdeeld over de bij Apeldoorn behorende dorpen Beekbergen, Ugchelen, Beemte Broekland, Hoenderloo, Hoog Soeren, Lieren, Loenen, Nieuw Milligen, Uddel, Wenum Wiesel, deels Radio Kootwijk en Klarenbeek.
Door de vele parken, heemtuinen, maar vooral ook door de uitgestrekte natuurgebieden die rondom de stad zijn gelegen, is Apeldoorn met recht het ‘Groene hart van de Veluwe’. De Koninklijke Houtvesterij Het Loo vormt één van Nederlands grotere aaneengesloten natuurgebieden met een oppervlakte van 10.500 hectare. In deze natuurlijke omgeving leven onder andere edelherten, reeën en wilde zwijnen. Apeldoorn is ook een ‘Koninklijke Stad’, bekend om Paleis Het Loo met zijn prachtige tuinen, Koninklijke Stallen en Het Aardhuis, voormalig jachtchalet van koning Willem II. Het woonklimaat in Apeldoorn is zéér aantrekkelijk.



HEERHUGOWAARD
ALKMAAR LANDSMEER HOORN
ZAANDAM
(2x)
A’DAM WEST
HOOFDDORP HAARLEM
LEIDEN
Wij geloven sterk in lokaal makelaarschap. Kennis van de buurt, de omgeving en de daarbij behorende ontwikkeling van de huizenprijzen zijn onmisbaar om voor jou het maximale resultaat te boeken.
Met Hendriks Makelaardij kies je voor:
• makelaars die al jarenlang verbonden zijn met de regio
• kennis van de lokale woningmarkt
• een verkoopplan afgestemd op jouw woning
• maximale exposure van je huis
• bezichtigingen ook in het weekend
• netwerk met honderden woningzoekers
Verkoop je je huis met Hendriks dan ben je met de eigen app 24/7 op de hoogte van het verkoopproces.
Bezichtigingsverzoeken bereiken je direct en beantwoord je snel en discreet op het moment dat het jou uitkomt.
Ook je huis verkopen? Onze makelaars komen graag en vrijblijvend bij je langs. We maken dan direct een gratis waardebepaling. Hendriks Makelaardij werkt op basis van no cure no pay. En betalen doe je pas bij verkoop.
Zwolseweg 208 055 - 521 92 77 apeldoorn@hendriks.nl www.hendriks.nl
PURMEREND
MONNICKENDAM
A’DAM NOORD
AMSTERDAM
AMSTELVEEN
ALMERE
BUSSUM
HILVERSUM
VLEUTEN DE MEERN UTRECHT MAARSSEN
AMERSFOORT
(2x) (2x)
NIEUWEGEIN WIJK BIJ DUURSTEDE
MEPPEL
ZWOLLE
APELDOORN
ARNHEM
(2x)
NIJMEGEN
‘S-HERTOGENBOSCH
BREDA
EINDHOVEN
TILBURG WEERT
ROERMOND
