Rossinistraat 2, Waalwijk

Page 1


HuizenHendriks van

Hofjeswoning

Tuin op het zuiden

Energielabel A

Centraal gelegen

Starters opgelet

Kenmerken

Soort eengezinswoning

Type tussenwoning

Kamers 4

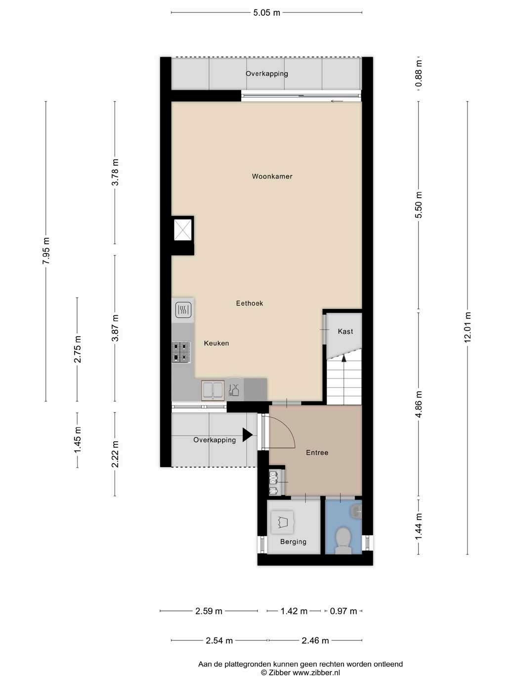
Woonoppervlakte 128 m²

Perceeloppervlakte 111 m²

Inhoud 453 m³

Bouwjaar 1981

Tuin achtertuin

Garage geen garage

Verwarming c.v.-ketel

Isolatie volledig geïsoleerd, hr-glas

Energielabel A

De in deze brochure getoonde informatie wordt door Hendriks makelaardij met zorg samengesteld, doch voor de juistheid en volledigheid daarvan kan niet

den ingestaan en kunnen hieraan geen rechten worden ontleend. Spel- en typefouten voorbehouden. De plattegronden zijn geproduceerd voor promotionele doeleinden en ter indicatie. Er kunnen geen rechten aan worden ontleend. Maten zijn niet eigenhandig opgemeten. Indien er twijfel bestaat over de accuratie van de gegevens aangaande deze brochure, is de geïnteresseerde zelf verantwoordelijk voor het nameten van deze gegevens. Voor meer informatie wordt u doorverwezen naar www.hendriks.nl

Verkoper vertelt

Makelaar vertelt: ONTDEK ROSSINISTRAAT 2: HÉT DROOMHUIS VOOR STARTERS EN JONGE GEZINNEN

Ben je op zoek naar die ene woning die alles biedt wat jouw hart sneller laat kloppen? Deze hofjeswoning aan de Rossinistraat in Waalwijk combineert modern gemak met een warme, karakteristieke uitstraling. Denk aan een heerlijk zonnige tuin op het zuiden, energielabel A voor optimaal wooncomfort én een ideale centrale ligging. Met al deze pluspunten is dit het perfecte thuis voor starters op de woningmarkt, jonge gezinnen of eenpersoonshuishoudens. Voel jij je aangesproken? Lees dan snel verder en ontdek waarom deze woning jouw hart verovert!

kom binnen

charmante sfeer huizen

Kom binnen

Met een woonoppervlakte van maar liefst 129 m² heb je ruimte in overvloed. De woonkamer van 19 m² biedt een intieme sfeer en vormt het kloppende hart waar gezinsmomenten tot leven komen. Of je nu gasten ontvangt voor een gezellig diner of lekker onderuit zakt om jouw favoriete serie te kijken, hier voel je je thuis. Het energielabel A onderstreept het moderne karakter van de woning.

De keuken vormt een praktische ruimte waar koken een feestje wordt. Gastvrijheid en eenvoud gaan hier hand in hand. Denk aan heerlijke zondagse brunches klaarmaken of gezellig samen koken na een lange werkdag. Vanuit de keuken loop je direct door via de woonkamer naar de zonnige achtertuin met een ligging op het zuiden.

huizen

Twee ruime slaapkamers

twee ruime slaapkamers

stijlvolle badkamer

Twee ruime slaapkamers: De eerste verdieping telt twee goed ingedeelde slaapkamers, beide met genoeg ruimte voor een comfortabel bed en een kast. Of je nu een fijne kinderkamer, logeerkamer of werkkamer nodig hebt, hier kan het allemaal.

Nette badkamer: Op deze verdieping vind je ook de badkamer. Een compacte maar praktische ruimte, van alle gemakken voorzien. Fris, stijlvol en met alles wat je nodig hebt voor een relaxmoment of een frisse start van de dag.

Derde slaapkamer

derde slaapkamer aparte was/bergruimte

Derde slaapkamer: Op de tweede verdieping tref je nog een royale derde slaapkamer aan. Deze kamer kan bijvoorbeeld uitstekend dienen als rustige thuiswerkplek, hobbyruimte of master bedroom. Dankzij de schuine daken voelt deze verdieping knus maar ook karakteristiek aan.

Wasruimte en bergruimte: Deze verdieping biedt daarnaast handige extra ruimte voor je wasmachine, droger en allerhande spullen die je graag netjes uit het zicht wil houden.

Superpraktisch!

op het zuiden

Op het zuiden onderhoudsvriendelijk

Zonnige achtertuin op het zuiden: Vanuit de woonkamer loop je zo de tuin in, jouw privéplek om te ontspannen en te genieten van de zon. Deze onderhoudsvriendelijke achtertuin met ideale ligging belooft een heerlijke buitenruimte voor ieder seizoen.

noorden kadastrale kaart

heerlijk wonen in Waalwijk

Waalwijk

Waalwijk ligt zeer centraal midden in de driehoek ’s-Hertogenbosch, Breda en Tilburg.

Aan de ene kant aan de voet van een schitterend Nationaal Park: de Loonse en Drunense duinen en aan de andere kant het water.

Gemeente Waalwijk is een stad met een zeer gevarieerd woningaanbod. Wie landelijk wil wonen, vindt hiervoor de mogelijkheden in één van de kernen Sprang-Capelle en Waspik. Wie meer van de stadse bedrijvigheid houdt, kan terecht in de kern Waalwijk. Momenteel telt Waalwijk ruim 47.000 inwoners in een gebied van ruim 6800 hectaren en is uitstekend bereikbaar via het wegennet. Waalwijk typeert zich door haar landelijk karakter en de dynamische bedrijvigheid in en rondom de kern van Waalwijk. Bovendien heeft de gemeente een belangrijke regionale functie op het gebied van onderwijs, sport en gezondheidszorg, voor jong en oud.

Ook op cultureel gebied heeft Waalwijk veel te bieden. Niet alleen in theater De Leest, maar ook in verschillende galeries in Waalwijk en de kernen is boeiende kunst te zien. Voor het grote publiek zijn in de bibliotheek en sociaal cultureel centrum Den Bolder in Waspik regelmatig exposities. In het Nederlands Leder- en Schoenenmuseum, kan men het rijke verleden van de leder- en schoenenindustrie in De Langstraat opsnuiven. Bovendien kent Waalwijk een gezellig, authentiek centrum. In het centrum is een zeer gevarieerd winkelaanbod aanwezig en kan er worden genoten op een van de vele terrassen.

HEERHUGOWAARD

ALKMAAR LANDSMEER

ZAANDAM

HOOFDDORP HAARLEM (2x)

A’DAM WEST

Lokaal makelaarschap

Wij geloven sterk in lokaal makelaarschap. Kennis van de buurt, de omgeving en de daarbij behorende ontwikkeling van de huizenprijzen zijn onmisbaar om voor jou het maximale resultaat te boeken.

Met Hendriks Makelaardij kies je voor:

• makelaars die al jarenlang verbonden zijn met de regio

• kennis van de lokale woningmarkt

• een verkoopplan afgestemd op jouw woning

• maximale exposure van je huis

• bezichtigingen ook in het weekend

• netwerk met honderden woningzoekers

Verkoop je je huis met Hendriks dan ben je met de eigen app 24/7 op de hoogte van het verkoopproces.

Bezichtigingsverzoeken bereiken je direct en beantwoord je snel en discreet op het moment dat het jou uitkomt.

Ook je huis verkopen? Onze makelaars komen graag en vrijblijvend bij je langs. We maken dan direct een gratis waardebepaling. Hendriks Makelaardij werkt op basis van no cure no pay. En betalen doe je pas bij verkoop.

Besterdring 223 013 - 549 91 90 tilburg@hendriks.nl www.hendriks.nl

HOORN

PURMEREND

MONNICKENDAM

A’DAM NOORD

AMSTERDAM

AMSTELVEEN

LEIDEN

ALMERE

BUSSUM

HILVERSUM

MAARSSEN

VLEUTEN DE MEERN UTRECHT

AMERSFOORT

(2x) (2x)

NIEUWEGEIN WIJK BIJ DUURSTEDE

MEPPEL

ZWOLLE

APELDOORN

ARNHEM

(2x)

NIJMEGEN

‘S-HERTOGENBOSCH

BREDA

TILBURG

EINDHOVEN

WEERT

ROERMOND

Turn static files into dynamic content formats.

Create a flipbook
Issuu converts static files into: digital portfolios, online yearbooks, online catalogs, digital photo albums and more. Sign up and create your flipbook.