Skip to main content

Pierre Kempstraat 7, Melick

Page 1


HuizenHendriks van

Verrassend ruim

Enorme leefruimte begane grond

Heerlijke tuin

Moderne badkamer

Fijne straat

Pierre Kempstraat 7 , 6074 CN Melick

Soort eengezinswoning

Type halfvrijstaande woning

Kamers 7

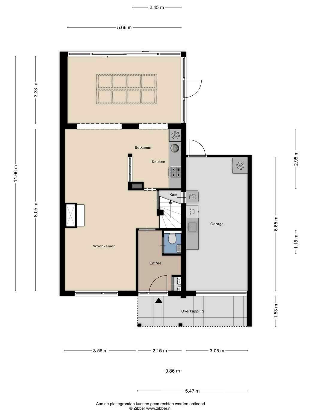
Woonoppervlakte 150 m²

Perceeloppervlakte 317 m²

Inhoud 603 m³

Bouwjaar 1976

Tuin achtertuin, voortuin

Garage aangebouwd steen

Verwarming c.v.-ketel

Isolatie muurisolatie, hr-glas

Energielabel C

De in deze brochure getoonde informatie wordt door Hendriks makelaardij met zorg samengesteld, doch voor de juistheid en volledigheid daarvan kan niet worden ingestaan en kunnen hieraan geen rechten worden ontleend. Spel- en typefouten voorbehouden. De plattegronden zijn geproduceerd voor promotionele doeleinden en ter indicatie. Er kunnen geen rechten aan worden ontleend. Maten zijn niet eigenhandig opgemeten. Indien er twijfel bestaat over de accuratie van de gegevens aangaande deze brochure, is de geïnteresseerde zelf verantwoordelijk voor het nameten van deze gegevens. Voor meer informatie wordt u doorverwezen naar www.hendriks.nl

Verkoper vertelt

Ons thuis, een plek vol herinneringen en verbondenheid!

Met een warm hart zetten wij ons ouderlijk huis te koop. Dit huis is altijd meer geweest dan alleen een plek om te wonen. Het is een thuis waar we zijn opgegroeid, een plek vol herinneringen, rust en verbondenheid. Hier is ruimte voor een gezin om te groeien en samen te genieten van alles wat deze woning en de omgeving te bieden hebben.

De woning zelf is heerlijk ruim, met meerdere kamers die volop mogelijkheden bieden. een speelkamer ,een thuiswerkplek of een rustige plek voor jezelf, het kan hier allemaal. De tuin is een fijne, groene oase –perfect voor spelende kinderen, zomerse barbecues of gewoon een ontspannen moment in de zon.

De basisschool is op loopafstand, wat altijd een groot voordeel is geweest. Voor het voortgezet onderwijs pak je eenvoudig de fiets. Alles wat je nodig hebt, is dichtbij, terwijl de buurt toch rust

en ruimte biedt. Bovendien zijn er prachtige wandelroutes en fietspaden in de omgeving, ideaal om even op adem te komen of quality time door te brengen met het gezin.

Wat dit huis écht uniek maakt, is de buurt. Hier wonen mensen die naar elkaar omkijken. Het is een hechte gemeenschap waar buren betrokken zijn en elkaar een handje helpen als dat nodig is. De buurt transformeert langzaam in een plek vol jonge gezinnen, en het is mooi om te zien hoe nieuwe generaties zich hier thuis voelen. Ik hoop dat dit huis net zoveel betekent voor de volgende bewoners als het altijd voor ons heeft gedaan.

Roermond: Sint Christoffelstraat 1-3, T 0475 - 31

Veel leefruimte

open indeling

150 m2 woonoppervlakte

Deze halfvrijstaande woning biedt meer dan voldoende ruimte met een woonoppervlakte van 150 m². Perfect voor gezinnen die willen groeien en hun leefruimte optimaal willen benutten. De open indeling van de woonruimtes zorgt voor een natuurlijk verloop tussen de kamers, ideaal voor zowel dagelijkse bezigheden als grotere gezinsbijeenkomsten. Hier kun je leven, werken en ontspannen zonder concessies te doen aan comfort.

4 ruime slaapkames

tal van opties

Met vier ruime slaapkamers is er volop ruimte voor elk gezinslid om een eigen plekje te hebben. Daarnaast biedt de zolder voldoende potentieel voor een extra slaapkamer of thuiswerkkamer. Stel je voor dat je eindelijk die persoonlijke ruimte hebt die je altijd al wilde, of het nu een rustige studiekamer is of een speelhoek voor de kinderen.

Slaap lekker
huizen

Recent gerenoveerd

goed onderhouden vol mogelijkheden

Hoewel de woning goed is onderhouden, met een recent gerenoveerde badkamer en toilet, biedt het nog steeds de kans om je eigen stempel erop te drukken. Zie de mogelijkheden en creëer een moderne, persoonlijke ruimte die precies aan jouw wensen voldoet. Het is een unieke gelegenheid om je droomhuis te realiseren zonder helemaal opnieuw te hoeven beginnen.

Op het noordwesten

riante tuin

rustige ligging

De riante, noordwestelijk gelegen achtertuin is een paradijs voor buitenliefhebbers. Hier kun je genieten van lange zomeravonden, omringd door groen en de geluiden van de natuur. Of je nu een tuinier in hart en nieren bent of gewoon op zoek bent naar een plek om te ontspannen, deze tuin biedt het allemaal. Ruimte genoeg voor een speelplaats, moestuin of prachtige bloementuin. Hier heb je voldoende ruimte om een mooie loungeplek of een ruime berging te bouwen.

Gelegen in een rustige straat in het geliefde Melick, biedt deze woning de perfecte balans tussen rust en stadsleven. Op slechts tien minuten van Roermond ben je nooit ver van de levendigheid van de stad, met zijn winkelstraten, restaurants en culturele attracties. In de buurt vind je bovendien alle dagelijkse voorzieningen zoals supermarkten, scholen en sportfaciliteiten.

Melick

Het kerkdorp Melick maakt, sinds de herindeling van 1 januari 2007, samen met Herkenbosch, Sint Odiliënberg, Posterholt, Montfort en Vlodrop deel uit van de gemeente Roerdalen. Deze gemeente telt een inwonersaantal van 21.286 en bestrijkt een gebied van circa 8.900 hectare.

De gemeente is omgeven door een rijkdom aan natuurschoon. Bekend is het natuurreservaat De Meinweg, een nationaal park. Het ligt tussen de voormalige spoorlijn Roermond/Mönchengladbach en de Duitse grens, en het fraaie Roerdal, dat zich slingerend een weg door onze omgeving baant.

Melick beschikt over diverse voorzieningen. Er is onder andere een basisschool, een peuterspeelzaal, enkele winkels (met o.a. een supermarkt), banken, huisartsen, een postagentschap en diverse sportvoorzieningen waaronder een zwembadcomplex, een sportpark en een tennispark. Iedere vrijdagavond is er koopavond en iedere dinsdag vindt er een weekmarkt plaats op het Kerkplein.

Melick ligt in een bosrijke omgeving, op korte afstand van de Duitse grens en ongeveer drie kilometer van Roermond.

heerlijk wonen in Melick
noorden kadastrale kaart

Lokaal makelaarschap

Wij geloven sterk in lokaal makelaarschap. Kennis van de buurt, de omgeving en de daarbij behorende ontwikkeling van de huizenprijzen zijn onmisbaar om voor jou het maximale resultaat te boeken.

Met Hendriks Makelaardij kies je voor:

• makelaars die al jarenlang verbonden zijn met de regio

• kennis van de lokale woningmarkt

• een verkoopplan afgestemd op jouw woning

• maximale exposure van je huis

• bezichtigingen ook in het weekend

• netwerk met honderden woningzoekers

Verkoop je je huis met Hendriks dan ben je met de eigen app 24/7 op de hoogte van het verkoopproces.

Bezichtigingsverzoeken bereiken je direct en beantwoord je snel en discreet op het moment dat het jou uitkomt.

HEERHUGOWAARD

ALKMAAR LANDSMEER HOORN

Ook je huis verkopen? Onze makelaars komen graag en vrijblijvend bij je langs. We maken dan direct een gratis waardebepaling. Hendriks Makelaardij werkt op basis van no cure no pay. En betalen doe je pas bij verkoop.

Sint Christoffelstraat 1-3 0475 - 31 12 00 roermond@hendriks.nl www.hendriks.nl

PURMEREND ZAANDAM

(2x)

A’DAM WEST

HOOFDDORP HAARLEM

LEIDEN

MONNICKENDAM

A’DAM NOORD

AMSTERDAM

AMSTELVEEN

VLEUTEN DE MEERN

ALMERE

BUSSUM

HILVERSUM

UTRECHT MAARSSEN

AMERSFOORT

(2x) (2x)

NIEUWEGEIN WIJK BIJ DUURSTEDE

MEPPEL

ZWOLLE

APELDOORN

ARNHEM

(2x)

NIJMEGEN

‘S-HERTOGENBOSCH

BREDA

TILBURG

EINDHOVEN

WEERT

ROERMOND

Turn static files into dynamic content formats.

Create a flipbook