Metslawierstraat 83, Tilburg

Page 1


HuizenHendriks van

Ideale starterswoning

Twee prima slaapkamers

Instapklaar

Tuin op het noordoosten

Duurzaam wonen

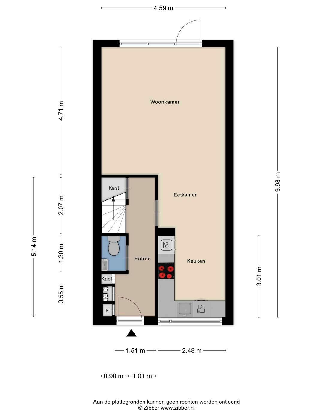
Soort eengezinswoning

Type tussenwoning

Kamers 4

Woonoppervlakte 108 m²

Perceeloppervlakte 124 m²

Inhoud 383 m³

Bouwjaar 1998

Tuin achtertuin

Garage geen garage

Verwarming stadsverwarming

Isolatie volledig geïsoleerd, hr-glas

Energielabel A

De in deze brochure getoonde informatie wordt door Hendriks makelaardij met zorg samengesteld, doch voor de juistheid en volledigheid daarvan kan niet worden ingestaan en kunnen hieraan geen rechten worden ontleend. Spel- en typefouten voorbehouden. De plattegronden zijn geproduceerd voor promotionele doeleinden en ter indicatie. Er kunnen geen rechten aan worden ontleend. Maten zijn niet eigenhandig opgemeten. Indien er twijfel bestaat over de accuratie van de gegevens aangaande deze brochure, is de geïnteresseerde zelf verantwoordelijk voor het nameten van deze gegevens. Voor meer informatie wordt u doorverwezen naar www.hendriks.nl

Verkoper vertelt

Droom je van een huis waar je direct kunt intrekken en je thuis voelt? Dit huis gaf ons dat gevoel gelijk.

De knusse woonkamer en de zonnige tuin nodigen je uit om te ontspannen. De tuin is het hele jaar groen en is de ideale plek voor lange, gezellige zomeravonden. De hoofdslaapkamer is een ware blikvanger; door de ruimte, hoogte en de en-suite badkamer ontstaat een gevoel van luxe. Ook is er nog een grote vide met inloopkast aanwezig op deze kamer. De andere kamer biedt volop mogelijkheden, van kinderkamer tot kantoor. Daarnaast is de ligging van ons huis ook erg praktisch: je zit zo op uitvalswegen zoals de snelweg naar Breda/Eindhoven en je zit op loop- en fietsafstand van scholen en winkels. Nu we zelf een andere woning hebben gevonden op een leuke plek, willen we dit huis graag overdragen aan mensen die er ook zo van kunnen genieten.

open keuken

Open keuken met inbouwapparatuur huizen

De keuken is een waar genot voor kookliefhebbers: genoeg kasten voor opbergruimte en de inbouwapparatuur – inclusief vaatwasser, oven/ combi, inductiekookplaat met afzuigkap en koelkast – zorgt ervoor dat je hier met gemak de sterren van de hemel kookt. De gietvloer en de strakke wanden plafondafwerking maken de begane grond helemaal af.

Fijne lichtinval

fijne lichtinval ontspannen

De begane grond biedt een lichte woonkamer dankzij de grote raampartijen die voor een overvloed aan natuurlijk daglicht zorgen. De open verbinding met het eetgedeelte en de moderne keuken geeft de ruimte een luchtige flow.

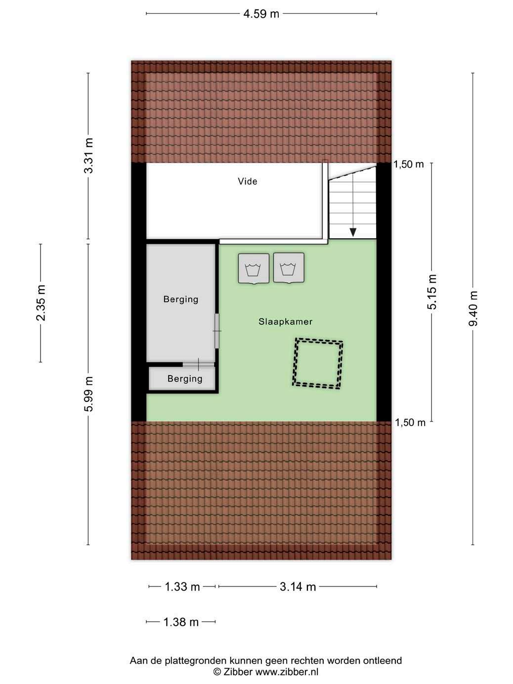
3 slaapkamers

3 slaapkamers met badkamer

De eerste verdieping verrast opnieuw. Aan de achterzijde van de woning bevindt zich de royale hoofdslaapkamer met direct toegang tot een ensuite badkamer – een echte luxe! Je eigen spamomentjes worden hier werkelijkheid dankzij de moderne afwerking en voorzieningen zoals een ligbad, ruime inloopdouche, wastafel en hangtoilet. Boven de hoofdslaapkamer vind je bovendien een functionele vide, die bijvoorbeeld dienst kan doen als thuiskantoor, wasruimte of extra opbergruimte. Aan de voorzijde vind je de tweede slaapkamer, een fijne ruimte die perfect is als logeerkamer, hobbykamer of werkplek.

volop genieten

zonnige tuin

Via de openslaande deur wandel je naar de zonnige tuin, ideaal voor ontspanning of bijvoorbeeld een gezellige barbecue op een zwoele zomeravond. De tuin is keurig aangelegd met een mooie mix van bestrating en groen, en biedt alle privacy die je je kunt wensen. Achterin bevindt zich een vrijstaand schuurtje mét elektra: perfect voor je fietsen en tuingereedschap. Ook is er een handige achterom.

Volop genieten
heerlijk wonen in Tilburg

Tilburg

Tilburg is momenteel de 7e stad van Nederland met een grote diversiteit aan bedrijvigheid, woningbouw, onderwijs en cultuur. Er is hard aan de weg getimmerd de laatste jaren; vele centrumlocaties rondom de oude stadshaven en NS-werkplaats zijn recent omgetoverd tot bruisende gebieden met vele woningen, bedrijven en horeca.

Het bijzondere aan Tilburg is de grote diversiteit aan wijken met elk hun eigen, unieke karakter. Van het levendige stadscentrum tot rustige en “groene” woonwijken, er is voor ieder wat wils! De gemeente Tilburg omvat ook de mooie plaatsen Berkel-Enschot, Udenhout en Biezenmortel. Hier beleef je nog het echte “dorpsgevoel” met alle stedelijke voorzieningen toch heel dichtbij!

In de omgeving liggen prachtige natuurgebieden, zoals de Loonse en Drunense Duinen, de Oisterwijkse Bossen en Vennen en Moerenburg. Hier kun je heerlijk wandelen, fietsen en ontspannen in de natuur.

Ook qua onderwijs staat de stad hoog in aanzien. Naast Tilburg University zijn er vele scholen op alle denkbare niveaus.

Tilburg is ook bekend om zijn uitgebreide evenementenkalender. Van de Tilburgse Kermis tot diverse festivals zoals Incubate, Roadburn en Spoorpark Live. De stad biedt een ruime diversiteit aan sportfaciliteiten. Niet alleen voetbal en (ijs)hockey, maar bv. ook golf, tennis, rugby, zwemsporten, atletiek, sportvissen, fitness en ga zo maar door.

De rest van Nederland is uitstekend te bereiken via de vele (snel)wegen en het openbaar vervoer met maar liefst 3 treinstations.

noorden kadastrale kaart

HEERHUGOWAARD

ALKMAAR LANDSMEER

ZAANDAM

HOOFDDORP HAARLEM (2x)

A’DAM WEST

Lokaal makelaarschap

Wij geloven sterk in lokaal makelaarschap. Kennis van de buurt, de omgeving en de daarbij behorende ontwikkeling van de huizenprijzen zijn onmisbaar om voor jou het maximale resultaat te boeken.

Met Hendriks Makelaardij kies je voor:

• makelaars die al jarenlang verbonden zijn met de regio

• kennis van de lokale woningmarkt

• een verkoopplan afgestemd op jouw woning

• maximale exposure van je huis

• bezichtigingen ook in het weekend

• netwerk met honderden woningzoekers

Verkoop je je huis met Hendriks dan ben je met de eigen app 24/7 op de hoogte van het verkoopproces.

Bezichtigingsverzoeken bereiken je direct en beantwoord je snel en discreet op het moment dat het jou uitkomt.

Ook je huis verkopen? Onze makelaars komen graag en vrijblijvend bij je langs. We maken dan direct een gratis waardebepaling. Hendriks Makelaardij werkt op basis van no cure no pay. En betalen doe je pas bij verkoop.

Besterdring 223 013 - 549 91 90 tilburg@hendriks.nl www.hendriks.nl

HOORN

PURMEREND

MONNICKENDAM

A’DAM NOORD

AMSTERDAM

AMSTELVEEN

LEIDEN

ALMERE

BUSSUM

HILVERSUM

MAARSSEN

VLEUTEN DE MEERN UTRECHT

AMERSFOORT

(2x) (2x)

NIEUWEGEIN WIJK BIJ DUURSTEDE

MEPPEL

ZWOLLE

APELDOORN

ARNHEM

(2x)

NIJMEGEN

‘S-HERTOGENBOSCH

BREDA

TILBURG

EINDHOVEN

WEERT

ROERMOND

Turn static files into dynamic content formats.

Create a flipbook
Issuu converts static files into: digital portfolios, online yearbooks, online catalogs, digital photo albums and more. Sign up and create your flipbook.