Dorpsstraat 6, Roermond

Page 1


HuizenHendriks van

Ruime vrijstaande woning

Levensloopbestendig wonen

Tuin op het zuidwesten

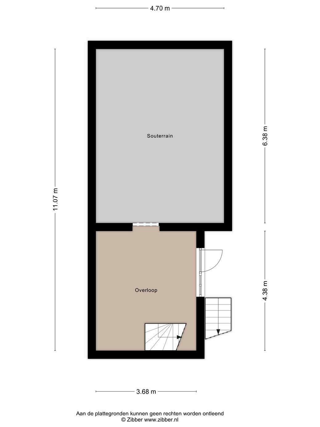
Groot souterrain

Prachtige ligging aan de bosrand

Kenmerken

Soort bungalow

Type vrijstaande woning Kamers 10

Woonoppervlakte 226 m²

Perceeloppervlakte 573 m²

Inhoud 887 m³

Bouwjaar 2003

Tuin achtertuin, voortuin

Garage geen garage

Verwarming c.v.-ketel

Isolatie volledig geïsoleerd

Energielabel A

De in deze brochure getoonde informatie wordt door Hendriks makelaardij met zorg samengesteld, doch voor de juistheid en volledigheid daarvan kan niet worden ingestaan en kunnen hieraan geen rechten worden ontleend. Spel- en typefouten voorbehouden. De plattegronden zijn geproduceerd voor promotionele doeleinden en ter indicatie. Er kunnen geen rechten aan worden ontleend. Maten zijn niet eigenhandig opgemeten. Indien er twijfel bestaat over de accuratie van de gegevens aangaande deze brochure, is de geïnteresseerde zelf verantwoordelijk voor het nameten van deze gegevens. Voor meer informatie wordt u doorverwezen naar www.hendriks.nl

Verkoper vertelt

Deze ruime woning in Asenray, met een woonoppervlakte van 226 m² en een perceel van 580 m², biedt het beste van twee werelden: rust en stadse voorzieningen.

Je geniet hier van een prachtig uitzicht op de bosrand, een zonnige tuin op het zuidwesten en een functionele, levensloopbestendige indeling. De hoge bouwkwaliteit laat weinig te wensen over, al kun je de keuken en badkamer helemaal aanpassen naar jouw smaak. Kortom, dit huis is niet zomaar een huis: het is een thuis in de beste zin van het woord.

Fijne ruimtes
fijne ruimtes
prachtig uitzicht

De royale hal met een stijlvolle trapopgang nodigt uit om verder te kijken. Op de begane grond vind je een ruime woonkamer met een prachtige lichtinval, dankzij de grote ramen die direct uitkijken op de bosrand. Een uitzicht zó mooi dat je er stil van wordt. Op een frisse ochtend met een kop koffie genieten van de zonsopkomst of ’s avonds met een goed glas wijn kijken hoe de schemering langzaam invalt? Hier kan het allemaal.

De keuken keuken is zonder meer functioneel en in goede staat. Maar heb jij eigen ideeën over hoe jouw droomkeuken eruitziet? Hier is genoeg ruimte om jouw culinaire paradijs te creëren. Aansluitend vind je de praktische bijkeuken en een inpandige berging die je opties geven voor extra opslagruimte, de perfecte werkplek of zelfs een hobbyruimte.

Levensloopbestendig

toekomstbestendig met badkamer

Dit huis is ontworpen met comfort en gemak in het achterhoofd. Geen trappen lopen hoeft geen drempel te zijn, want op de begane grond bevindt zich al een slaapkamer. Ideaal voor wie nu of in de toekomst behoefte heeft aan een woning die inspeelt op veranderende levensfases, zonder in te boeten op leefruimte of stijl.

Slaap lekker

twee slaapkamers

tal van opties

De woning telt drie zeer goed bemeten slaapkamers, waarvan één op de begane grond! Ideaal voor wie op zoek is naar levensloopbestendig wonen of gewoon houdt van méér luxe. Iedere kamer is licht, ruim en biedt veel mogelijkheden om met kleur, decoratie en meubels jouw eigen stempel te drukken. Een riante badkamer maakt het plaatje compleet. En ook hier geldt: niemand kijkt raar op als je denkt aan een upgrade naar een luxe wellness-oase!

veel privacy

royaal tuinhuis

De zon in overvloed én eindeloos veel privacy in je eigen tuin. De zuidwestelijke ligging betekent lange, zonnige middagen en warme zomeravonden. Of je nu graag een boek leest in de schaduw, barbecue organiseert met vrienden of simpelweg de natuur om je heen ervaart, de tuin van dit huis is een ware oase van ontspanning.

Genieten
huizen

Roermond

Roermond is een stad die rijk is aan monumenten. Door de eeuwen heen was de stad Hanzestad en hoofdstad van Gelre en nu nog is het de bisschopstad van Limburg. Na de gemeentelijk herindeling op 1 januari 2007 bestaat de gemeente Roermond uit de kernen Roermond, Swalmen, Herten, Maasniel, Leeuwen en Asenray. De gemeente telt een inwonersaantal van 54.310 en bestrijkt een gebied van circa 7.100 hectare.

Ook natuurliefhebbers komen aan hun trekken. Direct voor de poorten van de stad, langs de Maas, ligt een uitgestrekt waterrecreatie-gebied: de Maasplassen. Een aaneenschakeling van kleine en grote meren, gelegen in een groen en weids landschap. Aan de oostkant van de gemeente ligt het schitterende nationaal park: de Meinweg, waarin adders en wilde zwijnen voorkomen.

Het historische stratenpatroon van de Roermondse binnenstad herbergt een attractief winkelcentrum. Behalve winkelketens, treft u hier een grote diversiteit aan kleinschalige zaken die samen met de vele horeca gelegenheden, het gezellige karakter van de stad bepalen.

heerlijk wonen in Roermond
noorden kadastrale kaart

Lokaal makelaarschap

Wij geloven sterk in lokaal makelaarschap. Kennis van de buurt, de omgeving en de daarbij behorende ontwikkeling van de huizenprijzen zijn onmisbaar om voor jou het maximale resultaat te boeken.

Met Hendriks Makelaardij kies je voor:

• makelaars die al jarenlang verbonden zijn met de regio

• kennis van de lokale woningmarkt

• een verkoopplan afgestemd op jouw woning

• maximale exposure van je huis

• bezichtigingen ook in het weekend

• netwerk met honderden woningzoekers

Verkoop je je huis met Hendriks dan ben je met de eigen app 24/7 op de hoogte van het verkoopproces.

Bezichtigingsverzoeken bereiken je direct en beantwoord je snel en discreet op het moment dat het jou uitkomt.

HEERHUGOWAARD

ALKMAAR LANDSMEER HOORN

Ook je huis verkopen? Onze makelaars komen graag en vrijblijvend bij je langs. We maken dan direct een gratis waardebepaling. Hendriks Makelaardij werkt op basis van no cure no pay. En betalen doe je pas bij verkoop.

Sint Christoffelstraat 1-3 0475 - 31 12 00 roermond@hendriks.nl www.hendriks.nl

PURMEREND ZAANDAM

(2x)

A’DAM WEST

HOOFDDORP HAARLEM

LEIDEN

MONNICKENDAM

A’DAM NOORD

AMSTERDAM

AMSTELVEEN

VLEUTEN DE MEERN

ALMERE

BUSSUM

HILVERSUM

UTRECHT MAARSSEN

AMERSFOORT

(2x) (2x)

NIEUWEGEIN WIJK BIJ DUURSTEDE

MEPPEL

ZWOLLE

APELDOORN

ARNHEM

(2x)

NIJMEGEN

‘S-HERTOGENBOSCH

BREDA

TILBURG

EINDHOVEN

WEERT

ROERMOND

Turn static files into dynamic content formats.

Create a flipbook
Issuu converts static files into: digital portfolios, online yearbooks, online catalogs, digital photo albums and more. Sign up and create your flipbook.