De Pergola 2, Apeldoorn

Page 1


HuizenHendriks van

Energielabel A+

Eigen oprit met garage

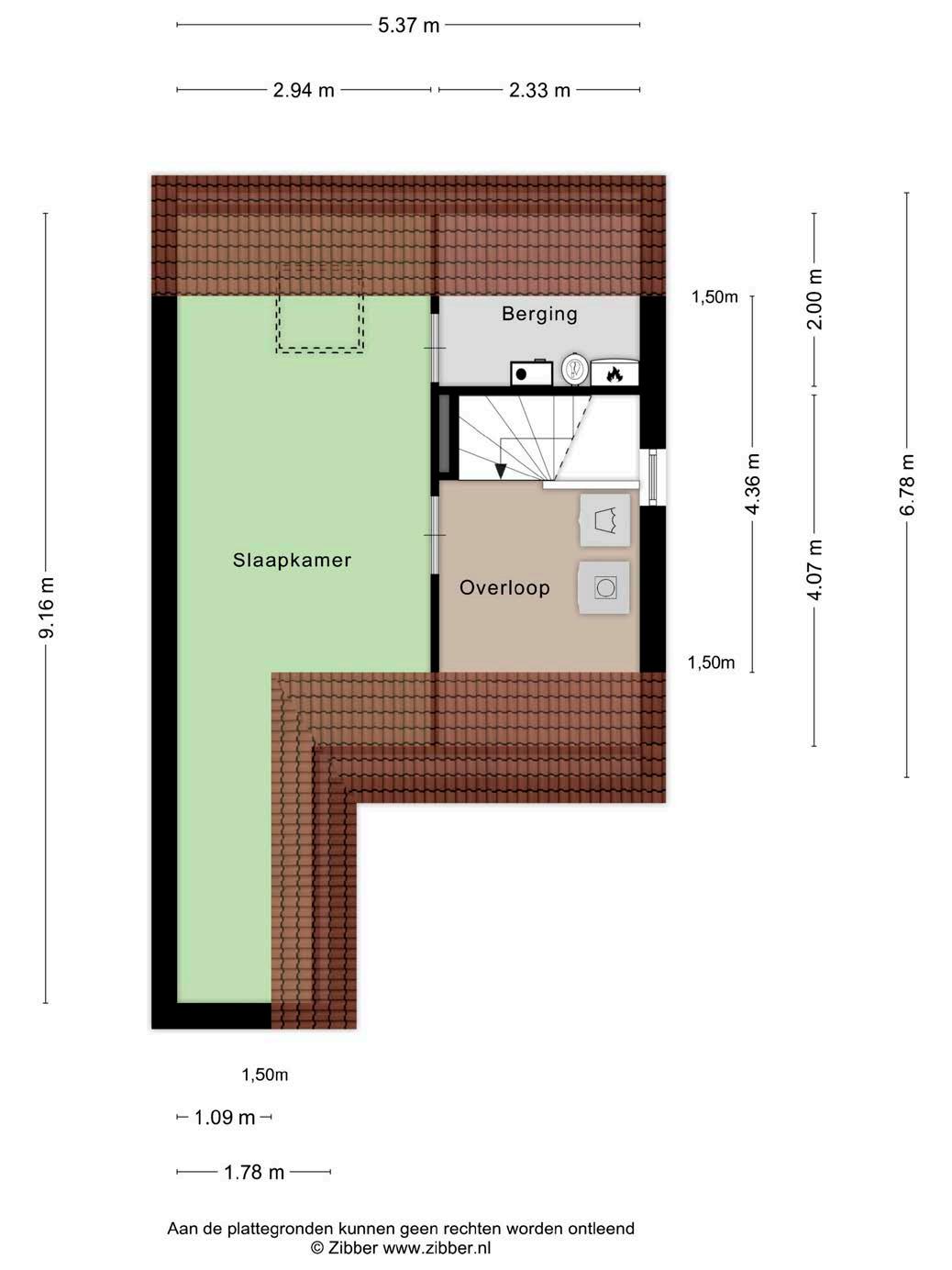
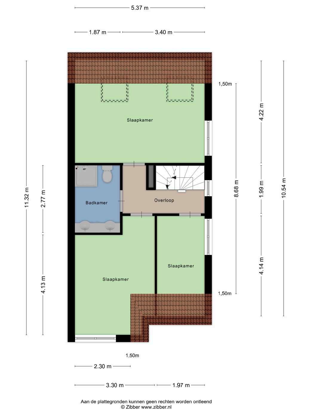
4 slaapkamers

Zonnige tuin

Kindvriendelijke wijk

Soort eengezinswoning

Type 2-onder-1-kapwoning Kamers 6

Woonoppervlakte 139 m²

Perceeloppervlakte 306 m²

Inhoud 567 m³

Bouwjaar 2004

Tuin achtertuin, voortuin, zijtuin, zonneterras

Garage aangebouwd steen

Verwarming c.v.-ketel

Isolatie volledig geïsoleerd, hr-glas

Energielabel A+

De in deze brochure getoonde informatie wordt door Hendriks makelaardij met zorg samengesteld, doch voor de juistheid en volledigheid daarvan kan niet worden ingestaan en kunnen hieraan geen rechten worden ontleend. Spel- en typefouten voorbehouden. De plattegronden zijn geproduceerd voor promotionele doeleinden en ter indicatie. Er kunnen geen rechten aan worden ontleend. Maten zijn niet eigenhandig opgemeten. Indien er twijfel bestaat over de accuratie van de gegevens aangaande deze brochure, is de geïnteresseerde zelf verantwoordelijk voor het nameten van deze gegevens. Voor meer informatie wordt u doorverwezen naar www.hendriks.nl

Verkoper vertelt

Toen dit nog te bouwen huis 21 jaar geleden te koop werd aangeboden, sprak het ons onmiddelijk aan. Met name de bouwstijl, de plek en het feit dat het een nieuw te bouwen 2-onder-1-kap woning was vonden we geweldig. We hebben hier altijd met heel veel plezier gewoond, leuke buurt waar (bijna) jaarlijks een gezellige bbq wordt georganiseerd aan het eind van de zomer, en eigenlijk overal dichtbij.

De scholen zijn dichtbij, winkelcentrum “t Fort met supermarkt, bakker en drogisterij, is nog geen 5 minuten fietsen, en het centrum van Apeldoorn ligt op 15 minuten fietsen. En daarbij woon je precies aan de rand van Apeldoorn, dus kun je heel makkelijk de drukte vermijden wanneer je dat wilt.

Het huis zelf is een heerlijk huis om in te wonen, alle ruimte die je nodig hebt, met een gezellige kamer, ruime slaapkamers, een fijne tuin waar je in de zon kunt zitten, maar ook een plek hebt om de schaduw op te zoeken.

Na hier 21 jaar met heel veel plezier gewoond te hebben, is het tijd voor een volgende stap, maar we zullen dit huis met pijn in ons hart achterlaten.

huizen

lichte woonkamer

Lichte woonkamer heerlijk tot rust komen!

De woonkamer voelt ruim en licht aan, dankzij grote raampartijen en een slimme indeling. De combinatie van een zitgedeelte en een eetruimte zorgt ervoor dat je hier als gezin veel tijd samen doorbrengt. Vanuit de woonkamer kijk je uit op de zonnige tuin.

Praktische keuken

praktische keuken

culinair koken!

De keuken, aan de voorzijde van de woning, heeft een praktisch ontwerp. Hier kun je makkelijk en gezellig koken en tegelijk genieten van het zicht op de rustige straat. Denk aan een plek waar functioneel en stijlvol naadloos samenkomen.

Flexibel in te delen!

vier slaapkamers

flexibel in te delen!

Op de eerste verdieping vind je drie ruime slaapkamers, elk met voldoende lichtinval en ruimte voor een bed, een kast en eventueel een bureau. Ideaal voor opgroeiende kinderen of extra hobbyen werkruimte. De badkamer is van alle gemakken voorzien: een aparte douche, een dubbele wastafel met opbergruimte en een tweede toilet. Alles wat je nodig hebt voor een druk huishouden vind je hier.

royale tuin

geniet van de zon!

Vanuit de woonkamer kijk je uit op de zonnige tuin. Hier schijnt de zon vrijwel de hele dag door, waardoor dit dé plek is voor zomerse avonden, koffiemomenten in de ochtendzon of gewoon lekker ontspannen in het groen.

noorden kadastrale kaart

heerlijk wonen in Apeldoorn

Apeldoorn

Apeldoorn heeft de laatste jaren een gezonde groei doorgemaakt en is het levendige centrum van de Veluwe. De gemeente telt inmiddels ca. 168.000 inwoners en is de grootste stad op de Veluwe en de twaalfde stad van Nederland. Het stedelijke gebied van Apeldoorn is onderverdeeld in ruim 40 wijken. En dan is er nog het landelijk gebied waar bijna 20.000 mensen wonen, verdeeld over de bij Apeldoorn behorende dorpen Beekbergen, Ugchelen, Beemte Broekland, Hoenderloo, Hoog Soeren, Lieren, Loenen, Nieuw Milligen, Uddel, Wenum Wiesel, deels Radio Kootwijk en Klarenbeek.

Door de vele parken, heemtuinen, maar vooral ook door de uitgestrekte natuurgebieden die rondom de stad zijn gelegen, is Apeldoorn met recht het ‘Groene hart van de Veluwe’. De Koninklijke Houtvesterij Het Loo vormt één van Nederlands grotere aaneengesloten natuurgebieden met een oppervlakte van 10.500 hectare. In deze natuurlijke omgeving leven onder andere edelherten, reeën en wilde zwijnen. Apeldoorn is ook een ‘Koninklijke Stad’, bekend om Paleis Het Loo met zijn prachtige tuinen, Koninklijke Stallen en Het Aardhuis, voormalig jachtchalet van koning Willem II. Het woonklimaat in Apeldoorn is zéér aantrekkelijk.

HEERHUGOWAARD

ALKMAAR LANDSMEER HOORN

ZAANDAM

(2x)

A’DAM WEST

HOOFDDORP HAARLEM

LEIDEN

Lokaal makelaarschap

Wij geloven sterk in lokaal makelaarschap. Kennis van de buurt, de omgeving en de daarbij behorende ontwikkeling van de huizenprijzen zijn onmisbaar om voor jou het maximale resultaat te boeken.

Met Hendriks Makelaardij kies je voor:

• makelaars die al jarenlang verbonden zijn met de regio

• kennis van de lokale woningmarkt

• een verkoopplan afgestemd op jouw woning

• maximale exposure van je huis

• bezichtigingen ook in het weekend

• netwerk met honderden woningzoekers

Verkoop je je huis met Hendriks dan ben je met de eigen app 24/7 op de hoogte van het verkoopproces.

Bezichtigingsverzoeken bereiken je direct en beantwoord je snel en discreet op het moment dat het jou uitkomt.

Ook je huis verkopen? Onze makelaars komen graag en vrijblijvend bij je langs. We maken dan direct een gratis waardebepaling. Hendriks Makelaardij werkt op basis van no cure no pay. En betalen doe je pas bij verkoop.

Zwolseweg 208 055 - 521 92 77 apeldoorn@hendriks.nl www.hendriks.nl

PURMEREND

MONNICKENDAM

A’DAM NOORD

AMSTERDAM

AMSTELVEEN

ALMERE

BUSSUM

HILVERSUM

VLEUTEN DE MEERN UTRECHT MAARSSEN

AMERSFOORT

(2x) (2x)

NIEUWEGEIN WIJK BIJ DUURSTEDE

MEPPEL

ZWOLLE

APELDOORN

ARNHEM

(2x)

NIJMEGEN

‘S-HERTOGENBOSCH

BREDA

EINDHOVEN

TILBURG WEERT

ROERMOND

Turn static files into dynamic content formats.

Create a flipbook
Issuu converts static files into: digital portfolios, online yearbooks, online catalogs, digital photo albums and more. Sign up and create your flipbook.