Skip to main content

Dalkruid 10, Amersfoort

Page 1


HuizenHendriks van

Energielabel A!

4 slaapkamers

Tuin

Gunstige ligging

Soort eengezinswoning

Type tussenwoning

Kamers 5

Woonoppervlakte 125 m²

Perceeloppervlakte 130 m²

Inhoud 441 m³

Bouwjaar 1997

Tuin achtertuin, voortuin

Garage geen garage

Isolatie volledig geïsoleerd

Energielabel A

De in deze brochure getoonde informatie wordt door Hendriks makelaardij met zorg samengesteld, doch voor de juistheid en volledigheid daarvan kan niet worden ingestaan en kunnen hieraan geen rechten worden ontleend. Spel- en typefouten voorbehouden. De plattegronden zijn geproduceerd voor promotionele doeleinden en ter indicatie. Er kunnen geen rechten aan worden ontleend. Maten zijn niet eigenhandig opgemeten. Indien er twijfel bestaat over de accuratie van de gegevens aangaande deze brochure, is de geïnteresseerde zelf verantwoordelijk voor het nameten van deze gegevens. Voor meer informatie wordt u doorverwezen naar www.hendriks.nl

Verkoper vertelt

Met veel liefde, plezier en genot hebben wij 27 jaar in onze woning gewoond.

Ons huis bevindt zich in de rustige maar kindvriendelijke en gezellige Kruidenbuurt in Nieuwland. De combinatie van rust en ruimte zorgt ervoor dat elke dag thuiskomen voelt als een warm welkom.

De riante woonkamer en achtertuin op het zuiden bieden een fijne mix van binnen en buiten, waar je heerlijk kan genieten.

De woning ligt lekker centraal, met speeltuintjes, basisscholen, een winkelcentrum voor de dagelijkse boodschappen en een voetbalclub op loopafstand. En voor sportverenigingen hoef je ook niet ver te reizen. Dichtbij de snelweg en in 20 minuten fietsen ben je in het gezellige centrum van Amersfoort.

Wij hebben hier met veel plezier gewoond. Wij hopen dat de nieuwe bewoners ook genieten van de ruimte, rust en voorzieningen.

Waarom gaan we weg? We hebben een ander huis gekocht dichter bij onze zoon.

huizen

Lichte
energielabel

a

woonkamer veel daglicht

De woonkamer biedt een comfortabele ruimte met een plavuizen vloer die makkelijk schoon te houden is. Dankzij de vloerverwarming is het hier altijd aangenaam warm, ideaal voor gezellige avonden met het gezin. De grote ramen laten veel daglicht binnen, wat de ruimte extra uitnodigend maakt.

Met een energielabel A is de woning ook nog eens energiezuinig, wat prettig is voor het milieu én je portemonnee.

Open keuken

kokkerellen opfrissen

De keuken is praktisch ingericht met inbouwapparatuur zoals een 4-pits gaskookplaat, een koelkast en een vaatwasser. Hierdoor heb je alles bij de hand om eenvoudig maaltijden te bereiden. De keuken is een fijne plek om te koken en contact te houden met familie of gasten in de woonkamer.

De badkamer is voorzien van een inloopdouche, wastafelmeubel en toilet. Het ontwerp is functioneel, wat bijdraagt aan het gebruiksgemak. Er is genoeg ruimte om je ochtendroutine comfortabel uit te voeren.

Welterusten

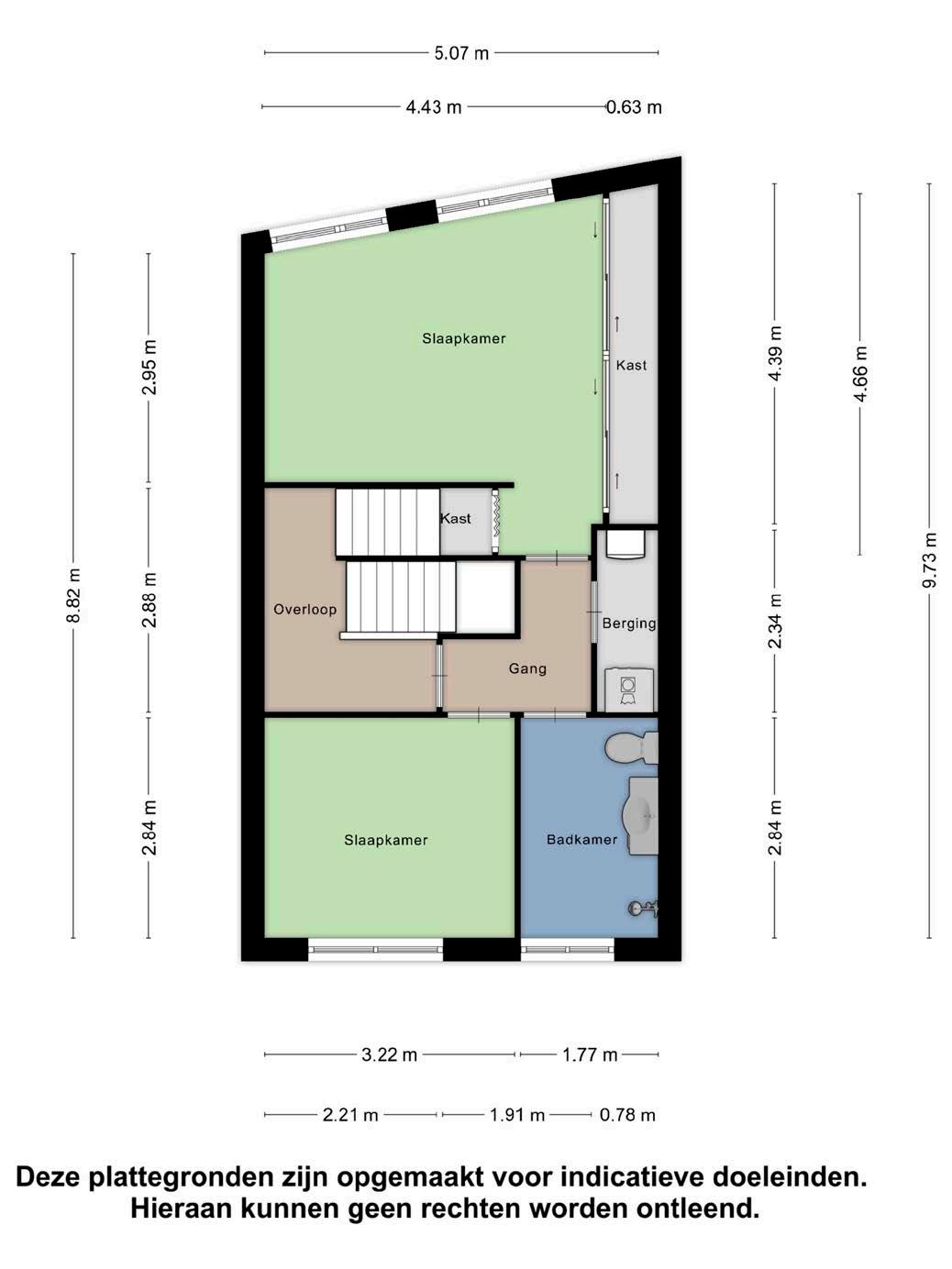
vier slaapkamers

hoe deel jij het in?

De woning beschikt over vier slaapkamers, verspreid over de eerste en tweede verdieping. Alle kamers zijn voorzien van een nette laminaatvloer en bieden voldoende ruimte voor bedden, kasten of een bureau. Ideaal voor gezinnen of als je extra ruimte nodig hebt voor een werkplek of hobby.

Tuin op het zuiden

geweldige ligging

dichtbij voorzieningen

De achtertuin vraagt weinig onderhoud, waardoor je meer tijd overhoudt om ervan te genieten. Er is ruimte voor een gezellige loungebank onder de overkapping. Er is een vrijstaande houten berging aanwezig die extra opbergruimte biedt voor bijvoorbeeld gereedschap of fietsen. Het is een praktische ruimte die bijdraagt aan het woongemak.

De woning ligt in een rustige, kindvriendelijke buurt waar je alles in de buurt hebt wat je nodig hebt. Winkels, scholen en sportfaciliteiten zijn gemakkelijk te voet bereikbaar.

noorden kadastrale kaart

Amersfoort

Welkom in Amersfoort, een stad vol verrassingen, bruisende energie en rijke geschiedenis! Amersfoort is een dynamische stad, gelegen in het centrum van Nederland. Struin door de eeuwenoude straatjes van de historische binnenstad en laat je meeslepen door de verhalen die elk monumentaal pand te vertellen heeft. Van de middeleeuwse stadsmuren die de stad omhullen tot de indrukwekkende Onze Lieve Vrouwekerk, waar je je ogen uitkijkt naar de prachtige architectuur. Het middeleeuwse karakter is grotendeels bewaard gebleven, dit zie je terug in monumenten zoals de Koppelpoort, Monnickendam en de Muurhuizen. Het voelt alsof je terug in de tijd stapt, terwijl je geniet van de levendige sfeer die de stad ademt.

Amersfoort heeft meer te bieden dan zijn historische schoonheid. Op de bekende pleinen De Hof of Het Lieve Vrouwenplein vind je ook veel gezelligheid.

Dwaal door de levendige winkelstraten en ontdek de unieke boetiekjes, gezellige café’s en trendy restaurants. Daarnaast is de ruim 750-jaar oude stad een levendige en gezellige stad met onder andere festivals, evenementen en musea.

heerlijk wonen in Amersfoort

HEERHUGOWAARD

ALKMAAR LANDSMEER

ZAANDAM

(2x)

A’DAM WEST

HOOFDDORP HAARLEM

LEIDEN

Lokaal makelaarschap

Wij geloven sterk in lokaal makelaarschap. Kennis van de buurt, de omgeving en de daarbij behorende ontwikkeling van de huizenprijzen zijn onmisbaar om voor jou het maximale resultaat te boeken.

Met Hendriks Makelaardij kies je voor:

• makelaars die al jarenlang verbonden zijn met de regio

• kennis van de lokale woningmarkt

• een verkoopplan afgestemd op jouw woning

• maximale exposure van je huis

• bezichtigingen ook in het weekend

• netwerk met honderden woningzoekers

Verkoop je je huis met Hendriks dan ben je met de eigen app 24/7 op de hoogte van het verkoopproces.

Bezichtigingsverzoeken bereiken je direct en beantwoord je snel en discreet op het moment dat het jou uitkomt.

Ook je huis verkopen? Onze makelaars komen graag en vrijblijvend bij je langs. We maken dan direct een gratis waardebepaling. Hendriks Makelaardij werkt op basis van no cure no pay. En betalen doe je pas bij verkoop.

Friesestraat 161 033 - 465 55 79 amersfoort@hendriks.nl www.hendriks.nl

HOORN

PURMEREND

MONNICKENDAM

A’DAM NOORD

AMSTERDAM

AMSTELVEEN

ALMERE

BUSSUM

HILVERSUM

VLEUTEN DE MEERN UTRECHT MAARSSEN

AMERSFOORT

(2x) (2x)

NIEUWEGEIN WIJK BIJ DUURSTEDE

MEPPEL

ZWOLLE

APELDOORN

ARNHEM

(2x)

NIJMEGEN

‘S-HERTOGENBOSCH

BREDA

EINDHOVEN

TILBURG WEERT

ROERMOND

Turn static files into dynamic content formats.

Create a flipbook