HuizenHendriks van

Kluswoning met potentie
Sfeer, ruimte en authenticiteit
Diepe achtertuin van ruim 15 meter
![]()

Sfeer, ruimte en authenticiteit
Diepe achtertuin van ruim 15 meter
Prachtige ligging aan karaktervol plein
Soort eengezinswoning
Type tussenwoning
Kamers 4
Woonoppervlakte 106 m²
Perceeloppervlakte 119 m²
Inhoud 392 m³
Bouwjaar 1936
Tuin achtertuin
Garage geen garage
Verwarming c.v.-ketel
Isolatie gedeeltelijk dubbel glas
Energielabel F

De in deze brochure getoonde informatie wordt door Hendriks makelaardij met zorg samengesteld, doch voor de juistheid en volledigheid daarvan kan niet worden ingestaan en kunnen hieraan geen rechten worden ontleend. Spel- en typefouten voorbehouden. De plattegronden zijn geproduceerd voor promotionele doeleinden en ter indicatie. Er kunnen geen rechten aan worden ontleend. Maten zijn niet eigenhandig opgemeten. Indien er twijfel bestaat over de accuratie van de gegevens aangaande deze brochure, is de geïnteresseerde zelf verantwoordelijk voor het nameten van deze gegevens. Voor meer informatie wordt u doorverwezen naar www.hendriks.nl
Makelaar vertelt:
Ben jij een handige klusser? Ben jij op zoek naar een uitdagend project waar je écht een parel van kunt gaan maken? En dan ook nog eens op een locatie met veel historie? Dan moet jij zeker eens komen kijken!
Deze karaktervolle woning is gelegen in de charmante Zeeheldenbuurt. Heel bijzonder is de locatie aan een rustig pleintje met veel groen en een speeltuintje. Overigens wordt de omgeving binnenkort “gerevitaliseerd” door de gemeente, dus simpelweg nog mooier (en rustiger) gemaakt. Bovendien woon je hier op steenworp afstand van het stadscentrum en zijn de uitvalswegen ook dichtbij.
De woning biedt veel leefruimte en heeft ook een heerlijk diepe tuin met volop mogelijkheden. Dus wil jij wonen in een karaktervol en ruim huis, dichtbij het centrum, en schrik je niet terug voor een verbouwing? Kom dan zeker snel kijken!




kom binnen! Kom binnen! met bijkeuken
De woonkamer is het hart van de woning, met een gezellige inrichting en veel natuurlijk licht door de grote ramen. De openslaande tuindeuren verbinden binnen met buiten en leiden naar de diepe achtertuin. Met 25 m² woonoppervlak is er genoeg ruimte voor een comfortabele zithoek en een eethoek. Ideaal voor familiebijeenkomsten, ontspannen avonden of een gezellige filmavond.
De woonkeuken is een geweldige plek voor koken en samen eten. De lichte, separate ruimte biedt niet alleen de mogelijkheid om een gezellige woonkeuken te creëren, maar heeft ook een ruime ingebouwde kelderkast. Praktisch en ideaal voor het opbergen van voorraad en keukengerei.
In de ruime bijkeuken is de HR-combiketel aanwezig. Hier vind je ook de aparte toiletruimte en kleine doucheruimte.

hoe deel jij het in?
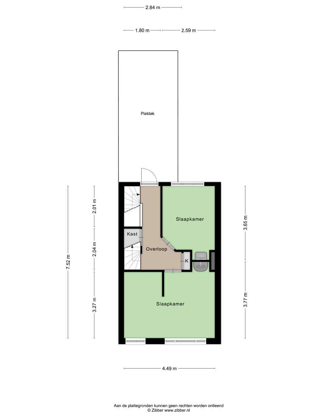
De slaapkamers op de eerste verdieping zijn royaal en vol mogelijkheden. Voorheen waren dit drie kamers, maar de huidige indeling biedt meer ruimte en comfort. Of je nu een master bedroom, kinderkamer of werkruimte wilt creëren, de mogelijkheden zijn eindeloos. Bovendien beschikt de overloop over twee vaste kasten en een deur naar een plat dak.




De tweede verdieping herbergt een indrukwekkend ruime derde slaapkamer. De twee dakkapellen zorgen voor veel daglicht en bieden verrassend veel extra ruimte. Dit maakt deze kamer perfect als ouderslaapkamer, hobbyruimte of zelfs een studio. Dankzij de bijzondere vormgeving en indeling voelt de zolderkamer knus en open tegelijk.




maar liefst 15 meter
De diepe achtertuin biedt een oase van rust en privacy. Met een lengte van maar liefst 15 meter is er meer dan genoeg ruimte voor een terras, een speelplek voor de kinderen, een moestuin of zelfs een tuinhuis. De ligging op het noordoosten betekent dat je ’s ochtends heerlijk in de zon kunt genieten van je koffie, terwijl de schaduw later op de dag verkoeling biedt.





heerlijk wonen in Tilburg
Tilburg is momenteel de 7e stad van Nederland met een grote diversiteit aan bedrijvigheid, woningbouw, onderwijs en cultuur. Er is hard aan de weg getimmerd de laatste jaren; vele centrumlocaties rondom de oude stadshaven en NS-werkplaats zijn recent omgetoverd tot bruisende gebieden met vele woningen, bedrijven en horeca.
Het bijzondere aan Tilburg is de grote diversiteit aan wijken met elk hun eigen, unieke karakter. Van het levendige stadscentrum tot rustige en “groene” woonwijken, er is voor ieder wat wils! De gemeente Tilburg omvat ook de mooie plaatsen Berkel-Enschot, Udenhout en Biezenmortel. Hier beleef je nog het echte “dorpsgevoel” met alle stedelijke voorzieningen toch heel dichtbij!
In de omgeving liggen prachtige natuurgebieden, zoals de Loonse en Drunense Duinen, de Oisterwijkse Bossen en Vennen en Moerenburg. Hier kun je heerlijk wandelen, fietsen en ontspannen in de natuur.
Ook qua onderwijs staat de stad hoog in aanzien. Naast Tilburg University zijn er vele scholen op alle denkbare niveaus.
Tilburg is ook bekend om zijn uitgebreide evenementenkalender. Van de Tilburgse Kermis tot diverse festivals zoals Incubate, Roadburn en Spoorpark Live. De stad biedt een ruime diversiteit aan sportfaciliteiten. Niet alleen voetbal en (ijs)hockey, maar bv. ook golf, tennis, rugby, zwemsporten, atletiek, sportvissen, fitness en ga zo maar door.
De rest van Nederland is uitstekend te bereiken via de vele (snel)wegen en het openbaar vervoer met maar liefst 3 treinstations.



HEERHUGOWAARD
ALKMAAR LANDSMEER
ZAANDAM
HOOFDDORP HAARLEM (2x)
A’DAM WEST
Wij geloven sterk in lokaal makelaarschap. Kennis van de buurt, de omgeving en de daarbij behorende ontwikkeling van de huizenprijzen zijn onmisbaar om voor jou het maximale resultaat te boeken.
Met Hendriks Makelaardij kies je voor:
• makelaars die al jarenlang verbonden zijn met de regio
• kennis van de lokale woningmarkt
• een verkoopplan afgestemd op jouw woning
• maximale exposure van je huis
• bezichtigingen ook in het weekend
• netwerk met honderden woningzoekers
Verkoop je je huis met Hendriks dan ben je met de eigen app 24/7 op de hoogte van het verkoopproces.
Bezichtigingsverzoeken bereiken je direct en beantwoord je snel en discreet op het moment dat het jou uitkomt.
Ook je huis verkopen? Onze makelaars komen graag en vrijblijvend bij je langs. We maken dan direct een gratis waardebepaling. Hendriks Makelaardij werkt op basis van no cure no pay. En betalen doe je pas bij verkoop.
Besterdring 223 013 - 549 91 90 tilburg@hendriks.nl www.hendriks.nl
HOORN
PURMEREND
MONNICKENDAM
A’DAM NOORD
AMSTERDAM
AMSTELVEEN
LEIDEN
ALMERE
BUSSUM
HILVERSUM
MAARSSEN
VLEUTEN DE MEERN UTRECHT
AMERSFOORT
(2x) (2x)
NIEUWEGEIN WIJK BIJ DUURSTEDE
MEPPEL
ZWOLLE
APELDOORN
ARNHEM
(2x)
NIJMEGEN
‘S-HERTOGENBOSCH
BREDA
TILBURG
EINDHOVEN
WEERT
ROERMOND
