Brochure Spijkert 37

Page 1


HuizenHendriks van

Soort eengezinswoning

Type tussenwoning Kamers 4

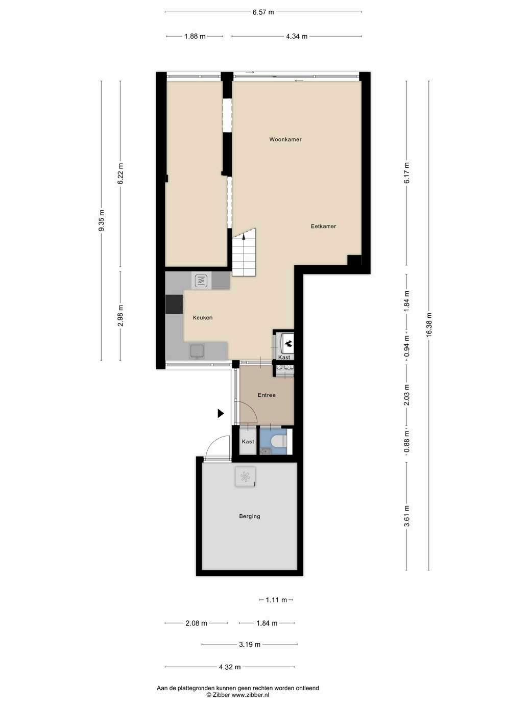
Woonoppervlakte 108 m²

Perceeloppervlakte 163 m²

Inhoud 422 m³

Bouwjaar 1973

Tuin achtertuin, voortuin

Garage geen garage Verwarming c.v.-ketel, vloerverwarming gedeeltelijk

Isolatie dakisolatie, muurisolatie, vloerisolatie, dubbel glas

Energielabel A+

De in deze brochure getoonde informatie wordt door Hendriks makelaardij met zorg samengesteld, doch voor de juistheid en volledigheid daarvan kan niet worden ingestaan en kunnen hieraan geen rechten worden ontleend. Spel- en typefouten voorbehouden. De plattegronden zijn geproduceerd voor promotionele doeleinden en ter indicatie. Er kunnen geen rechten aan worden ontleend. Maten zijn niet eigenhandig opgemeten. Indien er twijfel bestaat over de accuratie van de gegevens aangaande deze brochure, is de geïnteresseerde zelf verantwoordelijk voor het nameten van deze gegevens. Voor meer informatie wordt u doorverwezen naar www.hendriks.nl

Verkoper vertelt

Vijf jaar geleden kochten we dit huis als ons eerste koophuis. Het was een klushuis, maar we zagen meteen de potentie. De ligging is ideaal: een rustige buurt in Eindhoven met een park om de hoek, en toch ben je in 10 minuten in het centrum. We hebben hier met heel veel plezier gewoond.

In de afgelopen jaren hebben we het huis compleet verbouwd én verduurzaamd. Het dak, de vloer en de gevels zijn geïsoleerd, er liggen zonnepanelen, bijna alle kozijnen zijn vervangen met HR++ glas en er is een nieuwe cv-ketel geplaatst. Binnen is alles vernieuwd: een moderne Bruynzeel-keuken met Siemens apparatuur en Quooker, een nieuwe badkamer met elektrische vloerverwarming, een nieuw toilet, nieuwe vloeren en strak gestucte wanden. Beneden is vloerverwarming aangelegd. Ook de tuin is opnieuw aangelegd, met nieuwe schutting en poort, en de gevelbekleding is volledig vervangen. Het huis is instapklaar en heeft energielabel A+.

Dankzij slimme openingen die we in de wand in de woonkamer hebben gemaakt, voelt de woonkamer heel ruim en is er een mooie balans ontstaan tussen openheid en afzondering. De buurt is gemoedelijk, met supermarkten, scholen en winkels op loopafstand.

We gaan verhuizen om dichter bij onze ouders te wonen. Hopelijk vindt een nieuw stel of gezin hier net zo’n fijne plek als wij!

huizen

fijn lichtinval

stijlvol

De woonkamer is een echte eyecatcher. Door de grote raampartijen aan de achterzijde baadt de ruimte in daglicht. De schuifpui verbindt binnen en buiten naadloos met elkaar. Op zomerse dagen zet je ze open en laat je de zon naar binnen stromen. Ook de trap naar boven is mooi weggewerkt in de hoek, waardoor de ruimte open en overzichtelijk blijft.

Complete keuken

complete keuken u-opstelling

De U-opstelling van de keuken biedt niet alleen veel werkruimte, maar ook een ruimtelijk gevoel – hier kook je met zicht op de voortuin, terwijl de kinderen in de woonkamer spelen of in de tuin ravotten. De keuken is compleet uitgerust met een inductiekookplaat, combi-oven, vaatwasser, koel-vriescombinatie en een strakke afzuigkap. Alle apparatuur is van het hoogwaardige merk Siemens. Als kers op de taart is er een kokendwaterkraan van Quooker – ideaal voor een snelle kop thee of het vullen van een pan kokend water.

3 Slaapkamers

3 slaapkamers met inpandig balkon

De eerste verdieping is even praktisch als sfeervol. De grootste slaapkamer ligt aan de voorzijde en biedt ruimte voor een groot bed en een kledingkast. Aan de achterzijde vind je twee kinderkamers of eventueel een werkkamer – met als bonus: een inpandig balkon dat op het zuiden ligt en heerlijk beschut is. Ideaal om je dag te beginnen met een kop koffie in de ochtendzon.

Eindhoven

Deze jonge Brabantse stad heeft een moderne uitstraling met een warm, bourgondisch centrum. Binnen een eeuw is dit boerenstadje uitgegroeid tot een aantrekkelijke dynamische stad met ruim 220.000 inwoners. De gemeente Eindhoven omvat naast de gelijknamige stad Eindhoven ook het dorp Acht en Meerhoven. Qua inwonersaantal is dit de vijfde stad van Nederland.

Het bourgondische is terug te vinden in de verschillende soorten cafés, terrasjes en restaurants met vele soorten wereldkeukens. De stad heeft een acties sociaal en cultureel centrum waarbij alle soorten kunst evenementen worden georganiseerd zoals Dutch Design Week en GLOW. Daarnaast is de werkomgeving erg gezond in deze high tech omgeving. Bedrijven als Philips, DAF en ASML zorgen voor een hoge instroom aan expats. Inclusief veel groen in de nabije omgeving van het centrum maakt Eindhoven tot een heerlijke stad waar het plezierig wonen, werken en leven is.

Het woonklimaat in Eindhoven is zéér aantrekkelijk.

heerlijk wonen in Eindhoven
noorden kadastrale kaart

HEERHUGOWAARD

ALKMAAR LANDSMEER

ZAANDAM

(2x)

A’DAM WEST

HOOFDDORP HAARLEM

LEIDEN

Lokaal makelaarschap

Wij geloven sterk in lokaal makelaarschap. Kennis van de buurt, de omgeving en de daarbij behorende ontwikkeling van de huizenprijzen zijn onmisbaar om voor jou het maximale resultaat te boeken.

Met Hendriks Makelaardij kies je voor:

• makelaars die al jarenlang verbonden zijn met de regio

• kennis van de lokale woningmarkt

• een verkoopplan afgestemd op jouw woning

• maximale exposure van je huis

• bezichtigingen ook in het weekend

• netwerk met honderden woningzoekers

Verkoop je je huis met Hendriks dan ben je met de eigen app 24/7 op de hoogte van het verkoopproces.

Bezichtigingsverzoeken bereiken je direct en beantwoord je snel en discreet op het moment dat het jou uitkomt.

Ook je huis verkopen? Onze makelaars komen graag en vrijblijvend bij je langs. We maken dan direct een gratis waardebepaling. Hendriks Makelaardij werkt op basis van no cure no pay. En betalen doe je pas bij verkoop.

Aalsterweg 5

040 - 293 05 00 eindhoven@hendriks.nl www.hendriks.nl

HOORN

PURMEREND

MONNICKENDAM

A’DAM NOORD

AMSTERDAM

AMSTELVEEN

ALMERE

BUSSUM

HILVERSUM

VLEUTEN DE MEERN UTRECHT MAARSSEN

AMERSFOORT

(2x) (2x)

NIEUWEGEIN WIJK BIJ DUURSTEDE

MEPPEL

ZWOLLE

APELDOORN

ARNHEM

(2x)

NIJMEGEN

‘S-HERTOGENBOSCH

BREDA

EINDHOVEN

TILBURG WEERT

ROERMOND

Turn static files into dynamic content formats.

Create a flipbook
Issuu converts static files into: digital portfolios, online yearbooks, online catalogs, digital photo albums and more. Sign up and create your flipbook.