Wickenburg 10, Eindhoven

Page 1

HuizenHendriksvan

ligging

Bungalow

Wickenburg 10 , 5653 NX Eindhoven
Nabij ASML Senioren Rustige
H51

Verkoper vertelt

Levensloopbestendig wonen in een rustige omge ving? Dan is deze bungalow aan de Wickenburg 10 in Eindhoven wellicht de woning waar u naar op zoek bent.

De bungalow staat in een groenrijke woonomgeving en ligt aan de achterzijde met een zonnige tuin aan het water. Daarnaast parkeert u de auto eenvoudig op het eigen terrein en is de woning ingedeeld met een lichte woonkamer, ruime keuken, twee kamers en een verzorgde badkamer.

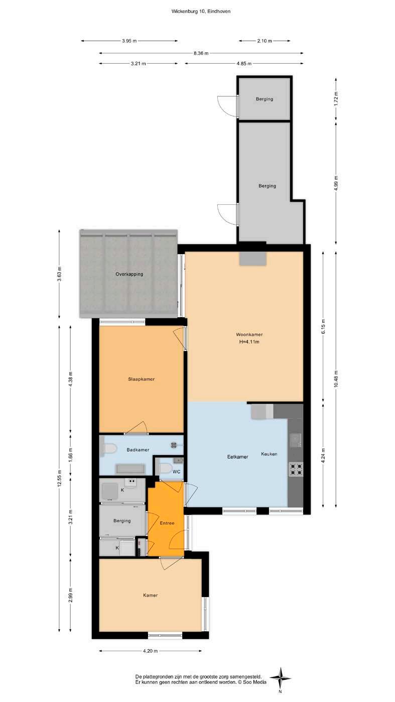
Kenmerken bungalow geschakelde woning 3 98 m² 1728 m² 365 m³ 1989 achtertuin, voortuin carport, geen garage c.v.-ketel dakisolatie, dubbel glas C Soort Type Kamers Woonoppervlakte Perceeloppervlakte Inhoud Bouwjaar Tuin Garage Verwarming Isolatie Energielabel
Eindhoven: Aalsterweg 5, T 040 - 293 05 00
De in deze brochure getoonde informatie wordt door Hendriks makelaardij met zorg samengesteld, doch voor de juistheid en volledigheid daarvan kan niet wor den ingestaan en kunnen hieraan geen rechten worden ontleend. Spel- en typefouten voorbehouden. De plattegronden zijn geproduceerd voor promotionele doeleinden en ter indicatie. Er kunnen geen rechten aan worden ontleend. Maten zijn niet eigenhandig opgemeten. Indien er twijfel bestaat over de accuratie van de gegevens aangaande deze brochure, is de geïnteresseerde zelf verantwoordelijk voor het nameten van deze gegevens. Voor meer informatie wordt u doorverwezen
naar www.hendriks.nl Te koop bij

Net als in de keuken ligt er in de woonkamer een plavuizenvloer inclusief vloerverwarming en de wan den zijn voorzien van spuitwerk. De ruimte heeft een bijzonder hoog plafond van maar liefst 4.11 meter hoog. Tot slot zorgt het grote raam voor goed zicht op buiten en de schuifpui verleent toegang tot de tuin.

lichte woonkamer
Goede basis zicht op buiten
huizen van hendriks

Ruime woonkeuken

ruime keuken open indeling

Vanuit de hal komt u binnen in de keuken met een open verbinding naar het woongedeelte. De keu ken is geplaatst in een hoekopstelling en voorzien van diverse inbouwapparatuur. Er is in de keuken alle ruimte voor een eettafel. Verder is er vanuit de keuken ruim zicht op de straatzijde.

huizen van hendriks

twee kamers nette afwerking

In totaal beschikt de woning over twee (slaap)ka mers -- beide van goed formaat en afgewerkt met een laminaatvloer. De eerste kamer is momenteel ingericht als een kantoorruimte, maar kan uiteraard voor ieder doeleinde worden gebruikt. De tweede slaapkamer met ensuite badkamer is aangenaam licht door het grote raam gericht op de tuin.

Lichte vertrekken

huizen van hendriks

Verzorgd sanitair

keurige badkamer

aparte toiletruimte

De badkamer is volledig betegeld en ingericht met een ruime inloopdouche zonder opstap, wastafel en een toilet. Via de hal komt u in een aparte toiletruim te. Deze ruimte is eveneens netjes afgewerkt met dezelfde tegelsamenstelling als de badkamer.

Praktische ruimte

Vervolgens bereikt u vanuit de hal een berging met de witgoedaansluiting en de cv-opstelling. Tevens is er voldoende ruimte is voor een koelkast, vriezer, wasmachine en wasdroger.

huizen van hendriks

tuin op het zuiden twee bergingen

Het grote genieten gaat verder in de zonnige tuin op het zuiden met de ligging aan het water. De tuin is fraai aangelegd met een overkapping, vlonders aan het water, veel groen en sierlijke bestrating. Vanaf de vlonders heeft u prachtig uitzicht over het water en op de groenrijke omgeving. In de twee bergingen heeft u alle ruimte voor bijvoorbeeld het stallen van fietsen of om allerhande spullen op te bergen. Tevens beschik je over een eigen ach terom, ideaal.

De schutting is recentelijk vernieuwd en de tuin is toegankelijk via een ruime poort aan de voorzijde van de woning

Zonnige ligging

huizen van hendriks

Groenrijke woonomgeving

rustige ligging goede bereikbaarheid

U komt te wonen in een rustige straat in de wijk ‘Genderbeemd’, stadsdeel Gestel. Een groene omgeving nabij het overdekte winkelcentrum ‘Kas telenplein’ me diverse voorzieningen. De nabijheid van de Hightech Campus Einhoven, ASL en het Maxima Medische Centrum in Veldhoven zijn grote pluspunten. In de verdere omgeving bevinden zich een huisartsenpraktijk, apotheek, sportvoorzienin gen, diverse scholen, openbaar vervoer en zorg centrum ‘Genderhof’. Ook de bereikbaarheid is uitstekend met de uitvalswegen A2 en A67 nabij.

huizen van hendriks
Wickenburg 10 5653 NX Eindhoven

Eindhoven

Deze jonge Brabantse stad heeft een moderne uitstra ling met een warm, bourgondisch centrum. Binnen een eeuw is dit boerenstadje uitgegroeid tot een aantrekkelijke dynamische stad met ruim 220.000 inwoners. De gemeente Eindhoven omvat naast de gelijknamige stad Eindhoven ook het dorp Acht en Meerhoven. Qua inwonersaantal is dit de vijfde stad van Nederland.

Het bourgondische is terug te vinden in de verschillende soorten cafés, terrasjes en restaurants met vele soorten wereldkeukens. De stad heeft een acties sociaal en cul tureel centrum waarbij alle soorten kunst evenementen worden georganiseerd zoals Dutch Design Week en GLOW. Daarnaast is de werkomgeving erg gezond in deze high tech omgeving. Bedrijven als Philips, DAF en ASML zorgen voor een hoge instroom aan expats. Inclusief veel groen in de nabije omgeving van het centrum maakt Eindhoven tot een heerlijke stad waar het plezierig wonen, werken en leven is.

Het woonklimaat in Eindhoven is zéér aantrekkelijk.

heerlijk
wonen in Eindhoven
noorden kadastrale kaart

Lokaal makelaarschap

Wij geloven sterk in lokaal makelaarschap. Kennis van de buurt, de omgeving en de daarbij behorende ontwikkeling van de huizenprijzen zijn onmisbaar om voor jou het maximale resultaat te boeken.

Met Hendriks Makelaardij kies je voor:

makelaars die al jarenlang verbonden zijn met de regio

kennis van de lokale woningmarkt

een verkoopplan afgestemd op jouw woning

maximale exposure van je huis

bezichtigingen ook in het weekend

netwerk met honderden woningzoekers

Verkoop je je huis met Hendriks dan ben je met de eigen app 24/7 op de hoogte van het verkoopproces. Bezichtigingsverzoeken bereiken je direct en beantwoord je snel en discreet op het moment dat het jou uitkomt.

Ook je huis verkopen? Onze makelaars komen graag en vrijblijvend bij je langs. We maken dan direct een gratis waardebepaling. Hendriks Makelaardij werkt op basis van no cure no pay. En betalen doe je pas bij verkoop.

Aalsterweg 5 040 - 293 05 00 eindhoven@hendriks.nl www.hendriks.nl

onze makelaarskantoren huizen van hendriks
WHATSAPP FOTO’S WONING ADRES WAARDE + + = Aalsterweg 5 040 - 293 05 00 eindhoven@hendriks.nl www.hendriks.nl Ook je huis verkopen? WhatsApp de foto’s en het adres van je woning naar 06 44 33 78 72 en ontvang een gratis waardebepaling!

Turn static files into dynamic content formats.

Create a flipbook
Issuu converts static files into: digital portfolios, online yearbooks, online catalogs, digital photo albums and more. Sign up and create your flipbook.
Wickenburg 10, Eindhoven by Hendriks Makelaardij - meer makelaar - - Issuu