Vredeman de Vriesstraat 45, Tilburg

Page 1

HuizenHendriks van

Onlangs vernieuwde tuin

Drie slaapkamers

Charmante 2-onder-één-kap woning!

Badkamer boven

Rustig wonen nabij het centrum Tilburg!

Vredeman de Vriesstraat 45 , 5041 GR Tilburg
H55

De in deze brochure getoonde informatie wordt door Hendriks makelaardij met zorg samengesteld, doch voor de juistheid en volledigheid daarvan kan niet worden ingestaan en kunnen hieraan geen rechten worden ontleend. Spel- en typefouten voorbehouden. De plattegronden zijn geproduceerd voor promotionele doeleinden en ter indicatie. Er kunnen geen rechten aan worden ontleend. Maten zijn niet eigenhandig opgemeten. Indien er twijfel bestaat over de accuratie van de gegevens aangaande deze brochure, is de geïnteresseerde zelf verantwoordelijk voor het nameten van deze gegevens. Voor meer informatie wordt u doorverwezen naar www.hendriks.nl

Verkoper vertelt

Sinds 2016 woon ik met veel plezier in deze mooie jaren ‘30 woning en sinds 2 jaar samen met mijn partner. We genieten zo’n twee keer per week van een mooie wandeling door het spoorpark of gaan lekker eten in de spoorzone (5 min lopen). De Albert Heijn XL, Etos en Action aan het einde van de straat zijn ideaal gelegen. Vrienden kunnen in 10 minuten naar je huis lopen vanaf het station of parkeren in de straat. Super goede locatie voor jonge mensen zoals ons, of natuurlijk als je kinderen hebt, door de vele nieuwe speelplekken in de omgeving. Dit jaar is de speeltuin aan het einde van de straat nog volledig vernieuwd.

Naast de ultieme locatie genieten we vooral erg van de nieuwe keuken en tuin (beide nieuw; 2022). Door de gunstige ligging van de tuin heb je veel zonlicht en genoeg ruimte om er te zitten. Het hele jaar door zitten we in de tuin, door de hout gestookte hottub waar we erg van genieten met vrienden. De keuken is ook een fijne verbetering, omdat je alle ruimte hebt om uitgebreid te koken en door de comfortabele

bar kan je nog met iemand kletsen terwijl je een lekkere maaltijd bereid.

Helaas gaan wij deze geliefde woning verkopen, omdat we naar onze roots in Gorinchem terug gaan nu we een kleintje verwachten. Ik heb 13 jaar met heel veel plezier in Tilburg gewoond, maar toch besloten om boven de rivieren te gaan wonen met mijn partner. Dichterbij onze familie.

Kenmerken eengezinswoning 2-onder-1-kapwoning 4 107 m² 128 m² 385 m³ 1931 achtertuin geen garage c.v.-ketel dakisolatie, gedeeltelijk dubbel glas D Soort Type Kamers Woonoppervlakte Perceeloppervlakte Inhoud Bouwjaar Tuin Garage Verwarming Isolatie Energielabel
Tilburg: Besterdring 223, T 013 - 549 91 90
Te koop bij

Sfeervolle ruimte

perfecte basis

gezellige eethoek

De woonkamer is een sfeervolle kamer met een verrassend veel ruimte. De laminaatvloer en de strakke wanden zorgen voor een goede basis, de tuindeuren geven veel lichtinval en betrekken de tuin bij de woonkamer. De ruime opzet geeft veel woonruimte en biedt daarom genoeg mogelijkheden om in te richten naar eigen smaak.

De woonkamer biedt daarnaast voldoende ruimte om een eetgedeelte te integreren. Hierdoor kunnen gasten genieten van een heerlijk diner, terwijl de gezellige sfeer van de woonkamer behouden blijft.

Deze karaktervolle woning heeft niet alleen veel woonruimte, maar ook veel potentie om de woning aan te passen naar wens.

huizen van hendriks

Wat eten we vanavond?

lekker kokkerellen

bijkeuken aanwezig

De keuken heeft een upgrade gehad en is in april 2022 vernieuwd. Er is veel ruimte om samen heerlijk te koken. zo kun je rekenen op een inductiekookplaat, vaatwasser, oven, magnetron, koelkast en een downdraft afzuiging. In combinatie met de lichtkoepel aan de achterzijde van het huis is dit een hele fijne plek geworden.

Een extra voordeel van de keuken is de aanwezigheid de zit bar. Deze bar leent zich ervoor om s’avonds thuis te komen en samen de dag door te nemen. In de keuken is ook een handige berging verwerkt, deze is goed te zien op de bijgevoegde plattegrond.

Vanuit de keuken heb je toegang tot de bijkeuken, het toilet, de stookruimte en de serre. In de bijkeuken bevindt zich de HR ketel (d.d. 2023) en is er ruimte voor de wasmachine.

huizen van hendriks

2 slaapkamers

nette badkamer

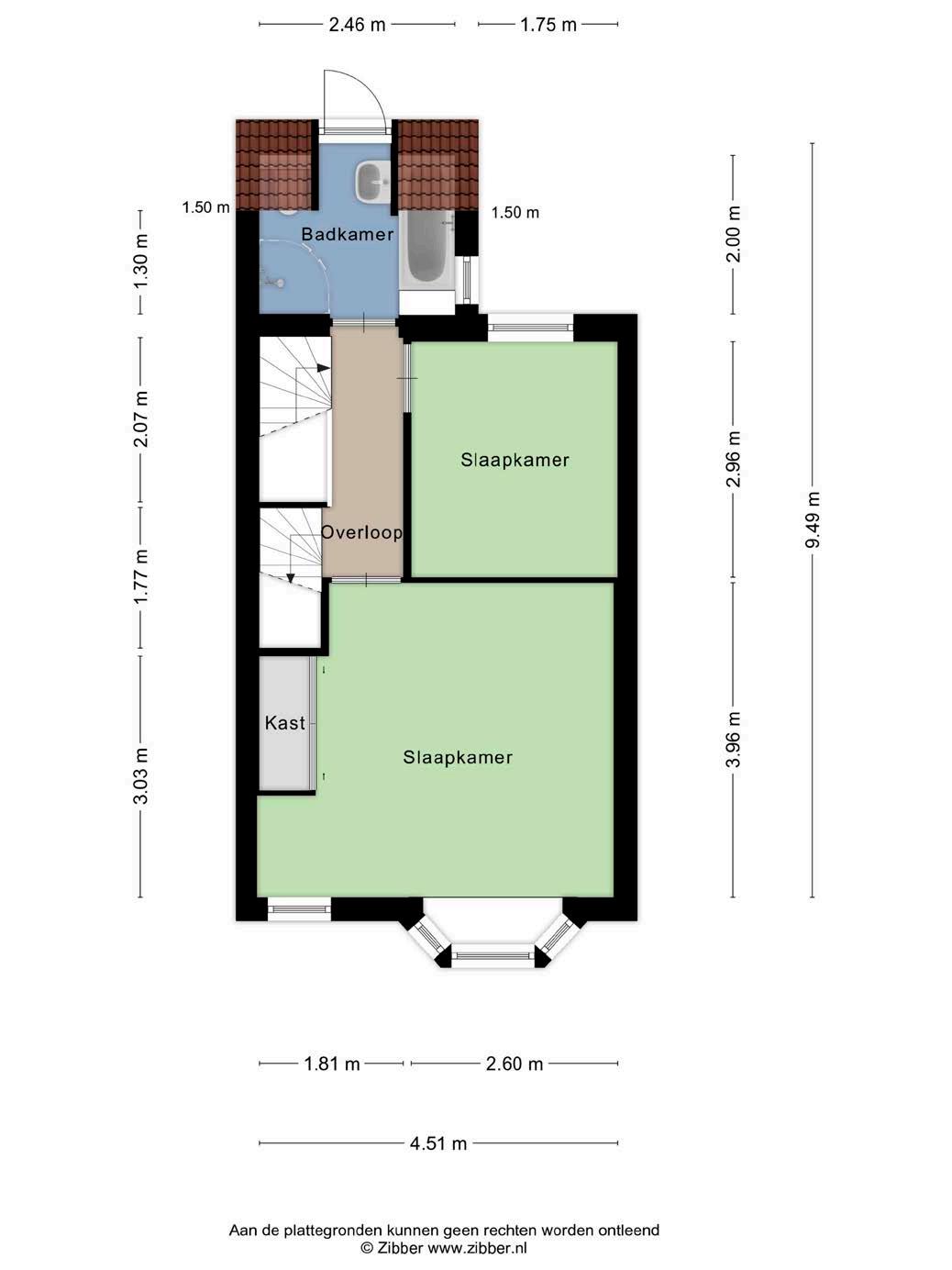
Op de eerste verdieping tref je een overloop die toegang biedt tot de twee slaapkamers en de badkamer. Beide kamers bieden voldoende ruimte en comfort en is een uitstekende plek om tot rust te komen na een drukke dag. De hoofdslaapkamer is erg ruim opgezet en heeft een ingebouwde kast. In deze kamer is de oudheid van het huis terug te vinden door de authentieke erkers.

De badkamer is netjes afgewerkt en voorzien van een tegelvloer, een douche, ligbad (voor de niet al te lange mensen). Ook is er een toilet en een wastafel aanwezig. Spoel de dag van je af! Hoewel de afwerking van de badkamer netjes is, kan het wel als enigszins gedateerd worden beschouwd.

Op de tweede verdieping bevindt zich de derde slaapkamer. Het fraaie dakkapel zorgt voor voldoende lichtinval en extra ruimte.

3 royale kamers

huizen van hendriks

Geniet van het buitenleven!

op het westen

netjes aangelegd

Deze fijne tuin op het westen is netjes aangelegd in 2022. De tuin is voorzien van tegels en een strakke uitstraling. Er is veel groen aanwezig en aan de zijkant extra borders gecreëerd om wat meer sfeer in de tuin te voegen. Met de juiste inrichting en planten zul je hier straks optimaal genieten van een mooie buitenruimte.

Verder is er nog een kraan aanwezig, handig voor het besproeien van je groen. Daarnaast beschik je over een stenen berging met elektra, zodat je alle tuingereedschap en -apparaten kunt opslaan en opladen.

huizen van hendriks
Vredeman de Vriesstraat 45 5041 GR Tilburg
Vredeman de Vriesstraat 45 5041 GR Tilburg
Vredeman de Vriesstraat 45 5041 GR Tilburg

Tilburg

Het bruisende hart van Midden-Brabant was vroeger de wolstad van Nederland, nu staat het bekend om de grote variëteit aan middelgrote en kleinere bedrijven in vele industriële sectoren.

Tilburg heeft drie stations: Tilburg CS, Station Tilburg Universiteit en Tilburg Reeshof. Ook heeft Tilburg een uitstekend netwerk van fietspaden: de zogenaamde Sternet-routes. In tegenstelling tot veel andere steden van vergelijkbare grootte ligt Tilburg slechts aan één belangrijke snelweg. Dat is de A58.

Het stadscentrum biedt vele uitgaansmogelijkheden, waaronder stadsschouwburg, popcentrum 013 en gezellige kroegen. En niet te vergeten de jaarlijks terugkerende gezelligheid van Tilburg Trakteert met o.a. de Tilburgse Kermis, Festival Mundial, Ten Miles en Hap & Stap.

Ook blijven de gebiedsontwikkelingen rondom het centrum en de bruisende Piushaven & Spoorzone niet onopgemerkt!

Tilburg is zeker een studentenstad te noemen; De Universiteit van Tilburg (UVT), Fontys Hogescholen, en ROC MiddenBrabant is een greep uit het onderwijsaanbod in Tilburg.

Tilburg kent talloze sportverenigingen met als bekendste uiteraard voetbalclub Willem II. Maar ook zijn we goed vertegenwoordigd in het hockey met drie hockeyclubs. Sinds 2010 beschikt Tilburg over een eigen (400m) ijsbaan genoemd de Ireen Wüst IJsbaan.

heerlijk wonen in Tilburg

noorden kadastrale kaart

Lokaal makelaarschap

Wij geloven sterk in lokaal makelaarschap. Kennis van de buurt, de omgeving en de daarbij behorende ontwikkeling van de huizenprijzen zijn onmisbaar om voor jou het maximale resultaat te boeken.

Met Hendriks Makelaardij kies je voor:

• makelaars die al jarenlang verbonden zijn met de regio

• kennis van de lokale woningmarkt

• een verkoopplan afgestemd op jouw woning

• maximale exposure van je huis

• bezichtigingen ook in het weekend

• netwerk met honderden woningzoekers

Verkoop je je huis met Hendriks dan ben je met de eigen app 24/7 op de hoogte van het verkoopproces. Bezichtigingsverzoeken bereiken je direct en beantwoord je snel en discreet op het moment dat het jou uitkomt.

Ook je huis verkopen? Onze makelaars komen graag en vrijblijvend bij je langs. We maken dan direct een gratis waardebepaling. Hendriks Makelaardij werkt op basis van no cure no pay. En betalen doe je pas bij verkoop.

Besterdring 223 013 - 549 91 90 tilburg@hendriks.nl www.hendriks.nl

TILBURG REESHOF BREDA ‘S-HERTOGENBOSCH TILBURG WEERT ROERMOND NIJMEGEN ARNHEM APELDOORN BUSSUM MEPPEL ALMERE AMSTELVEEN AMSTERDAM A’DAM NOORD MONNICKENDAM PURMEREND ZAANDAM ALKMAAR LANDSMEER HOORN HEERHUGOWAARD A’DAM WEST HOOFDDORP HAARLEM (2x) (2x) AMERSFOORT LEIDEN HILVERSUM EINDHOVEN (2x) (2x) ZWOLLE NIEUWEGEIN WIJK BIJ DUURSTEDE VLEUTEN DE MEERN UTRECHT MAARSSEN onze makelaarskantoren huizen van hendriks
WHATSAPP FOTO’S WONING ADRES WAARDE + + = Besterdring 223 013 - 549 91 90 tilburg@hendriks.nl www.hendriks.nl Ook je huis verkopen? WhatsApp de foto’s en het adres van je woning naar 06 44 33 78 72 en ontvang een gratis waardebepaling!

Turn static files into dynamic content formats.

Create a flipbook
Issuu converts static files into: digital portfolios, online yearbooks, online catalogs, digital photo albums and more. Sign up and create your flipbook.