Skip to main content

Valkenstraat 23, Haelen

Page 1


HuizenHendriks van

Kenmerken

Soort eengezinswoning

Type halfvrijstaande woning Kamers 9

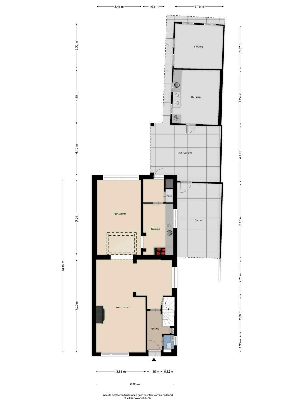
Woonoppervlakte 124 m²

Perceeloppervlakte 398 m²

Inhoud 536 m³

Bouwjaar 1955

Tuin achtertuin, voortuin

Garage carport

Verwarming c.v.-ketel

Isolatie grotendeels dubbelglas, hr-glas

Energielabel D

De in deze brochure getoonde informatie wordt door Hendriks makelaardij met zorg samengesteld, doch voor de juistheid en volledigheid daarvan kan niet worden ingestaan en kunnen hieraan geen rechten worden ontleend. Spel- en typefouten voorbehouden. De plattegronden zijn geproduceerd voor promotionele doeleinden en ter indicatie. Er kunnen geen rechten aan worden ontleend. Maten zijn niet eigenhandig opgemeten. Indien er twijfel bestaat over de accuratie van de gegevens aangaande deze brochure, is de geïnteresseerde zelf verantwoordelijk voor het nameten van deze gegevens. Voor meer informatie wordt u doorverwezen naar www.hendriks.nl

Verkoper vertelt

Fijn groot huis met carport geschikt voor camper ( 3 meter hoog) en een goeg geisoleerde schuur.

Ideaal voor thuiswerk met alle aansluitingen en verwarming, fijne lokatie binnen vijf minuten lopen in natuurgebied Leudal met zeven honderd ha bos, rustig gelegen met alle voorzieningen in fietsafstand

Sfeervolle

kamer

ruim opgezet

sfeervolle uitstraling

Ontdek de charme en functionaliteit van deze royale halfvrijstaande woning. De ruime opzet biedt niet alleen een zee van ruimte, maar ook de privacy die je zoekt. Met zijn praktische indeling en uitnodigende uitstraling is dit huis perfect voor starters en jonge gezinnen die op zoek zijn naar een plek om te groeien en te bloeien. Hier kun je je creativiteit de vrije loop laten en je eigen stempel drukken op een woning die barst van het potentieel.

Royale uitbouw

royale aanbouw complete keuken

De indrukwekkende aanbouw aan de achterzijde van de woning zorgt voor een overvloed aan leefruimte op de begane grond. Stel je voor: een lichte, open keuken waar je heerlijke maaltijden bereidt voor vrienden en familie, of een ruime woonkamer waar je samenkomt voor gezellige avonden. Deze extra ruimte biedt talloze mogelijkheden om je woonbeleving te verrijken en de indeling volledig naar jouw hand te zetten.

Slaap lekker

drie slaapkamers

vol mogelijkheden

Op de eerste verdieping vind je drie ruime slaapkamers, elk met hun eigen charme. Deze kamers bieden voldoende ruimte voor al je dromen en wensen, of je nu een kinderkamer, hoofdslaapkamer of thuiskantoor wilt creëren. Met veel natuurlijk licht en een serene sfeer zijn deze slaapkamers de perfecte retreats om te ontspannen na een drukke dag

pivacyvolle achtertuin

Zonnige tuin twee bergingen

De grote achtertuin op het zuiden is een oase van rust en zonneschijn. Hier voel je de warmte op je huid terwijl je ontspant met een boek, of geniet je van lange zomeravonden met vrienden en familie. Of je nu een tuinier in spe bent of gewoon wil genieten van de frisse buitenlucht, deze tuin biedt de perfecte setting voor ontspanning en plezier. Laat je zintuigen prikkelen door de geur van bloemen en het geluid van fluitende vogels.

Haelen

Haelen is een kerkdorp gelegen in het hart van het prachtige Leudal. Of je nu op zoek bent naar rust en natuur of juist levendigheid en activiteiten, Haelen heeft het allemaal. Het dorp heeft een actief verenigingsleven, wat betekent dat er altijd wel iets te doen is. Van sportclubs tot muziekverenigingen en van toneelgroepen tot carnavalsverenigingen. Bovendien worden er het hele jaar door evenementen en festiviteiten georganiseerd. Denk aan de Haelense optocht met carnaval, de jaarlijkse paardenmarkt en de braderie tijdens Koningsdag.

Ook op het gebied van voorzieningen zit je goed in Haelen. Het dorp heeft een basisschool, een supermarkt, een bakker, een slager en diverse andere winkels en diensten die je nodig hebt voor je dagelijkse boodschappen. Daarnaast zijn er meerdere sportfaciliteiten, zoals een voetbalveld en een tennisbaan. Voor verdere voorzieningen kun je terecht in de nabijgelegen steden Roermond en Weert, die beide op korte afstand van Haelen liggen.

heerlijk wonen in Haelen
noorden kadastrale kaart

Lokaal makelaarschap

Wij geloven sterk in lokaal makelaarschap. Kennis van de buurt, de omgeving en de daarbij behorende ontwikkeling van de huizenprijzen zijn onmisbaar om voor jou het maximale resultaat te boeken.

Met Hendriks Makelaardij kies je voor:

• makelaars die al jarenlang verbonden zijn met de regio

• kennis van de lokale woningmarkt

• een verkoopplan afgestemd op jouw woning

• maximale exposure van je huis

• bezichtigingen ook in het weekend

• netwerk met honderden woningzoekers

Verkoop je je huis met Hendriks dan ben je met de eigen app 24/7 op de hoogte van het verkoopproces.

Bezichtigingsverzoeken bereiken je direct en beantwoord je snel en discreet op het moment dat het jou uitkomt.

HEERHUGOWAARD

ALKMAAR LANDSMEER HOORN

Ook je huis verkopen? Onze makelaars komen graag en vrijblijvend bij je langs. We maken dan direct een gratis waardebepaling. Hendriks Makelaardij werkt op basis van no cure no pay. En betalen doe je pas bij verkoop.

Sint Christoffelstraat 1-3 0475 - 31 12 00 roermond@hendriks.nl www.hendriks.nl

PURMEREND ZAANDAM

(2x)

A’DAM WEST

HOOFDDORP HAARLEM

LEIDEN

MONNICKENDAM

A’DAM NOORD

AMSTERDAM

AMSTELVEEN

VLEUTEN DE MEERN

ALMERE

BUSSUM

HILVERSUM

UTRECHT MAARSSEN

AMERSFOORT

(2x) (2x)

NIEUWEGEIN WIJK BIJ DUURSTEDE

MEPPEL

ZWOLLE

APELDOORN

ARNHEM

(2x)

NIJMEGEN

‘S-HERTOGENBOSCH

BREDA

TILBURG

EINDHOVEN

WEERT

ROERMOND

Turn static files into dynamic content formats.

Create a flipbook
Valkenstraat 23, Haelen by Hendriks Makelaardij - meer makelaar - - Issuu