Swiftstraat 14, Apeldoorn

Page 1

Swiftstraat 14 , 7312 VS Apeldoorn Moderne badkamer 5 slaapkamers Kindvriendelijke buurt Eigen parkeergelegenheid 8 zonnepanelen H48 HuizenHendriksvan

Soort Type Kamers

Woonoppervlakte

Perceeloppervlakte Inhoud Bouwjaar Tuin Garage Verwarming

Isolatie Energielabel

eengezinswoning hoekwoning 6 140 m² 234 m² 515 m³ 1984 achtertuin, voortuin, zijtuin geen garage c.v.-ketel, hete lucht verwarming volledig geïsoleerd C

De in deze brochure getoonde informatie wordt door Hendriks makelaardij met zorg samengesteld, doch voor de juistheid en volledigheid daarvan kan niet wor den ingestaan en kunnen hieraan geen rechten worden ontleend. Spel- en typefouten voorbehouden. De plattegronden zijn geproduceerd voor promotionele doeleinden en ter indicatie. Er kunnen geen rechten aan worden ontleend. Maten zijn niet eigenhandig opgemeten. Indien er twijfel bestaat over de accuratie van de gegevens aangaande deze brochure, is de geïnteresseerde zelf verantwoordelijk voor het nameten van deze gegevens. Voor meer informatie wordt u doorverwezen naar www.hendriks.nl

Verkoper vertelt

Toen wij hier 24 jaar geleden met ons gezin kwamen wonen waren wij verheugd over dit mooie, ruime huis in een rustig woonerf gelegen in Apeldoorn West.

Voor onze 4 kinderen een eldorado die hier de ruimte hadden om lekker binnen en buiten te spelen, zonder druk verkeer. Een heerlijke plek om op te groeien met de school en winkels nabij. Het huis ligt zeer centraal vlakbij het centrum, de sportvelden , de bossen en de A50 en A1 zijn gemakkelijk bereikbaar.

Van buiten zie je niet de ruimte eraan af die het huis zeer aantrekkelijk maken. Met een carport waar de auto droog staat en binnen handbereik is. Binnen een ruime hal en woonkamer met zitgedeelte uitkijkend op de tuin, zuidwestelijk gelegen, met nagenoeg de gehele dag zon, waar het heerlijk vertoeven is. S’avonds kijkt het gezellig naar buiten met de aangebrachte verlichting aan de ruime schuur die recentelijk vernieuwd is.

Wij hebben door middel van een dakkapel twee extra slaapkamers gerealiseerd waardoor elk kind zijn/haar eigen plek had. Er is een vernieuwde ruime badkamer en ook is het toilet beneden vernieuwd. De ruime woonkamer ,de gangen, overlopen en achterzolder zijn recentelijk aangepakt waardoor het een frisse uitstraling heeft gekregen.

De buren zijn betrokken naar elkaar en je weet elkaar te vinden als het nodig is. Ik ga zelf kleiner wonen, maar blijf in deze fijne omgeving wonen. Ik hoop dat de toekomstige bewoners hier ook met plezier gaan wonen!

Kenmerken
Apeldoorn: Zwolseweg 208, T 055 - 521 92 77
Te koop bij

sfeer en comfort

keurig afgewerkt

Bij binnenkomst in de woonkamer weet je het; hier wil jij de komende jaren een grote hoeveelheid nieuw woongenot creëren. Het geheel heeft een warme, sfeervolle afwerking met strak gestucte wanden en een laminaatvloer. De gezellige woon kamer biedt een leuk zicht over de zonnige achter tuin. Hier ben je thuis!

Via de hal heb je toegang tot een inpandige ber ging. Hier vind je tevens de witgoedaansluitingen.

Tuingerichte woonkamer
huizen van hendriks

Nette open keuken

Aan de voorzijde is de zeer goed onderhouden, open keuken gesitueerd. Het geheel is geplaatst in een U-opstelling en biedt voldoende werk- en op bergruimte. Daarnaast beschik je over het nodige kookcomfort én zijn in 2021 de gaskookplaat en de oven nog vervangen.

Tussen de woonkamer en de keuken is voldoende ruimte om een gezellige eethoek te creëren waar aan je lekker lang kunt tafelen. Eet smakelijk!

huizen van hendriks
voldoende kastruimte wat maak jij vanavond?

slaap lekker!

spoel de dag van je af!

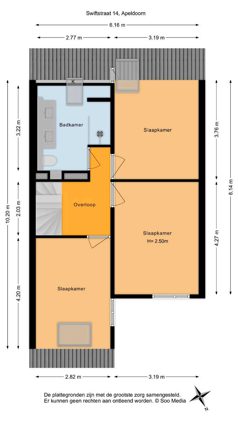
Op de eerste verdieping zijn drie slaapkamers en de badkamer gesitueerd. De kamers zijn ieder van ruim formaat, lekker licht en afgewerkt met behang op de wanden en een laminaatvloer waardoor je ze vrij snel kunt betrekken.

Aan de achterzijde is de badkamer gesitueerd. De ruime badkamer is vernieuwd, grotendeels bete geld en oogt verzorgd. Het geheel is ingericht met een inloopdouche, dubbel wastafelmeubel en een toilet. Begin de dag hier fris en fruitig en eindig met een warme douche.

Vervolgens komen we op de tweede verdieping. Op de voorzolder vind je de cv-installatie en er zijn nog eens twee slaapkamers gesitueerd. De kamer aan de voorzijde is voorzien van een dakkapel waardoor het geheel nog lichter en ruimtelijker aanvoelt.

Maar liefst 5 slaapkamers huizen van hendriks

Via de woonkamer kom je in de zonnige achtertuin op het zuidwesten. De tuin is goed onderhouden en voorzien van bestrating en borders met vaste beplanting. Voor de warme dagen beschik je over zonwering om zo de warmte grotendeels buitenshuis te houden.

Verder is er in 2020 nog een nieuwe houten ber ging geplaatst die is voorzien van elektra. Aan de voorzijde van de woning ben je voorzien van eigen parkeergelegenheid en een carport.

Daarnaast zijn er in 2022 zonnepanelen geplaatst.

fijne buitenruimte
Tuin op het zuidwesten genieten van de zon!
huizen van hendriks
Swiftstraat 14 7312 VS Apeldoorn
Swiftstraat 14 7312 VS Apeldoorn
Swiftstraat 14 7312 VS Apeldoorn

Apeldoorn

Apeldoorn heeft de laatste jaren een gezonde groei doorgemaakt en is het levendige centrum van de Veluwe. De gemeente telt inmiddels ca. 165.000 inwoners en is de grootste stad op de Veluwe en de twaalfde stad van Nederland. Het stedelijke gebied van Apeldoorn is onder verdeeld in ruim 40 wijken. En dan is er nog het landelijk gebied waar bijna 20.000 mensen wonen, verdeeld over de bij Apeldoorn behorende dorpen Beekbergen, Ugche len, Beemte Broekland, Hoenderloo, Hoog Soeren, Lieren, Loenen, Nieuw Milligen, Uddel, Wenum Wiesel, deels Radio Kootwijk en Klarenbeek.

Door de vele parken, heemtuinen, maar vooral ook door de uitgestrekte natuurgebieden die rondom de stad zijn gelegen, is Apeldoorn met recht het ‘Groene hart van de Veluwe’. De Koninklijke Houtvesterij Het Loo vormt één van Nederlands grotere aaneengesloten natuurgebieden met een oppervlakte van 10.500 hectare. In deze natuurlijke omgeving leven onder andere edelherten, reeën en wilde zwijnen. Apeldoorn is ook een ‘Koninklijke Stad’, bekend om Paleis Het Loo met zijn prachtige tuinen en Koninklijke Stallen en Het Aardhuis, voormalig jachtchalet van koning Willem II. Het woonklimaat in Apeldoorn is zéér aantrekkelijk.

heerlijk wonen in Apeldoorn
noorden kadastrale kaart

Lokaal makelaarschap

Wij geloven sterk in lokaal makelaarschap. Kennis van de buurt, de omgeving en de daarbij behorende ontwikkeling van de huizenprijzen zijn onmisbaar om voor jou het maximale resultaat te boeken.

Met Hendriks Makelaardij kies je voor:

makelaars die al jarenlang verbonden zijn met de regio

kennis van de lokale woningmarkt

een verkoopplan afgestemd op jouw woning

maximale exposure van je huis

bezichtigingen ook in het weekend

netwerk met honderden woningzoekers

Verkoop je je huis met Hendriks dan ben je met de eigen app 24/7 op de hoogte van het verkoopproces. Bezichtigingsverzoeken bereiken je direct en beantwoord je snel en discreet op het moment dat het jou uitkomt.

Ook je huis verkopen? Onze makelaars komen graag en vrijblijvend bij je langs. We maken dan direct een gratis waardebepaling. Hendriks Makelaardij werkt op basis van no cure no pay. En betalen doe je pas bij verkoop.

Zwolseweg 208 055 - 521 92 77 apeldoorn@hendriks.nl www.hendriks.nl

onze makelaarskantoren huizen van hendriks
WHATSAPP FOTO’S WONING ADRES WAARDE + + = Zwolseweg 208 055 - 521 92 77 apeldoorn@hendriks.nl www.hendriks.nl Ook je huis verkopen? WhatsApp de foto’s en het adres van je woning naar 06 44 33 78 72 en ontvang een gratis waardebepaling!

Turn static files into dynamic content formats.

Create a flipbook
Issuu converts static files into: digital portfolios, online yearbooks, online catalogs, digital photo albums and more. Sign up and create your flipbook.