Skip to main content

Statenlaan 3, Rijen

Page 1

HuizenHendriks van

Geschikt

Grondwaterpomp

Vrijstaand

Statenlaan 3 , 5121 HA Rijen
Groene omgeving
aanwezig
mantelzorg
voor
H55
Ideaal voor bedrijf aan huis

De in deze brochure getoonde informatie wordt door Hendriks makelaardij met zorg samengesteld, doch voor de juistheid en volledigheid daarvan kan niet worden ingestaan en kunnen hieraan geen rechten worden ontleend. Spel- en typefouten voorbehouden. De plattegronden zijn geproduceerd voor promotionele doeleinden en ter indicatie. Er kunnen geen rechten aan worden ontleend. Maten zijn niet eigenhandig opgemeten. Indien er twijfel bestaat over de accuratie van de gegevens aangaande deze brochure, is de geïnteresseerde zelf verantwoordelijk voor het nameten van deze gegevens. Voor meer informatie wordt u doorverwezen naar www.hendriks.nl

Verkoper vertelt

Op een fraaie locatie aan de rand van Rijen met uitzicht over de landerijen en in de nabijheid van bossen gelegen statige vrijstaande woning met ruime inpandige garage en oprijlaan.

Kenmerken eengezinswoning vrijstaande woning 5 147 m² 878 m² 624 m³ 1981 achtertuin, tuin rondom aangebouwd steen c.v.-ketel muurisolatie, vloerisolatie, volledig geïsoleerd C Soort Type Kamers Woonoppervlakte Perceeloppervlakte Inhoud Bouwjaar Tuin Garage Verwarming Isolatie Energielabel
Tilburg: Besterdring 223, T 013 - 549 91 90
Te koop bij

Speels ingericht

ruime woonkamer

veel lichtinval

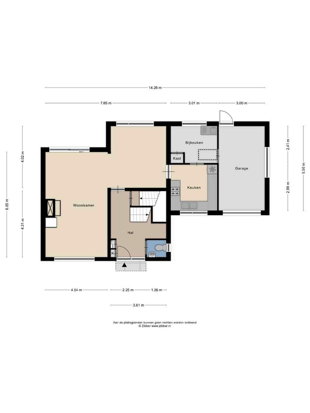
Entree met ruime hal met toegang tot de meterkast, toilet en statige trapopgang naar de eerste verdieping. Vanuit de hal is er toegang tot de ruime woonkamer.

Woonkamer

De speels ingedeelde woonkamer heeft veel daglichttoetreding met vloerverwarming, gestucte wandafwerking en een open haard welke zorgt voor een ultiem gevoel van gezelligheid.

huizen van hendriks

Gezellig samen tafelen

open keuken praktische bijkeuken

De open keuken is aan de achterzijde van de woning gelegen en is voorzien van dezelfde plavuizenvloer als in de woonkamer eveneens met vloerverwarming. Het keukenblok is in hoekopstelling geplaatst en voorzien van 4 pits gasfornuis, afzuigkap en oven.

Bijkeuken

De praktische bijkeuken is achter de keuken gelegen, betegeld en voorzien van aansluitingen ten behoeve van de wasapparatuur. Vanuit de bijkeuken is de inpandige garage alsmede de tuin toegankelijk.

huizen van hendriks

3 slaapkamers

royale badkamer

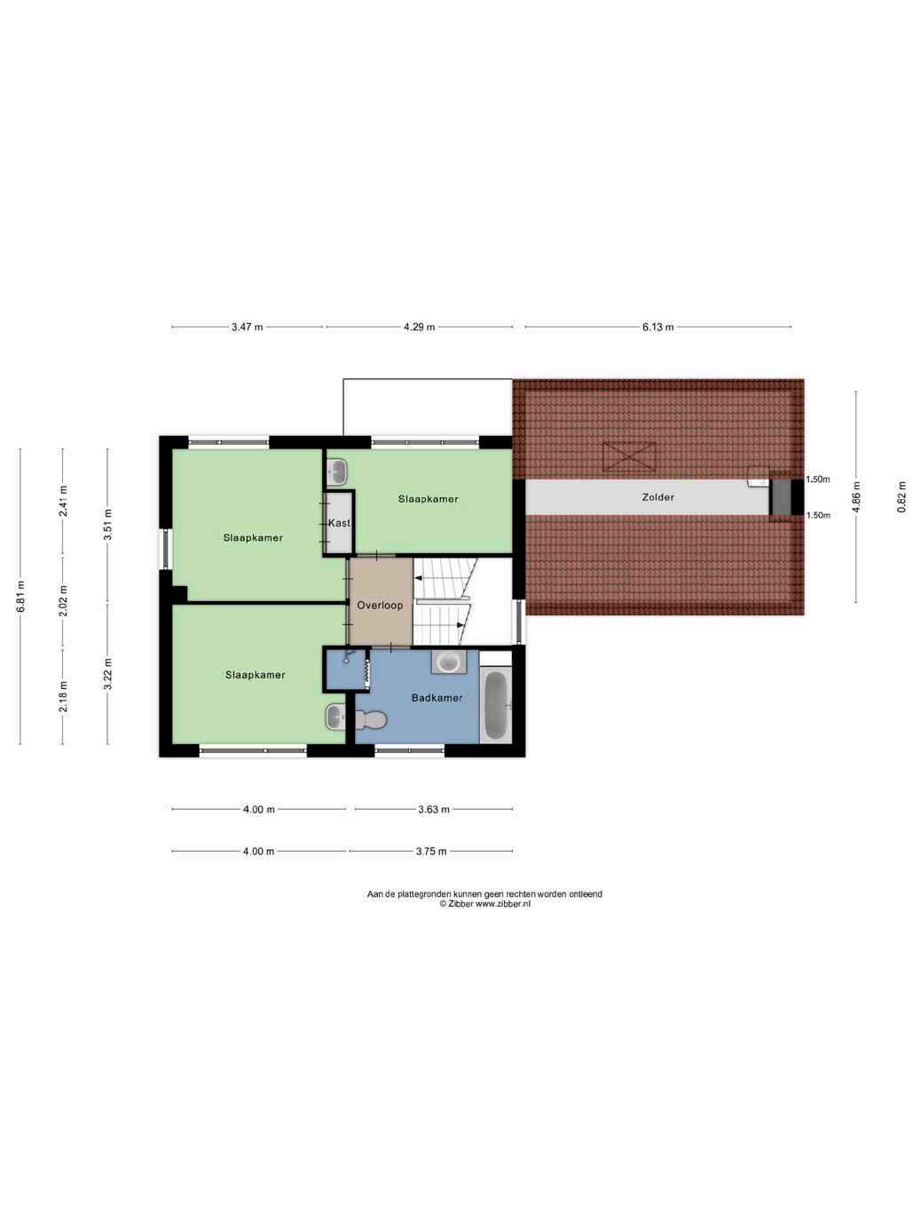
Ruime overloop met toegang tot drie volwaardige slaapkamers en een badkamer. De slaapkamer rechtsachter is voorzien van een inbouwkast en een wastafel. De slaapkamer is linksvoor is voorzien van een wastafel. De royale badkamer is voorzien van een ligbad, toilet, wastafelmeubel en een inloopdouche.

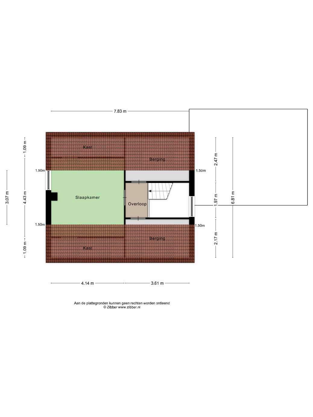
Tweede verdieping

Middels een vaste trap is de tweede verdieping met slaapkamer en voorzolder bereikbaar. Onder de knieschotten bevinden zich over de volle breedte zowel links als rechts diverse opbergmogelijkheden.

Lichte afwerking

huizen van hendriks

Op het zonnige zuiden gelegen

ruime achtertuin

veel privacy

De ruime achtertuin en veel privacy biedende achtertuin heeft diverse borders en terrassen en is op het zonnige zuiden gelegen. Langs de westkant van de woning is de tuin via een afgesloten achterom bereikbaar.

huizen van hendriks
Statenlaan 3 5121 HA Rijen
Statenlaan 3 5121 HA Rijen
Statenlaan 3 5121 HA Rijen

heerlijk wonen in Rijen

Rijen

Rijen is de grootse plaats van de Nederlandse gemeente Gilze en Rijen. Ook bevindt zich hier het gemeentehuis. Rijen is gelegen ten noorden van de A58 tussen Breda en Tilburg. Omliggende plaatsen zijn Dorst, Dongen en Oosterhout. Ten oosten van Rijen ligt een grootschalig ontginningslandschap. Hier lopen de Grote Leij, de Kleine Leij en de Landscheiding in noordelijke richting. Al deze riviertjes komen uiteindelijk in de Donge uit.

Het landschap ten zuiden van Rijen, de voormalige Molenschotse Heide, wordt gekenschetst door militair gebruik. Ten westen van Rijen bevindt zich de Boswachterij Dorst, een uitgestrekt bosgebied. Aansluitend, ten noorden van Rijen, het bosgebied de Duiventoren. Ten zuiden is de Molenschotse Heide. In het Noord-Oosten loopt het Wilhelminakanaal met het broedgebied Lange Rekken tussen dit kanaal en de Donge in gelegen.

Naast een goede verbinding richting omliggende plaatsen door middel van diverse uitvalswegen beschikt Rijen tevens over een treinstation.

noorden kadastrale kaart

Lokaal makelaarschap

Wij geloven sterk in lokaal makelaarschap. Kennis van de buurt, de omgeving en de daarbij behorende ontwikkeling van de huizenprijzen zijn onmisbaar om voor jou het maximale resultaat te boeken.

Met Hendriks Makelaardij kies je voor:

• makelaars die al jarenlang verbonden zijn met de regio

• kennis van de lokale woningmarkt

• een verkoopplan afgestemd op jouw woning

• maximale exposure van je huis

• bezichtigingen ook in het weekend

• netwerk met honderden woningzoekers

Verkoop je je huis met Hendriks dan ben je met de eigen app 24/7 op de hoogte van het verkoopproces. Bezichtigingsverzoeken bereiken je direct en beantwoord je snel en discreet op het moment dat het jou uitkomt.

Ook je huis verkopen? Onze makelaars komen graag en vrijblijvend bij je langs. We maken dan direct een gratis waardebepaling. Hendriks Makelaardij werkt op basis van no cure no pay. En betalen doe je pas bij verkoop.

Besterdring 223 013 - 549 91 90 tilburg@hendriks.nl www.hendriks.nl

TILBURG REESHOF BREDA ‘S-HERTOGENBOSCH TILBURG WEERT ROERMOND NIJMEGEN ARNHEM APELDOORN BUSSUM MEPPEL ALMERE AMSTELVEEN AMSTERDAM A’DAM NOORD MONNICKENDAM PURMEREND ZAANDAM ALKMAAR LANDSMEER HOORN HEERHUGOWAARD A’DAM WEST HOOFDDORP HAARLEM (2x) (2x) AMERSFOORT LEIDEN HILVERSUM EINDHOVEN (2x) (2x) ZWOLLE NIEUWEGEIN WIJK BIJ DUURSTEDE VLEUTEN DE MEERN UTRECHT MAARSSEN onze makelaarskantoren huizen van hendriks
WHATSAPP FOTO’S WONING ADRES WAARDE + + = Besterdring 223 013 - 549 91 90 tilburg@hendriks.nl www.hendriks.nl Ook je huis verkopen? WhatsApp de foto’s en het adres van je woning naar 06 44 33 78 72 en ontvang een gratis waardebepaling!

Turn static files into dynamic content formats.

Create a flipbook
Statenlaan 3, Rijen by Hendriks Makelaardij - meer makelaar - - Issuu