Sophialaan 3A, Apeldoorn

Page 1

HuizenHendriks van

Sophialaan 3 A, 7311 PB Apeldoorn
In het centrum
Eigen parkeerplaats 3 slaapkamers
geïsoleerd H48
Modern complex Volledig

Soort

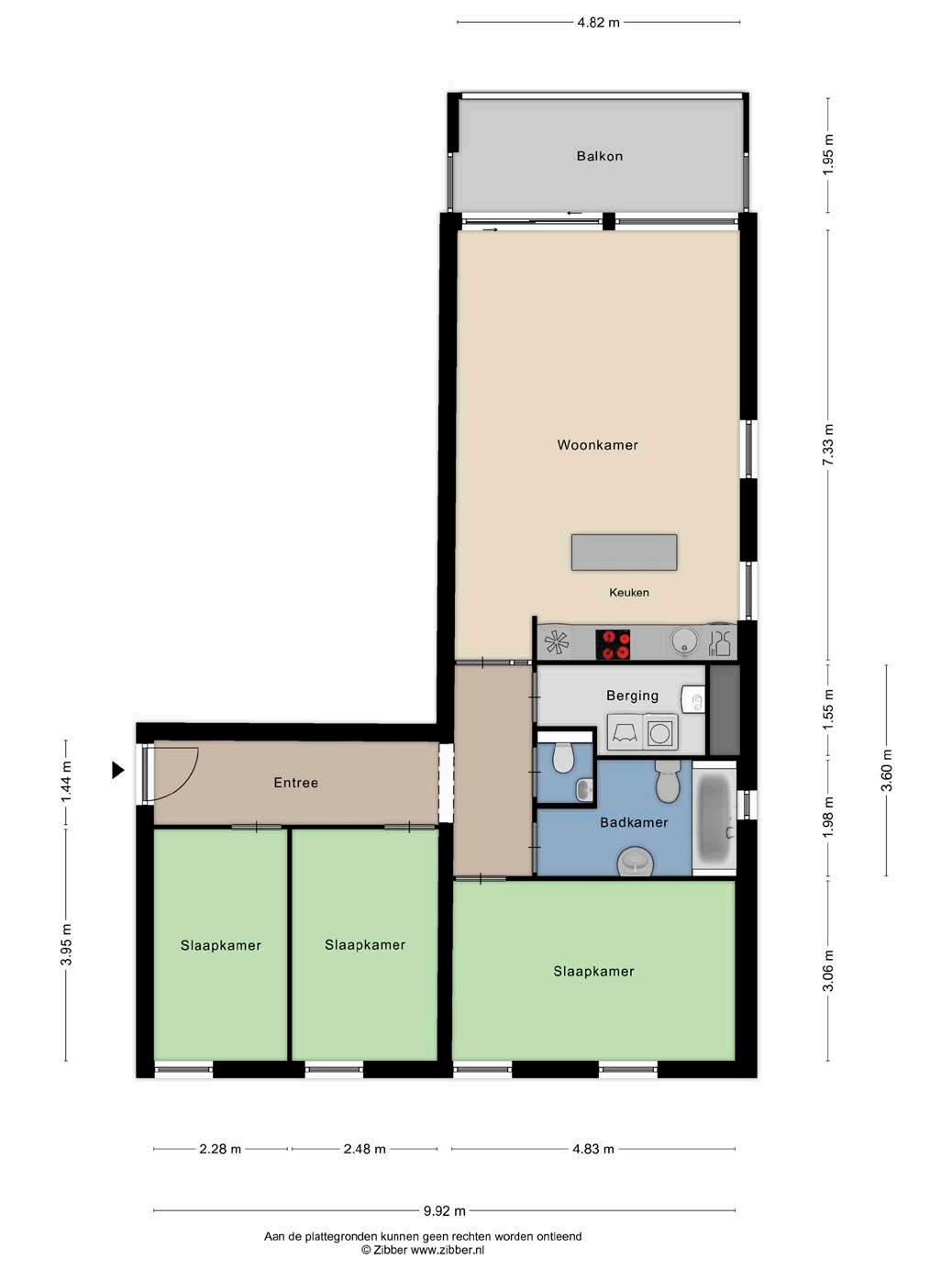
Kamers

Woonoppervlakte

Inhoud

Bouwjaar

Tuin

Garage

Verwarming

Isolatie

Energielabel

Kenmerken

portiekflat

4

95 m²

315 m³

2003

geen tuin

parkeerkelder

c.v.-ketel, warmte terugwininstallatie

volledig geïsoleerd, hr-glas

B

De in deze brochure getoonde informatie wordt door Hendriks makelaardij met zorg samengesteld, doch voor de juistheid en volledigheid daarvan kan niet worden ingestaan en kunnen hieraan geen rechten worden ontleend. Spel- en typefouten voorbehouden. De plattegronden zijn geproduceerd voor promotionele doeleinden en ter indicatie. Er kunnen geen rechten aan worden ontleend. Maten zijn niet eigenhandig opgemeten. Indien er twijfel bestaat over de accuratie van de gegevens aangaande deze brochure, is de geïnteresseerde zelf verantwoordelijk voor het nameten van deze gegevens. Voor meer informatie wordt u doorverwezen naar www.hendriks.nl

Verkoper vertelt

We nodigen je graag uit om mijn appartement in Apeldoorn te ontdekken! Na een periode van 20 jaar met veel plezier te hebben gewoond, heb ik besloten mijn geliefde thuis beschikbaar te stellen voor een nieuwe eigenaar. Laat me je vertellen waarom dit appartement zo speciaal is.

Een van de grootste voordelen van deze woning is de uitstekende locatie. Stap letterlijk de deur uit en je bent direct bij het treinstation. Dit maakt het reizen een fluitje van een cent, of je nu naar het werk gaat, vrienden bezoekt of gewoon even wilt genieten van een dagje uit. Daarnaast bevindt het appartement zich op loopafstand van de binnenstad, waardoor je alle gemakken en voorzieningen binnen handbereik hebt. Het beste van alles is dat je kunt genieten van de nabijheid van het bruisende stadsleven zonder overlast te hebben van geluid. Het appartement is namelijk uitstekend geïsoleerd, zodat je in alle rust en privacy kunt genieten van je eigen oase.

Een ander geweldig kenmerk van dit appartement is dat alles gelijkvloers is. Dit heeft ons enorm geholpen toen wij minder goed ter been waren. De toegankelijkheid en het comfort van deze woning zijn zeer prettig. Geen trappen meer beklimmen of je zorgen maken over mobiliteitsproblemen.

Het appartement heeft ons veel geluk en warme herinneringen gebracht gedurende de jaren dat we hier hebben gewoond.

Apeldoorn: Zwolseweg 208, T 055 - 521 92 77
Te koop bij

modern complex

gelegen op de 2e etage

U komt het moderne appartementencomplex binnen via de afgesloten entree met videofoon. De ruimte is van royaal formaat en heeft toegang tot de eigen berging en parkeerplaats. Daarnaast treft u hier een lift en een trapopgang naar de verdiepingen.

Welkom!
huizen van hendriks

Ruime woonkamer

lekker licht nette afwerking

U zult zich snel thuis voelen in deze royale woonkamer met open keuken. Het nette en goed onderhouden geheel staat garant voor een ideale basis waarin u met verschillende interieurstijlen binnen no-time een fijn nieuw thuis creëert.

Door de grote ramen en schuifpui naar het balkon komt er veel natuurlijk licht naar binnen, wat zorgt voor een aangename sfeer.

huizen van hendriks

Nette open keuken

voldoende kastruimte

diverse apparatuur

De keuken beschikt over een ruime open opstelling met een praktisch eiland waardoor u alle ruimte heeft om te koken, te bakken en te braden. Het geheel is uitgevoerd in een lichte kleur en voorzien van voldoende werk- en opbergruimte. Daarnaast bent u voorzien van moderne inbouwapparatuur, waaronder een inductiekookplaat, oven en een vaatwasser.

Met genoeg plek voor een eethoek is dit de ideale plek om samen te komen met vrienden en familie.

huizen van hendriks

Drie slaapkamers

slapen of studeren?

lekker ontspannen

De slaapkamers variëren van formaat, zijn lekker licht en neutraal afgewerkt, waardoor u er uw eigen sfeer aan kunt geven.

De badkamer is volledig betegeld in een lichte kleur en heeft daarmee een verzorgde uitstraling. De indeling bestaat uit een ligbad, toilet en een wastafel. Het extra separate toilet is ideaal voor bijvoorbeeld gasten.

huizen van hendriks

fijne buitenruimte

genieten van de zon

Op het ruime balkon kunt u heerlijk genieten van het mooie weer en heeft u genoeg ruimte om een comfortabel zitje neer te zetten. Daarnaast beschikt u over een inpandige berging. Hier vindt u niet alleen plek voor uw spullen, maar ook de cv en de wasaansluiting zijn hier te vinden.

Beneden in de onderbouw vindt u een berging met elektra en de eigen parkeerplaats. De privé parkeerplaats en de berging zijn bovendien bereikbaar via een op afstand bedienbare toegangspoort aan de Sophialaan.

huizen van hendriks
Ruim balkon
Sophialaan 3 A 7311 PB Apeldoorn
Sophialaan 3 A 7311 PB Apeldoorn

heerlijk wonen in Apeldoorn

Apeldoorn

Apeldoorn heeft de laatste jaren een gezonde groei doorgemaakt en is het levendige centrum van de Veluwe. De gemeente telt inmiddels ca. 165.000 inwoners en is de grootste stad op de Veluwe en de twaalfde stad van Nederland. Het stedelijke gebied van Apeldoorn is onderverdeeld in ruim 40 wijken. En dan is er nog het landelijk gebied waar bijna 20.000 mensen wonen, verdeeld over de bij Apeldoorn behorende dorpen Beekbergen, Ugchelen, Beemte Broekland, Hoenderloo, Hoog Soeren, Lieren, Loenen, Nieuw Milligen, Uddel, Wenum Wiesel, deels Radio Kootwijk en Klarenbeek.

Door de vele parken, heemtuinen, maar vooral ook door de uitgestrekte natuurgebieden die rondom de stad zijn gelegen, is Apeldoorn met recht het ‘Groene hart van de Veluwe’. De Koninklijke Houtvesterij Het Loo vormt één van Nederlands grotere aaneengesloten natuurgebieden met een oppervlakte van 10.500 hectare. In deze natuurlijke omgeving leven onder andere edelherten, reeën en wilde zwijnen. Apeldoorn is ook een ‘Koninklijke Stad’, bekend om Paleis Het Loo met zijn prachtige tuinen en Koninklijke Stallen en Het Aardhuis, voormalig jachtchalet van koning Willem II. Het woonklimaat in Apeldoorn is zéér aantrekkelijk.

noorden kadastrale kaart

Lokaal makelaarschap

Wij geloven sterk in lokaal makelaarschap. Kennis van de buurt, de omgeving en de daarbij behorende ontwikkeling van de huizenprijzen zijn onmisbaar om voor jou het maximale resultaat te boeken.

Met Hendriks Makelaardij kies je voor:

• makelaars die al jarenlang verbonden zijn met de regio

• kennis van de lokale woningmarkt

• een verkoopplan afgestemd op jouw woning

• maximale exposure van je huis

• bezichtigingen ook in het weekend

• netwerk met honderden woningzoekers

Verkoop je je huis met Hendriks dan ben je met de eigen app 24/7 op de hoogte van het verkoopproces. Bezichtigingsverzoeken bereiken je direct en beantwoord je snel en discreet op het moment dat het jou uitkomt.

Ook je huis verkopen? Onze makelaars komen graag en vrijblijvend bij je langs. We maken dan direct een gratis waardebepaling. Hendriks Makelaardij werkt op basis van no cure no pay. En betalen doe je pas bij verkoop.

Zwolseweg 208 055 - 521 92 77 apeldoorn@hendriks.nl www.hendriks.nl

TILBURG REESHOF BREDA ‘S-HERTOGENBOSCH TILBURG WEERT ROERMOND NIJMEGEN ARNHEM APELDOORN BUSSUM MEPPEL ALMERE AMSTELVEEN AMSTERDAM A’DAM NOORD MONNICKENDAM PURMEREND ZAANDAM ALKMAAR LANDSMEER HOORN HEERHUGOWAARD A’DAM WEST HOOFDDORP HAARLEM (2x) (2x) AMERSFOORT LEIDEN HILVERSUM EINDHOVEN (2x) (2x) ZWOLLE NIEUWEGEIN WIJK BIJ DUURSTEDE VLEUTEN DE MEERN UTRECHT MAARSSEN onze makelaarskantoren huizen van hendriks
WHATSAPP FOTO’S WONING ADRES WAARDE + + = Zwolseweg 208 055 - 521 92 77 apeldoorn@hendriks.nl www.hendriks.nl Ook je huis verkopen? WhatsApp de foto’s en het adres van je woning naar 06 44 33 78 72 en ontvang een gratis waardebepaling!

Turn static files into dynamic content formats.

Create a flipbook
Issuu converts static files into: digital portfolios, online yearbooks, online catalogs, digital photo albums and more. Sign up and create your flipbook.