Raadsherenveld 105, Apeldoorn

Page 1

HuizenHendriks van

Prachtig gemoderniseerd

Nieuwe overkapping

4 slaapkamers

Zonnige tuin

Autoluwe straat

Raadsherenveld 105 , 7327 ES Apeldoorn
H48

Soort Type Kamers

Woonoppervlakte

Perceeloppervlakte

Inhoud

Bouwjaar

Tuin

Garage Verwarming

Isolatie

Energielabel

Kenmerken

eengezinswoning tussenwoning 1

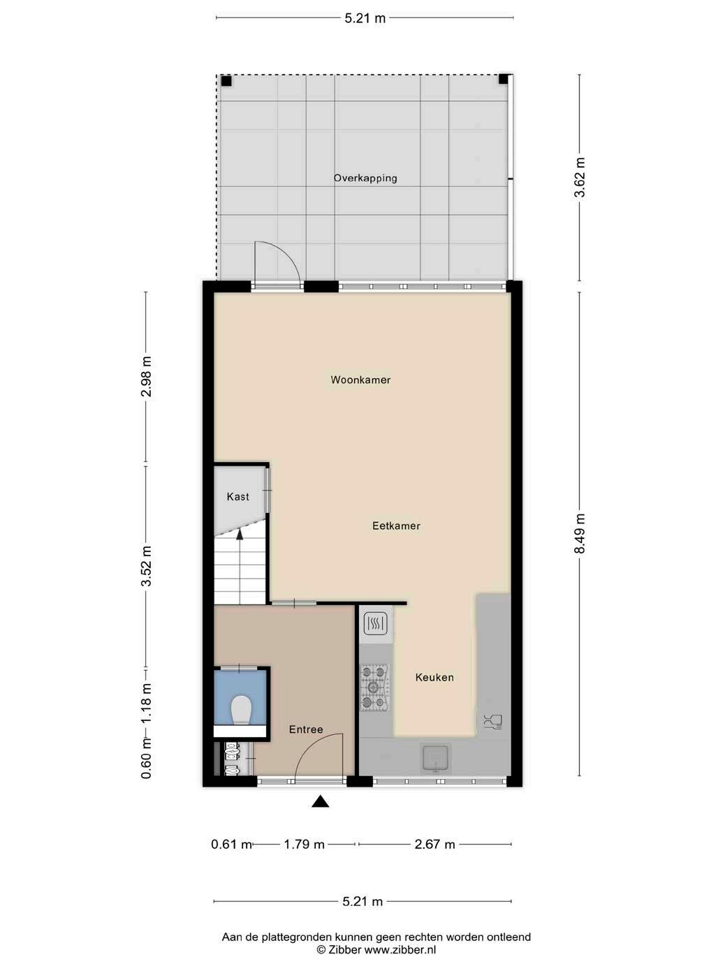
106 m²

151 m²

376 m³

1976 achtertuin, voortuin geen garage c.v.-ketel dakisolatie, grotendeels dubbelglas C

De in deze brochure getoonde informatie wordt door Hendriks makelaardij met zorg samengesteld, doch voor de juistheid en volledigheid daarvan kan niet worden ingestaan en kunnen hieraan geen rechten worden ontleend. Spel- en typefouten voorbehouden. De plattegronden zijn geproduceerd voor promotionele doeleinden en ter indicatie. Er kunnen geen rechten aan worden ontleend. Maten zijn niet eigenhandig opgemeten. Indien er twijfel bestaat over de accuratie van de gegevens aangaande deze brochure, is de geïnteresseerde zelf verantwoordelijk voor het nameten van deze gegevens. Voor meer informatie wordt u doorverwezen naar www.hendriks.nl

Verkoper vertelt

Toen wij in 2020 het huis kochten ontvingen wij een kaart ‘’Welkom in het leukste hofje van de Maten’’ en zo hebben wij de afgelopen jaren ook ervaren. Na een grondige metamorfose hebben wij van een huis een thuis gemaakt waar we jaren met veel plezier hebben gewoond. Het is een kindvriendelijk hofje met een voetbalveldje om de hoek, basisscholen en een supermarkt op loopafstand. Winkelcentrum de Eglantier is makkelijk te bereiken met de fiets en ook het centrum van Apeldoorn ben je in no-time.

Ons mooie thuis staat vlakbij de uitvalswegen naar de A50 en A1 wat enorm handig is voor het reizen naar werk en familie. Toch is het ook heerlijk wandelen in de buurt en laat je met de fiets zo de drukte achter je om lekker rustig te kunnen genieten van de natuur.

Ook hebben we de afgelopen jaren heerlijk kunnen genieten van de zonnige tuin waar eigenlijk de gehele middag en avond de zon te vinden is

en waar we tot laat in de avond hebben kunnen genieten onder de veranda.

Ondanks dat we toe zijn aan een volgende stap zullen we de fijne tijd in het hofje en ons huis nooit vergeten.

Apeldoorn: Zwolseweg 208, T 055 - 521 92 77
Te koop bij

Onlangs gemoderniseerd

modern wooncomfort

vernieuwde keuken

Recente moderniseringen in de woning zorgen ervoor dat je als nieuwe eigenaar direct kunt genieten van modern wooncomfort zonder de zorgen van aanstaande renovaties. Van de strakke afwerking van de muren en vloeren tot de vernieuwde keuken en badkamer, alles is ontworpen met oog voor stijl en functionaliteit. Deze updates brengen niet alleen een frisse en eigentijdse uitstraling met zich mee, maar zorgen ook voor een verhoogde energieefficiëntie en een vermindering van toekomstig onderhoud.

huizen van hendriks

Ieder een eigen kamer

vier slaapkamers

flexibele indeling

Deze woning biedt met vier slaapkamers een zee aan ruimte voor het hele gezin. Elke kamer heeft zijn eigen karakter en biedt de vrijheid om deze naar wens in te richten. Of het nu gaat om een rustige master bedroom, een vrolijke kinderkamer, een efficiënte thuiswerkplek of een creatieve hobbyruimte, de mogelijkheden zijn eindeloos. De kamers zijn stuk voor stuk voorzien van voldoende daglicht en bieden een prettige ambiance voor zowel ontspanning als productiviteit. Deze flexibele indeling maakt het huis geschikt voor diverse levensfasen en gezinssamenstellingen.

huizen van hendriks

tuin op zuidwesten

met overkapping

De tuin, gelegen op het zuidwesten, is een waar paradijs voor zonliefhebbers en tuiniers. Vanaf de vroege middag tot in de avonduren kun je genieten van de warme zonnestralen. De tuin is zorgvuldig aangelegd en biedt een mix van groene beplanting en comfortabele zitruimtes. Het is de perfecte plek om te ontspannen, te spelen of te dineren in de open lucht. De goed doordachte indeling zorgt ervoor dat er altijd een plekje in de zon of schaduw te vinden is, afhankelijk van je voorkeur.

De recent toegevoegde overkapping in de tuin verhoogt het woongenot aanzienlijk. Deze stijlvolle toevoeging biedt een beschutte plek waar je vrijwel het hele jaar door van het buitenleven kunt genieten. Het verlengt de leefruimte van binnen naar buiten en maakt de tuin tot een integraal onderdeel van het huis, waar je ongeacht het weer kunt relaxen en entertainen.

huizen van hendriks
Nieuwe overkapping

autoluwe straat

Gezellige woonwijk rustige ligging

De ligging aan een autoluwe straat is een ware zegen voor gezinnen met kinderen en voor iedereen die van rust houdt. Het verkeer is hier tot het minimum beperkt, wat zorgt voor een veilige en serene omgeving. Kinderen kunnen naar hartenlust buiten spelen en fietsen, terwijl volwassenen genieten van de rust en het geringe geluid van voorbijgaand verkeer. Deze rustige straat draagt bij aan een ontspannen levensstijl en biedt een gevoel van gemeenschap waar buren elkaar nog kennen en waar men tijd voor elkaar neemt.

huizen van hendriks
Raadsherenveld 105 7327 ES Apeldoorn
Raadsherenveld 105 7327 ES Apeldoorn
Raadsherenveld 105 7327 ES Apeldoorn

noorden kadastrale kaart

Apeldoorn

Apeldoorn heeft de laatste jaren een gezonde groei doorgemaakt en is het levendige centrum van de Veluwe. De gemeente telt inmiddels ca. 168.000 inwoners en is de grootste stad op de Veluwe en de twaalfde stad van Nederland. Het stedelijke gebied van Apeldoorn is onderverdeeld in ruim 40 wijken. En dan is er nog het landelijk gebied waar bijna 20.000 mensen wonen, verdeeld over de bij Apeldoorn behorende dorpen Beekbergen, Ugchelen, Beemte Broekland, Hoenderloo, Hoog Soeren, Lieren, Loenen, Nieuw Milligen, Uddel, Wenum Wiesel, deels Radio Kootwijk en Klarenbeek.

Door de vele parken, heemtuinen, maar vooral ook door de uitgestrekte natuurgebieden die rondom de stad zijn gelegen, is Apeldoorn met recht het ‘Groene hart van de Veluwe’. De Koninklijke Houtvesterij Het Loo vormt één van Nederlands grotere aaneengesloten natuurgebieden met een oppervlakte van 10.500 hectare. In deze natuurlijke omgeving leven onder andere edelherten, reeën en wilde zwijnen. Apeldoorn is ook een ‘Koninklijke Stad’, bekend om Paleis Het Loo met zijn prachtige tuinen, Koninklijke Stallen en Het Aardhuis, voormalig jachtchalet van koning Willem II. Het woonklimaat in Apeldoorn is zéér aantrekkelijk.

heerlijk wonen in Apeldoorn

Lokaal makelaarschap

Wij geloven sterk in lokaal makelaarschap. Kennis van de buurt, de omgeving en de daarbij behorende ontwikkeling van de huizenprijzen zijn onmisbaar om voor jou het maximale resultaat te boeken.

Met Hendriks Makelaardij kies je voor:

• makelaars die al jarenlang verbonden zijn met de regio

• kennis van de lokale woningmarkt

• een verkoopplan afgestemd op jouw woning

• maximale exposure van je huis

• bezichtigingen ook in het weekend

• netwerk met honderden woningzoekers

Verkoop je je huis met Hendriks dan ben je met de eigen app 24/7 op de hoogte van het verkoopproces. Bezichtigingsverzoeken bereiken je direct en beantwoord je snel en discreet op het moment dat het jou uitkomt.

Ook je huis verkopen? Onze makelaars komen graag en vrijblijvend bij je langs. We maken dan direct een gratis waardebepaling. Hendriks Makelaardij werkt op basis van no cure no pay. En betalen doe je pas bij verkoop.

Zwolseweg 208

055 - 521 92 77 apeldoorn@hendriks.nl www.hendriks.nl

TILBURG REESHOF BREDA ‘S-HERTOGENBOSCH TILBURG WEERT ROERMOND NIJMEGEN ARNHEM APELDOORN BUSSUM MEPPEL ALMERE AMSTELVEEN AMSTERDAM A’DAM NOORD MONNICKENDAM PURMEREND ZAANDAM ALKMAAR LANDSMEER HOORN HEERHUGOWAARD A’DAM WEST HOOFDDORP HAARLEM (2x) (2x) AMERSFOORT LEIDEN HILVERSUM EINDHOVEN (2x) (2x) ZWOLLE NIEUWEGEIN WIJK BIJ DUURSTEDE VLEUTEN DE MEERN UTRECHT MAARSSEN onze makelaarskantoren huizen van hendriks
WHATSAPP FOTO’S WONING ADRES WAARDE + + = Zwolseweg 208 055 - 521 92 77 apeldoorn@hendriks.nl www.hendriks.nl Ook je huis verkopen? WhatsApp de foto’s en het adres van je woning naar 06 44 33 78 72 en ontvang een gratis waardebepaling!

Turn static files into dynamic content formats.

Create a flipbook
Issuu converts static files into: digital portfolios, online yearbooks, online catalogs, digital photo albums and more. Sign up and create your flipbook.