Plataan 21, Oost West en Middelbeers

Page 1


HuizenHendriks van

Plataan 21 , 5091 RP Oost West en Middelbeers

Soort Type Kamers

Woonoppervlakte

Perceeloppervlakte

Inhoud

Bouwjaar

Tuin

Garage

Verwarming

Energielabel

Kenmerken

eengezinswoning

geschakelde woning

6

119 m²

200 m²

420 m³

1984 achtertuin

carport

c.v.-ketel

C

De in deze brochure getoonde informatie wordt door Hendriks makelaardij met zorg samengesteld, doch voor de juistheid en volledigheid daarvan kan niet worden ingestaan en kunnen hieraan geen rechten worden ontleend. Spel- en typefouten voorbehouden. De plattegronden zijn geproduceerd voor promotionele doeleinden en ter indicatie. Er kunnen geen rechten aan worden ontleend. Maten zijn niet eigenhandig opgemeten. Indien er twijfel bestaat over de accuratie van de gegevens aangaande deze brochure, is de geïnteresseerde zelf verantwoordelijk voor het nameten van deze gegevens. Voor meer informatie wordt u doorverwezen naar www.hendriks.nl

Verkoper vertelt

Welkom bij deze leuke woning gelegen in de kindvriendelijke woonwijk “Lindeakkers” in Oostelbeers.

Deze gezinsvriendelijke buurt staat bekend om zijn veilige, autoluwe straten, nabijheid van scholen en sportvoorzieningen, en een overvloed aan groen.

Deze woning is ideaal voor jonge gezinnen die op zoek zijn naar een ruime, comfortabele en moderne leefruimte.

Met vier slaapkamers, een open keuken, een royale serre, en een privacybiedende achtertuin, heeft deze woning alles wat je nodig hebt voor een gelukkig gezinsleven.

huizen

Smaakvol

moderne keuken

ga lekker zitten

De woonkamer is ruim en voorzien van een PVCvloer met een houtmotief, wat zorgt voor een warme uitstraling. De stucwerk wanden en het spuitwerk plafond geven de ruimte een moderne en strakke look. Met een ruime trapkast biedt de woonkamer ook voldoende opbergruimte voor alledaagse spullen.

De open keuken is volledig uitgerust met moderne inbouwapparatuur, ideaal voor het bereiden van maaltijden voor het gezin. Met een 5-pits gaskookplaat, afzuigkap, koelkast, vriezer, magnetron/grill, oven en vaatwasser is deze keuken van alle gemakken voorzien.

De serre is een echte toevoeging aan de woning. Met een tegelvloer voorzien van vloerverwarming en een MDF plafond met inbouwspots, is het een perfecte ruimte om te ontspannen. De schuifpui biedt directe toegang tot de achtertuin, wat het ideaal maakt voor zowel binnen- als buitenactiviteiten.

Slaap lekker

netjes instapklaar

Op de eerste verdieping bevinden zich drie slaapkamers, elk voorzien van een laminaatvloer, wanden met schuurwerk of stucwerk en een spuitwerk plafond. Alle kamers zijn uitgerust met rolluiken, wat zorgt voor extra comfort en privacy.

huizen

Keurige badkamer

4 slaapkamers

fijne lichtinval

De badkamer is volledig betegeld en beschikt over een ligbad met thermostaatkraan en douchemogelijkheid, een toilet en een wastafel in een meubel.

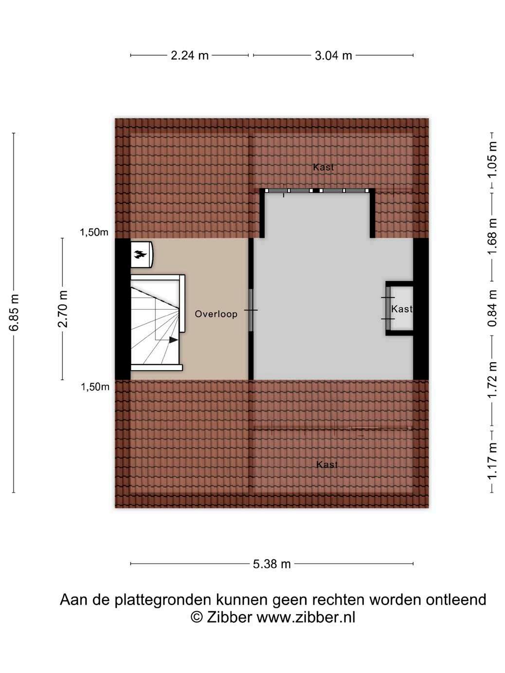
De tweede verdieping is bereikbaar via een vaste trap. Op de voorzolder vind je de HR-combiketel en aansluitingen voor wasmachine en droger, wat deze ruimte zeer functioneel maakt. De royale zolderkamer met dakkapel biedt extra ruimte en kan dienen als een vierde slaapkamer, kantoor of hobbyruimte. Ook hier zijn rolluiken aanwezig voor extra comfort.

optimaal genieten

Onderhoudsvriendelijk zonnig

De buitenruimte van deze woning is net zo functioneel als het interieur. De achtertuin is gelegen op het westen en biedt veel privacy. De tuin is voorzien van een overdekt zitterras (of carport) in sierbestrating, een stenen berging met elektra en een overkapping naast de woning. Een eigen parkeerplaats op het terrein zorgt ervoor dat je altijd een plekje hebt voor je auto.

Oost West en Middelbeers

In het prachtige Noord-Brabant liggen de drie dorpen Oost-, West- en Middelbeers, samen bekend als “De Beerzen”. Deze dorpen vormen een hechte gemeenschap met een rijke geschiedenis en een sterke band met de natuur.

Oostelbeers is het kleinste dorp, met charmante straatjes en de historische Mariakerk als middelpunt. Middelbeers, centraal gelegen, bruist van het leven met gezellige winkels en cafés, en staat bekend om zijn lokale evenementen. Westelbeers biedt uitgestrekte landschappen en natuurgebieden zoals de Beerse Bossen en de Landschotse Heide, perfect voor wandelaars en natuurliefhebbers.

De Beerzen staan bekend om hun Brabantse gastvrijheid en de sterke onderlinge band tussen de dorpen, met gezamenlijke activiteiten en feesten zoals de carnavalsoptochten en de traditionele kermis. Of je nu komt voor de cultuur, de natuur, of de gezelligheid, in De Beerzen voel je je altijd thuis.

heerlijk wonen in Oost West en Middelbeers
noorden kadastrale kaart

HEERHUGOWAARD

ALKMAAR LANDSMEER

ZAANDAM

(2x)

A’DAM WEST

HOOFDDORP HAARLEM

LEIDEN

Lokaal makelaarschap

Wij geloven sterk in lokaal makelaarschap. Kennis van de buurt, de omgeving en de daarbij behorende ontwikkeling van de huizenprijzen zijn onmisbaar om voor jou het maximale resultaat te boeken.

Met Hendriks Makelaardij kies je voor:

• makelaars die al jarenlang verbonden zijn met de regio

• kennis van de lokale woningmarkt

• een verkoopplan afgestemd op jouw woning

• maximale exposure van je huis

• bezichtigingen ook in het weekend

• netwerk met honderden woningzoekers

Verkoop je je huis met Hendriks dan ben je met de eigen app 24/7 op de hoogte van het verkoopproces.

Bezichtigingsverzoeken bereiken je direct en beantwoord je snel en discreet op het moment dat het jou uitkomt.

Ook je huis verkopen? Onze makelaars komen graag en vrijblijvend bij je langs. We maken dan direct een gratis waardebepaling. Hendriks Makelaardij werkt op basis van no cure no pay. En betalen doe je pas bij verkoop.

Aalsterweg 5

040 - 293 05 00 eindhoven@hendriks.nl www.hendriks.nl

HOORN

PURMEREND

MONNICKENDAM

A’DAM NOORD

AMSTERDAM

AMSTELVEEN

ALMERE

BUSSUM

HILVERSUM

VLEUTEN DE MEERN UTRECHT MAARSSEN

AMERSFOORT

(2x) (2x)

NIEUWEGEIN WIJK BIJ DUURSTEDE

MEPPEL

ZWOLLE

APELDOORN

ARNHEM

(2x)

NIJMEGEN

‘S-HERTOGENBOSCH

BREDA

EINDHOVEN

TILBURG WEERT

ROERMOND

Turn static files into dynamic content formats.

Create a flipbook
Issuu converts static files into: digital portfolios, online yearbooks, online catalogs, digital photo albums and more. Sign up and create your flipbook.