Skip to main content

Peutenweg 44, Echt

Page 1


HuizenHendriks van

Fraaie tuin

Soort eengezinswoning

Type geschakelde woning Kamers 7

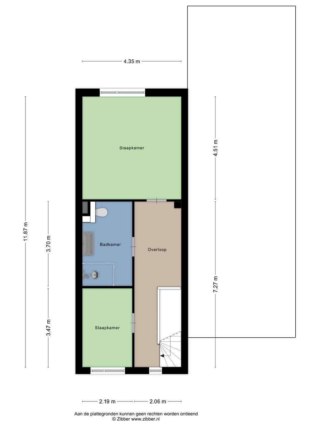
Woonoppervlakte 149 m²

Perceeloppervlakte 365 m²

Inhoud 618 m³

Bouwjaar 2022

Tuin achtertuin, voortuin

Garage inpandig

Verwarming vloerverwarming geheel, warmtepomp, warmte terugwininstallatie

Isolatie volledig geïsoleerd

Energielabel A+++

De in deze brochure getoonde informatie wordt door Hendriks makelaardij met zorg samengesteld, doch voor de juistheid en volledigheid daarvan kan niet worden ingestaan en kunnen hieraan geen rechten worden ontleend. Spel- en typefouten voorbehouden. De plattegronden zijn geproduceerd voor promotionele doeleinden en ter indicatie. Er kunnen geen rechten aan worden ontleend. Maten zijn niet eigenhandig opgemeten. Indien er twijfel bestaat over de accuratie van de gegevens aangaande deze brochure, is de geïnteresseerde zelf verantwoordelijk voor het nameten van deze gegevens. Voor meer informatie wordt u doorverwezen naar www.hendriks.nl

Verkoper vertelt

Welkom in ons mooie huis in de ruim opgezette jonge woonwijk Bocage.

Wat dit huis bijzonder maakt, is dat het een levensloopbestendige woning is met vier slaapkamers en twee badkamers. Verder is onze moderne, comfortabele woning voorzien van een luxe woonkeuken met inductiekookplaat, vloerverwarming, 25 zonnepanelen en een warmtepomp, zodat je er energiezuinig en duurzaam kunt wonen.

Wij genieten ook van de onderhoudsvriendelijke tuin, die zo is ingericht dat je altijd kunt kiezen of je liever in de zon of in de schaduw wilt zitten. Daarnaast is de ligging van dit huis ideaal, op slechts vijf minuten lopen van het treinstation en vijf minuten fietsen van het centrum. Ook zit je zo op de snelweg, terwijl je tegelijkertijd vlakbij het prachtige natuurgebied De Doort woont, waar je heerlijk kunt wandelen.

Ruimte, comfort en een goede bereikbaarheid zijn de sleutelwoorden van dit fijne, instapklare huis. Wij hopen dat de nieuwe bewoners net zo van dit huis zullen genieten als wij hebben gedaan.

Roermond: Sint Christoffelstraat

Stijlvol

gebouwd in 2022

energielabel a+++

Stap binnen in een woning die nog de geur van nieuwigheid in zich heeft. Deze woning, gebouwd in 2022, biedt de nieuwste bouwtechnieken en hoogwaardige materialen, wat resulteert in een veilige en solide thuisbasis. Met zorg en aandacht voor detail ontworpen, voldoet het aan alle moderne eisen en normen, zodat je met een gerust hart kunt wonen.

Met energielabel A+++, een warmtepomp en 25 zonnepanelen is deze woning een toonbeeld van duurzaamheid. Het gasloze ontwerp zorgt voor een comfortabel binnenklimaat, terwijl je tegelijkertijd bijdraagt aan een groenere planeet. Je energierekening zal aanzienlijk lager uitvallen, wat niet alleen goed is voor je portemonnee, maar ook voor het milieu. Dit huis biedt een toekomstbestendige oplossing die al je verwachtingen overtreft.

huizen

Stijlvolle keuken

open keuken

twee luxe badkamers

De stijlvolle open keuken vormt het kloppende hart van deze woning. Uitgerust met de nieuwste inbouwapparatuur, inspireert deze ruimte tot culinaire hoogstandjes. De twee luxe badkamers bieden een oase van rust en ontspanning, waar je de stress van de dag van je af kunt laten glijden. Of je nu kiest voor een verkwikkende douche in de ochtend of een ontspannend bad in de avond, deze ruimtes zijn ontworpen om je dagelijkse routine te verrijken met comfort en stijl.

Voldoende ruimte huizen

vier slaapkamers

talloze opties

Deze woning beschikt over vier ruime slaapkamers, die elk een eigen karakter hebben. Of je nu een groot gezin hebt of behoefte aan extra ruimte voor gasten, hobby’s of een thuiskantoor, de mogelijkheden zijn eindeloos. De slaapkamers bieden een rustige en comfortabele plek om tot rust te komen en nieuwe energie op te doen. Elk gezinslid kan genieten van zijn eigen plekje, terwijl er nog genoeg ruimte is voor gezamenlijke activiteiten

prachtige tuin

Heerlijke tuin met achterom

Buiten vind je de prachtige tuin, een groene oase waar je kunt genieten van de zon, barbecueën op een van de terrassen of gewoon ontspannen met een kopje koffie. De eigen achterom maakt het gemakkelijk om vanuit de tuin het huis in en uit te gaan, en biedt extra gemak en privacy.

heerlijk wonen in Echt

Echt

De gemeente Echt is samengesteld uit dertien woonkernen en is één der oudste en in oppervlakte één der grootste gemeenten in Limburg. Vanwege de centrale ligging vormt Echt een ideale uitvalsbasis voor bezoekers aan de Maasplassen en steden als Maastricht (30 km), Aken (40 km) en Luik (50km). Echt heeft via de A2 een fantastische verbinding naar zowel het zuiden als het noorden.

De gemeente Echt heeft zich in de tweede helft van de 20ste eeuw ontwikkeld tot een belangrijk centrum op het gebied van onderwijs, verzorging, recreatie en maatschappelijk welzijn. In dit opzicht vervult de stad duidelijk een streekverzorgende functie. Naast een aantrekkelijk woon-, werk- en leefklimaat, waaraan voortdurend aandacht wordt besteed, biedt Echt vele mogelijkheden op recreatief gebied, waarvan het sportcomplex In de Bandert (met overdekt zwembad, sporthal, tennispark, sportvelden en grand café) en de fraaie bosgebieden (de Doort, het Marissen en het Kranenbroek) zeker het vermelden waard zijn.

In 2000 is het winkelcentrum geheel verfraaid en uitgebreid met 5.000 m² winkels, 140 woningen en 350 parkeerplaatsen. Daarnaast beschikt Echt over alle dagelijkse voorzieningen, zoals o.a. diverse basisscholen, een scholengemeenschap, winkels, een postkantoor, banken, artsen en een NS station. Iedere woensdagmiddag is er op de Nieuwe Markt een weekmarkt.

noorden kadastrale kaart

Lokaal makelaarschap

Wij geloven sterk in lokaal makelaarschap. Kennis van de buurt, de omgeving en de daarbij behorende ontwikkeling van de huizenprijzen zijn onmisbaar om voor jou het maximale resultaat te boeken.

Met Hendriks Makelaardij kies je voor:

• makelaars die al jarenlang verbonden zijn met de regio

• kennis van de lokale woningmarkt

• een verkoopplan afgestemd op jouw woning

• maximale exposure van je huis

• bezichtigingen ook in het weekend

• netwerk met honderden woningzoekers

Verkoop je je huis met Hendriks dan ben je met de eigen app 24/7 op de hoogte van het verkoopproces.

Bezichtigingsverzoeken bereiken je direct en beantwoord je snel en discreet op het moment dat het jou uitkomt.

HEERHUGOWAARD

ALKMAAR LANDSMEER HOORN

Ook je huis verkopen? Onze makelaars komen graag en vrijblijvend bij je langs. We maken dan direct een gratis waardebepaling. Hendriks Makelaardij werkt op basis van no cure no pay. En betalen doe je pas bij verkoop.

Sint Christoffelstraat 1-3 0475 - 31 12 00 roermond@hendriks.nl www.hendriks.nl

PURMEREND ZAANDAM

(2x)

A’DAM WEST

HOOFDDORP HAARLEM

LEIDEN

MONNICKENDAM

A’DAM NOORD

AMSTERDAM

AMSTELVEEN

VLEUTEN DE MEERN

ALMERE

BUSSUM

HILVERSUM

UTRECHT MAARSSEN

AMERSFOORT

(2x) (2x)

NIEUWEGEIN WIJK BIJ DUURSTEDE

MEPPEL

ZWOLLE

APELDOORN

ARNHEM

(2x)

NIJMEGEN

‘S-HERTOGENBOSCH

BREDA

TILBURG

EINDHOVEN

WEERT

ROERMOND

Turn static files into dynamic content formats.

Create a flipbook